Property
Account |
| Property ID: | 32061 | Abbreviated Legal Description: | PROSPECT HEIGHTS TAX 2A BLK 1 TAX 3 BLK 1 |
| Parcel Number: | 360732570116 | Agent Code: | |
| Type: | Real | | |
| Tax Area: | 105 - 140-F-4 | Land Use Code | 11 |
| Open Space: | N | DFL | N |
| Historic Property: | N | Remodel Property: | N |
| Multi-Family Redevelopment: | N | | |
| Township: | 7 | Section: | 32 |
| Range: | 36 |
Location |
| Address: | 310 PROSPECT AVE WA 99362 | Mapsco: | |
| Neighborhood: | G Res Rural/City Inf | Map ID: | |
| Neighborhood CD: | 614012 |
Owner |
| Name: | SCHOESLER JOSEPH A | Owner ID: | 61590 |
| Mailing Address: | SARAH D TOWNSEND 310 PROSPECT AVE WALLA WALLA, WA 99362 | % Ownership: | 100.0000000000% |
| | | Exemptions: | |
Taxes and Assessment Details
Property Tax Information as of
02/21/2026
Click on "Statement Details" to expand or collapse a tax statement.
* Please enter a valid date ** Please enter a valid date *
Statement Details |
| | TOTAL: | $0.00 | $0.00 | $0.00 | $0.00 | $0.00 | $0.00 |
|
| | $0.00 | $0.00 | $0.00 | $0.00 | $0.00 | $0.00 |
Values
| (+) Improvement Homesite Value: | + | $0 | |
| (+) Improvement Non-Homesite Value: | + | $382,130 | |
| (+) Land Homesite Value: | + | $0 | |
| (+) Land Non-Homesite Value: | + | $133,850 | |
| (+) Curr Use (HS): | + | $0 | $0 |
| (+) Curr Use (NHS): | + | $0 | $0 |
| | | -------------------------- | |
| (=) Market Value: | = | $515,980 | |
| (–) Productivity Loss: | – | $0 | |
| | | -------------------------- | |
| (=) Subtotal: | = | $515,980 | |
| (+) Senior Appraised Value: | + | $0 | |
| (+) Non-Senior Appraised Value: | + | $515,980 | |
| | | -------------------------- | |
| (=) Total Appraised Value: | = | $515,980 | |
| (–) Senior Exemption Loss: | – | $0 | |
| (–) Exemption Loss: | – | $0 | |
| | | -------------------------- | |
| (=) Taxable Value: | = | $515,980 | |
Taxing Jurisdiction
| Owner: | SCHOESLER JOSEPH A | | |
| % Ownership: | 100.0000000000% | | |
| Total Value: | $515,980 | | |
| Tax Area: | 105 - 140-F-4 |
| CERFD | CURRENT EXPENSE REFUND 010 | 0.0000000000 | $515,980 | $515,980 | $0.00 | | |
| CURREXP | CURRENT EXPENSE 010 | 1.0175366760 | $515,980 | $515,980 | $525.03 | | |
| HUMNSERV | HUMAN SERVICES 119 | 0.0250000000 | $515,980 | $515,980 | $12.90 | | |
| SLDREL | SOLDIERS RELIEF 121 | 0.0155990005 | $515,980 | $515,980 | $8.05 | | |
| EMERGSER | EMS 147 | 0.3792580840 | $515,980 | $515,980 | $195.69 | | |
| EMSRFD | EMS REFUND 147 | 0.0000000000 | $515,980 | $515,980 | $0.00 | | |
| FD4EXP | FD #4 EXPENSE 686 | 0.8836993059 | $515,980 | $515,980 | $455.97 | | |
| RLBRFD | RURAL LIBRARY REFUND 623 | 0.0000000000 | $515,980 | $515,980 | $0.00 | | |
| RURALLIB | RURAL LIBRARY 623 | 0.3710609029 | $515,980 | $515,980 | $191.46 | | |
| PORTRFD | PORT REFUND 640 | 0.0000000000 | $515,980 | $515,980 | $0.00 | | |
| PORTWWGEN | PORT OF WW 640 | 0.2460186015 | $515,980 | $515,980 | $126.94 | | |
| SD140BOND | SD #140 BOND 764 | 0.8342371393 | $515,980 | $515,980 | $430.45 | | |
| SD140GEN | SD #140 GENERAL 760 | 2.0646500647 | $515,980 | $515,980 | $1,065.32 | | |
| ST2 | STATE SCHOOL PART 2 600 | 0.8131451643 | $515,980 | $515,980 | $419.57 | | |
| STATESCHL | STATE SCHOOL 600 | 1.5158548041 | $515,980 | $515,980 | $782.15 | | |
| STREFUND | STATE REFUND LEVY 603 | 0.0000000000 | $515,980 | $515,980 | $0.00 | | |
| COROAD | COUNTY ROAD 115 | 1.6549953990 | $515,980 | $515,980 | $853.94 | | |
| CRPRD | COUNTY ROAD REFUND 115 | 0.0000000000 | $515,980 | $515,980 | $0.00 | | |
| | Total Tax Rate: | 9.8210551422 | | | | | |
| | | | | Taxes w/Current Exemptions: | $5,067.47 | | |
| | | | | Taxes w/o Exemptions: | $5,067.47 | | |
Improvement / Building
| Improvement #1: | RESIDENTIAL | State Code: | 11 | 1506.0 sqft | Value: | $382,130 |
| Exterior Wall: | MASONRY VENEER | Heating/Cooling: | BASEBOARD ELECTRIC | | Number of Bathrooms: | 2 | Number of Bedrooms: | 3 | | Plumbing: | 9 | Roof Covering: | WOOD SHAKE |
|
| | Type | Description | Class CD | Sub Class CD | Year Built | Area |
| | MA | Main Area | 1 | 35 | 1975 | 1506.0 |
| | SI1 | SITE IMPROVEMENT | 1 | 35 | 1975 | 3.0 |
| | DTG | Detached Garage | 1 | 35 | 1975 | 900.0 |
| | S1F | Single One Story Fireplace | 1 | 35 | 1975 | 1.0 |
| | RPO | OPEN PORCH W/ROOF | 1 | 35 | 1975 | 140.0 |
| | POL2 | POLE BUILDING-CONCRETE | 1 | 30 | 2017 | 2592.0 |
| | CPC | COVERED CARPORT/PATIO | 1 | 30 | 1975 | 432.0 |
| | CPCG | CARPORT/ GABLE ROOF | 1 | 35 | 2018 | 130.0 |
Sketch
Property Image
Land
| 1 | RES 1 | Converted: Residential | 1.3300 | 0.00 | 0.00 | 0.00 | 1.00 | $133,850 | $0 |
Roll Value History
| 2026 | N/A | N/A | N/A | N/A | N/A |
| 2025 | $418,140 | $174,460 | $0 | $592,600 | $592,600 |
| 2024 | $382,130 | $133,850 | $0 | $515,980 | $515,980 |
| 2023 | $382,130 | $133,850 | $0 | $515,980 | $515,980 |
| 2022 | $382,130 | $91,650 | $0 | $473,780 | $473,780 |
| 2021 | $318,440 | $91,650 | $0 | $410,090 | $410,090 |
| 2020 | $227,460 | $91,650 | $0 | $319,110 | $319,110 |
| 2019 | $227,460 | $91,650 | $0 | $319,110 | $319,110 |
| 2018 | $227,460 | $77,600 | $0 | $305,060 | $305,060 |
| 2017 | $214,600 | $77,600 | $0 | $292,200 | $292,200 |
| 2016 | $158,200 | $77,600 | $0 | $235,800 | $235,800 |
| 2015 | $158,200 | $77,600 | $0 | $235,800 | $235,800 |
| 2014 | $158,200 | $77,600 | $0 | $235,800 | $235,800 |
| 2013 | $158,200 | $77,600 | $0 | $235,800 | $235,800 |
| 2012 | $157,800 | $77,600 | $0 | $0 | $0 |
| 2011 | $157,800 | $77,600 | $0 | $0 | $0 |
| 2010 | $157,800 | $77,600 | $0 | $0 | $0 |
| 2009 | $183,900 | $77,600 | $0 | $0 | $0 |
| 2008 | $183,900 | $77,600 | $0 | $0 | $0 |
| 2007 | $95,700 | $46,000 | $0 | $0 | $0 |
Deed and Sales History
| 1 | 08/23/2017 | QCD | QUIT CLAIM DEED | SCHOESLER JOSEPH A | SCHOESLER JOSEPH A | | | $0.00 | 133058 | 2017-06538 |
| 2 | 11/14/2013 | WARRANTY D | WARRANTY DEED | WATTS TYRONE L | SCHOESLER JOSEPH A | | | $156,800.00 | 124951 | 2013-11207 |
| 3 | 11/04/2013 | QCD | QUIT CLAIM DEED | WATTS, TYRONE L AS TRUSTEE | WATTS, TYRONE L | | | $0.00 | 124909 | 2013-10980 |
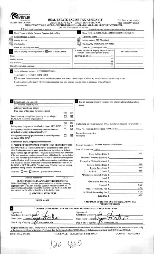
| 4 | 07/18/2011 | WARRANTY D | WARRANTY DEED | WATTS, ISABEL ESTATE OF | WATTS, TYRONE L AS TRUSTEE | | | | 120423 | 2011-05541 |
| 5 | 09/17/1980 | QCD | QUIT CLAIM DEED | | | | | $67,000.00 | 0 | 1889-101887 |
Payout Agreement
| No payout information available.. |