Property
Account |
| Property ID: | 32058 | Abbreviated Legal Description: | 25-8-37 NW1/4NW1/4 LESS RR LESS ST HWY |
| Parcel Number: | 370825220004 | Agent Code: | |
| Type: | Real | | |
| Tax Area: | 310 - 101-8 | Land Use Code | 83 |
| Open Space: | Y | DFL | N |
| Historic Property: | N | Remodel Property: | N |
| Multi-Family Redevelopment: | N | | |
| Township: | 8 | Section: | 25 |
| Range: | 37 |
Location |
| Address: | WA 99329 | Mapsco: | |
| Neighborhood: | 0 Farm | Map ID: | |
| Neighborhood CD: | 4240 |
Owner |
| Name: | FILAN R W REVOCABLE FAMILY TRUST | Owner ID: | 68661 |
| Mailing Address: | 1848 STURM AVE WALLA WALLA, WA 99362 | % Ownership: | 100.0000000000% |
| | | Exemptions: | |
Taxes and Assessment Details
Property Tax Information as of
02/21/2026
Click on "Statement Details" to expand or collapse a tax statement.
* Please enter a valid date ** Please enter a valid date *
Statement Details |
| | TOTAL: | $0.00 | $0.00 | $0.00 | $0.00 | $0.00 | $0.00 |
|
| | $0.00 | $0.00 | $0.00 | $0.00 | $0.00 | $0.00 |
Values
| (+) Improvement Homesite Value: | + | $0 | |
| (+) Improvement Non-Homesite Value: | + | $0 | |
| (+) Land Homesite Value: | + | $0 | |
| (+) Land Non-Homesite Value: | + | $0 | |
| (+) Curr Use (HS): | + | $0 | $0 |
| (+) Curr Use (NHS): | + | $97,120 | $34,600 |
| | | -------------------------- | |
| (=) Market Value: | = | $97,120 | |
| (–) Productivity Loss: | – | $62,520 | |
| | | -------------------------- | |
| (=) Subtotal: | = | $34,600 | |
| (+) Senior Appraised Value: | + | $0 | |
| (+) Non-Senior Appraised Value: | + | $34,600 | |
| | | -------------------------- | |
| (=) Total Appraised Value: | = | $34,600 | |
| (–) Senior Exemption Loss: | – | $0 | |
| (–) Exemption Loss: | – | $0 | |
| | | -------------------------- | |
| (=) Taxable Value: | = | $34,600 | |
Taxing Jurisdiction
| Owner: | FILAN R W REVOCABLE FAMILY TRUST | | |
| % Ownership: | 100.0000000000% | | |
| Total Value: | $97,120 | | |
| Tax Area: | 310 - 101-8 |
| CERFD | CURRENT EXPENSE REFUND 010 | 0.0000000000 | $34,600 | $34,600 | $0.00 | | |
| CURREXP | CURRENT EXPENSE 010 | 1.0175366760 | $34,600 | $34,600 | $35.21 | | |
| HUMNSERV | HUMAN SERVICES 119 | 0.0250000000 | $34,600 | $34,600 | $0.87 | | |
| SLDREL | SOLDIERS RELIEF 121 | 0.0155990005 | $34,600 | $34,600 | $0.54 | | |
| EMERGSER | EMS 147 | 0.3792580840 | $34,600 | $34,600 | $13.12 | | |
| EMSRFD | EMS REFUND 147 | 0.0000000000 | $34,600 | $34,600 | $0.00 | | |
| FD8EXP | FD #8 EXPENSE 697 | 0.6647992540 | $34,600 | $34,600 | $23.00 | | |
| RLBRFD | RURAL LIBRARY REFUND 623 | 0.0000000000 | $34,600 | $34,600 | $0.00 | | |
| RURALLIB | RURAL LIBRARY 623 | 0.3710609029 | $34,600 | $34,600 | $12.84 | | |
| PORTRFD | PORT REFUND 640 | 0.0000000000 | $34,600 | $34,600 | $0.00 | | |
| PORTWWGEN | PORT OF WW 640 | 0.2460186015 | $34,600 | $34,600 | $8.51 | | |
| SD101CAP | SD #101 CAP 752 | 0.5894423472 | $34,600 | $34,600 | $20.39 | | |
| SD101GEN | SD #101 GENERAL 750 | 0.7455117868 | $34,600 | $34,600 | $25.79 | | |
| ST2 | STATE SCHOOL PART 2 600 | 0.8131451643 | $34,600 | $34,600 | $28.13 | | |
| STATESCHL | STATE SCHOOL 600 | 1.5158548041 | $34,600 | $34,600 | $52.45 | | |
| STREFUND | STATE REFUND LEVY 603 | 0.0000000000 | $34,600 | $34,600 | $0.00 | | |
| COROAD | COUNTY ROAD 115 | 1.6549953990 | $34,600 | $34,600 | $57.26 | | |
| CRPRD | COUNTY ROAD REFUND 115 | 0.0000000000 | $34,600 | $34,600 | $0.00 | | |
| | Total Tax Rate: | 8.0382220203 | | | | | |
| | | | | Taxes w/Current Exemptions: | $278.11 | | |
| | | | | Taxes w/o Exemptions: | $278.11 | | |
Improvement / Building
Sketch
| No sketches available for this property. |
Property Image
Land
| 1 | 85-C2AN | Class 2 85 BU Annual | 32.7000 | 0.00 | 0.00 | 0.00 | 1.00 | $97,120 | $34,600 |
| 2 | WASTE | Waste | 4.0000 | 0.00 | 0.00 | 0.00 | 1.00 | $0 | $0 |
Roll Value History
| 2026 | N/A | N/A | N/A | N/A | N/A |
| 2025 | $0 | $102,060 | $31,160 | $31,160 | $31,160 |
| 2024 | $0 | $99,600 | $33,420 | $33,420 | $33,420 |
| 2023 | $0 | $97,120 | $34,600 | $34,600 | $34,600 |
| 2022 | $0 | $93,060 | $33,130 | $33,130 | $33,130 |
| 2021 | $0 | $88,060 | $32,930 | $32,930 | $32,930 |
| 2020 | $0 | $83,060 | $33,810 | $33,810 | $33,810 |
| 2019 | $0 | $80,410 | $34,430 | $34,430 | $34,430 |
| 2018 | $0 | $80,180 | $39,210 | $39,210 | $39,210 |
| 2017 | $0 | $79,430 | $39,860 | $39,860 | $39,860 |
| 2016 | $0 | $79,430 | $39,930 | $39,930 | $39,930 |
| 2015 | $0 | $79,430 | $35,410 | $35,410 | $35,410 |
| 2014 | $0 | $79,430 | $35,710 | $35,710 | $35,710 |
| 2013 | $0 | $75,700 | $28,800 | $28,800 | $28,800 |
| 2012 | $0 | $18,600 | $0 | $0 | $0 |
| 2011 | $0 | $17,600 | $0 | $0 | $0 |
| 2010 | $0 | $15,800 | $0 | $0 | $0 |
| 2009 | $0 | $16,400 | $0 | $0 | $0 |
| 2008 | $0 | $24,100 | $0 | $0 | $0 |
| 2007 | $0 | $24,100 | $0 | $0 | $0 |
Deed and Sales History
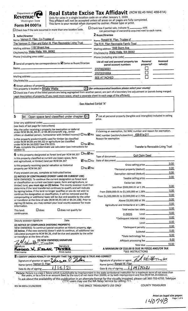
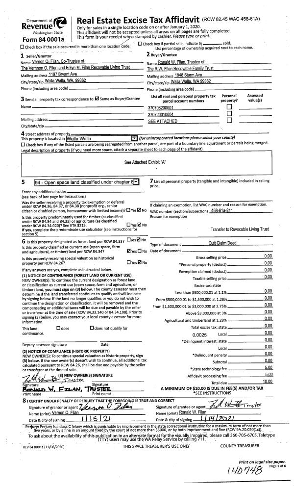
| 1 | 01/15/2021 | QCD | QUIT CLAIM DEED | FILAN VERNON O & EVELYN M | FILAN R W REVOCABLE FAMILY TRUST | | 10 PARCELS | $0.00 | 140748 | 2021-00748 |
| 2 | 07/05/2011 | QCD | QUIT CLAIM DEED | FILAN, VERNON O | FILAN VERNON O & EVELYN M | | | | 120357 | 2011-05136 |
| 3 | 01/01/1961 | QCD | QUIT CLAIM DEED | | | | | $0.00 | 0 | 2990-434119 |
Payout Agreement
| No payout information available.. |