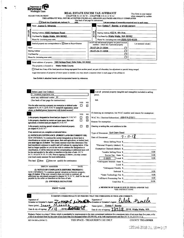
Property
Account |
| Property ID: | 32045 | Abbreviated Legal Description: | TAX DIST SEG...SEE -0044 24-7-35 TAX 5A |
| Parcel Number: | 350724310008 | Agent Code: | |
| Type: | Real | | |
| Tax Area: | 105 - 140-F-4 | Land Use Code | 91 |
| Open Space: | N | DFL | N |
| Historic Property: | N | Remodel Property: | N |
| Multi-Family Redevelopment: | N | | |
| Township: | 7 | Section: | 24 |
| Range: | 35 |
Location |
| Address: | W HIGHWAY 12 WA 99362 | Mapsco: | |
| Neighborhood: | A-SFR Contig | Map ID: | |
| Neighborhood CD: | 313097 |
Owner |
| Name: | BARELA ESTELA F | Owner ID: | 55149 |
| Mailing Address: | 1685 HERITAGE RD WALLA WALLA, WA 99362 | % Ownership: | 100.0000000000% |
| | | Exemptions: | |
Taxes and Assessment Details
Values
| (+) Improvement Homesite Value: | + | $0 | |
| (+) Improvement Non-Homesite Value: | + | $0 | |
| (+) Land Homesite Value: | + | $0 | |
| (+) Land Non-Homesite Value: | + | $33,000 | |
| (+) Curr Use (HS): | + | $0 | $0 |
| (+) Curr Use (NHS): | + | $0 | $0 |
| | | -------------------------- | |
| (=) Market Value: | = | $33,000 | |
| (–) Productivity Loss: | – | $0 | |
| | | -------------------------- | |
| (=) Subtotal: | = | $33,000 | |
| (+) Senior Appraised Value: | + | $0 | |
| (+) Non-Senior Appraised Value: | + | $33,000 | |
| | | -------------------------- | |
| (=) Total Appraised Value: | = | $33,000 | |
| (–) Senior Exemption Loss: | – | $0 | |
| (–) Exemption Loss: | – | $0 | |
| | | -------------------------- | |
| (=) Taxable Value: | = | $33,000 | |
Taxing Jurisdiction
| Owner: | BARELA ESTELA F | | |
| % Ownership: | 100.0000000000% | | |
| Total Value: | $33,000 | | |
| Tax Area: | 105 - 140-F-4 |
| CERFD | CURRENT EXPENSE REFUND 010 | 0.0000000000 | $33,000 | $33,000 | $0.00 | | |
| CURREXP | CURRENT EXPENSE 010 | 0.9851088983 | $33,000 | $33,000 | $32.51 | | |
| HUMNSERV | HUMAN SERVICES 119 | 0.0250000000 | $33,000 | $33,000 | $0.83 | | |
| SLDREL | SOLDIERS RELIEF 121 | 0.0155990000 | $33,000 | $33,000 | $0.51 | | |
| EMERGSER | EMS 147 | 0.3676811629 | $33,000 | $33,000 | $12.13 | | |
| EMSRFD | EMS REFUND 147 | 0.0000000000 | $33,000 | $33,000 | $0.00 | | |
| FD4EXP | FD #4 EXPENSE 686 | 1.2367913128 | $33,000 | $33,000 | $40.81 | | |
| RLBRFD | RURAL LIBRARY REFUND 623 | 0.0000000000 | $33,000 | $33,000 | $0.00 | | |
| RURALLIB | RURAL LIBRARY 623 | 0.3601547782 | $33,000 | $33,000 | $11.89 | | |
| PORTRFD | PORT REFUND 640 | 0.0000000000 | $33,000 | $33,000 | $0.00 | | |
| PORTWWGEN | PORT OF WW 640 | 0.2344301070 | $33,000 | $33,000 | $7.74 | | |
| SD140BOND | SD #140 BOND 764 | 0.8032434458 | $33,000 | $33,000 | $26.51 | | |
| SD140CAP | SD #140 CAP 762 | 0.3840034221 | $33,000 | $33,000 | $12.67 | | |
| SD140GEN | SD #140 GENERAL 760 | 2.4999999996 | $33,000 | $33,000 | $82.50 | | |
| ST2 | STATE SCHOOL PART 2 600 | 0.8853714103 | $33,000 | $33,000 | $29.22 | | |
| STATESCHL | STATE SCHOOL 600 | 1.6424571473 | $33,000 | $33,000 | $54.20 | | |
| STREFUND | STATE REFUND LEVY 603 | 0.0000000000 | $33,000 | $33,000 | $0.00 | | |
| COROAD | COUNTY ROAD 115 | 1.6137667997 | $33,000 | $33,000 | $53.25 | | |
| CRPRD | COUNTY ROAD REFUND 115 | 0.0000000000 | $33,000 | $33,000 | $0.00 | | |
| | Total Tax Rate: | 11.0536074840 | | | | | |
| | | | | Taxes w/Current Exemptions: | $364.77 | | |
| | | | | Taxes w/o Exemptions: | $364.77 | | |
Improvement / Building
Sketch
| No sketches available for this property. |
Property Image
Land
| 1 | RES 1 | Converted: Residential | 0.4000 | 17424.00 | 0.00 | 0.00 | 1.00 | $33,000 | $0 |
Roll Value History
| 2026 | N/A | N/A | N/A | N/A | N/A |
| 2025 | $0 | $33,000 | $0 | $33,000 | $33,000 |
| 2024 | $0 | $33,000 | $0 | $33,000 | $33,000 |
| 2023 | $0 | $33,000 | $0 | $33,000 | $33,000 |
| 2022 | $0 | $33,000 | $0 | $33,000 | $33,000 |
| 2021 | $0 | $14,200 | $0 | $14,200 | $14,200 |
| 2020 | $0 | $14,200 | $0 | $14,200 | $14,200 |
| 2019 | $0 | $14,200 | $0 | $14,200 | $14,200 |
| 2018 | $0 | $14,200 | $0 | $14,200 | $14,200 |
| 2017 | $0 | $14,200 | $0 | $14,200 | $14,200 |
| 2016 | $0 | $14,200 | $0 | $14,200 | $14,200 |
| 2015 | $0 | $14,200 | $0 | $14,200 | $14,200 |
| 2014 | $0 | $14,200 | $0 | $14,200 | $14,200 |
| 2013 | $0 | $14,200 | $0 | $14,200 | $14,200 |
| 2012 | $0 | $13,200 | $0 | $0 | $0 |
| 2011 | $0 | $13,200 | $0 | $0 | $0 |
| 2010 | $0 | $2,000 | $0 | $0 | $0 |
| 2009 | $0 | $5,000 | $0 | $0 | $0 |
| 2008 | $0 | $5,000 | $0 | $0 | $0 |
| 2007 | $0 | $5,000 | $0 | $0 | $0 |
Deed and Sales History
| 1 | 07/17/2018 | QCD | QUIT CLAIM DEED | MIRANDA JUANA G | BARELA ESTELA F | | | $0.00 | 135146 | 2018-05823 |
| 2 | 07/17/2018 | QCD | QUIT CLAIM DEED | MIRANDA THOMAS | BARELA ESTELA F | | | $0.00 | 135145 | 2018-05822 |
| 3 | 08/27/2014 | DPR | DEED OF PERSONAL REPRESENTATIVE | BARELA GEORGE JR & ESTELA F | BARELA ESTELA F | 2-PARCELS | | | 126532 | 2014-06274 |
| 4 | 09/15/2003 | WARRANTY D | WARRANTY DEED | PINZA, CLAUDIA ESTATE OF | BARELA, GEORGE JR & ESTELA F | | | $164,900.00 | 103009 | 2003-14013 |
|   | |
| 5 | 10/11/2002 | WARRANTY D | WARRANTY DEED | PINZA ANDREW | PINZA ANDREW | | | | 100572 | 2002-11495 |
| 6 | 11/01/1967 | WARRANTY D | WARRANTY DEED | | | | | | 0 | 3240-489382 |
Payout Agreement
| No payout information available.. |