Property
Account |
| Property ID: | 32032 | Abbreviated Legal Description: | TAX DIST SEG...SEE -0051 24-7-35 TAX 15A |
| Parcel Number: | 350724330026 | Agent Code: | |
| Type: | Real | | |
| Tax Area: | 101 - 140-4 | Land Use Code | 11 |
| Open Space: | N | DFL | N |
| Historic Property: | N | Remodel Property: | N |
| Multi-Family Redevelopment: | N | | |
| Township: | 7 | Section: | 24 |
| Range: | 35 |
Location |
| Address: | 1975 HERITAGE RD WA 99362 | Mapsco: | |
| Neighborhood: | A SFR Rural/City Infl | Map ID: | |
| Neighborhood CD: | 313012 |
Owner |
| Name: | ELMENHURST GREG | Owner ID: | 71219 |
| Mailing Address: | 1975 HERITAGE RD WALLA WALLA, WA 99362 | % Ownership: | 100.0000000000% |
| | | Exemptions: | |
Taxes and Assessment Details
Values
| (+) Improvement Homesite Value: | + | $0 | |
| (+) Improvement Non-Homesite Value: | + | $348,200 | |
| (+) Land Homesite Value: | + | $0 | |
| (+) Land Non-Homesite Value: | + | $41,150 | |
| (+) Curr Use (HS): | + | $0 | $0 |
| (+) Curr Use (NHS): | + | $0 | $0 |
| | | -------------------------- | |
| (=) Market Value: | = | $389,350 | |
| (–) Productivity Loss: | – | $0 | |
| | | -------------------------- | |
| (=) Subtotal: | = | $389,350 | |
| (+) Senior Appraised Value: | + | $0 | |
| (+) Non-Senior Appraised Value: | + | $389,350 | |
| | | -------------------------- | |
| (=) Total Appraised Value: | = | $389,350 | |
| (–) Senior Exemption Loss: | – | $0 | |
| (–) Exemption Loss: | – | $0 | |
| | | -------------------------- | |
| (=) Taxable Value: | = | $389,350 | |
Taxing Jurisdiction
| Owner: | ELMENHURST GREG | | |
| % Ownership: | 100.0000000000% | | |
| Total Value: | $389,350 | | |
| Tax Area: | 101 - 140-4 |
| CERFD | CURRENT EXPENSE REFUND 010 | 0.0000000000 | $389,350 | $389,350 | $0.00 | | |
| CURREXP | CURRENT EXPENSE 010 | 0.9851088983 | $389,350 | $389,350 | $383.55 | | |
| HUMNSERV | HUMAN SERVICES 119 | 0.0250000000 | $389,350 | $389,350 | $9.73 | | |
| SLDREL | SOLDIERS RELIEF 121 | 0.0155990000 | $389,350 | $389,350 | $6.07 | | |
| EMERGSER | EMS 147 | 0.3676811629 | $389,350 | $389,350 | $143.16 | | |
| EMSRFD | EMS REFUND 147 | 0.0000000000 | $389,350 | $389,350 | $0.00 | | |
| FD4EXP | FD #4 EXPENSE 686 | 1.2367913128 | $389,350 | $389,350 | $481.54 | | |
| RLBRFD | RURAL LIBRARY REFUND 623 | 0.0000000000 | $389,350 | $389,350 | $0.00 | | |
| RURALLIB | RURAL LIBRARY 623 | 0.3601547782 | $389,350 | $389,350 | $140.23 | | |
| PORTRFD | PORT REFUND 640 | 0.0000000000 | $389,350 | $389,350 | $0.00 | | |
| PORTWWGEN | PORT OF WW 640 | 0.2344301070 | $389,350 | $389,350 | $91.28 | | |
| SD140BOND | SD #140 BOND 764 | 0.8032434458 | $389,350 | $389,350 | $312.74 | | |
| SD140CAP | SD #140 CAP 762 | 0.3840034221 | $389,350 | $389,350 | $149.51 | | |
| SD140GEN | SD #140 GENERAL 760 | 2.4999999996 | $389,350 | $389,350 | $973.38 | | |
| ST2 | STATE SCHOOL PART 2 600 | 0.8853714103 | $389,350 | $389,350 | $344.72 | | |
| STATESCHL | STATE SCHOOL 600 | 1.6424571473 | $389,350 | $389,350 | $639.49 | | |
| STREFUND | STATE REFUND LEVY 603 | 0.0000000000 | $389,350 | $389,350 | $0.00 | | |
| COROAD | COUNTY ROAD 115 | 1.6137667997 | $389,350 | $389,350 | $628.32 | | |
| CRPRD | COUNTY ROAD REFUND 115 | 0.0000000000 | $389,350 | $389,350 | $0.00 | | |
| | Total Tax Rate: | 11.0536074840 | | | | | |
| | | | | Taxes w/Current Exemptions: | $4,303.72 | | |
| | | | | Taxes w/o Exemptions: | $4,303.72 | | |
Improvement / Building
| Improvement #1: | RESIDENTIAL | State Code: | 11 | 938.0 sqft | Value: | $348,200 |
| Exterior Wall: | SIDING | Heating/Cooling: | HEAT PUMP | | Number of Bathrooms: | 2 | Number of Bedrooms: | 2 | | Plumbing: | 9 | Roof Covering: | COMP SHINGLE |
|
| | Type | Description | Class CD | Sub Class CD | Year Built | Area |
| | MA | Main Area | 1 | 30 | 1930 | 938.0 |
| | SI1 | SITE IMPROVEMENT | 1 | 30 | 0 | 2.5 |
| | BASE | BASEMENT | 1 | 30 | 1930 | 938.0 |
| | BPF | BASEMENT -PARTITIONED FINISH | 1 | 30 | 1930 | 938.0 |
| | RPC | OPEN PORCH W/ROOF , CEILED | 1 | 30 | 1930 | 98.0 |
| | CPC | COVERED CARPORT/PATIO | 1 | 30 | 1930 | 220.0 |
| | CPC | COVERED CARPORT/PATIO | 1 | 30 | 1930 | 440.0 |
| | EQUIPSHED | EQUIPMENT SHED | 1 | 30 | 1930 | 264.0 |
Sketch
Property Image
Land
| 1 | RES 1 | Converted: Residential | 0.1145 | 4987.62 | 0.00 | 0.00 | 1.00 | $41,150 | $0 |
Roll Value History
| 2026 | N/A | N/A | N/A | N/A | N/A |
| 2025 | $348,200 | $41,150 | $0 | $389,350 | $389,350 |
| 2024 | $290,170 | $41,150 | $0 | $331,320 | $331,320 |
| 2023 | $290,170 | $41,150 | $0 | $331,320 | $331,320 |
| 2022 | $290,170 | $41,150 | $0 | $331,320 | $331,320 |
| 2021 | $203,920 | $29,900 | $0 | $233,820 | $233,820 |
| 2020 | $169,930 | $29,900 | $0 | $199,830 | $199,830 |
| 2019 | $169,930 | $29,900 | $0 | $199,830 | $199,830 |
| 2018 | $169,930 | $29,900 | $0 | $199,830 | $199,830 |
| 2017 | $161,840 | $29,900 | $0 | $191,740 | $191,740 |
| 2016 | $115,600 | $29,900 | $0 | $145,500 | $145,500 |
| 2015 | $109,400 | $29,900 | $0 | $139,300 | $139,300 |
| 2014 | $109,400 | $29,900 | $0 | $139,300 | $139,300 |
| 2013 | $109,400 | $29,900 | $0 | $139,300 | $139,300 |
| 2012 | $124,300 | $15,000 | $0 | $0 | $0 |
| 2011 | $124,300 | $15,000 | $0 | $0 | $0 |
| 2010 | $124,700 | $15,000 | $0 | $0 | $0 |
| 2009 | $98,100 | $15,000 | $0 | $0 | $0 |
| 2008 | $65,800 | $15,000 | $0 | $0 | $0 |
| 2007 | $65,800 | $15,000 | $0 | $0 | $0 |
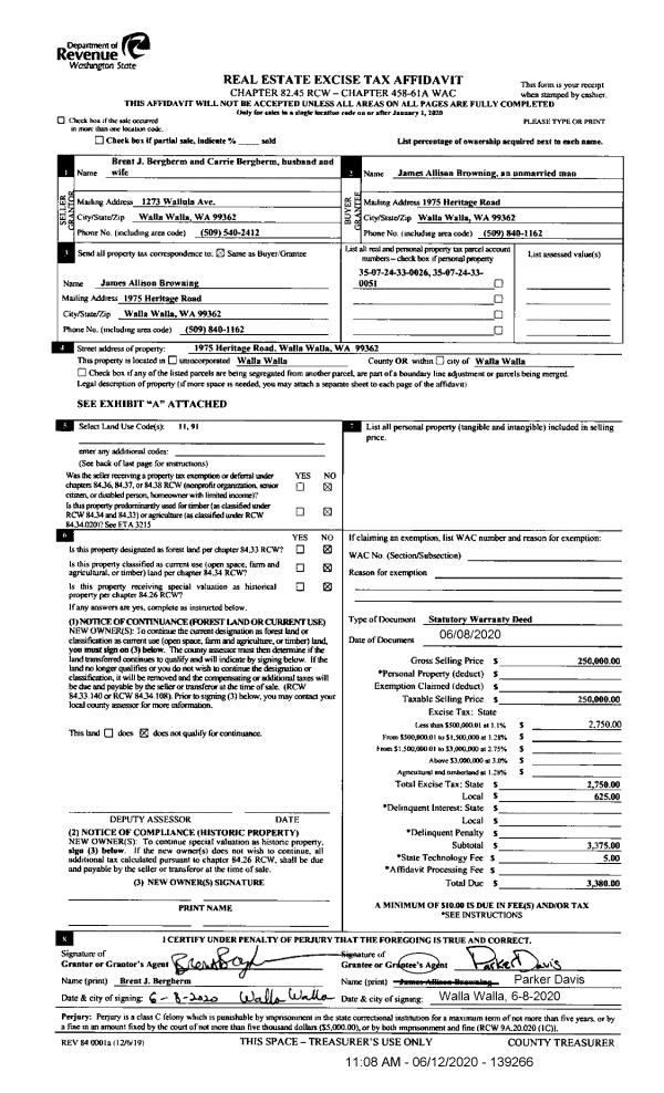
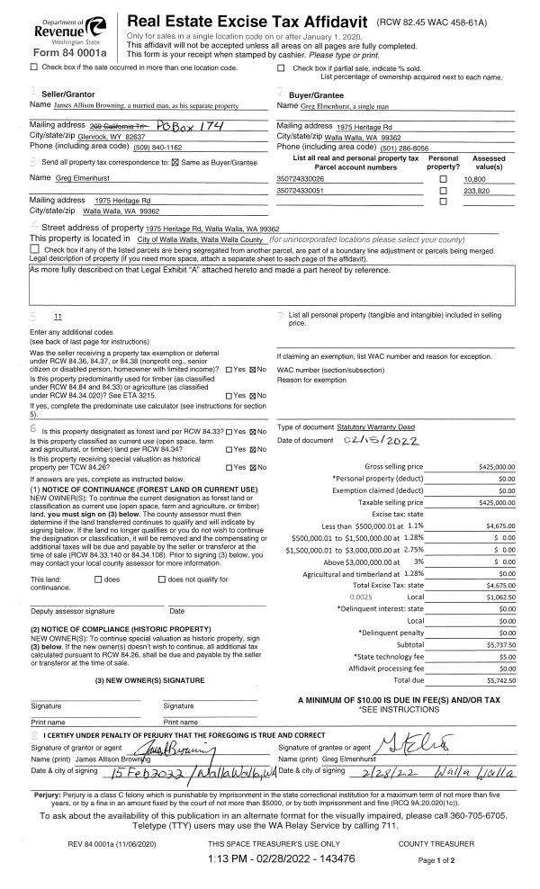
Deed and Sales History
| 1 | 02/28/2022 | SWD | STATUTORY WARRANTY DEED | BROWNING JAMES ALLISON | ELMENHURST GREG | | 2-PARCELS | $425,000.00 | 143476 | 2022-01742 |
|   | |
| 2 | 06/12/2020 | SWD | STATUTORY WARRANTY DEED | BERGHERM BRENT J & CARRIE | BROWNING JAMES ALLISON | | 2-PARCELS | $250,000.00 | 139266 | 2020-05311 |
|   | |
| 3 | 12/16/2008 | WARRANTY D | WARRANTY DEED | JAUSORO E GENE & ELEANOR | BERGHERM BRENT J & CARRIE | | | $154,700.00 | 116087 | 2008-12352 |
|   | |
| 4 | 10/21/1991 | QCD | QUIT CLAIM DEED | | | | | $12,500.00 | 0 | 1929-107376 |
|   | |
Payout Agreement
| No payout information available.. |