Property
Account |
| Property ID: | 32027 | Abbreviated Legal Description: | MC RAE LT 10 BLK 1 |
| Parcel Number: | 350736570110 | Agent Code: | |
| Type: | Real | | |
| Tax Area: | 75 - CP 250 | Land Use Code | 11 |
| Open Space: | N | DFL | N |
| Historic Property: | N | Remodel Property: | N |
| Multi-Family Redevelopment: | N | | |
| Township: | 7 | Section: | 36 |
| Range: | 35 |
Location |
| Address: | 1030 SE DATE AVE WA 99324 | Mapsco: | |
| Neighborhood: | A SFR | Map ID: | |
| Neighborhood CD: | 113011 |
Owner |
| Name: | LYBBERT DAVID | Owner ID: | 66305 |
| Mailing Address: | AMANDA NELSON 1030 SE DATE AVE COLLEGE PLACE, WA 99324 | % Ownership: | 100.0000000000% |
| | | Exemptions: | |
Taxes and Assessment Details
Property Tax Information as of
04/18/2026
Click on "Statement Details" to expand or collapse a tax statement.
* Please enter a valid date ** Please enter a valid date *
Statement Details |
| | TOTAL: | $0.00 | $0.00 | $0.00 | $0.00 | $0.00 | $0.00 |
|
| | $0.00 | $0.00 | $0.00 | $0.00 | $0.00 | $0.00 |
Values
| (+) Improvement Homesite Value: | + | $0 | |
| (+) Improvement Non-Homesite Value: | + | $308,460 | |
| (+) Land Homesite Value: | + | $0 | |
| (+) Land Non-Homesite Value: | + | $57,380 | |
| (+) Curr Use (HS): | + | $0 | $0 |
| (+) Curr Use (NHS): | + | $0 | $0 |
| | | -------------------------- | |
| (=) Market Value: | = | $365,840 | |
| (–) Productivity Loss: | – | $0 | |
| | | -------------------------- | |
| (=) Subtotal: | = | $365,840 | |
| (+) Senior Appraised Value: | + | $0 | |
| (+) Non-Senior Appraised Value: | + | $365,840 | |
| | | -------------------------- | |
| (=) Total Appraised Value: | = | $365,840 | |
| (–) Senior Exemption Loss: | – | $0 | |
| (–) Exemption Loss: | – | $0 | |
| | | -------------------------- | |
| (=) Taxable Value: | = | $365,840 | |
Taxing Jurisdiction
| Owner: | LYBBERT DAVID | | |
| % Ownership: | 100.0000000000% | | |
| Total Value: | $365,840 | | |
| Tax Area: | 75 - CP 250 |
| CERFD | CURRENT EXPENSE REFUND 010 | 0.0000000000 | $365,840 | $365,840 | $0.00 | | |
| CURREXP | CURRENT EXPENSE 010 | 1.0175366760 | $365,840 | $365,840 | $372.26 | | |
| HUMNSERV | HUMAN SERVICES 119 | 0.0250000000 | $365,840 | $365,840 | $9.15 | | |
| SLDREL | SOLDIERS RELIEF 121 | 0.0155990005 | $365,840 | $365,840 | $5.71 | | |
| COLLPLBOND | C OF CP BOND 644 | 0.4374241808 | $365,840 | $365,840 | $160.03 | | |
| COLLPLGEN | CITY OF CP 632 | 1.4453819216 | $365,840 | $365,840 | $528.78 | | |
| EMERGSER | EMS 147 | 0.3792580840 | $365,840 | $365,840 | $138.75 | | |
| EMSRFD | EMS REFUND 147 | 0.0000000000 | $365,840 | $365,840 | $0.00 | | |
| RURALLIB | RURAL LIBRARY 623 | 0.3710609029 | $365,840 | $365,840 | $135.75 | | |
| PORTRFD | PORT REFUND 640 | 0.0000000000 | $365,840 | $365,840 | $0.00 | | |
| PORTWWGEN | PORT OF WW 640 | 0.2460186015 | $365,840 | $365,840 | $90.00 | | |
| SD250BOND | SD #250 BOND 773 | 1.4560608159 | $365,840 | $365,840 | $532.69 | | |
| SD250GEN | SD #250 GENERAL 770 | 2.3880724087 | $365,840 | $365,840 | $873.65 | | |
| ST2 | STATE SCHOOL PART 2 600 | 0.8131451643 | $365,840 | $365,840 | $297.48 | | |
| STATESCHL | STATE SCHOOL 600 | 1.5158548041 | $365,840 | $365,840 | $554.56 | | |
| STREFUND | STATE REFUND LEVY 603 | 0.0000000000 | $365,840 | $365,840 | $0.00 | | |
| | Total Tax Rate: | 10.1104125603 | | | | | |
| | | | | Taxes w/Current Exemptions: | $3,698.81 | | |
| | | | | Taxes w/o Exemptions: | $3,698.81 | | |
Improvement / Building
| Improvement #1: | RESIDENTIAL | State Code: | 11 | 864.0 sqft | Value: | $308,460 |
| Exterior Wall: | PLYWOOD | Heating/Cooling: | WARM & COOLED AIR | | Number of Bathrooms: | 2 | Number of Bedrooms: | 4 | | Plumbing: | 9 | Roof Covering: | COMP SHINGLE |
|
| | Type | Description | Class CD | Sub Class CD | Year Built | Area |
| | MA | Main Area | 11 | 30 | 1970 | 864.0 |
| | SI1 | SITE IMPROVEMENT | 11 | 30 | 1970 | 1.5 |
| | BASE | BASEMENT | 11 | 30 | 1970 | 864.0 |
| | BPF | BASEMENT -PARTITIONED FINISH | 11 | 30 | 1970 | 864.0 |
| | ATG | Attached Garage | 11 | 30 | 1970 | 308.0 |
| | WOD | Wood Deck | 11 | 30 | 1970 | 96.0 |
Sketch
Property Image
Land
| 1 | RES 1 | Converted: Residential | 0.1951 | 8500.00 | 0.00 | 0.00 | 1.00 | $57,380 | $0 |
Roll Value History
| 2026 | N/A | N/A | N/A | N/A | N/A |
| 2025 | $293,040 | $85,000 | $0 | $378,040 | $378,040 |
| 2024 | $308,460 | $57,380 | $0 | $365,840 | $365,840 |
| 2023 | $308,460 | $57,380 | $0 | $365,840 | $365,840 |
| 2022 | $228,490 | $57,380 | $0 | $285,870 | $285,870 |
| 2021 | $152,330 | $57,380 | $0 | $209,710 | $209,710 |
| 2020 | $126,940 | $57,380 | $0 | $184,320 | $184,320 |
| 2019 | $138,420 | $45,900 | $0 | $184,320 | $184,320 |
| 2018 | $138,420 | $45,900 | $0 | $184,320 | $184,320 |
| 2017 | $125,840 | $45,900 | $0 | $171,740 | $171,740 |
| 2016 | $114,400 | $45,900 | $0 | $160,300 | $160,300 |
| 2015 | $114,400 | $45,900 | $0 | $160,300 | $160,300 |
| 2014 | $114,400 | $45,900 | $0 | $160,300 | $160,300 |
| 2013 | $114,400 | $45,900 | $0 | $160,300 | $160,300 |
| 2012 | $114,400 | $45,900 | $0 | $0 | $0 |
| 2011 | $114,400 | $45,900 | $0 | $0 | $0 |
| 2010 | $114,400 | $45,900 | $0 | $0 | $0 |
| 2009 | $132,200 | $45,900 | $0 | $0 | $0 |
| 2008 | $95,800 | $23,400 | $0 | $0 | $0 |
| 2007 | $95,800 | $23,400 | $0 | $0 | $0 |
Deed and Sales History
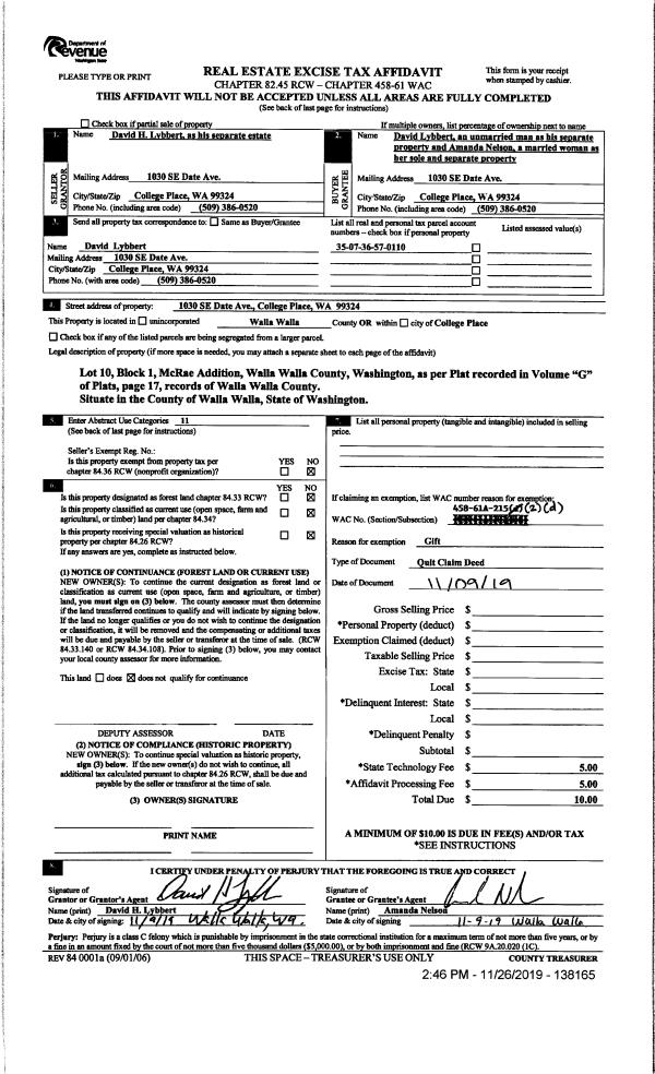
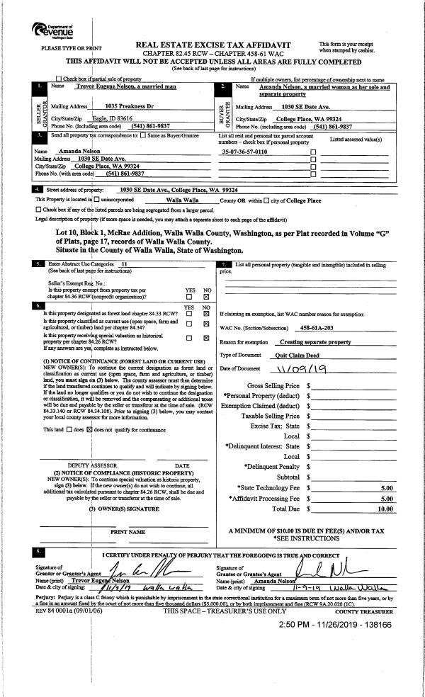
| 1 | 11/09/2019 | QCD | QUIT CLAIM DEED | NELSON TREVOR EUGENE | NELSON AMANDA | | | $0.00 | 138166 | 2019-09857 |
| 2 | 11/09/2019 | QCD | QUIT CLAIM DEED | LYBBERT DAVID H | LYBBERT DAVID | | | $0.00 | 138165 | 2019-09856 |
| 3 | 07/31/2018 | QCD | QUIT CLAIM DEED | LYBBERT DAVID H & CYNTHIA R | LYBBERT DAVID H | | | $0.00 | 135242 | 2018-06256 |
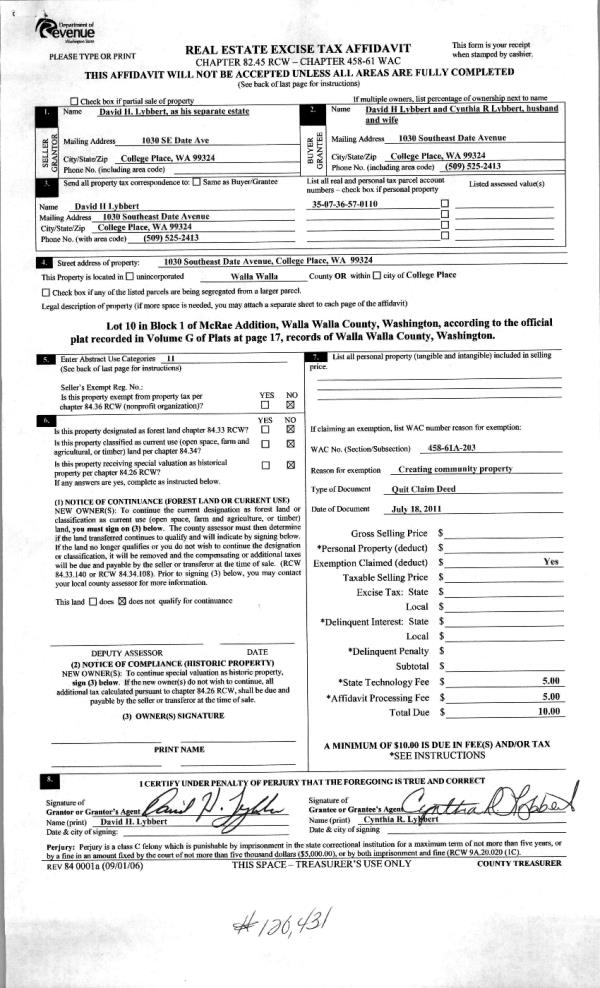
| 4 | 07/19/2011 | QCD | QUIT CLAIM DEED | LYBBERT, DAVID H | LYBBERT, DAVID H & CYNTHIA R | | | | 120431 | 2011-05605 |
| 5 | 12/13/2002 | QCD | QUIT CLAIM DEED | LYBBERT, ANNETTE M | LYBBERT, DAVID H & ANNETTE | | | | 101009 | 2002-14273 |
| 6 | 05/17/1996 | WARRANTY D | WARRANTY DEED | | | | | $104,000.00 | 86143 | 2419-604983 |
Payout Agreement
| No payout information available.. |