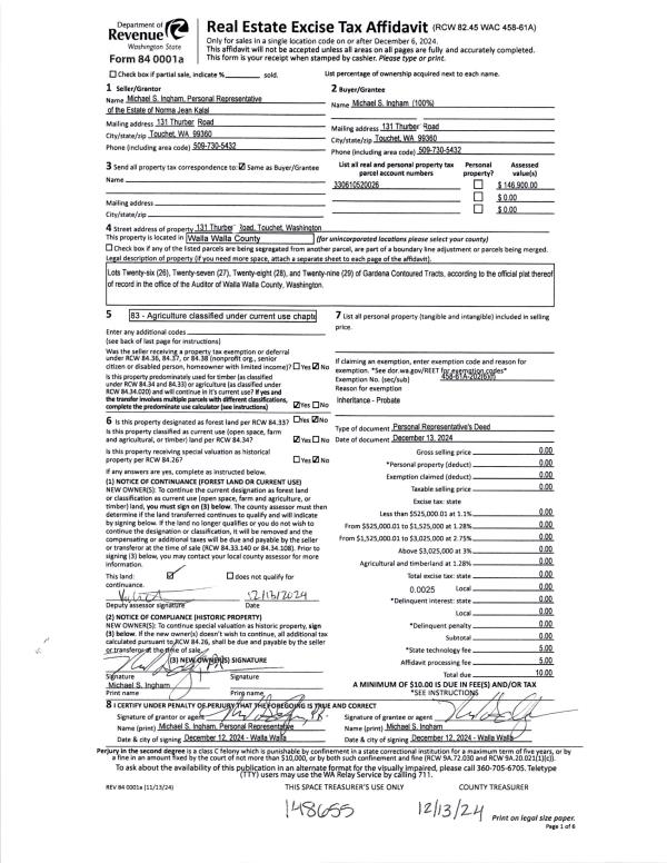
Property
Account |
| Property ID: | 32017 | Abbreviated Legal Description: | GARDENA CON'T TRACTS BLKS 26, 27, 28 & 29 |
| Parcel Number: | 330610520026 | Agent Code: | |
| Type: | Real | | |
| Tax Area: | 318 - 300-6-TM | Land Use Code | 83 |
| Open Space: | Y | DFL | N |
| Historic Property: | N | Remodel Property: | N |
| Multi-Family Redevelopment: | N | | |
| Township: | 6 | Section: | 10 |
| Range: | 33 |
Location |
| Address: | 131 THURBER RD WA 99360 | Mapsco: | |
| Neighborhood: | 0 Farm | Map ID: | |
| Neighborhood CD: | 2220 |
Owner |
| Name: | KALAL NORMA JEAN | Owner ID: | 61754 |
| Mailing Address: | % MICHAEL S INGHAM 1211 GARDENA CRK RD TOUCHET, WA 99360 | % Ownership: | 100.0000000000% |
| | | Exemptions: | |
Taxes and Assessment Details
Values
| (+) Improvement Homesite Value: | + | $0 | |
| (+) Improvement Non-Homesite Value: | + | $75,640 | |
| (+) Land Homesite Value: | + | $0 | |
| (+) Land Non-Homesite Value: | + | $0 | |
| (+) Curr Use (HS): | + | $60,000 | $60,000 |
| (+) Curr Use (NHS): | + | $42,150 | $11,200 |
| | | -------------------------- | |
| (=) Market Value: | = | $177,790 | |
| (–) Productivity Loss: | – | $30,950 | |
| | | -------------------------- | |
| (=) Subtotal: | = | $146,840 | |
| (+) Senior Appraised Value: | + | $0 | |
| (+) Non-Senior Appraised Value: | + | $146,840 | |
| | | -------------------------- | |
| (=) Total Appraised Value: | = | $146,840 | |
| (–) Senior Exemption Loss: | – | $0 | |
| (–) Exemption Loss: | – | $0 | |
| | | -------------------------- | |
| (=) Taxable Value: | = | $146,840 | |
Taxing Jurisdiction
| Owner: | KALAL NORMA JEAN | | |
| % Ownership: | 100.0000000000% | | |
| Total Value: | $177,790 | | |
| Tax Area: | 318 - 300-6-TM |
| CERFD | CURRENT EXPENSE REFUND 010 | 0.0000000000 | $146,840 | $146,840 | $0.00 | | |
| CURREXP | CURRENT EXPENSE 010 | 1.0175366760 | $146,840 | $146,840 | $149.42 | | |
| HUMNSERV | HUMAN SERVICES 119 | 0.0250000000 | $146,840 | $146,840 | $3.67 | | |
| SLDREL | SOLDIERS RELIEF 121 | 0.0155990005 | $146,840 | $146,840 | $2.29 | | |
| EMERGSER | EMS 147 | 0.3792580840 | $146,840 | $146,840 | $55.69 | | |
| EMSRFD | EMS REFUND 147 | 0.0000000000 | $146,840 | $146,840 | $0.00 | | |
| FD6EXP | FD #6 EXPENSE 693 | 0.6692985746 | $146,840 | $146,840 | $98.28 | | |
| RLBRFD | RURAL LIBRARY REFUND 623 | 0.0000000000 | $146,840 | $146,840 | $0.00 | | |
| RURALLIB | RURAL LIBRARY 623 | 0.3710609029 | $146,840 | $146,840 | $54.49 | | |
| PORTRFD | PORT REFUND 640 | 0.0000000000 | $146,840 | $146,840 | $0.00 | | |
| PORTWWGEN | PORT OF WW 640 | 0.2460186015 | $146,840 | $146,840 | $36.13 | | |
| SD300BOND | SD #300 BOND 783 | 1.8964951620 | $146,840 | $146,840 | $278.48 | | |
| SD300GEN | SD #300 GENERAL 780 | 2.1198322866 | $146,840 | $146,840 | $311.28 | | |
| ST2 | STATE SCHOOL PART 2 600 | 0.8131451643 | $146,840 | $146,840 | $119.40 | | |
| STATESCHL | STATE SCHOOL 600 | 1.5158548041 | $146,840 | $146,840 | $222.59 | | |
| STREFUND | STATE REFUND LEVY 603 | 0.0000000000 | $146,840 | $146,840 | $0.00 | | |
| COROAD | COUNTY ROAD 115 | 1.6549953990 | $146,840 | $146,840 | $243.02 | | |
| CRPRD | COUNTY ROAD REFUND 115 | 0.0000000000 | $146,840 | $146,840 | $0.00 | | |
| | Total Tax Rate: | 10.7240946555 | | | | | |
| | | | | Taxes w/Current Exemptions: | $1,574.74 | | |
| | | | | Taxes w/o Exemptions: | $1,574.74 | | |
Improvement / Building
| Improvement #1: | RESIDENTIAL | State Code: | 83 | 936.0 sqft | Value: | $75,640 |
| Exterior Wall: | SIDING | Heating/Cooling: | FORCED AIR | | Number of Bathrooms: | 1 | Number of Bedrooms: | 2 | | Plumbing: | 6 | Roof Covering: | GALVANIZED METAL |
|
| | Type | Description | Class CD | Sub Class CD | Year Built | Area |
| | MA | Main Area | 1 | 20 | 1910 | 936.0 |
| | SI1 | SITE IMPROVEMENT | 1 | 20 | 1910 | 1.0 |
| | BASE | BASEMENT | 1 | 20 | 1910 | 420.0 |
| | DTG | Detached Garage | 1 | 20 | 1910 | 288.0 |
| | SWP | Solid Wall Porch | 1 | 20 | 1910 | 98.0 |
| | HAYSHED | HAYSHED | 1 | 20 | 1910 | 3000.0 |
| | HAYSHED | HAYSHED | 1 | 20 | 1910 | 1000.0 |
| | HAYSHED | HAYSHED | 1 | 20 | 1910 | 200.0 |
Sketch
Property Image
Land
| 1 | 4000-C2-I | 4000 C2 Irrigated | 8.0000 | 0.00 | 0.00 | 0.00 | 1.00 | $32,000 | $9,070 |
| 2 | 60000-HS | Homesite 60000 | 1.0000 | 0.00 | 0.00 | 0.00 | 1.00 | $60,000 | $60,000 |
| 3 | C2-I | Class 2 Irrigated | 1.8800 | 0.00 | 0.00 | 0.00 | 1.00 | $10,150 | $2,130 |
Roll Value History
| 2026 | N/A | N/A | N/A | N/A | N/A |
| 2025 | $75,640 | $102,900 | $71,050 | $146,690 | $146,690 |
| 2024 | $75,640 | $102,530 | $71,260 | $146,900 | $146,900 |
| 2023 | $75,640 | $102,150 | $71,200 | $146,840 | $146,840 |
| 2022 | $75,640 | $101,400 | $70,980 | $146,620 | $146,620 |
| 2021 | $75,640 | $100,460 | $71,020 | $146,660 | $146,660 |
| 2020 | $53,800 | $73,770 | $46,240 | $100,040 | $100,040 |
| 2019 | $53,800 | $73,020 | $46,600 | $100,400 | $100,400 |
| 2018 | $53,800 | $72,830 | $46,820 | $100,620 | $100,620 |
| 2017 | $53,800 | $72,830 | $47,190 | $100,990 | $100,990 |
| 2016 | $53,800 | $72,830 | $47,240 | $101,040 | $101,040 |
| 2015 | $53,800 | $72,080 | $46,140 | $99,940 | $99,940 |
| 2014 | $53,800 | $72,080 | $46,140 | $99,940 | $99,940 |
| 2013 | $53,800 | $71,900 | $9,592 | $98,400 | $98,400 |
| 2012 | $53,700 | $42,600 | $0 | $0 | $0 |
| 2011 | $51,800 | $38,000 | $0 | $0 | $0 |
| 2010 | $49,600 | $38,100 | $0 | $0 | $0 |
| 2009 | $65,200 | $38,000 | $0 | $0 | $0 |
| 2008 | $52,700 | $38,800 | $0 | $0 | $0 |
| 2007 | $52,700 | $38,800 | $0 | $0 | $0 |
Deed and Sales History
| 1 | 01/13/2025 | | | KALAL NORMA JEAN | INGHAM MICHAEL S | | | | 0 | |
| 2 | 09/20/2017 | DEATH CERT | DEATH CERTIFICATE | KALAL ROBERT J | | | | | 0 | 2017-07415 |
| 3 | 09/20/2017 | COMMUNITY | COMMUNITY PROPERTY AGREEMENT | KALAL ROBERT JAMES & NORMA JEAN MAJOR | KALAL ROBERT JAMES & NORMA JEAN MAJOR | | | | 0 | 2017-07414 |
| 4 | 01/01/1958 | WARRANTY D | WARRANTY DEED | | | | | $0.00 | 0 | 2840-402911 |
Payout Agreement
| No payout information available.. |