Property
Account |
| Property ID: | 31994 | Abbreviated Legal Description: | LENNONS & WILDWOOD LOT 4 BLK 5 |
| Parcel Number: | 360721630504 | Agent Code: | |
| Type: | Real | | |
| Tax Area: | 1 - OL-140-F | Land Use Code | 11 |
| Open Space: | N | DFL | N |
| Historic Property: | N | Remodel Property: | N |
| Multi-Family Redevelopment: | N | | |
| Township: | 7 | Section: | 21 |
| Range: | 36 |
Location |
| Address: | 1048 FRANCIS AVE WA 99362 | Mapsco: | |
| Neighborhood: | G-SFR | Map ID: | |
| Neighborhood CD: | 514011 |
Owner |
| Name: | KUNDU PARTHA SAROTHI & GRETCHEN JILL | Owner ID: | 71430 |
| Mailing Address: | 1048 FRANCIS AVE WALLA WALLA, WA 99362 | % Ownership: | 100.0000000000% |
| | | Exemptions: | |
Taxes and Assessment Details
Values
| (+) Improvement Homesite Value: | + | $731,470 | |
| (+) Improvement Non-Homesite Value: | + | $0 | |
| (+) Land Homesite Value: | + | $43,500 | |
| (+) Land Non-Homesite Value: | + | $0 | |
| (+) Curr Use (HS): | + | $0 | $0 |
| (+) Curr Use (NHS): | + | $0 | $0 |
| | | -------------------------- | |
| (=) Market Value: | = | $774,970 | |
| (–) Productivity Loss: | – | $0 | |
| | | -------------------------- | |
| (=) Subtotal: | = | $774,970 | |
| (+) Senior Appraised Value: | + | $0 | |
| (+) Non-Senior Appraised Value: | + | $774,970 | |
| | | -------------------------- | |
| (=) Total Appraised Value: | = | $774,970 | |
| (–) Senior Exemption Loss: | – | $0 | |
| (–) Exemption Loss: | – | $0 | |
| | | -------------------------- | |
| (=) Taxable Value: | = | $774,970 | |
Taxing Jurisdiction
| Owner: | KUNDU PARTHA SAROTHI & GRETCHEN JILL | | |
| % Ownership: | 100.0000000000% | | |
| Total Value: | $774,970 | | |
| Tax Area: | 1 - OL-140-F |
| CERFD | CURRENT EXPENSE REFUND 010 | 0.0000000000 | $774,970 | $774,970 | $0.00 | | |
| CURREXP | CURRENT EXPENSE 010 | 1.0175366760 | $774,970 | $774,970 | $788.56 | | |
| HUMNSERV | HUMAN SERVICES 119 | 0.0250000000 | $774,970 | $774,970 | $19.37 | | |
| SLDREL | SOLDIERS RELIEF 121 | 0.0155990005 | $774,970 | $774,970 | $12.09 | | |
| EMERGSER | EMS 147 | 0.3792580840 | $774,970 | $774,970 | $293.91 | | |
| EMSRFD | EMS REFUND 147 | 0.0000000000 | $774,970 | $774,970 | $0.00 | | |
| PORTRFD | PORT REFUND 640 | 0.0000000000 | $774,970 | $774,970 | $0.00 | | |
| PORTWWGEN | PORT OF WW 640 | 0.2460186015 | $774,970 | $774,970 | $190.66 | | |
| SD140BOND | SD #140 BOND 764 | 0.8342371393 | $774,970 | $774,970 | $646.51 | | |
| SD140GEN | SD #140 GENERAL 760 | 2.0646500647 | $774,970 | $774,970 | $1,600.04 | | |
| ST2 | STATE SCHOOL PART 2 600 | 0.8131451643 | $774,970 | $774,970 | $630.16 | | |
| STATESCHL | STATE SCHOOL 600 | 1.5158548041 | $774,970 | $774,970 | $1,174.74 | | |
| STREFUND | STATE REFUND LEVY 603 | 0.0000000000 | $774,970 | $774,970 | $0.00 | | |
| CWWBOND | C OF WW BOND 643 | 0.2760494372 | $774,970 | $774,970 | $213.93 | | |
| CWWGEN | CITY OF WW 631 | 1.6100204973 | $774,970 | $774,970 | $1,247.72 | | |
| CWWRFD | CITY OF WALLA WALLA REFUND 631 | 0.0000000000 | $774,970 | $774,970 | $0.00 | | |
| | Total Tax Rate: | 8.7973694689 | | | | | |
| | | | | Taxes w/Current Exemptions: | $6,817.69 | | |
| | | | | Taxes w/o Exemptions: | $6,817.69 | | |
Improvement / Building
| Improvement #1: | RESIDENTIAL | State Code: | 11 | 1117.0 sqft | Value: | $731,470 |
| Exterior Wall: | CEMENT FIBER | Heating/Cooling: | HEAT PUMP | | Number of Bathrooms: | 3 | Number of Bedrooms: | 3 | | Plumbing: | 14 | Roof Covering: | COMP SHINGLE |
|
| | Type | Description | Class CD | Sub Class CD | Year Built | Area |
| | MA | Main Area | 1 | 55 | 1938 | 1117.0 |
| | SI1 | SITE IMPROVEMENT | 1 | 55 | 1938 | 3.0 |
| | BASE | BASEMENT | 1 | 55 | 1938 | 1052.0 |
| | BPF | BASEMENT -PARTITIONED FINISH | 1 | 55 | 2018 | 1052.0 |
| | S1F | Single One Story Fireplace | 1 | 55 | 1938 | 1.0 |
| | RPS | PORCH W/STEPS,ROOF | 1 | 55 | 2018 | 151.0 |
| | WOD | Wood Deck | 1 | 55 | 2018 | 418.0 |
| | DTG | Detached Garage | 1 | 55 | 1938 | 234.0 |
Sketch
Property Image
Land
| 1 | RES 1 | Converted: Residential | 0.1377 | 6000.00 | 0.00 | 0.00 | 1.00 | $43,500 | $0 |
Roll Value History
| 2026 | N/A | N/A | N/A | N/A | N/A |
| 2025 | $708,970 | $66,000 | $0 | $774,970 | $774,970 |
| 2024 | $708,970 | $66,000 | $0 | $774,970 | $774,970 |
| 2023 | $731,470 | $43,500 | $0 | $774,970 | $774,970 |
| 2022 | $664,970 | $43,500 | $0 | $708,470 | $708,470 |
| 2021 | $332,490 | $43,500 | $0 | $375,990 | $375,990 |
| 2020 | $302,260 | $43,500 | $0 | $345,760 | $345,760 |
| 2019 | $302,260 | $43,500 | $0 | $345,760 | $345,760 |
| 2018 | $126,300 | $43,500 | $0 | $169,800 | $169,800 |
| 2017 | $132,300 | $27,000 | $0 | $159,300 | $159,300 |
| 2016 | $120,270 | $27,000 | $0 | $147,270 | $147,270 |
| 2015 | $109,340 | $27,000 | $0 | $136,340 | $136,340 |
| 2014 | $99,400 | $27,000 | $0 | $126,400 | $1,000 |
| 2013 | $99,400 | $27,000 | $0 | $126,400 | $1,000 |
| 2012 | $101,500 | $27,000 | $0 | $0 | $0 |
| 2011 | $101,500 | $27,000 | $0 | $0 | $0 |
| 2010 | $95,400 | $27,000 | $0 | $0 | $0 |
| 2009 | $109,000 | $27,000 | $0 | $0 | $0 |
| 2008 | $80,600 | $24,000 | $0 | $0 | $0 |
| 2007 | $80,600 | $24,000 | $0 | $0 | $0 |
Deed and Sales History
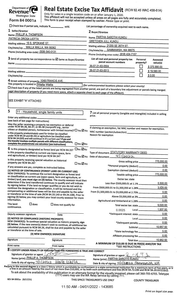
| 1 | 04/01/2022 | SWD | STATUTORY WARRANTY DEED | THOMPSON PHILLIP A | KUNDU PARTHA SAROTHI & GRETCHEN JILL | | 2-PARCELS | $775,000.00 | 143685 | 2022-02732 |
|   | |
| 2 | 12/05/2017 | QCD | QUIT CLAIM DEED | THOMPSON PHILLIP A | THOMPSON PHILLIP A | | | $0.00 | 133748 | 2017-09797 |
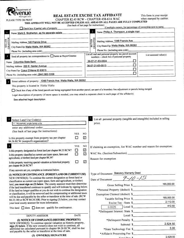
| 3 | 09/11/2015 | SWD | STATUTORY WARRANTY DEED | BROTHERTON MARK E | THOMPSON PHILLIP A | | 2-PARCELS | $165,000.00 | 128801 | 2015-07958 |
|   | |
| 4 | 08/18/2015 | DPR | DEED OF PERSONAL REPRESENTATIVE | BROTHERTON MARJORIE LIFE ESTATE | BROTHERTON MARK E | 2 PARCELS | | $0.00 | 128648 | 2015-07239 |
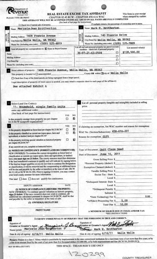
| 5 | 06/23/2011 | QCD | QUIT CLAIM DEED | BROTHERTON, MARJORIE J | BROTHERTON, MARJORIE LIFE ESTA | | | | 120299 | 2011-04889 |
| 6 | 01/01/1962 | WARRANTY D | WARRANTY DEED | | | | | $10,000.00 | 0 | 3040-442725 |
Payout Agreement
| No payout information available.. |