Property
Account |
| Property ID: | 31982 | Abbreviated Legal Description: | ALDERBROOK PARK LOT 17 BLK 2 |
| Parcel Number: | 360722510217 | Agent Code: | |
| Type: | Real | | |
| Tax Area: | 6 - OL-140-F-FB | Land Use Code | 11 |
| Open Space: | N | DFL | N |
| Historic Property: | N | Remodel Property: | N |
| Multi-Family Redevelopment: | N | | |
| Township: | 7 | Section: | 22 |
| Range: | 36 |
Location |
| Address: | 1931 CELESTIA DR WA 99362 | Mapsco: | |
| Neighborhood: | A SFR | Map ID: | |
| Neighborhood CD: | 413011 |
Owner |
| Name: | BRANNAN JASON D & MORGAN L | Owner ID: | 55531 |
| Mailing Address: | 1931 CELESTIA DR WALLA WALLA, WA 99362 | % Ownership: | 100.0000000000% |
| | | Exemptions: | |
Taxes and Assessment Details
Values
| (+) Improvement Homesite Value: | + | $0 | |
| (+) Improvement Non-Homesite Value: | + | $221,300 | |
| (+) Land Homesite Value: | + | $0 | |
| (+) Land Non-Homesite Value: | + | $54,400 | |
| (+) Curr Use (HS): | + | $0 | $0 |
| (+) Curr Use (NHS): | + | $0 | $0 |
| | | -------------------------- | |
| (=) Market Value: | = | $275,700 | |
| (–) Productivity Loss: | – | $0 | |
| | | -------------------------- | |
| (=) Subtotal: | = | $275,700 | |
| (+) Senior Appraised Value: | + | $0 | |
| (+) Non-Senior Appraised Value: | + | $275,700 | |
| | | -------------------------- | |
| (=) Total Appraised Value: | = | $275,700 | |
| (–) Senior Exemption Loss: | – | $0 | |
| (–) Exemption Loss: | – | $0 | |
| | | -------------------------- | |
| (=) Taxable Value: | = | $275,700 | |
Taxing Jurisdiction
| Owner: | BRANNAN JASON D & MORGAN L | | |
| % Ownership: | 100.0000000000% | | |
| Total Value: | $275,700 | | |
| Tax Area: | 6 - OL-140-F-FB |
| CERFD | CURRENT EXPENSE REFUND 010 | 0.0000000000 | $275,700 | $275,700 | $0.00 | | |
| CURREXP | CURRENT EXPENSE 010 | 1.0175366760 | $275,700 | $275,700 | $280.53 | | |
| HUMNSERV | HUMAN SERVICES 119 | 0.0250000000 | $275,700 | $275,700 | $6.89 | | |
| SLDREL | SOLDIERS RELIEF 121 | 0.0155990005 | $275,700 | $275,700 | $4.30 | | |
| EMERGSER | EMS 147 | 0.3792580840 | $275,700 | $275,700 | $104.56 | | |
| EMSRFD | EMS REFUND 147 | 0.0000000000 | $275,700 | $275,700 | $0.00 | | |
| PORTRFD | PORT REFUND 640 | 0.0000000000 | $275,700 | $275,700 | $0.00 | | |
| PORTWWGEN | PORT OF WW 640 | 0.2460186015 | $275,700 | $275,700 | $67.83 | | |
| SD140BOND | SD #140 BOND 764 | 0.8342371393 | $275,700 | $275,700 | $230.00 | | |
| SD140GEN | SD #140 GENERAL 760 | 2.0646500647 | $275,700 | $275,700 | $569.22 | | |
| ST2 | STATE SCHOOL PART 2 600 | 0.8131451643 | $275,700 | $275,700 | $224.18 | | |
| STATESCHL | STATE SCHOOL 600 | 1.5158548041 | $275,700 | $275,700 | $417.92 | | |
| STREFUND | STATE REFUND LEVY 603 | 0.0000000000 | $275,700 | $275,700 | $0.00 | | |
| CWWBOND | C OF WW BOND 643 | 0.2760494372 | $275,700 | $275,700 | $76.11 | | |
| CWWGEN | CITY OF WW 631 | 1.6100204973 | $275,700 | $275,700 | $443.88 | | |
| CWWRFD | CITY OF WALLA WALLA REFUND 631 | 0.0000000000 | $275,700 | $275,700 | $0.00 | | |
| | Total Tax Rate: | 8.7973694689 | | | | | |
| | | | | Taxes w/Current Exemptions: | $2,425.42 | | |
| | | | | Taxes w/o Exemptions: | $2,425.42 | | |
Improvement / Building
| Improvement #1: | RESIDENTIAL | State Code: | 11 | 768.0 sqft | Value: | $221,300 |
| Exterior Wall: | STUCCO | Heating/Cooling: | WARM & COOLED AIR | | Number of Bathrooms: | 1 | Number of Bedrooms: | 2 | | Plumbing: | 6 | Roof Covering: | COMP SHINGLE |
|
| | Type | Description | Class CD | Sub Class CD | Year Built | Area |
| | MA | Main Area | 1 | 30 | 1951 | 768.0 |
| | CPC | COVERED CARPORT/PATIO | 1 | 30 | 0 | 96.0 |
| | SI1 | SITE IMPROVEMENT | 1 | 30 | 0 | 2.0 |
| | BASE | BASEMENT | 1 | 30 | 1951 | 768.0 |
| | OPS | OPEN PORCH W/STEPS | 1 | | 1951 | 28.0 |
| | BPF | BASEMENT -PARTITIONED FINISH | 1 | 30 | 1951 | 768.0 |
| | DTG | Detached Garage | 1 | 30 | 1951 | 432.0 |
Sketch
Property Image
Land
| 1 | RES 1 | Converted: Residential | 0.1561 | 6800.00 | 0.00 | 0.00 | 1.00 | $54,400 | $0 |
Roll Value History
| 2026 | N/A | N/A | N/A | N/A | N/A |
| 2025 | $221,300 | $54,400 | $0 | $275,700 | $275,700 |
| 2024 | $221,300 | $54,400 | $0 | $275,700 | $275,700 |
| 2023 | $221,300 | $54,400 | $0 | $275,700 | $275,700 |
| 2022 | $236,550 | $35,700 | $0 | $272,250 | $272,250 |
| 2021 | $163,140 | $35,700 | $0 | $198,840 | $198,840 |
| 2020 | $125,490 | $35,700 | $0 | $161,190 | $161,190 |
| 2019 | $125,490 | $35,700 | $0 | $161,190 | $161,190 |
| 2018 | $104,580 | $35,700 | $0 | $140,280 | $140,280 |
| 2017 | $99,600 | $35,700 | $0 | $135,300 | $135,300 |
| 2016 | $97,570 | $27,200 | $0 | $124,770 | $124,770 |
| 2015 | $97,570 | $27,200 | $0 | $124,770 | $124,770 |
| 2014 | $88,700 | $27,200 | $0 | $115,900 | $115,900 |
| 2013 | $88,700 | $27,200 | $0 | $115,900 | $115,900 |
| 2012 | $88,700 | $27,200 | $0 | $0 | $0 |
| 2011 | $66,100 | $27,200 | $0 | $0 | $0 |
| 2010 | $66,100 | $27,200 | $0 | $0 | $0 |
| 2009 | $76,500 | $27,200 | $0 | $0 | $0 |
| 2008 | $76,500 | $27,200 | $0 | $0 | $0 |
| 2007 | $76,500 | $27,200 | $0 | $0 | $0 |
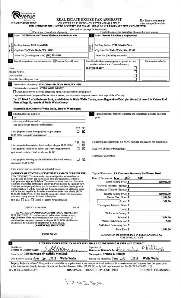
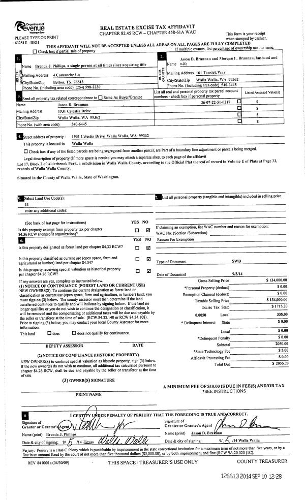
Deed and Sales History
| 1 | 09/03/2014 | SWD | STATUTORY WARRANTY DEED | PHILLIPS BRENDA J | BRANNAN JASON D & MORGAN L | | | $134,000.00 | 126613 | 2014-06627 |
| 2 | 10/21/2013 | WARRANTY D | WARRANTY DEED | MC MANN, JEFF & TAMMY | PHILLIPS, BRENDA J | | | $0.00 | 120285 | 2013-10535 |
| 3 | 06/20/2011 | WARRANTY D | WARRANTY DEED | MC MANN, JEFF & TAMMY | PHILLIPS, BRENDA J | | | $120,000.00 | 120285 | 2011-04791 |
| 4 | 09/07/2010 | WARRANTY D | WARRANTY DEED | SASSER, JAMIE R | MC MANN, JEFF | | | $69,000.00 | 118976 | 2010-07039 |
| 5 | 05/01/1998 | WARRANTY D | WARRANTY DEED | | | | | $75,300.00 | 90334 | 2669-804810 |
Payout Agreement
| No payout information available.. |