Property
Account |
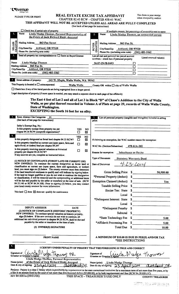
| Property ID: | 31915 | Abbreviated Legal Description: | CHASE LOT 3 & E 4' OF LOT 2 BLK 4 LESS ALLEY |
| Parcel Number: | 360729580403 | Agent Code: | |
| Type: | Real | | |
| Tax Area: | 1 - OL-140-F | Land Use Code | 12 |
| Open Space: | N | DFL | N |
| Historic Property: | N | Remodel Property: | N |
| Multi-Family Redevelopment: | N | | |
| Township: | 7 | Section: | 29 |
| Range: | 36 |
Location |
| Address: | 143 W MAPLE ST WA 99362 | Mapsco: | |
| Neighborhood: | Fair Res | Map ID: | |
| Neighborhood CD: | 612011 |
Owner |
| Name: | THOMAS LINDA MADGE | Owner ID: | 54698 |
| Mailing Address: | 843 FOX ST ASHLAND, OR 97520 | % Ownership: | 100.0000000000% |
| | | Exemptions: | |
Taxes and Assessment Details
Values
| (+) Improvement Homesite Value: | + | $0 | |
| (+) Improvement Non-Homesite Value: | + | $179,600 | |
| (+) Land Homesite Value: | + | $0 | |
| (+) Land Non-Homesite Value: | + | $70,260 | |
| (+) Curr Use (HS): | + | $0 | $0 |
| (+) Curr Use (NHS): | + | $0 | $0 |
| | | -------------------------- | |
| (=) Market Value: | = | $249,860 | |
| (–) Productivity Loss: | – | $0 | |
| | | -------------------------- | |
| (=) Subtotal: | = | $249,860 | |
| (+) Senior Appraised Value: | + | $0 | |
| (+) Non-Senior Appraised Value: | + | $249,860 | |
| | | -------------------------- | |
| (=) Total Appraised Value: | = | $249,860 | |
| (–) Senior Exemption Loss: | – | $0 | |
| (–) Exemption Loss: | – | $0 | |
| | | -------------------------- | |
| (=) Taxable Value: | = | $249,860 | |
Taxing Jurisdiction
| Owner: | THOMAS LINDA MADGE | | |
| % Ownership: | 100.0000000000% | | |
| Total Value: | $249,860 | | |
| Tax Area: | 1 - OL-140-F |
| CERFD | CURRENT EXPENSE REFUND 010 | 0.0000000000 | $249,860 | $249,860 | $0.00 | | |
| CURREXP | CURRENT EXPENSE 010 | 1.0175366760 | $249,860 | $249,860 | $254.24 | | |
| HUMNSERV | HUMAN SERVICES 119 | 0.0250000000 | $249,860 | $249,860 | $6.25 | | |
| SLDREL | SOLDIERS RELIEF 121 | 0.0155990005 | $249,860 | $249,860 | $3.90 | | |
| EMERGSER | EMS 147 | 0.3792580840 | $249,860 | $249,860 | $94.76 | | |
| EMSRFD | EMS REFUND 147 | 0.0000000000 | $249,860 | $249,860 | $0.00 | | |
| PORTRFD | PORT REFUND 640 | 0.0000000000 | $249,860 | $249,860 | $0.00 | | |
| PORTWWGEN | PORT OF WW 640 | 0.2460186015 | $249,860 | $249,860 | $61.47 | | |
| SD140BOND | SD #140 BOND 764 | 0.8342371393 | $249,860 | $249,860 | $208.44 | | |
| SD140GEN | SD #140 GENERAL 760 | 2.0646500647 | $249,860 | $249,860 | $515.87 | | |
| ST2 | STATE SCHOOL PART 2 600 | 0.8131451643 | $249,860 | $249,860 | $203.17 | | |
| STATESCHL | STATE SCHOOL 600 | 1.5158548041 | $249,860 | $249,860 | $378.75 | | |
| STREFUND | STATE REFUND LEVY 603 | 0.0000000000 | $249,860 | $249,860 | $0.00 | | |
| CWWBOND | C OF WW BOND 643 | 0.2760494372 | $249,860 | $249,860 | $68.97 | | |
| CWWGEN | CITY OF WW 631 | 1.6100204973 | $249,860 | $249,860 | $402.28 | | |
| CWWRFD | CITY OF WALLA WALLA REFUND 631 | 0.0000000000 | $249,860 | $249,860 | $0.00 | | |
| | Total Tax Rate: | 8.7973694689 | | | | | |
| | | | | Taxes w/Current Exemptions: | $2,198.10 | | |
| | | | | Taxes w/o Exemptions: | $2,198.10 | | |
Improvement / Building
| Improvement #1: | RESIDENTIAL | State Code: | 12 | 916.0 sqft | Value: | $173,350 |
| Exterior Wall: | STUCCO | Heating/Cooling: | FORCED AIR | | Number of Bathrooms: | 1 | Number of Bedrooms: | 2 | | Plumbing: | 7 | Roof Covering: | COMP SHINGLE |
|
| | Type | Description | Class CD | Sub Class CD | Year Built | Area |
| | MA | Main Area | 1 | 25 | 1900 | 916.0 |
| | SI1 | SITE IMPROVEMENT | 1 | 25 | 1900 | 1.0 |
| | BASE | BASEMENT | 1 | 25 | 1900 | 916.0 |
| | UTST | Utility Storage Shed | 1 | 25 | 2007 | 380.0 |
| | GIF | GARAGE INTERIOR FINISH | 1 | 25 | 2007 | 380.0 |
| | HBAT | HALF BATH | 1 | 25 | 2007 | 1.0 |
| | DTG | Detached Garage | 1 | 25 | 1900 | 342.0 |
| | SWP | Solid Wall Porch | 1 | 25 | 1900 | 98.0 |
| | RPS | PORCH W/STEPS,ROOF | 1 | 25 | 1900 | 35.0 |
| Improvement #2: | RESIDENTIAL | State Code: | 12 | 600.0 sqft | Value: | $6,250 |
| Exterior Wall: | SHINGLE | Heating/Cooling: | FLOOR FURNACE | | Number of Bathrooms: | 1 | Number of Bedrooms: | 1 | | Plumbing: | 6 | Roof Covering: | COMP SHINGLE |
|
| | Type | Description | Class CD | Sub Class CD | Year Built | Area |
| | MA | Main Area | 1 | 20 | 1900 | 600.0 |
| | SI1 | SITE IMPROVEMENT | 1 | 20 | 1900 | 1.0 |
| | RPS | PORCH W/STEPS,ROOF | 1 | 20 | 1900 | 12.0 |
Sketch
| No sketches available for this property. |
Property Image
Land
| 1 | RES 1 | Converted: Residential | 0.3009 | 13108.00 | 0.00 | 0.00 | 1.00 | $70,260 | $0 |
Roll Value History
| 2026 | N/A | N/A | N/A | N/A | N/A |
| 2025 | $170,410 | $88,220 | $0 | $258,630 | $258,630 |
| 2024 | $188,580 | $70,260 | $0 | $258,840 | $258,840 |
| 2023 | $179,600 | $70,260 | $0 | $249,860 | $249,860 |
| 2022 | $179,600 | $55,320 | $0 | $234,920 | $234,920 |
| 2021 | $148,680 | $55,320 | $0 | $204,000 | $204,000 |
| 2020 | $123,880 | $55,320 | $0 | $179,200 | $179,200 |
| 2019 | $123,880 | $55,320 | $0 | $179,200 | $179,200 |
| 2018 | $92,840 | $49,800 | $0 | $142,640 | $142,640 |
| 2017 | $92,840 | $49,800 | $0 | $142,640 | $142,640 |
| 2016 | $84,400 | $49,800 | $0 | $134,200 | $134,200 |
| 2015 | $84,400 | $49,800 | $0 | $134,200 | $134,200 |
| 2014 | $84,400 | $49,800 | $0 | $134,200 | $134,200 |
| 2013 | $84,400 | $49,800 | $0 | $134,200 | $134,200 |
| 2012 | $83,700 | $49,800 | $0 | $0 | $0 |
| 2011 | $7,800 | $49,800 | $0 | $0 | $0 |
| 2010 | $7,800 | $49,800 | $0 | $0 | $0 |
| 2009 | $98,500 | $49,800 | $0 | $0 | $0 |
| 2008 | $98,500 | $49,800 | $0 | $0 | $0 |
| 2007 | $70,500 | $20,900 | $0 | $0 | $0 |
Deed and Sales History
| 1 | 04/28/2014 | SWD | STATUTORY WARRANTY DEED | RIEHL JACK R | THOMAS LINDA MADGE | | | $50,000.00 | 125771 | 2014-02800 |
| 2 | 07/24/1985 | QCD | QUIT CLAIM DEED | | | | | $20,000.00 | 0 | 1518-504880 |
Payout Agreement
| No payout information available.. |