Property
Account |
| Property ID: | 3191 | Abbreviated Legal Description: | HARVEST MEADOWS LOT 35 BLK 2 |
| Parcel Number: | 350601520235 | Agent Code: | |
| Type: | Real | | |
| Tax Area: | 75 - CP 250 | Land Use Code | 11 |
| Open Space: | N | DFL | N |
| Historic Property: | N | Remodel Property: | N |
| Multi-Family Redevelopment: | N | | |
| Township: | 6 | Section: | 1 |
| Range: | 35 |
Location |
| Address: | 785 SE HARVEST DR WA 99324 | Mapsco: | |
| Neighborhood: | G SFR Rural/City Inf | Map ID: | |
| Neighborhood CD: | 114012 |
Owner |
| Name: | MELAHN MARK A & JUDY E | Owner ID: | 60827 |
| Mailing Address: | 785 SE HARVEST DR COLLEGE PLACE, WA 99324 | % Ownership: | 100.0000000000% |
| | | Exemptions: | |
Taxes and Assessment Details
Values
| (+) Improvement Homesite Value: | + | $0 | |
| (+) Improvement Non-Homesite Value: | + | $374,140 | |
| (+) Land Homesite Value: | + | $0 | |
| (+) Land Non-Homesite Value: | + | $75,000 | |
| (+) Curr Use (HS): | + | $0 | $0 |
| (+) Curr Use (NHS): | + | $0 | $0 |
| | | -------------------------- | |
| (=) Market Value: | = | $449,140 | |
| (–) Productivity Loss: | – | $0 | |
| | | -------------------------- | |
| (=) Subtotal: | = | $449,140 | |
| (+) Senior Appraised Value: | + | $0 | |
| (+) Non-Senior Appraised Value: | + | $449,140 | |
| | | -------------------------- | |
| (=) Total Appraised Value: | = | $449,140 | |
| (–) Senior Exemption Loss: | – | $0 | |
| (–) Exemption Loss: | – | $0 | |
| | | -------------------------- | |
| (=) Taxable Value: | = | $449,140 | |
Taxing Jurisdiction
| Owner: | MELAHN MARK A & JUDY E | | |
| % Ownership: | 100.0000000000% | | |
| Total Value: | $449,140 | | |
| Tax Area: | 75 - CP 250 |
| CERFD | CURRENT EXPENSE REFUND 010 | 0.0000000000 | $449,140 | $449,140 | $0.00 | | |
| CURREXP | CURRENT EXPENSE 010 | 1.0175366760 | $449,140 | $449,140 | $457.02 | | |
| HUMNSERV | HUMAN SERVICES 119 | 0.0250000000 | $449,140 | $449,140 | $11.23 | | |
| SLDREL | SOLDIERS RELIEF 121 | 0.0155990005 | $449,140 | $449,140 | $7.01 | | |
| COLLPLBOND | C OF CP BOND 644 | 0.4374241808 | $449,140 | $449,140 | $196.46 | | |
| COLLPLGEN | CITY OF CP 632 | 1.4453819216 | $449,140 | $449,140 | $649.18 | | |
| EMERGSER | EMS 147 | 0.3792580840 | $449,140 | $449,140 | $170.34 | | |
| EMSRFD | EMS REFUND 147 | 0.0000000000 | $449,140 | $449,140 | $0.00 | | |
| RURALLIB | RURAL LIBRARY 623 | 0.3710609029 | $449,140 | $449,140 | $166.66 | | |
| PORTRFD | PORT REFUND 640 | 0.0000000000 | $449,140 | $449,140 | $0.00 | | |
| PORTWWGEN | PORT OF WW 640 | 0.2460186015 | $449,140 | $449,140 | $110.50 | | |
| SD250BOND | SD #250 BOND 773 | 1.4560608159 | $449,140 | $449,140 | $653.98 | | |
| SD250GEN | SD #250 GENERAL 770 | 2.3880724087 | $449,140 | $449,140 | $1,072.58 | | |
| ST2 | STATE SCHOOL PART 2 600 | 0.8131451643 | $449,140 | $449,140 | $365.22 | | |
| STATESCHL | STATE SCHOOL 600 | 1.5158548041 | $449,140 | $449,140 | $680.83 | | |
| STREFUND | STATE REFUND LEVY 603 | 0.0000000000 | $449,140 | $449,140 | $0.00 | | |
| | Total Tax Rate: | 10.1104125603 | | | | | |
| | | | | Taxes w/Current Exemptions: | $4,541.01 | | |
| | | | | Taxes w/o Exemptions: | $4,541.01 | | |
Improvement / Building
| Improvement #1: | RESIDENTIAL | State Code: | 11 | 1939.0 sqft | Value: | $374,140 |
| Exterior Wall: | CEMENT FIBER | Heating/Cooling: | WARM & COOLED AIR | | Number of Bathrooms: | 2 | Number of Bedrooms: | 3 | | Plumbing: | 12 | Roof Covering: | COMP SHINGLE |
|
| | Type | Description | Class CD | Sub Class CD | Year Built | Area |
| | MA | Main Area | 1 | 40 | 1997 | 1939.0 |
| | SI1 | SITE IMPROVEMENT | 1 | 40 | 1997 | 2.5 |
| | ATG | Attached Garage | 1 | 40 | 1997 | 528.0 |
| | PRC | PORCH W STEPS, ROOF,CEILED | 1 | 40 | 1997 | 82.0 |
| | WOD | Wood Deck | 1 | 40 | 1997 | 36.0 |
| | GFP | GAS FIREPLACE | 1 | 40 | 1997 | 1.0 |
| | TOOL | TOOL SHED | 1 | 40 | 1997 | 108.0 |
| | RPC | OPEN PORCH W/ROOF , CEILED | 1 | 40 | 1997 | 156.0 |
Sketch
Property Image
Land
| 1 | RES 1 | Converted: Residential | 0.3298 | 14366.00 | 0.00 | 0.00 | 1.00 | $75,000 | $0 |
Roll Value History
| 2026 | N/A | N/A | N/A | N/A | N/A |
| 2025 | $318,020 | $135,000 | $0 | $453,020 | $453,020 |
| 2024 | $374,140 | $75,000 | $0 | $449,140 | $449,140 |
| 2023 | $374,140 | $75,000 | $0 | $449,140 | $449,140 |
| 2022 | $340,120 | $75,000 | $0 | $415,120 | $415,120 |
| 2021 | $242,950 | $75,000 | $0 | $317,950 | $317,950 |
| 2020 | $220,860 | $75,000 | $0 | $295,860 | $295,860 |
| 2019 | $230,860 | $65,000 | $0 | $295,860 | $295,860 |
| 2018 | $200,750 | $65,000 | $0 | $265,750 | $265,750 |
| 2017 | $200,750 | $65,000 | $0 | $265,750 | $265,750 |
| 2016 | $200,750 | $65,000 | $0 | $265,750 | $265,750 |
| 2015 | $200,750 | $65,000 | $0 | $265,750 | $265,750 |
| 2014 | $182,500 | $65,000 | $0 | $247,500 | $247,500 |
| 2013 | $182,500 | $65,000 | $0 | $247,500 | $247,500 |
| 2012 | $187,600 | $65,000 | $0 | $0 | $0 |
| 2011 | $187,600 | $65,000 | $0 | $0 | $0 |
| 2010 | $187,600 | $65,000 | $0 | $0 | $0 |
| 2009 | $215,700 | $65,000 | $0 | $0 | $0 |
| 2008 | $152,300 | $35,000 | $0 | $0 | $0 |
| 2007 | $152,300 | $35,000 | $0 | $0 | $0 |
Deed and Sales History
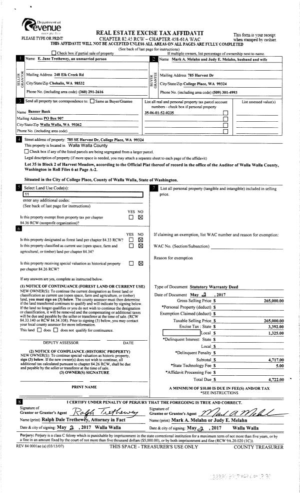
| 1 | 05/04/2017 | SWD | STATUTORY WARRANTY DEED | TRETHEWEY ELMA JANE | MELAHN MARK A & JUDY E | | | $265,000.00 | 132320 | 2017-03352 |
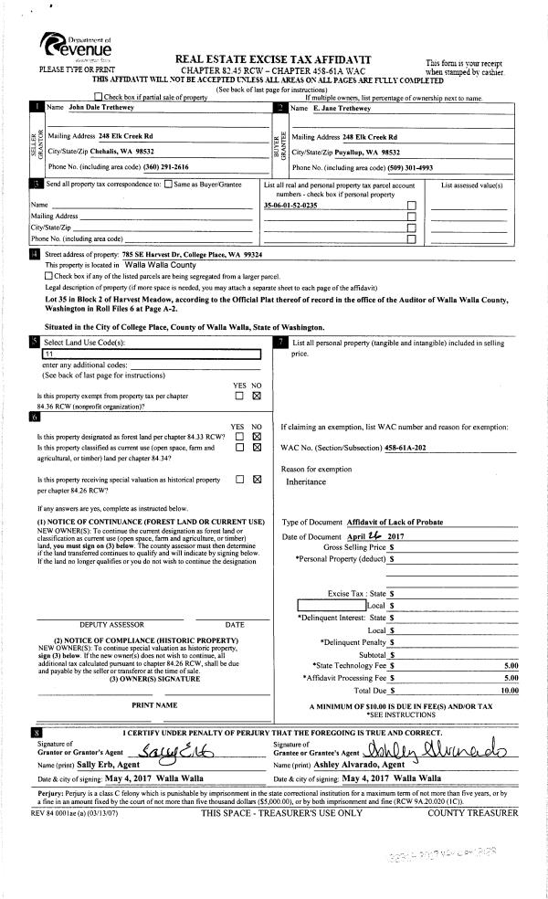
| 2 | 04/26/2017 | LOPA | LACK OF PROBATE AFFIDAVIT | TRETHEWEY JOHN DALE | TRETHEWEY ELMA JANE | | | $0.00 | 132319 | 2017-03350 |
| 3 | 06/16/2000 | WARRANTY D | WARRANTY DEED | | | | | $169,000.00 | 95278 | 2990-005797 |
Payout Agreement
| No payout information available.. |