Property
Account |
| Property ID: | 31897 | Abbreviated Legal Description: | 6-6-36 TAX 37 |
| Parcel Number: | 360606210050 | Agent Code: | |
| Type: | Real | | |
| Tax Area: | 101 - 140-4 | Land Use Code | 11 |
| Open Space: | N | DFL | N |
| Historic Property: | N | Remodel Property: | N |
| Multi-Family Redevelopment: | N | | |
| Township: | 6 | Section: | 6 |
| Range: | 36 |
Location |
| Address: | 1655 TAUMARSON RD WA 99362 | Mapsco: | |
| Neighborhood: | G SFR Rural/City Inf | Map ID: | |
| Neighborhood CD: | 114012 |
Owner |
| Name: | MARTIN PATTY & MICHAEL HOFEDITZ | Owner ID: | 70626 |
| Mailing Address: | PO BOX 991 WALLA WALLA, WA 99362 | % Ownership: | 100.0000000000% |
| | | Exemptions: | |
Taxes and Assessment Details
Property Tax Information as of
02/21/2026
Click on "Statement Details" to expand or collapse a tax statement.
* Please enter a valid date ** Please enter a valid date *
Statement Details |
| | TOTAL: | $0.00 | $0.00 | $0.00 | $0.00 | $0.00 | $0.00 |
|
| | $0.00 | $0.00 | $0.00 | $0.00 | $0.00 | $0.00 |
Values
| (+) Improvement Homesite Value: | + | $414,810 | |
| (+) Improvement Non-Homesite Value: | + | $0 | |
| (+) Land Homesite Value: | + | $126,260 | |
| (+) Land Non-Homesite Value: | + | $0 | |
| (+) Curr Use (HS): | + | $0 | $0 |
| (+) Curr Use (NHS): | + | $0 | $0 |
| | | -------------------------- | |
| (=) Market Value: | = | $541,070 | |
| (–) Productivity Loss: | – | $0 | |
| | | -------------------------- | |
| (=) Subtotal: | = | $541,070 | |
| (+) Senior Appraised Value: | + | $0 | |
| (+) Non-Senior Appraised Value: | + | $541,070 | |
| | | -------------------------- | |
| (=) Total Appraised Value: | = | $541,070 | |
| (–) Senior Exemption Loss: | – | $0 | |
| (–) Exemption Loss: | – | $0 | |
| | | -------------------------- | |
| (=) Taxable Value: | = | $541,070 | |
Taxing Jurisdiction
| Owner: | MARTIN PATTY & MICHAEL HOFEDITZ | | |
| % Ownership: | 100.0000000000% | | |
| Total Value: | $541,070 | | |
| Tax Area: | 101 - 140-4 |
| CERFD | CURRENT EXPENSE REFUND 010 | 0.0000000000 | $541,070 | $541,070 | $0.00 | | |
| CURREXP | CURRENT EXPENSE 010 | 1.0175366760 | $541,070 | $541,070 | $550.56 | | |
| HUMNSERV | HUMAN SERVICES 119 | 0.0250000000 | $541,070 | $541,070 | $13.53 | | |
| SLDREL | SOLDIERS RELIEF 121 | 0.0155990005 | $541,070 | $541,070 | $8.44 | | |
| EMERGSER | EMS 147 | 0.3792580840 | $541,070 | $541,070 | $205.21 | | |
| EMSRFD | EMS REFUND 147 | 0.0000000000 | $541,070 | $541,070 | $0.00 | | |
| FD4EXP | FD #4 EXPENSE 686 | 0.8836993059 | $541,070 | $541,070 | $478.14 | | |
| RLBRFD | RURAL LIBRARY REFUND 623 | 0.0000000000 | $541,070 | $541,070 | $0.00 | | |
| RURALLIB | RURAL LIBRARY 623 | 0.3710609029 | $541,070 | $541,070 | $200.77 | | |
| PORTRFD | PORT REFUND 640 | 0.0000000000 | $541,070 | $541,070 | $0.00 | | |
| PORTWWGEN | PORT OF WW 640 | 0.2460186015 | $541,070 | $541,070 | $133.11 | | |
| SD140BOND | SD #140 BOND 764 | 0.8342371393 | $541,070 | $541,070 | $451.38 | | |
| SD140GEN | SD #140 GENERAL 760 | 2.0646500647 | $541,070 | $541,070 | $1,117.12 | | |
| ST2 | STATE SCHOOL PART 2 600 | 0.8131451643 | $541,070 | $541,070 | $439.97 | | |
| STATESCHL | STATE SCHOOL 600 | 1.5158548041 | $541,070 | $541,070 | $820.18 | | |
| STREFUND | STATE REFUND LEVY 603 | 0.0000000000 | $541,070 | $541,070 | $0.00 | | |
| COROAD | COUNTY ROAD 115 | 1.6549953990 | $541,070 | $541,070 | $895.47 | | |
| CRPRD | COUNTY ROAD REFUND 115 | 0.0000000000 | $541,070 | $541,070 | $0.00 | | |
| | Total Tax Rate: | 9.8210551422 | | | | | |
| | | | | Taxes w/Current Exemptions: | $5,313.88 | | |
| | | | | Taxes w/o Exemptions: | $5,313.88 | | |
Improvement / Building
| Improvement #1: | RESIDENTIAL | State Code: | 11 | 1310.0 sqft | Value: | $414,810 |
| Exterior Wall: | SIDING | Heating/Cooling: | WARM & COOLED AIR | | Number of Bathrooms: | 3 | Number of Bedrooms: | 3 | | Plumbing: | 12 | Roof Covering: | WOOD SHAKE |
|
| | Type | Description | Class CD | Sub Class CD | Year Built | Area |
| | MA | Main Area | 1 | 35 | 1966 | 1310.0 |
| | SI1 | SITE IMPROVEMENT | 1 | 35 | 0 | 4.0 |
| | SMP | SWIMMING POOL | 1 | 35 | 0 | 1.0 |
| | BASE | BASEMENT | 1 | 35 | 1966 | 1310.0 |
| | BPF | BASEMENT -PARTITIONED FINISH | 1 | 35 | 1966 | 730.0 |
| | POLE | POLE UTILITY BUILDING | 1 | 35 | 0 | 408.0 |
| | DTG | Detached Garage | 1 | 35 | 0 | 636.0 |
| | RPO | OPEN PORCH W/ROOF | 1 | 35 | 0 | 190.0 |
| | S1F | Single One Story Fireplace | 1 | 35 | 0 | 1.0 |
Sketch
Property Image
Land
| 1 | RES 1 | Converted: Residential | 2.2400 | 0.00 | 0.00 | 0.00 | 1.00 | $126,260 | $0 |
Roll Value History
| 2026 | N/A | N/A | N/A | N/A | N/A |
| 2025 | $373,330 | $192,490 | $0 | $565,820 | $565,820 |
| 2024 | $414,810 | $126,260 | $0 | $541,070 | $541,070 |
| 2023 | $414,810 | $126,260 | $0 | $541,070 | $541,070 |
| 2022 | $360,700 | $126,260 | $0 | $486,960 | $486,960 |
| 2021 | $277,460 | $126,260 | $0 | $403,720 | $403,720 |
| 2020 | $252,240 | $126,260 | $0 | $378,500 | $378,500 |
| 2019 | $195,700 | $95,000 | $0 | $290,700 | $290,700 |
| 2018 | $174,200 | $95,000 | $0 | $269,200 | $269,200 |
| 2017 | $134,000 | $95,000 | $0 | $229,000 | $229,000 |
| 2016 | $134,000 | $95,000 | $0 | $229,000 | $229,000 |
| 2015 | $130,900 | $95,000 | $0 | $225,900 | $225,900 |
| 2014 | $130,900 | $95,000 | $0 | $225,900 | $225,900 |
| 2013 | $130,900 | $95,000 | $0 | $225,900 | $225,900 |
| 2012 | $130,900 | $95,000 | $0 | $0 | $0 |
| 2011 | $100,900 | $125,000 | $0 | $0 | $0 |
| 2010 | $100,900 | $125,000 | $0 | $0 | $0 |
| 2009 | $126,000 | $125,000 | $0 | $0 | $0 |
| 2008 | $166,100 | $84,900 | $0 | $0 | $0 |
| 2007 | $111,500 | $51,400 | $0 | $0 | $0 |
Deed and Sales History
| 1 | 11/18/2021 | SWD | STATUTORY WARRANTY DEED | PARKER ALAN J | MARTIN PATTY & MICHAEL HOFEDITZ | | | $500,000.00 | 142900 | 2021-13744 |
| 2 | 01/28/2020 | SWD | STATUTORY WARRANTY DEED | BUSH DONALD W | PARKER ALAN J | | | $402,000.00 | 138513 | 2020-00810 |
| 3 | 05/09/2018 | DEATH CERT | DEATH CERTIFICATE | | | | | | 0 | 2018-03643 |
| 4 | 05/09/2018 | COMMUNITY | COMMUNITY PROPERTY AGREEMENT | BUSH DONALD W & RITA J | | | | | 134674 | 2018-03642 |
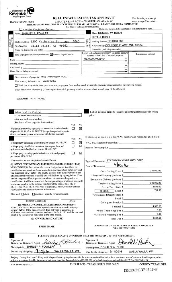
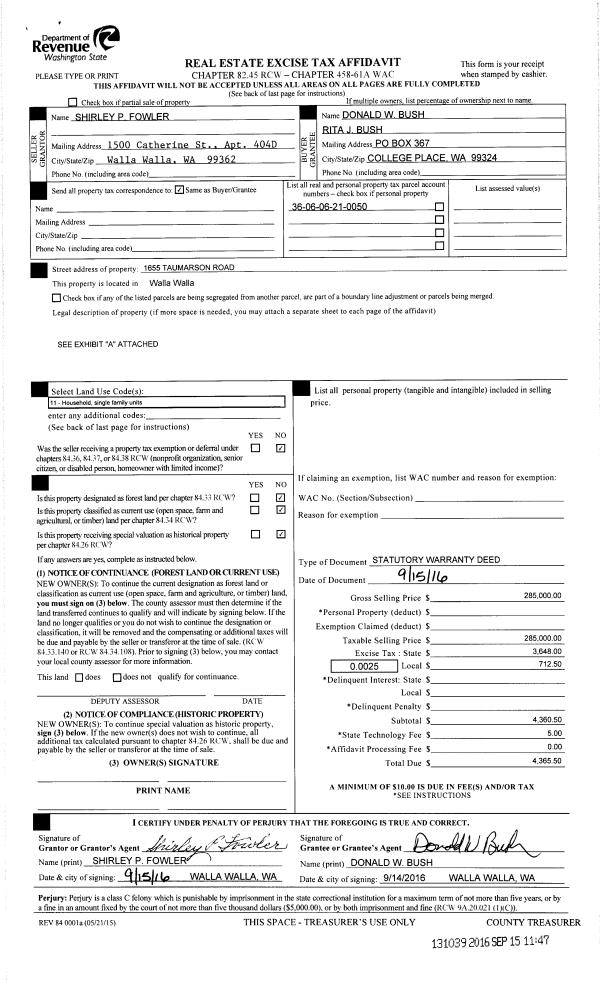
| 5 | 09/15/2016 | SWD | STATUTORY WARRANTY DEED | FOWLER SHIRLEY P | BUSH DONALD W & RITA J | | 2-PARCELS | $285,000.00 | 131039 | 2016-07523 |
| 6 | 01/28/2009 | QCD | QUIT CLAIM DEED | FOWLER SHIRLEY P | FOWLER SHIRLEY P | | | | 116253 | 2009-00768 |
| 7 | 07/14/2003 | QCD | QUIT CLAIM DEED | FOWLER, SHIRLEY P | BAKER BOYER BANK TRUSTEE | | | | 102554 | 2003-10418 |
| 8 | 05/01/1965 | WARRANTY D | WARRANTY DEED | | | | | $4,000.00 | 0 | 3130-466634 |
Payout Agreement
| No payout information available.. |