Property
Account |
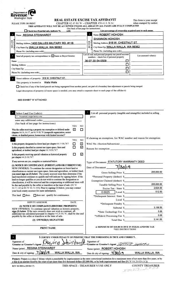
| Property ID: | 31832 | Abbreviated Legal Description: | RITZ LOT 9 BLOCK 5 AND TRACT |
| Parcel Number: | 360730540509 | Agent Code: | |
| Type: | Real | | |
| Tax Area: | 1 - OL-140-F | Land Use Code | 11 |
| Open Space: | N | DFL | N |
| Historic Property: | N | Remodel Property: | N |
| Multi-Family Redevelopment: | N | | |
| Township: | 7 | Section: | 30 |
| Range: | 36 |
Location |
| Address: | 918 W CHESTNUT ST WA 99362 | Mapsco: | |
| Neighborhood: | A-SFR | Map ID: | |
| Neighborhood CD: | 313011 |
Owner |
| Name: | HOHOSH ROBERT & SHANNON | Owner ID: | 65654 |
| Mailing Address: | 2065 MCDADE FARM RD HEPHZIBAH, GA 30815 | % Ownership: | 100.0000000000% |
| | | Exemptions: | |
Taxes and Assessment Details
Values
| (+) Improvement Homesite Value: | + | $164,530 | |
| (+) Improvement Non-Homesite Value: | + | $0 | |
| (+) Land Homesite Value: | + | $53,630 | |
| (+) Land Non-Homesite Value: | + | $0 | |
| (+) Curr Use (HS): | + | $0 | $0 |
| (+) Curr Use (NHS): | + | $0 | $0 |
| | | -------------------------- | |
| (=) Market Value: | = | $218,160 | |
| (–) Productivity Loss: | – | $0 | |
| | | -------------------------- | |
| (=) Subtotal: | = | $218,160 | |
| (+) Senior Appraised Value: | + | $0 | |
| (+) Non-Senior Appraised Value: | + | $218,160 | |
| | | -------------------------- | |
| (=) Total Appraised Value: | = | $218,160 | |
| (–) Senior Exemption Loss: | – | $0 | |
| (–) Exemption Loss: | – | $0 | |
| | | -------------------------- | |
| (=) Taxable Value: | = | $218,160 | |
Taxing Jurisdiction
| Owner: | HOHOSH ROBERT & SHANNON | | |
| % Ownership: | 100.0000000000% | | |
| Total Value: | $218,160 | | |
| Tax Area: | 1 - OL-140-F |
| CERFD | CURRENT EXPENSE REFUND 010 | 0.0000000000 | $218,160 | $218,160 | $0.00 | | |
| CURREXP | CURRENT EXPENSE 010 | 1.0175366760 | $218,160 | $218,160 | $221.99 | | |
| HUMNSERV | HUMAN SERVICES 119 | 0.0250000000 | $218,160 | $218,160 | $5.45 | | |
| SLDREL | SOLDIERS RELIEF 121 | 0.0155990005 | $218,160 | $218,160 | $3.40 | | |
| EMERGSER | EMS 147 | 0.3792580840 | $218,160 | $218,160 | $82.74 | | |
| EMSRFD | EMS REFUND 147 | 0.0000000000 | $218,160 | $218,160 | $0.00 | | |
| PORTRFD | PORT REFUND 640 | 0.0000000000 | $218,160 | $218,160 | $0.00 | | |
| PORTWWGEN | PORT OF WW 640 | 0.2460186015 | $218,160 | $218,160 | $53.67 | | |
| SD140BOND | SD #140 BOND 764 | 0.8342371393 | $218,160 | $218,160 | $182.00 | | |
| SD140GEN | SD #140 GENERAL 760 | 2.0646500647 | $218,160 | $218,160 | $450.42 | | |
| ST2 | STATE SCHOOL PART 2 600 | 0.8131451643 | $218,160 | $218,160 | $177.40 | | |
| STATESCHL | STATE SCHOOL 600 | 1.5158548041 | $218,160 | $218,160 | $330.70 | | |
| STREFUND | STATE REFUND LEVY 603 | 0.0000000000 | $218,160 | $218,160 | $0.00 | | |
| CWWBOND | C OF WW BOND 643 | 0.2760494372 | $218,160 | $218,160 | $60.22 | | |
| CWWGEN | CITY OF WW 631 | 1.6100204973 | $218,160 | $218,160 | $351.24 | | |
| CWWRFD | CITY OF WALLA WALLA REFUND 631 | 0.0000000000 | $218,160 | $218,160 | $0.00 | | |
| | Total Tax Rate: | 8.7973694689 | | | | | |
| | | | | Taxes w/Current Exemptions: | $1,919.23 | | |
| | | | | Taxes w/o Exemptions: | $1,919.23 | | |
Improvement / Building
| Improvement #1: | RESIDENTIAL | State Code: | 11 | 936.0 sqft | Value: | $164,530 |
| Exterior Wall: | VINYL | Heating/Cooling: | MINI-SPLIT HP SYSTEM | | Number of Bathrooms: | 2 | Number of Bedrooms: | 4 | | Plumbing: | 11 | Roof Covering: | COMP SHINGLE |
|
| | Type | Description | Class CD | Sub Class CD | Year Built | Area |
| | MA | Main Area | 1 | 25 | 1903 | 936.0 |
| | SI1 | SITE IMPROVEMENT | 1 | 25 | 0 | 2.0 |
| | BASE | BASEMENT | 1 | 25 | 1903 | 858.0 |
| | BPF | BASEMENT -PARTITIONED FINISH | 1 | 25 | 1903 | 727.0 |
| | DTG | Detached Garage | 1 | 25 | 1903 | 900.0 |
| | RPS | PORCH W/STEPS,ROOF | 1 | 25 | 1903 | 18.0 |
| | RPS | PORCH W/STEPS,ROOF | 1 | 25 | 1903 | 18.0 |
Sketch
Property Image
Land
| 1 | RES 1 | Converted: Residential | 0.1492 | 6500.00 | 0.00 | 0.00 | 1.00 | $53,630 | $0 |
Roll Value History
| 2026 | N/A | N/A | N/A | N/A | N/A |
| 2025 | $245,420 | $53,630 | $0 | $299,050 | $299,050 |
| 2024 | $164,530 | $53,630 | $0 | $218,160 | $218,160 |
| 2023 | $164,530 | $53,630 | $0 | $218,160 | $218,160 |
| 2022 | $149,570 | $53,630 | $0 | $203,200 | $203,200 |
| 2021 | $167,690 | $24,800 | $0 | $192,490 | $61,516 |
| 2020 | $128,990 | $24,800 | $0 | $153,790 | $61,516 |
| 2019 | $128,990 | $24,800 | $0 | $153,790 | $153,790 |
| 2018 | $122,850 | $12,400 | $0 | $135,250 | $43,560 |
| 2017 | $122,850 | $12,400 | $0 | $135,250 | $43,560 |
| 2016 | $117,000 | $12,400 | $0 | $129,400 | $43,560 |
| 2015 | $117,000 | $12,400 | $0 | $129,400 | $43,560 |
| 2014 | $117,000 | $12,400 | $0 | $129,400 | $43,560 |
| 2013 | $104,600 | $24,800 | $0 | $129,400 | $43,560 |
| 2012 | $42,700 | $12,400 | $0 | $0 | $0 |
| 2011 | $42,700 | $12,400 | $0 | $0 | $0 |
| 2010 | $43,600 | $12,400 | $0 | $0 | $0 |
| 2009 | $56,500 | $5,700 | $0 | $0 | $0 |
| 2008 | $28,900 | $5,700 | $0 | $0 | $0 |
| 2007 | $28,900 | $5,700 | $0 | $0 | $0 |
Deed and Sales History
| 1 | 02/03/2025 | SWD | STATUTORY WARRANTY DEED | TRI CONSTRUCTION LLC | TAYLOR SEAN & SARA | | | $385,000.00 | 148865 | 2025-00544 |
| 2 | 03/18/2024 | SWD | STATUTORY WARRANTY DEED | HOHOSH ROBERT & SHANNON | TRI CONSTRUCTION LLC | | | $187,000.00 | 147261 | 2024-01298 |
| 3 | 07/31/2019 | SWD | STATUTORY WARRANTY DEED | STEINHARDT REGINA | HOHOSH ROBERT & SHANNON | | | $205,000.00 | 137392 | 2019-05622 |
| 4 | 07/31/2019 | TODD | TRANSFER ON DEATH DEED | STEINHARDT ARLENE | STEINHARDT REGINA | | | $0.00 | 137386 | 2019-05607 |
| 5 | 01/05/2018 | DEED DEATH | DEED DEATH | STEINHARDT ARLENE | STEINHARDT REGINA | | | | 0 | 2018-00188 |
| 6 | 02/16/2005 | QCD | QUIT CLAIM DEED | STEINHARDT, OTTO(ESTATE OF MAR | STEINHARDT, ARLENE | | | | 106791 | 2005-01846 |
Payout Agreement
| No payout information available.. |