Property
Account |
| Property ID: | 31826 | Abbreviated Legal Description: | CRESTVIEW TAX 1 LOT 16 BLOCK 1 LESS SWLYPTN TO CITY OF WW FOR 2ND AVE |
| Parcel Number: | 360729500116 | Agent Code: | |
| Type: | Real | | |
| Tax Area: | 1 - OL-140-F | Land Use Code | 11 |
| Open Space: | N | DFL | N |
| Historic Property: | N | Remodel Property: | N |
| Multi-Family Redevelopment: | N | | |
| Township: | 7 | Section: | 29 |
| Range: | 36 |
Location |
| Address: | 1475 S 2ND AVE WA 99362 | Mapsco: | |
| Neighborhood: | A Res | Map ID: | |
| Neighborhood CD: | 613011 |
Owner |
| Name: | JOHNSON ARLAND R | Owner ID: | 63022 |
| Mailing Address: | 1475 S 2ND AVE WALLA WALLA, WA 99362 | % Ownership: | 100.0000000000% |
| | | Exemptions: | |
Taxes and Assessment Details
Property Tax Information as of
02/21/2026
Click on "Statement Details" to expand or collapse a tax statement.
* Please enter a valid date ** Please enter a valid date *
Statement Details |
| | TOTAL: | $0.00 | $0.00 | $0.00 | $0.00 | $0.00 | $0.00 |
|
| | $0.00 | $0.00 | $0.00 | $0.00 | $0.00 | $0.00 |
Values
| (+) Improvement Homesite Value: | + | $0 | |
| (+) Improvement Non-Homesite Value: | + | $274,000 | |
| (+) Land Homesite Value: | + | $0 | |
| (+) Land Non-Homesite Value: | + | $76,830 | |
| (+) Curr Use (HS): | + | $0 | $0 |
| (+) Curr Use (NHS): | + | $0 | $0 |
| | | -------------------------- | |
| (=) Market Value: | = | $350,830 | |
| (–) Productivity Loss: | – | $0 | |
| | | -------------------------- | |
| (=) Subtotal: | = | $350,830 | |
| (+) Senior Appraised Value: | + | $0 | |
| (+) Non-Senior Appraised Value: | + | $350,830 | |
| | | -------------------------- | |
| (=) Total Appraised Value: | = | $350,830 | |
| (–) Senior Exemption Loss: | – | $0 | |
| (–) Exemption Loss: | – | $0 | |
| | | -------------------------- | |
| (=) Taxable Value: | = | $350,830 | |
Taxing Jurisdiction
| Owner: | JOHNSON ARLAND R | | |
| % Ownership: | 100.0000000000% | | |
| Total Value: | $350,830 | | |
| Tax Area: | 1 - OL-140-F |
| CERFD | CURRENT EXPENSE REFUND 010 | 0.0000000000 | $350,830 | $350,830 | $0.00 | | |
| CURREXP | CURRENT EXPENSE 010 | 1.0175366760 | $350,830 | $350,830 | $356.98 | | |
| HUMNSERV | HUMAN SERVICES 119 | 0.0250000000 | $350,830 | $350,830 | $8.77 | | |
| SLDREL | SOLDIERS RELIEF 121 | 0.0155990005 | $350,830 | $350,830 | $5.47 | | |
| EMERGSER | EMS 147 | 0.3792580840 | $350,830 | $350,830 | $133.06 | | |
| EMSRFD | EMS REFUND 147 | 0.0000000000 | $350,830 | $350,830 | $0.00 | | |
| PORTRFD | PORT REFUND 640 | 0.0000000000 | $350,830 | $350,830 | $0.00 | | |
| PORTWWGEN | PORT OF WW 640 | 0.2460186015 | $350,830 | $350,830 | $86.31 | | |
| SD140BOND | SD #140 BOND 764 | 0.8342371393 | $350,830 | $350,830 | $292.68 | | |
| SD140GEN | SD #140 GENERAL 760 | 2.0646500647 | $350,830 | $350,830 | $724.34 | | |
| ST2 | STATE SCHOOL PART 2 600 | 0.8131451643 | $350,830 | $350,830 | $285.28 | | |
| STATESCHL | STATE SCHOOL 600 | 1.5158548041 | $350,830 | $350,830 | $531.81 | | |
| STREFUND | STATE REFUND LEVY 603 | 0.0000000000 | $350,830 | $350,830 | $0.00 | | |
| CWWBOND | C OF WW BOND 643 | 0.2760494372 | $350,830 | $350,830 | $96.85 | | |
| CWWGEN | CITY OF WW 631 | 1.6100204973 | $350,830 | $350,830 | $564.84 | | |
| CWWRFD | CITY OF WALLA WALLA REFUND 631 | 0.0000000000 | $350,830 | $350,830 | $0.00 | | |
| | Total Tax Rate: | 8.7973694689 | | | | | |
| | | | | Taxes w/Current Exemptions: | $3,086.39 | | |
| | | | | Taxes w/o Exemptions: | $3,086.39 | | |
Improvement / Building
| Improvement #1: | RESIDENTIAL | State Code: | 11 | 1268.0 sqft | Value: | $274,000 |
| Exterior Wall: | VINYL | Heating/Cooling: | FORCED AIR | | Number of Bathrooms: | 2 | Number of Bedrooms: | 3 | | Plumbing: | 9 | Roof Covering: | COMP SHINGLE |
|
| | Type | Description | Class CD | Sub Class CD | Year Built | Area |
| | MA | Main Area | 1 | 30 | 1959 | 1268.0 |
| | SI1 | SITE IMPROVEMENT | 1 | 30 | 1959 | 1.5 |
| | BASE | BASEMENT | 1 | 30 | 1959 | 768.0 |
| | BRF | BASEMENT - REC FINISH | 1 | 30 | 1959 | 506.0 |
| | ATG | Attached Garage | 1 | 30 | 1959 | 528.0 |
| | RPS | PORCH W/STEPS,ROOF | 1 | 30 | 1959 | 20.0 |
| | D2F | Double 2 Story Fireplace | 1 | 30 | 1959 | 1.0 |
| | CPC | COVERED CARPORT/PATIO | 1 | 30 | 1959 | 144.0 |
Sketch
Property Image
Land
| 1 | RES 1 | Converted: Residential | 0.1960 | 8537.00 | 0.00 | 0.00 | 1.00 | $76,830 | $0 |
Roll Value History
| 2026 | N/A | N/A | N/A | N/A | N/A |
| 2025 | $258,820 | $93,910 | $0 | $352,730 | $352,730 |
| 2024 | $274,000 | $76,830 | $0 | $350,830 | $350,830 |
| 2023 | $274,000 | $76,830 | $0 | $350,830 | $350,830 |
| 2022 | $274,000 | $61,890 | $0 | $335,890 | $335,890 |
| 2021 | $182,660 | $61,890 | $0 | $244,550 | $244,550 |
| 2020 | $140,510 | $61,890 | $0 | $202,400 | $202,400 |
| 2019 | $140,510 | $61,890 | $0 | $202,400 | $202,400 |
| 2018 | $137,340 | $45,900 | $0 | $183,240 | $183,240 |
| 2017 | $119,430 | $45,900 | $0 | $165,330 | $165,330 |
| 2016 | $108,570 | $45,900 | $0 | $154,470 | $154,470 |
| 2015 | $98,700 | $45,900 | $0 | $144,600 | $144,600 |
| 2014 | $98,700 | $45,900 | $0 | $144,600 | $144,600 |
| 2013 | $70,500 | $45,900 | $0 | $116,400 | $116,400 |
| 2012 | $66,900 | $45,900 | $0 | $0 | $0 |
| 2011 | $66,900 | $45,900 | $0 | $0 | $0 |
| 2010 | $66,900 | $45,900 | $0 | $0 | $0 |
| 2009 | $79,400 | $45,900 | $0 | $0 | $0 |
| 2008 | $79,400 | $45,900 | $0 | $0 | $0 |
| 2007 | $67,000 | $23,400 | $0 | $0 | $0 |
Deed and Sales History
| 1 | 04/23/2018 | QCD | QUIT CLAIM DEED | ROCK JESSICA M | JOHNSON ARLAND R | | | | 134547 | 2018-03159 |
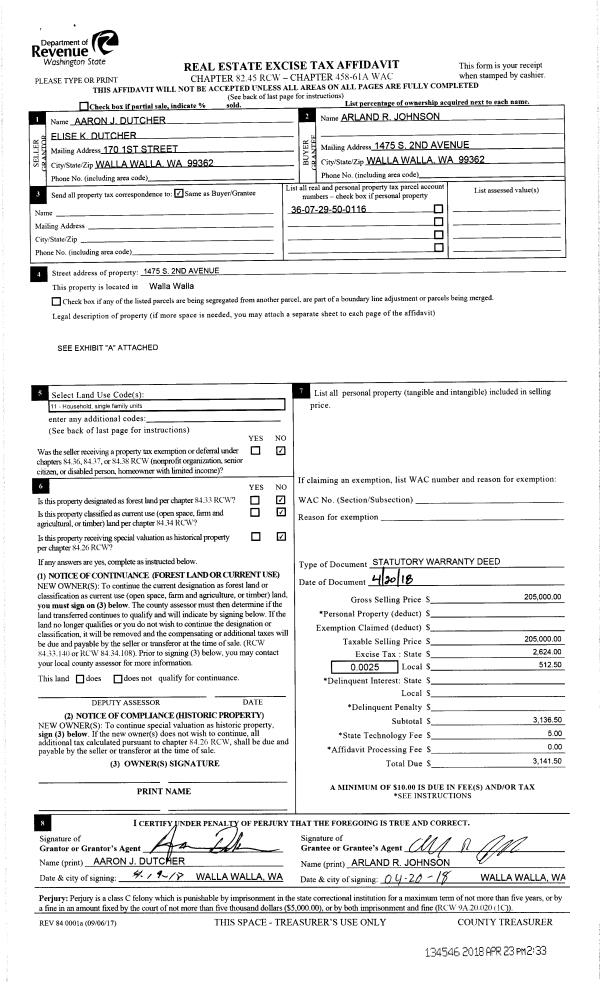
| 2 | 04/23/2018 | SWD | STATUTORY WARRANTY DEED | DUTCHER AARON J & ELISE K | JOHNSON ARLAND R | | | $205,000.00 | 134546 | 2018-03158 |
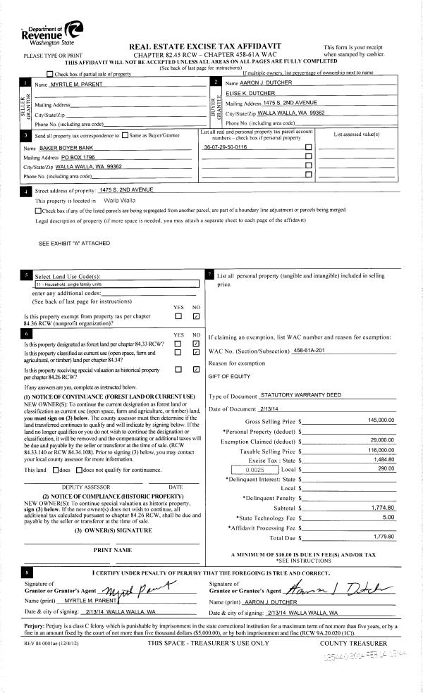
| 3 | 02/14/2014 | SWD | STATUTORY WARRANTY DEED | SMITH MYRTLE M | DUTCHER AARON J & ELISE K | | | $145,000.00 | 125440 | 2014-01131 |
| 4 | 07/05/1979 | WARRANTY D | WARRANTY DEED | | | 317 | 85 | $22,500.00 | 71156 | 3170-473647 |
Payout Agreement
| No payout information available.. |