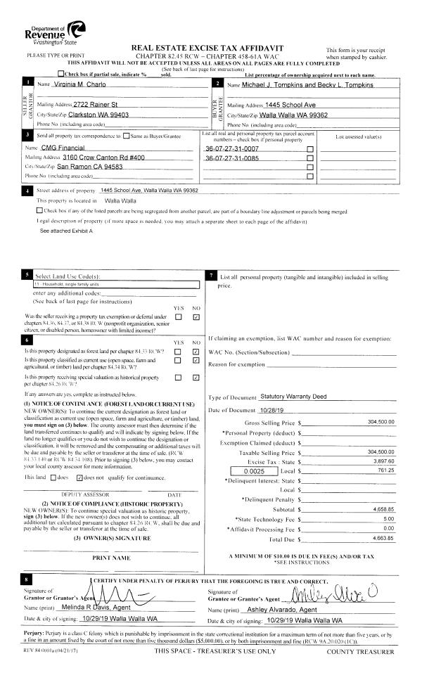
Property
Account |
| Property ID: | 31806 | Abbreviated Legal Description: | 27-7-36 TAX 27A |
| Parcel Number: | 360727310007 | Agent Code: | |
| Type: | Real | | |
| Tax Area: | 105 - 140-F-4 | Land Use Code | 11 |
| Open Space: | N | DFL | N |
| Historic Property: | N | Remodel Property: | N |
| Multi-Family Redevelopment: | N | | |
| Township: | 7 | Section: | 27 |
| Range: | 36 |
Location |
| Address: | 1445 SCHOOL AVE WA 99362 | Mapsco: | |
| Neighborhood: | G+ Res Rural/city Inf | Map ID: | |
| Neighborhood CD: | 414212 |
Owner |
| Name: | TOMPKINS MICHAEL J & BECKY L | Owner ID: | 66169 |
| Mailing Address: | 1445 SCHOOL AVE WALLA WALLA, WA 99362 | % Ownership: | 100.0000000000% |
| | | Exemptions: | |
Taxes and Assessment Details
Property Tax Information as of
02/21/2026
Click on "Statement Details" to expand or collapse a tax statement.
* Please enter a valid date ** Please enter a valid date *
Statement Details |
| | TOTAL: | $0.00 | $0.00 | $0.00 | $0.00 | $0.00 | $0.00 |
|
| | $0.00 | $0.00 | $0.00 | $0.00 | $0.00 | $0.00 |
Values
| (+) Improvement Homesite Value: | + | $0 | |
| (+) Improvement Non-Homesite Value: | + | $294,100 | |
| (+) Land Homesite Value: | + | $0 | |
| (+) Land Non-Homesite Value: | + | $154,410 | |
| (+) Curr Use (HS): | + | $0 | $0 |
| (+) Curr Use (NHS): | + | $0 | $0 |
| | | -------------------------- | |
| (=) Market Value: | = | $448,510 | |
| (–) Productivity Loss: | – | $0 | |
| | | -------------------------- | |
| (=) Subtotal: | = | $448,510 | |
| (+) Senior Appraised Value: | + | $0 | |
| (+) Non-Senior Appraised Value: | + | $448,510 | |
| | | -------------------------- | |
| (=) Total Appraised Value: | = | $448,510 | |
| (–) Senior Exemption Loss: | – | $0 | |
| (–) Exemption Loss: | – | $0 | |
| | | -------------------------- | |
| (=) Taxable Value: | = | $448,510 | |
Taxing Jurisdiction
| Owner: | TOMPKINS MICHAEL J & BECKY L | | |
| % Ownership: | 100.0000000000% | | |
| Total Value: | $448,510 | | |
| Tax Area: | 105 - 140-F-4 |
| CERFD | CURRENT EXPENSE REFUND 010 | 0.0000000000 | $448,510 | $448,510 | $0.00 | | |
| CURREXP | CURRENT EXPENSE 010 | 1.0175366760 | $448,510 | $448,510 | $456.38 | | |
| HUMNSERV | HUMAN SERVICES 119 | 0.0250000000 | $448,510 | $448,510 | $11.21 | | |
| SLDREL | SOLDIERS RELIEF 121 | 0.0155990005 | $448,510 | $448,510 | $7.00 | | |
| EMERGSER | EMS 147 | 0.3792580840 | $448,510 | $448,510 | $170.10 | | |
| EMSRFD | EMS REFUND 147 | 0.0000000000 | $448,510 | $448,510 | $0.00 | | |
| FD4EXP | FD #4 EXPENSE 686 | 0.8836993059 | $448,510 | $448,510 | $396.35 | | |
| RLBRFD | RURAL LIBRARY REFUND 623 | 0.0000000000 | $448,510 | $448,510 | $0.00 | | |
| RURALLIB | RURAL LIBRARY 623 | 0.3710609029 | $448,510 | $448,510 | $166.42 | | |
| PORTRFD | PORT REFUND 640 | 0.0000000000 | $448,510 | $448,510 | $0.00 | | |
| PORTWWGEN | PORT OF WW 640 | 0.2460186015 | $448,510 | $448,510 | $110.34 | | |
| SD140BOND | SD #140 BOND 764 | 0.8342371393 | $448,510 | $448,510 | $374.16 | | |
| SD140GEN | SD #140 GENERAL 760 | 2.0646500647 | $448,510 | $448,510 | $926.02 | | |
| ST2 | STATE SCHOOL PART 2 600 | 0.8131451643 | $448,510 | $448,510 | $364.70 | | |
| STATESCHL | STATE SCHOOL 600 | 1.5158548041 | $448,510 | $448,510 | $679.88 | | |
| STREFUND | STATE REFUND LEVY 603 | 0.0000000000 | $448,510 | $448,510 | $0.00 | | |
| COROAD | COUNTY ROAD 115 | 1.6549953990 | $448,510 | $448,510 | $742.28 | | |
| CRPRD | COUNTY ROAD REFUND 115 | 0.0000000000 | $448,510 | $448,510 | $0.00 | | |
| | Total Tax Rate: | 9.8210551422 | | | | | |
| | | | | Taxes w/Current Exemptions: | $4,404.84 | | |
| | | | | Taxes w/o Exemptions: | $4,404.84 | | |
Improvement / Building
| Improvement #1: | RESIDENTIAL | State Code: | 11 | 1530.0 sqft | Value: | $294,100 |
| Exterior Wall: | PLYWOOD | Heating/Cooling: | BASEBOARD HOT WATER | | Number of Bathrooms: | 1 | Number of Bedrooms: | 3 | | Plumbing: | 6 | Roof Covering: | COMP SHINGLE |
|
| | Type | Description | Class CD | Sub Class CD | Year Built | Area |
| | MA | Main Area | 1 | 30 | 1963 | 1530.0 |
| | CPC | COVERED CARPORT/PATIO | 1 | 30 | 0 | 600.0 |
| | SI1 | SITE IMPROVEMENT | 1 | 30 | 0 | 3.0 |
| | BASE | BASEMENT | 1 | 30 | 1963 | 576.0 |
| | DTG | Detached Garage | 1 | 30 | 1963 | 624.0 |
| | S1F | Single One Story Fireplace | 1 | 30 | 1963 | 1.0 |
Sketch
Property Image
Land
| 1 | RES 1 | Converted: Residential | 1.5200 | 66211.20 | 0.00 | 0.00 | 1.00 | $154,410 | $0 |
Roll Value History
| 2026 | N/A | N/A | N/A | N/A | N/A |
| 2025 | $308,810 | $154,410 | $0 | $463,220 | $463,220 |
| 2024 | $294,100 | $154,410 | $0 | $448,510 | $448,510 |
| 2023 | $294,100 | $154,410 | $0 | $448,510 | $448,510 |
| 2022 | $300,710 | $79,200 | $0 | $379,910 | $379,910 |
| 2021 | $231,320 | $79,200 | $0 | $310,520 | $310,520 |
| 2020 | $177,940 | $79,200 | $0 | $257,140 | $257,140 |
| 2019 | $177,940 | $79,200 | $0 | $257,140 | $257,140 |
| 2018 | $148,280 | $75,000 | $0 | $223,280 | $30,500 |
| 2017 | $148,280 | $75,000 | $0 | $223,280 | $30,500 |
| 2016 | $148,280 | $75,000 | $0 | $223,280 | $30,500 |
| 2015 | $134,800 | $75,000 | $0 | $209,800 | $30,500 |
| 2014 | $134,800 | $75,000 | $0 | $209,800 | $30,500 |
| 2013 | $134,800 | $75,000 | $0 | $209,800 | $40,500 |
| 2012 | $134,800 | $75,000 | $0 | $0 | $0 |
| 2011 | $139,200 | $75,000 | $0 | $0 | $0 |
| 2010 | $139,200 | $75,000 | $0 | $0 | $0 |
| 2009 | $163,000 | $75,000 | $0 | $0 | $0 |
| 2008 | $175,500 | $75,000 | $0 | $0 | $0 |
| 2007 | $92,000 | $44,000 | $0 | $0 | $0 |
Deed and Sales History
| 1 | 10/29/2019 | SWD | STATUTORY WARRANTY DEED | CHARLO VIRGINIA | TOMPKINS MICHAEL J & BECKY L | | | $304,500.00 | 137982 | 2019-08802 |
| 2 | 02/05/2016 | DEATH CERT | DEATH CERTIFICATE | CHARLO ERNEST & VIRGINIA | CHARLO VIRGINIA | | | | 0 | 2016-00924 |
| 3 | 05/17/1984 | COMMUNITY | COMMUNITY PROPERTY AGREEMENT | CHARLO ERNEST & VIRGINIA | CHARLO ERNEST & VIRGINIA | 143 | 2203 | | 0 | |
| 4 | 01/01/1957 | WARRANTY D | WARRANTY DEED | | | | | $0.00 | 0 | 2800-393199 |
Payout Agreement
| No payout information available.. |