Property
Account |
| Property ID: | 31758 | Abbreviated Legal Description: | 28-7-35 LOT 1 OF SHORT PLAT (TAX 20) PTPARCEL 21 LESS LND SLD |
| Parcel Number: | 350728330021 | Agent Code: | |
| Type: | Real | | |
| Tax Area: | 311 - 250-4 | Land Use Code | 11 |
| Open Space: | N | DFL | N |
| Historic Property: | N | Remodel Property: | N |
| Multi-Family Redevelopment: | N | | |
| Township: | 7 | Section: | 28 |
| Range: | 35 |
Location |
| Address: | 215 LAST CHANCE RD WA 99324 | Mapsco: | |
| Neighborhood: | 0 Farm | Map ID: | |
| Neighborhood CD: | 3230 |
Owner |
| Name: | BREZA ERIC | Owner ID: | 70063 |
| Mailing Address: | 215 LAST CHANCE RD WALLA WALLA, WA 99362 | % Ownership: | 100.0000000000% |
| | | Exemptions: | |
Taxes and Assessment Details
Values
| (+) Improvement Homesite Value: | + | $0 | |
| (+) Improvement Non-Homesite Value: | + | $200,770 | |
| (+) Land Homesite Value: | + | $120,000 | |
| (+) Land Non-Homesite Value: | + | $72,000 | |
| (+) Curr Use (HS): | + | $0 | $0 |
| (+) Curr Use (NHS): | + | $0 | $0 |
| | | -------------------------- | |
| (=) Market Value: | = | $392,770 | |
| (–) Productivity Loss: | – | $0 | |
| | | -------------------------- | |
| (=) Subtotal: | = | $392,770 | |
| (+) Senior Appraised Value: | + | $0 | |
| (+) Non-Senior Appraised Value: | + | $392,770 | |
| | | -------------------------- | |
| (=) Total Appraised Value: | = | $392,770 | |
| (–) Senior Exemption Loss: | – | $0 | |
| (–) Exemption Loss: | – | $0 | |
| | | -------------------------- | |
| (=) Taxable Value: | = | $392,770 | |
Taxing Jurisdiction
| Owner: | BREZA ERIC | | |
| % Ownership: | 100.0000000000% | | |
| Total Value: | $392,770 | | |
| Tax Area: | 311 - 250-4 |
| CERFD | CURRENT EXPENSE REFUND 010 | 0.0000000000 | $392,770 | $392,770 | $0.00 | | |
| CURREXP | CURRENT EXPENSE 010 | 1.0175366760 | $392,770 | $392,770 | $399.66 | | |
| HUMNSERV | HUMAN SERVICES 119 | 0.0250000000 | $392,770 | $392,770 | $9.82 | | |
| SLDREL | SOLDIERS RELIEF 121 | 0.0155990005 | $392,770 | $392,770 | $6.13 | | |
| EMERGSER | EMS 147 | 0.3792580840 | $392,770 | $392,770 | $148.96 | | |
| EMSRFD | EMS REFUND 147 | 0.0000000000 | $392,770 | $392,770 | $0.00 | | |
| FD4EXP | FD #4 EXPENSE 686 | 0.8836993059 | $392,770 | $392,770 | $347.09 | | |
| RLBRFD | RURAL LIBRARY REFUND 623 | 0.0000000000 | $392,770 | $392,770 | $0.00 | | |
| RURALLIB | RURAL LIBRARY 623 | 0.3710609029 | $392,770 | $392,770 | $145.74 | | |
| PORTRFD | PORT REFUND 640 | 0.0000000000 | $392,770 | $392,770 | $0.00 | | |
| PORTWWGEN | PORT OF WW 640 | 0.2460186015 | $392,770 | $392,770 | $96.63 | | |
| SD250BOND | SD #250 BOND 773 | 1.4560608159 | $392,770 | $392,770 | $571.90 | | |
| SD250GEN | SD #250 GENERAL 770 | 2.3880724087 | $392,770 | $392,770 | $937.96 | | |
| ST2 | STATE SCHOOL PART 2 600 | 0.8131451643 | $392,770 | $392,770 | $319.38 | | |
| STATESCHL | STATE SCHOOL 600 | 1.5158548041 | $392,770 | $392,770 | $595.38 | | |
| STREFUND | STATE REFUND LEVY 603 | 0.0000000000 | $392,770 | $392,770 | $0.00 | | |
| COROAD | COUNTY ROAD 115 | 1.6549953990 | $392,770 | $392,770 | $650.03 | | |
| CRPRD | COUNTY ROAD REFUND 115 | 0.0000000000 | $392,770 | $392,770 | $0.00 | | |
| | Total Tax Rate: | 10.7663011628 | | | | | |
| | | | | Taxes w/Current Exemptions: | $4,228.68 | | |
| | | | | Taxes w/o Exemptions: | $4,228.68 | | |
Improvement / Building
| Improvement #1: | MANUFACTURED HOME | State Code: | 11 | 1440.0 sqft | Value: | $200,770 |
| Exterior Wall: | HARDBOARD | Heating/Cooling: | FORCED AIR | | Number of Bathrooms: | 2 | Number of Bedrooms: | 3 | | Plumbing: | 8 | Roof Covering: | COMP SHINGLE |
|
| | Type | Description | Class CD | Sub Class CD | Year Built | Area |
| | MOBHOME | MANUFACTURD HOMES | 1 | 20 | 1980 | 1440.0 |
| | BRW | BREEZEWAY | 1 | 20 | 0 | 280.0 |
| | MI1 | MH SET-UP COSTS | 1 | 20 | 0 | 1.0 |
| | TIP | MH ADDITION | 1 | 20 | 0 | 240.0 |
| | DTG | Detached Garage | 1 | 30 | 1980 | 1400.0 |
| | UTIL-STOR | UTILITY STORAGE | 1 | 20 | 1980 | 4320.0 |
| | UTIL-STOR | UTILITY STORAGE | 1 | 20 | 1980 | 4320.0 |
Sketch
Property Image
Land
| 1 | 8000-C1-I | Class 1 irrigated | 9.0000 | 0.00 | 0.00 | 0.00 | 1.00 | $72,000 | $0 |
| 2 | HS-120,000 | Homesite 120,000 | 1.0000 | 0.00 | 0.00 | 0.00 | 1.00 | $120,000 | $0 |
Roll Value History
| 2026 | N/A | N/A | N/A | N/A | N/A |
| 2025 | $200,770 | $192,000 | $0 | $392,770 | $392,770 |
| 2024 | $200,770 | $192,000 | $0 | $392,770 | $392,770 |
| 2023 | $200,770 | $192,000 | $0 | $392,770 | $392,770 |
| 2022 | $200,770 | $192,000 | $0 | $392,770 | $392,770 |
| 2021 | $110,180 | $147,000 | $0 | $257,180 | $257,180 |
| 2020 | $110,180 | $147,000 | $0 | $257,180 | $257,180 |
| 2019 | $110,180 | $147,000 | $11,740 | $196,920 | $196,920 |
| 2018 | $55,090 | $147,000 | $0 | $202,090 | $202,090 |
| 2017 | $55,090 | $107,000 | $0 | $162,090 | $61,400 |
| 2016 | $55,090 | $107,000 | $0 | $162,090 | $61,400 |
| 2015 | $46,100 | $107,000 | $0 | $153,100 | $61,240 |
| 2014 | $46,100 | $107,000 | $0 | $153,100 | $99,515 |
| 2013 | $46,100 | $107,000 | $0 | $153,100 | $99,515 |
| 2012 | $46,100 | $107,000 | $0 | $0 | $0 |
| 2011 | $46,100 | $107,000 | $0 | $0 | $0 |
| 2010 | $9,200 | $107,000 | $0 | $0 | $0 |
| 2009 | $92,500 | $61,000 | $0 | $0 | $0 |
| 2008 | $92,500 | $81,000 | $0 | $0 | $0 |
| 2007 | $92,500 | $81,000 | $0 | $0 | $0 |
Deed and Sales History
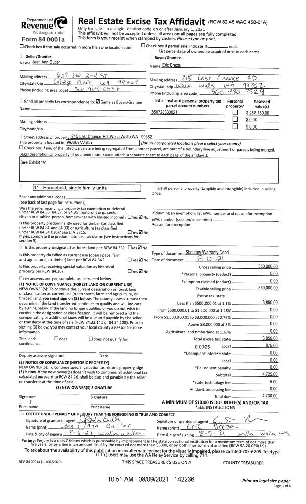
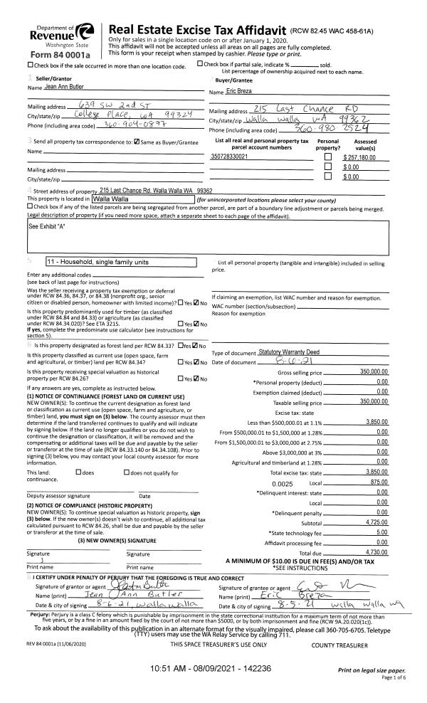
| 1 | 08/09/2021 | SWD | STATUTORY WARRANTY DEED | BUTLER JEAN ANN | BREZA ERIC | | | $350,000.00 | 142236 | 2021-09640 |
| 2 | 11/09/2020 | SWD | STATUTORY WARRANTY DEED | SORENSEN KHALID | BUTLER JEAN ANN | | | $415,000.00 | 140290 | 2020-11781 |
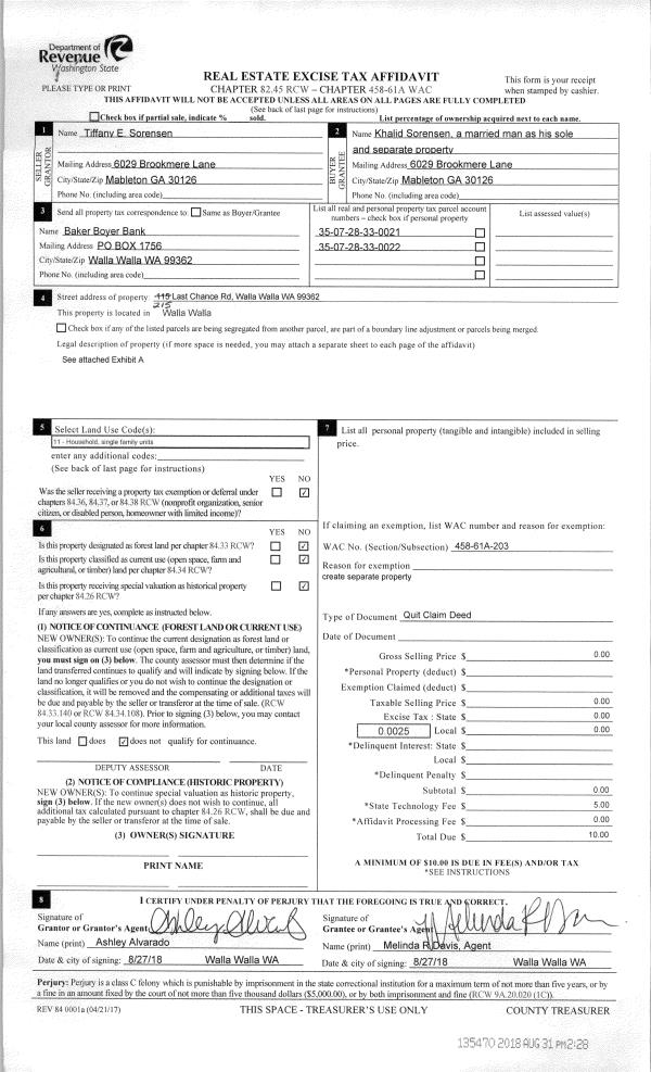
| 3 | 08/31/2018 | QCD | QUIT CLAIM DEED | SORENSEN TIFFANY E | SORENSEN KHALID | | 2-PARCLES | $0.00 | 135470 | 2018-07279 |
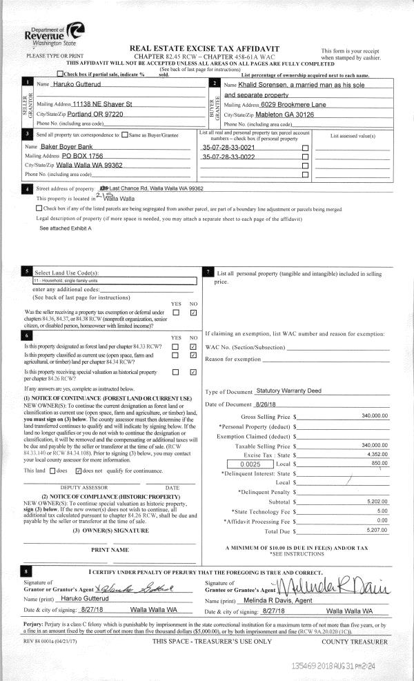
| 4 | 08/27/2018 | SWD | STATUTORY WARRANTY DEED | GUTTERUD HARUKO | SORENSEN KHALID | | 2-PARCELS | $340,000.00 | 135469 | 2018-07278 |
| 5 | 03/15/2018 | LOPA | LACK OF PROBATE AFFIDAVIT | GUTTERUD REUBEN & HARUKO | GUTTERUD HARUKO | | | $0.00 | 134321 | 2018-02036 |
| 6 | 06/06/2014 | DEATH CERT | DEATH CERTIFICATE | GUTTERUD RUEBEN ARDELL | | | | | 0 | 2014-03879 |
| 7 | 02/14/1980 | QCD | QUIT CLAIM DEED | | | | | $95,000.00 | 0 | 1190-026000 |
Payout Agreement
| No payout information available.. |