Property
Account |
| Property ID: | 31748 | Abbreviated Legal Description: | GREYSTONE ADDITION LOT 19 |
| Parcel Number: | 350726630019 | Agent Code: | |
| Type: | Real | | |
| Tax Area: | 75 - CP 250 | Land Use Code | 11 |
| Open Space: | N | DFL | N |
| Historic Property: | N | Remodel Property: | N |
| Multi-Family Redevelopment: | N | | |
| Township: | 7 | Section: | 26 |
| Range: | 35 |
Location |
| Address: | 22 NW EARL LN WA 99324 | Mapsco: | |
| Neighborhood: | A SFR | Map ID: | |
| Neighborhood CD: | 113011 |
Owner |
| Name: | CORSON ALVIN & RUTH LIVING TRUST | Owner ID: | 57615 |
| Mailing Address: | 22401 E CLAIRMONT LN UNIT 205 LIBERTY LAKE, WA 99019 | % Ownership: | 100.0000000000% |
| | | Exemptions: | |
Taxes and Assessment Details
Values
| (+) Improvement Homesite Value: | + | $0 | |
| (+) Improvement Non-Homesite Value: | + | $309,370 | |
| (+) Land Homesite Value: | + | $0 | |
| (+) Land Non-Homesite Value: | + | $70,000 | |
| (+) Curr Use (HS): | + | $0 | $0 |
| (+) Curr Use (NHS): | + | $0 | $0 |
| | | -------------------------- | |
| (=) Market Value: | = | $379,370 | |
| (–) Productivity Loss: | – | $0 | |
| | | -------------------------- | |
| (=) Subtotal: | = | $379,370 | |
| (+) Senior Appraised Value: | + | $0 | |
| (+) Non-Senior Appraised Value: | + | $379,370 | |
| | | -------------------------- | |
| (=) Total Appraised Value: | = | $379,370 | |
| (–) Senior Exemption Loss: | – | $0 | |
| (–) Exemption Loss: | – | $0 | |
| | | -------------------------- | |
| (=) Taxable Value: | = | $379,370 | |
Taxing Jurisdiction
| Owner: | CORSON ALVIN & RUTH LIVING TRUST | | |
| % Ownership: | 100.0000000000% | | |
| Total Value: | $379,370 | | |
| Tax Area: | 75 - CP 250 |
| CERFD | CURRENT EXPENSE REFUND 010 | 0.0000000000 | $379,370 | $379,370 | $0.00 | | |
| CURREXP | CURRENT EXPENSE 010 | 1.0175366760 | $379,370 | $379,370 | $386.02 | | |
| HUMNSERV | HUMAN SERVICES 119 | 0.0250000000 | $379,370 | $379,370 | $9.48 | | |
| SLDREL | SOLDIERS RELIEF 121 | 0.0155990005 | $379,370 | $379,370 | $5.92 | | |
| COLLPLBOND | C OF CP BOND 644 | 0.4374241808 | $379,370 | $379,370 | $165.95 | | |
| COLLPLGEN | CITY OF CP 632 | 1.4453819216 | $379,370 | $379,370 | $548.33 | | |
| EMERGSER | EMS 147 | 0.3792580840 | $379,370 | $379,370 | $143.88 | | |
| EMSRFD | EMS REFUND 147 | 0.0000000000 | $379,370 | $379,370 | $0.00 | | |
| RURALLIB | RURAL LIBRARY 623 | 0.3710609029 | $379,370 | $379,370 | $140.77 | | |
| PORTRFD | PORT REFUND 640 | 0.0000000000 | $379,370 | $379,370 | $0.00 | | |
| PORTWWGEN | PORT OF WW 640 | 0.2460186015 | $379,370 | $379,370 | $93.33 | | |
| SD250BOND | SD #250 BOND 773 | 1.4560608159 | $379,370 | $379,370 | $552.39 | | |
| SD250GEN | SD #250 GENERAL 770 | 2.3880724087 | $379,370 | $379,370 | $905.96 | | |
| ST2 | STATE SCHOOL PART 2 600 | 0.8131451643 | $379,370 | $379,370 | $308.48 | | |
| STATESCHL | STATE SCHOOL 600 | 1.5158548041 | $379,370 | $379,370 | $575.07 | | |
| STREFUND | STATE REFUND LEVY 603 | 0.0000000000 | $379,370 | $379,370 | $0.00 | | |
| | Total Tax Rate: | 10.1104125603 | | | | | |
| | | | | Taxes w/Current Exemptions: | $3,835.58 | | |
| | | | | Taxes w/o Exemptions: | $3,835.58 | | |
Improvement / Building
| Improvement #1: | RESIDENTIAL | State Code: | 11 | 1624.0 sqft | Value: | $309,370 |
| Exterior Wall: | SIDING | Heating/Cooling: | WARM & COOLED AIR | | Number of Bathrooms: | 2 | Number of Bedrooms: | 3 | | Plumbing: | 9 | Roof Covering: | COMP SHINGLE |
|
| | Type | Description | Class CD | Sub Class CD | Year Built | Area |
| | MA | Main Area | 1 | 30 | 1998 | 1624.0 |
| | SI1 | SITE IMPROVEMENT | 1 | 30 | 1998 | 2.0 |
| | ATG | Attached Garage | 1 | 30 | 1998 | 483.0 |
| | RPS | PORCH W/STEPS,ROOF | 1 | 30 | 1998 | 20.0 |
| | GFP | GAS FIREPLACE | 1 | 30 | 1998 | 1.0 |
| | RPC | OPEN PORCH W/ROOF , CEILED | 1 | 30 | 1998 | 144.0 |
Sketch
Property Image
Land
| 1 | RES 1 | Converted: Residential | 0.1386 | 6039.00 | 0.00 | 0.00 | 1.00 | $70,000 | $0 |
Roll Value History
| 2026 | N/A | N/A | N/A | N/A | N/A |
| 2025 | $243,630 | $140,000 | $0 | $383,630 | $383,630 |
| 2024 | $324,840 | $70,000 | $0 | $394,840 | $394,840 |
| 2023 | $309,370 | $70,000 | $0 | $379,370 | $379,370 |
| 2022 | $309,370 | $70,000 | $0 | $379,370 | $379,370 |
| 2021 | $213,360 | $70,000 | $0 | $283,360 | $283,360 |
| 2020 | $152,400 | $70,000 | $0 | $222,400 | $222,400 |
| 2019 | $167,400 | $55,000 | $0 | $222,400 | $222,400 |
| 2018 | $159,430 | $55,000 | $0 | $214,430 | $214,430 |
| 2017 | $138,630 | $55,000 | $0 | $193,630 | $193,630 |
| 2016 | $126,030 | $55,000 | $0 | $181,030 | $181,030 |
| 2015 | $114,570 | $55,000 | $0 | $169,570 | $169,570 |
| 2014 | $120,600 | $55,000 | $0 | $175,600 | $175,600 |
| 2013 | $60,300 | $27,500 | $0 | $87,800 | $87,800 |
| 2012 | $64,900 | $27,500 | $0 | $0 | $0 |
| 2011 | $69,800 | $27,500 | $0 | $0 | $0 |
| 2010 | $65,200 | $27,500 | $0 | $0 | $0 |
| 2009 | $75,500 | $27,500 | $0 | $0 | $0 |
| 2008 | $58,500 | $15,000 | $0 | $0 | $0 |
| 2007 | $58,500 | $15,000 | $0 | $0 | $0 |
Deed and Sales History
| 1 | 10/14/2015 | QCD | QUIT CLAIM DEED | CORSON ALVIN R & RUTH M | CORSON ALVIN & RUTH LIVING TRUST | | | | 129001 | 2015-09001 |
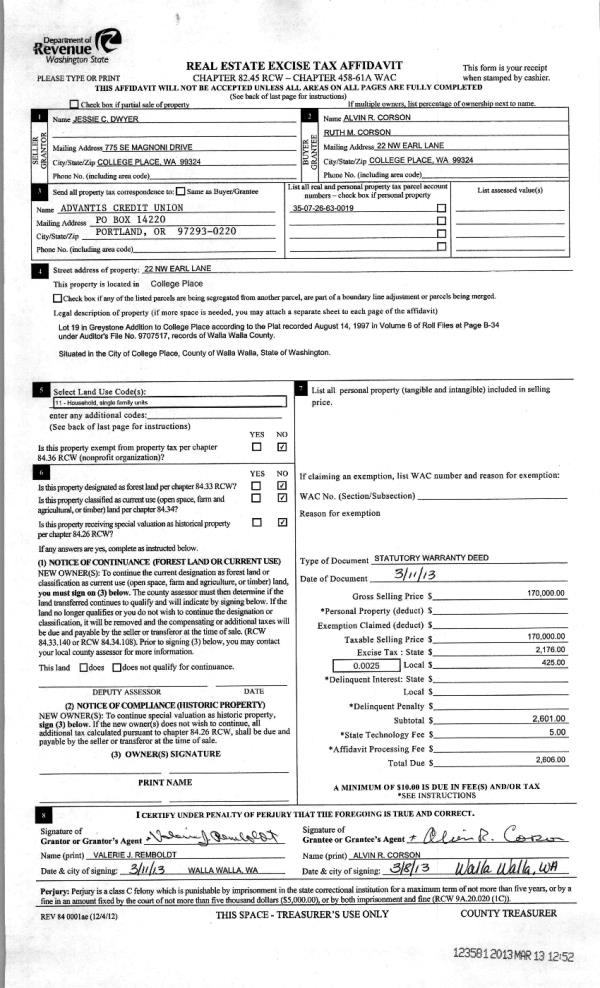
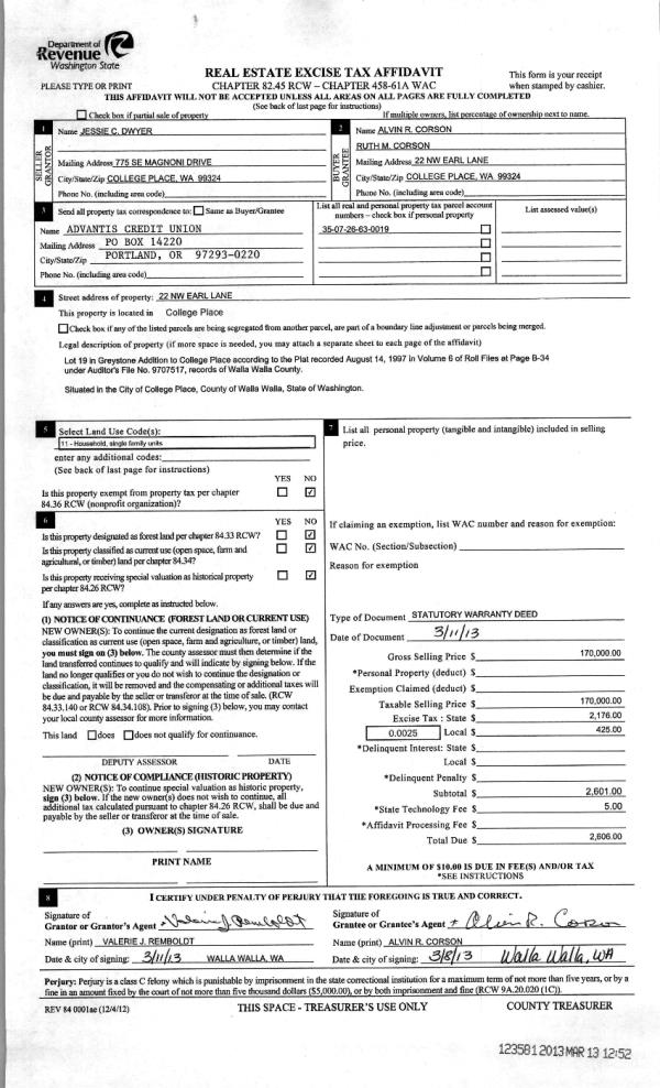
| 2 | 03/13/2013 | WARRANTY D | WARRANTY DEED | DWYER JESSIE C | CORSON ALVIN R & RUTH M | | | $170,000.00 | 123581 | 2013-02331 |
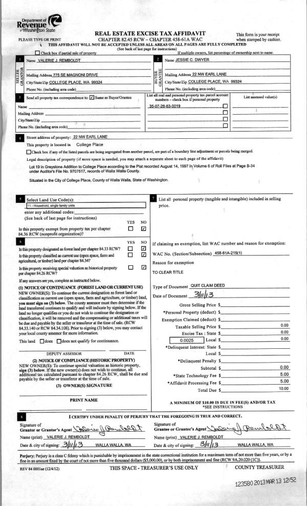
| 3 | 03/13/2013 | QCD | QUIT CLAIM DEED | DWYER JESSIE | DWYER JESSIE C | | | $0.00 | 123580 | 2013-02330 |
| 4 | 06/12/2002 | WARRANTY D | WARRANTY DEED | | | | | $148,700.00 | 99691 | 2002-0006826 |
Payout Agreement
| No payout information available.. |