Property
Account |
| Property ID: | 3174 | Abbreviated Legal Description: | GRAYS MEADOW LOT 1 |
| Parcel Number: | 350601510001 | Agent Code: | |
| Type: | Real | | |
| Tax Area: | 311 - 250-4 | Land Use Code | 11 |
| Open Space: | N | DFL | N |
| Historic Property: | N | Remodel Property: | N |
| Multi-Family Redevelopment: | N | | |
| Township: | 6 | Section: | 1 |
| Range: | 35 |
Location |
| Address: | 1960 GRAY LYNN DR WA 99324 | Mapsco: | |
| Neighborhood: | VG SFR Rural/City Inf | Map ID: | |
| Neighborhood CD: | 115012 |
Owner |
| Name: | BROCKERT JEFFREY R & BRITTANY M | Owner ID: | 70214 |
| Mailing Address: | 111 FINN HALL RD WOODLAND, WA 98674-9625 | % Ownership: | 100.0000000000% |
| | | Exemptions: | |
Taxes and Assessment Details
Property Tax Information as of
02/21/2026
Click on "Statement Details" to expand or collapse a tax statement.
* Please enter a valid date ** Please enter a valid date *
Statement Details |
| | TOTAL: | $0.00 | $0.00 | $0.00 | $0.00 | $0.00 | $0.00 |
|
| | $0.00 | $0.00 | $0.00 | $0.00 | $0.00 | $0.00 |
Values
| (+) Improvement Homesite Value: | + | $0 | |
| (+) Improvement Non-Homesite Value: | + | $538,240 | |
| (+) Land Homesite Value: | + | $0 | |
| (+) Land Non-Homesite Value: | + | $125,000 | |
| (+) Curr Use (HS): | + | $0 | $0 |
| (+) Curr Use (NHS): | + | $0 | $0 |
| | | -------------------------- | |
| (=) Market Value: | = | $663,240 | |
| (–) Productivity Loss: | – | $0 | |
| | | -------------------------- | |
| (=) Subtotal: | = | $663,240 | |
| (+) Senior Appraised Value: | + | $0 | |
| (+) Non-Senior Appraised Value: | + | $663,240 | |
| | | -------------------------- | |
| (=) Total Appraised Value: | = | $663,240 | |
| (–) Senior Exemption Loss: | – | $0 | |
| (–) Exemption Loss: | – | $0 | |
| | | -------------------------- | |
| (=) Taxable Value: | = | $663,240 | |
Taxing Jurisdiction
| Owner: | BROCKERT JEFFREY R & BRITTANY M | | |
| % Ownership: | 100.0000000000% | | |
| Total Value: | $663,240 | | |
| Tax Area: | 311 - 250-4 |
| CERFD | CURRENT EXPENSE REFUND 010 | 0.0000000000 | $663,240 | $663,240 | $0.00 | | |
| CURREXP | CURRENT EXPENSE 010 | 1.0175366760 | $663,240 | $663,240 | $674.87 | | |
| HUMNSERV | HUMAN SERVICES 119 | 0.0250000000 | $663,240 | $663,240 | $16.58 | | |
| SLDREL | SOLDIERS RELIEF 121 | 0.0155990005 | $663,240 | $663,240 | $10.35 | | |
| EMERGSER | EMS 147 | 0.3792580840 | $663,240 | $663,240 | $251.54 | | |
| EMSRFD | EMS REFUND 147 | 0.0000000000 | $663,240 | $663,240 | $0.00 | | |
| FD4EXP | FD #4 EXPENSE 686 | 0.8836993059 | $663,240 | $663,240 | $586.10 | | |
| RLBRFD | RURAL LIBRARY REFUND 623 | 0.0000000000 | $663,240 | $663,240 | $0.00 | | |
| RURALLIB | RURAL LIBRARY 623 | 0.3710609029 | $663,240 | $663,240 | $246.10 | | |
| PORTRFD | PORT REFUND 640 | 0.0000000000 | $663,240 | $663,240 | $0.00 | | |
| PORTWWGEN | PORT OF WW 640 | 0.2460186015 | $663,240 | $663,240 | $163.17 | | |
| SD250BOND | SD #250 BOND 773 | 1.4560608159 | $663,240 | $663,240 | $965.72 | | |
| SD250GEN | SD #250 GENERAL 770 | 2.3880724087 | $663,240 | $663,240 | $1,583.87 | | |
| ST2 | STATE SCHOOL PART 2 600 | 0.8131451643 | $663,240 | $663,240 | $539.31 | | |
| STATESCHL | STATE SCHOOL 600 | 1.5158548041 | $663,240 | $663,240 | $1,005.38 | | |
| STREFUND | STATE REFUND LEVY 603 | 0.0000000000 | $663,240 | $663,240 | $0.00 | | |
| COROAD | COUNTY ROAD 115 | 1.6549953990 | $663,240 | $663,240 | $1,097.66 | | |
| CRPRD | COUNTY ROAD REFUND 115 | 0.0000000000 | $663,240 | $663,240 | $0.00 | | |
| | Total Tax Rate: | 10.7663011628 | | | | | |
| | | | | Taxes w/Current Exemptions: | $7,140.65 | | |
| | | | | Taxes w/o Exemptions: | $7,140.65 | | |
Improvement / Building
| Improvement #1: | RESIDENTIAL | State Code: | 11 | 1516.0 sqft | Value: | $538,240 |
| Exterior Wall: | SIDING | Heating/Cooling: | WARM & COOLED AIR | | Number of Bathrooms: | 3 | Number of Bedrooms: | 4 | | Plumbing: | 11 | Roof Covering: | COMP SHINGLE |
|
| | Type | Description | Class CD | Sub Class CD | Year Built | Area |
| | MA | Main Area | 1 | 35 | 1972 | 1516.0 |
| | SI1 | SITE IMPROVEMENT | 1 | 35 | 1972 | 3.2 |
| | BASE | BASEMENT | 1 | 35 | 1972 | 1503.0 |
| | BPF | BASEMENT -PARTITIONED FINISH | 1 | 35 | 1972 | 1503.0 |
| | ATG | Attached Garage | 1 | 35 | 1972 | 506.0 |
| | RPS | PORCH W/STEPS,ROOF | 1 | 35 | 1972 | 49.0 |
| | WOD | Wood Deck | 1 | 35 | 1972 | 144.0 |
| | D2F | Double 2 Story Fireplace | 1 | 35 | 1972 | 1.0 |
| | POL1 | POLE BUILDING-GRAVEL | 1 | 30 | 1972 | 864.0 |
| | TOOL | TOOL SHED | 1 | 30 | 1972 | 384.0 |
| | BNV | BUILDING NO VALUE | 1 | 30 | 1972 | 220.0 |
Sketch
Property Image
Land
| 1 | RES 1 | Converted: Residential | 2.0000 | 0.00 | 0.00 | 0.00 | 1.00 | $125,000 | $0 |
Roll Value History
| 2026 | N/A | N/A | N/A | N/A | N/A |
| 2025 | $511,330 | $237,000 | $0 | $748,330 | $748,330 |
| 2024 | $538,240 | $125,000 | $0 | $663,240 | $663,240 |
| 2023 | $538,240 | $125,000 | $0 | $663,240 | $663,240 |
| 2022 | $468,040 | $125,000 | $0 | $593,040 | $593,040 |
| 2021 | $360,030 | $125,000 | $0 | $485,030 | $485,030 |
| 2020 | $205,730 | $125,000 | $0 | $330,730 | $330,730 |
| 2019 | $236,730 | $94,000 | $0 | $330,730 | $330,730 |
| 2018 | $225,460 | $94,000 | $0 | $319,460 | $319,460 |
| 2017 | $225,460 | $94,000 | $0 | $319,460 | $319,460 |
| 2016 | $187,880 | $94,000 | $0 | $281,880 | $281,880 |
| 2015 | $170,800 | $94,000 | $0 | $264,800 | $264,800 |
| 2014 | $170,800 | $94,000 | $0 | $264,800 | $264,800 |
| 2013 | $170,800 | $94,000 | $0 | $264,800 | $264,800 |
| 2012 | $184,700 | $94,000 | $0 | $0 | $0 |
| 2011 | $154,700 | $124,000 | $0 | $0 | $0 |
| 2010 | $154,700 | $124,000 | $0 | $0 | $0 |
| 2009 | $169,400 | $124,000 | $0 | $0 | $0 |
| 2008 | $179,300 | $66,000 | $0 | $0 | $0 |
| 2007 | $179,300 | $66,000 | $0 | $0 | $0 |
Deed and Sales History
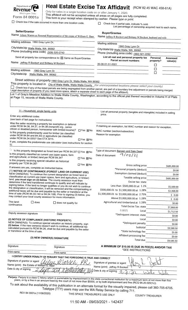
| 1 | 09/03/2021 | BARGAIN & | BARGAIN & SALE DEED | BAER WILLIAM G ESTATE OF | BROCKERT JEFFREY R & BRITTANY M | | | $685,000.00 | 142437 | 2021-10901 |
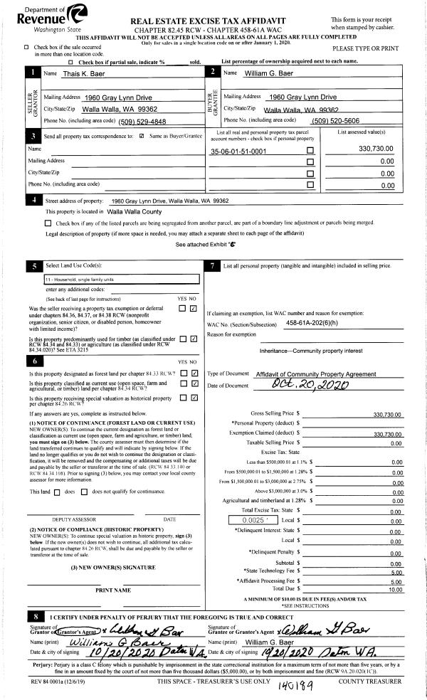
| 2 | 10/27/2020 | AFFIDAVIT | AFFIDAVIT | BAER WILLIAM G & THAIS K | BAER WILLIAM G ESTATE OF | | | | 140189 | 2020-11186 |
| 3 | 04/18/1990 | QCD | QUIT CLAIM DEED | | | | | $0.00 | 0 | 1829-002545 |
Payout Agreement
| No payout information available.. |