Property
Account |
| Property ID: | 31735 | Abbreviated Legal Description: | 35-7-35 TAX 25 PLUS 5' STRIP TO W, LESS ELY 12' STRIP |
| Parcel Number: | 350735440052 | Agent Code: | |
| Type: | Real | | |
| Tax Area: | 75 - CP 250 | Land Use Code | 11 |
| Open Space: | N | DFL | N |
| Historic Property: | N | Remodel Property: | N |
| Multi-Family Redevelopment: | N | | |
| Township: | 7 | Section: | 35 |
| Range: | 35 |
Location |
| Address: | 16 SW 13TH ST WA 99324 | Mapsco: | |
| Neighborhood: | A SFR | Map ID: | |
| Neighborhood CD: | 113011 |
Owner |
| Name: | DYER JANTZEN MACKENZIE & KRISTY VICKROY | Owner ID: | 69342 |
| Mailing Address: | 16 SW 13TH ST COLLEGE PLACE, WA 99324 | % Ownership: | 100.0000000000% |
| | | Exemptions: | |
Taxes and Assessment Details
Values
| (+) Improvement Homesite Value: | + | $0 | |
| (+) Improvement Non-Homesite Value: | + | $290,590 | |
| (+) Land Homesite Value: | + | $0 | |
| (+) Land Non-Homesite Value: | + | $63,540 | |
| (+) Curr Use (HS): | + | $0 | $0 |
| (+) Curr Use (NHS): | + | $0 | $0 |
| | | -------------------------- | |
| (=) Market Value: | = | $354,130 | |
| (–) Productivity Loss: | – | $0 | |
| | | -------------------------- | |
| (=) Subtotal: | = | $354,130 | |
| (+) Senior Appraised Value: | + | $0 | |
| (+) Non-Senior Appraised Value: | + | $354,130 | |
| | | -------------------------- | |
| (=) Total Appraised Value: | = | $354,130 | |
| (–) Senior Exemption Loss: | – | $0 | |
| (–) Exemption Loss: | – | $0 | |
| | | -------------------------- | |
| (=) Taxable Value: | = | $354,130 | |
Taxing Jurisdiction
| Owner: | DYER JANTZEN MACKENZIE & KRISTY VICKROY | | |
| % Ownership: | 100.0000000000% | | |
| Total Value: | $354,130 | | |
| Tax Area: | 75 - CP 250 |
| CERFD | CURRENT EXPENSE REFUND 010 | 0.0000000000 | $354,130 | $354,130 | $0.00 | | |
| CURREXP | CURRENT EXPENSE 010 | 1.0175366760 | $354,130 | $354,130 | $360.34 | | |
| HUMNSERV | HUMAN SERVICES 119 | 0.0250000000 | $354,130 | $354,130 | $8.85 | | |
| SLDREL | SOLDIERS RELIEF 121 | 0.0155990005 | $354,130 | $354,130 | $5.52 | | |
| COLLPLBOND | C OF CP BOND 644 | 0.4374241808 | $354,130 | $354,130 | $154.91 | | |
| COLLPLGEN | CITY OF CP 632 | 1.4453819216 | $354,130 | $354,130 | $511.85 | | |
| EMERGSER | EMS 147 | 0.3792580840 | $354,130 | $354,130 | $134.31 | | |
| EMSRFD | EMS REFUND 147 | 0.0000000000 | $354,130 | $354,130 | $0.00 | | |
| RURALLIB | RURAL LIBRARY 623 | 0.3710609029 | $354,130 | $354,130 | $131.40 | | |
| PORTRFD | PORT REFUND 640 | 0.0000000000 | $354,130 | $354,130 | $0.00 | | |
| PORTWWGEN | PORT OF WW 640 | 0.2460186015 | $354,130 | $354,130 | $87.12 | | |
| SD250BOND | SD #250 BOND 773 | 1.4560608159 | $354,130 | $354,130 | $515.63 | | |
| SD250GEN | SD #250 GENERAL 770 | 2.3880724087 | $354,130 | $354,130 | $845.69 | | |
| ST2 | STATE SCHOOL PART 2 600 | 0.8131451643 | $354,130 | $354,130 | $287.96 | | |
| STATESCHL | STATE SCHOOL 600 | 1.5158548041 | $354,130 | $354,130 | $536.81 | | |
| STREFUND | STATE REFUND LEVY 603 | 0.0000000000 | $354,130 | $354,130 | $0.00 | | |
| | Total Tax Rate: | 10.1104125603 | | | | | |
| | | | | Taxes w/Current Exemptions: | $3,580.39 | | |
| | | | | Taxes w/o Exemptions: | $3,580.39 | | |
Improvement / Building
| Improvement #1: | RESIDENTIAL | State Code: | 11 | 1352.0 sqft | Value: | $290,590 |
| Exterior Wall: | STUCCO | Heating/Cooling: | REV-HEAT-PUMP-W/DUCT | | Number of Bathrooms: | 2 | Number of Bedrooms: | 3 | | Plumbing: | 10 | Roof Covering: | COMP SHINGLE |
|
| | Type | Description | Class CD | Sub Class CD | Year Built | Area |
| | MA | Main Area | 1 | 30 | 1946 | 1352.0 |
| | SI1 | SITE IMPROVEMENT | 1 | 30 | 1946 | 2.0 |
| | BASE | BASEMENT | 1 | 30 | 1946 | 1320.0 |
| | BPF | BASEMENT -PARTITIONED FINISH | 1 | 30 | 1946 | 1320.0 |
| | DTG | Detached Garage | 1 | 30 | 1946 | 440.0 |
| | S1F | Single One Story Fireplace | 1 | 30 | 1946 | 1.0 |
| | CPC | COVERED CARPORT/PATIO | 1 | 30 | 1946 | 300.0 |
Sketch
Property Image
Land
| 1 | RES 1 | Converted: Residential | 0.3300 | 14374.00 | 0.00 | 0.00 | 1.00 | $63,540 | $0 |
Roll Value History
| 2026 | N/A | N/A | N/A | N/A | N/A |
| 2025 | $290,590 | $96,160 | $0 | $386,750 | $386,750 |
| 2024 | $290,590 | $63,540 | $0 | $354,130 | $354,130 |
| 2023 | $290,590 | $63,540 | $0 | $354,130 | $354,130 |
| 2022 | $264,170 | $63,540 | $0 | $327,710 | $327,710 |
| 2021 | $203,210 | $63,540 | $0 | $266,750 | $266,750 |
| 2020 | $145,150 | $63,540 | $0 | $208,690 | $208,690 |
| 2019 | $157,890 | $50,800 | $0 | $208,690 | $208,690 |
| 2018 | $137,290 | $50,800 | $0 | $188,090 | $188,090 |
| 2017 | $137,290 | $50,800 | $0 | $188,090 | $188,090 |
| 2016 | $119,390 | $50,800 | $0 | $170,190 | $170,190 |
| 2015 | $113,700 | $50,800 | $0 | $164,500 | $164,500 |
| 2014 | $113,700 | $50,800 | $0 | $164,500 | $164,500 |
| 2013 | $113,700 | $50,800 | $0 | $164,500 | $164,500 |
| 2012 | $113,700 | $50,800 | $0 | $0 | $0 |
| 2011 | $113,700 | $50,800 | $0 | $0 | $0 |
| 2010 | $113,700 | $50,800 | $0 | $0 | $0 |
| 2009 | $132,000 | $50,800 | $0 | $0 | $0 |
| 2008 | $119,700 | $28,600 | $0 | $0 | $0 |
| 2007 | $86,800 | $28,600 | $0 | $0 | $0 |
Deed and Sales History
| 1 | 05/07/2021 | SWD | STATUTORY WARRANTY DEED | GODDARD CHRISTOPHER | DYER JANTZEN MACKENZIE & KRISTY VICKROY | | | $382,000.00 | 141506 | 2021-05506 |
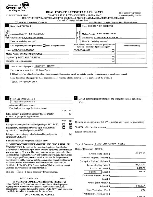
| 2 | 10/30/2015 | SWD | STATUTORY WARRANTY DEED | LEROUE JIM S & JANET E | GODDARD CHRISTOPHER | | | $189,900.00 | 129105 | 2015-09512 |
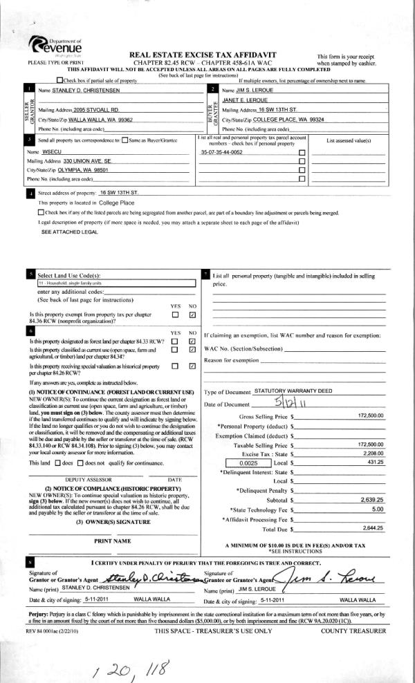
| 3 | 05/12/2011 | WARRANTY D | WARRANTY DEED | CHRISTENSEN, STANLEY D | LEROUE, JIM S & JANET E | | | $172,500.00 | 120118 | 2011-03740 |
| 4 | 04/01/2010 | WARRANTY D | WARRANTY DEED | NORTHWEST TRUSTEE SERVICES INC | CHRISTENSEN, STANLEY D | | | $127,521.00 | 118283 | 2010-02655 |
| 5 | 07/31/2007 | WARRANTY D | WARRANTY DEED | MASSEY RUTH | BOESE DONNA M | | | | 113400 | 2007-08873 |
| 6 | 09/18/1975 | WARRANTY D | WARRANTY DEED | | | | | $0.00 | 0 | 1929-107736 |
Payout Agreement
| No payout information available.. |