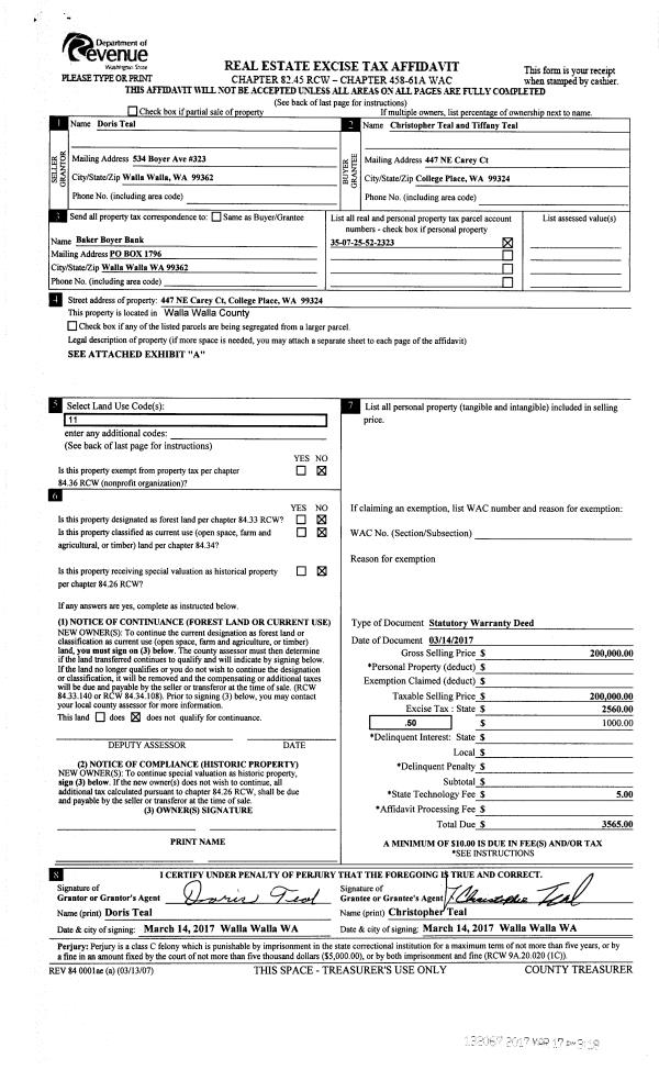
Property
Account |
| Property ID: | 31733 | Abbreviated Legal Description: | BLALOCK ORCHARDS TAX 15 LOT 6 BLK 23 |
| Parcel Number: | 350725522323 | Agent Code: | |
| Type: | Real | | |
| Tax Area: | 77 - CP-250-F | Land Use Code | 11 |
| Open Space: | N | DFL | N |
| Historic Property: | N | Remodel Property: | N |
| Multi-Family Redevelopment: | N | | |
| Township: | 7 | Section: | 25 |
| Range: | 35 |
Location |
| Address: | 447 NE CAREY CT WA 99324 | Mapsco: | |
| Neighborhood: | A SFR | Map ID: | |
| Neighborhood CD: | 113011 |
Owner |
| Name: | TEAL CHRISTOPHER & TIFFANY | Owner ID: | 60563 |
| Mailing Address: | 447 NE CAREY CT COLLEGE PLACE, WA 99324 | % Ownership: | 100.0000000000% |
| | | Exemptions: | |
Taxes and Assessment Details
Property Tax Information as of
02/21/2026
Click on "Statement Details" to expand or collapse a tax statement.
* Please enter a valid date ** Please enter a valid date *
Statement Details |
| | TOTAL: | $0.00 | $0.00 | $0.00 | $0.00 | $0.00 | $0.00 |
|
| | $0.00 | $0.00 | $0.00 | $0.00 | $0.00 | $0.00 |
Values
| (+) Improvement Homesite Value: | + | $201,080 | |
| (+) Improvement Non-Homesite Value: | + | $0 | |
| (+) Land Homesite Value: | + | $187,880 | |
| (+) Land Non-Homesite Value: | + | $0 | |
| (+) Curr Use (HS): | + | $0 | $0 |
| (+) Curr Use (NHS): | + | $0 | $0 |
| | | -------------------------- | |
| (=) Market Value: | = | $388,960 | |
| (–) Productivity Loss: | – | $0 | |
| | | -------------------------- | |
| (=) Subtotal: | = | $388,960 | |
| (+) Senior Appraised Value: | + | $0 | |
| (+) Non-Senior Appraised Value: | + | $388,960 | |
| | | -------------------------- | |
| (=) Total Appraised Value: | = | $388,960 | |
| (–) Senior Exemption Loss: | – | $0 | |
| (–) Exemption Loss: | – | $0 | |
| | | -------------------------- | |
| (=) Taxable Value: | = | $388,960 | |
Taxing Jurisdiction
| Owner: | TEAL CHRISTOPHER & TIFFANY | | |
| % Ownership: | 100.0000000000% | | |
| Total Value: | $388,960 | | |
| Tax Area: | 77 - CP-250-F |
| CERFD | CURRENT EXPENSE REFUND 010 | 0.0000000000 | $388,960 | $388,960 | $0.00 | | |
| CURREXP | CURRENT EXPENSE 010 | 1.0175366760 | $388,960 | $388,960 | $395.78 | | |
| HUMNSERV | HUMAN SERVICES 119 | 0.0250000000 | $388,960 | $388,960 | $9.72 | | |
| SLDREL | SOLDIERS RELIEF 121 | 0.0155990005 | $388,960 | $388,960 | $6.07 | | |
| COLLPLBOND | C OF CP BOND 644 | 0.4374241808 | $388,960 | $388,960 | $170.14 | | |
| COLLPLGEN | CITY OF CP 632 | 1.4453819216 | $388,960 | $388,960 | $562.20 | | |
| EMERGSER | EMS 147 | 0.3792580840 | $388,960 | $388,960 | $147.52 | | |
| EMSRFD | EMS REFUND 147 | 0.0000000000 | $388,960 | $388,960 | $0.00 | | |
| RURALLIB | RURAL LIBRARY 623 | 0.3710609029 | $388,960 | $388,960 | $144.33 | | |
| PORTRFD | PORT REFUND 640 | 0.0000000000 | $388,960 | $388,960 | $0.00 | | |
| PORTWWGEN | PORT OF WW 640 | 0.2460186015 | $388,960 | $388,960 | $95.69 | | |
| SD250BOND | SD #250 BOND 773 | 1.4560608159 | $388,960 | $388,960 | $566.35 | | |
| SD250GEN | SD #250 GENERAL 770 | 2.3880724087 | $388,960 | $388,960 | $928.86 | | |
| ST2 | STATE SCHOOL PART 2 600 | 0.8131451643 | $388,960 | $388,960 | $316.28 | | |
| STATESCHL | STATE SCHOOL 600 | 1.5158548041 | $388,960 | $388,960 | $589.61 | | |
| STREFUND | STATE REFUND LEVY 603 | 0.0000000000 | $388,960 | $388,960 | $0.00 | | |
| | Total Tax Rate: | 10.1104125603 | | | | | |
| | | | | Taxes w/Current Exemptions: | $3,932.55 | | |
| | | | | Taxes w/o Exemptions: | $3,932.55 | | |
Improvement / Building
| Improvement #1: | RESIDENTIAL | State Code: | 11 | 1587.0 sqft | Value: | $201,080 |
| Exterior Wall: | SIDING | Heating/Cooling: | FORCED AIR | | Number of Bathrooms: | 2 | Number of Bedrooms: | 3 | | Plumbing: | 8 | Roof Covering: | COMP SHINGLE |
|
| | Type | Description | Class CD | Sub Class CD | Year Built | Area |
| | MA | Main Area | 1 | 30 | 1953 | 1587.0 |
| | SI1 | SITE IMPROVEMENT | 1 | 30 | 1953 | 1.0 |
| | BASE | BASEMENT | 1 | 30 | 1953 | 1183.0 |
| | BRF | BASEMENT - REC FINISH | 1 | 30 | 1953 | 589.0 |
| | OSP | Open | 1 | 30 | 1953 | 80.0 |
| | WOD | Wood Deck | 1 | 30 | 1953 | 180.0 |
| | CPC | COVERED CARPORT/PATIO | 1 | 30 | 1953 | 408.0 |
| | POL1 | POLE BUILDING-GRAVEL | 1 | 30 | 1953 | 896.0 |
Sketch
Property Image
Land
| 1 | RES 1 | Converted: Residential | 1.3000 | 56628.00 | 0.00 | 0.00 | 1.00 | $187,880 | $0 |
Roll Value History
| 2026 | N/A | N/A | N/A | N/A | N/A |
| 2025 | $170,920 | $153,160 | $0 | $324,080 | $324,080 |
| 2024 | $201,080 | $187,880 | $0 | $388,960 | $388,960 |
| 2023 | $201,080 | $187,880 | $0 | $388,960 | $388,960 |
| 2022 | $182,800 | $187,880 | $0 | $370,680 | $370,680 |
| 2021 | $146,240 | $187,880 | $0 | $334,120 | $334,120 |
| 2020 | $73,120 | $187,880 | $0 | $261,000 | $261,000 |
| 2019 | $73,120 | $187,880 | $0 | $261,000 | $261,000 |
| 2018 | $73,120 | $187,880 | $0 | $261,000 | $261,000 |
| 2017 | $73,120 | $187,880 | $0 | $261,000 | $261,000 |
| 2016 | $91,400 | $187,880 | $0 | $279,280 | $279,280 |
| 2015 | $86,700 | $217,800 | $0 | $304,500 | $304,500 |
| 2014 | $86,700 | $217,800 | $0 | $304,500 | $11,800 |
| 2013 | $86,700 | $217,800 | $0 | $304,500 | $11,800 |
| 2012 | $86,700 | $217,800 | $0 | $0 | $0 |
| 2011 | $86,700 | $217,800 | $0 | $0 | $0 |
| 2010 | $86,700 | $217,800 | $0 | $0 | $0 |
| 2009 | $86,700 | $217,800 | $0 | $0 | $0 |
| 2008 | $91,800 | $45,000 | $0 | $0 | $0 |
| 2007 | $91,800 | $45,000 | $0 | $0 | $0 |
Deed and Sales History
| 1 | 03/17/2017 | SWD | STATUTORY WARRANTY DEED | TEAL DORIS | TEAL CHRISTOPHER & TIFFANY | | | $200,000.00 | 132067 | 2017-02072 |
| 2 | 05/11/2016 | COMMUNITY | COMMUNITY PROPERTY AGREEMENT | TEAL ALFRED ROBERT & DORIS | TEAL DORIS | | | | 0 | 2016-03529 |
| 3 | 03/08/2016 | DEATH CERT | DEATH CERTIFICATE | TEAL ALFRED ROBERT | | | | | 0 | |
| 4 | 10/23/1980 | SHORT PLAT | SHORT PLAT | | | | | | 0 | 1980-08509 |
| 5 | 08/01/1964 | WARRANTY D | WARRANTY DEED | | | | | $10,500.00 | 0 | 3110-459562 |
Payout Agreement
| No payout information available.. |