Property
Account |
| Property ID: | 31731 | Abbreviated Legal Description: | |
| Parcel Number: | 350725230050 | Agent Code: | |
| Type: | Real | | |
| Tax Area: | 313 - 250-F-4 | Land Use Code | 11 |
| Open Space: | N | DFL | N |
| Historic Property: | N | Remodel Property: | N |
| Multi-Family Redevelopment: | N | | |
| Township: | 7 | Section: | 25 |
| Range: | 35 |
Location |
| Address: | 841 NE DAMSON AVE WA 99362 | Mapsco: | |
| Neighborhood: | A SFR Rural/City Infl | Map ID: | |
| Neighborhood CD: | 313012 |
Owner |
| Name: | TELLO ABIGAIL GARCIA & RAUL GARCIA JIMENEZ | Owner ID: | 67626 |
| Mailing Address: | 841 NE DAMSON AVE WALLA WALLA, WA 99362 | % Ownership: | 100.0000000000% |
| | | Exemptions: | |
Taxes and Assessment Details
Values
| (+) Improvement Homesite Value: | + | $148,850 | |
| (+) Improvement Non-Homesite Value: | + | $0 | |
| (+) Land Homesite Value: | + | $139,950 | |
| (+) Land Non-Homesite Value: | + | $0 | |
| (+) Curr Use (HS): | + | $0 | $0 |
| (+) Curr Use (NHS): | + | $0 | $0 |
| | | -------------------------- | |
| (=) Market Value: | = | $288,800 | |
| (–) Productivity Loss: | – | $0 | |
| | | -------------------------- | |
| (=) Subtotal: | = | $288,800 | |
| (+) Senior Appraised Value: | + | $0 | |
| (+) Non-Senior Appraised Value: | + | $288,800 | |
| | | -------------------------- | |
| (=) Total Appraised Value: | = | $288,800 | |
| (–) Senior Exemption Loss: | – | $0 | |
| (–) Exemption Loss: | – | $0 | |
| | | -------------------------- | |
| (=) Taxable Value: | = | $288,800 | |
Taxing Jurisdiction
| Owner: | TELLO ABIGAIL GARCIA & RAUL GARCIA JIMENEZ | | |
| % Ownership: | 100.0000000000% | | |
| Total Value: | $288,800 | | |
| Tax Area: | 313 - 250-F-4 |
| CERFD | CURRENT EXPENSE REFUND 010 | 0.0000000000 | $288,800 | $288,800 | $0.00 | | |
| CURREXP | CURRENT EXPENSE 010 | 1.0175366760 | $288,800 | $288,800 | $293.86 | | |
| HUMNSERV | HUMAN SERVICES 119 | 0.0250000000 | $288,800 | $288,800 | $7.22 | | |
| SLDREL | SOLDIERS RELIEF 121 | 0.0155990005 | $288,800 | $288,800 | $4.50 | | |
| EMERGSER | EMS 147 | 0.3792580840 | $288,800 | $288,800 | $109.53 | | |
| EMSRFD | EMS REFUND 147 | 0.0000000000 | $288,800 | $288,800 | $0.00 | | |
| FD4EXP | FD #4 EXPENSE 686 | 0.8836993059 | $288,800 | $288,800 | $255.21 | | |
| RLBRFD | RURAL LIBRARY REFUND 623 | 0.0000000000 | $288,800 | $288,800 | $0.00 | | |
| RURALLIB | RURAL LIBRARY 623 | 0.3710609029 | $288,800 | $288,800 | $107.16 | | |
| PORTRFD | PORT REFUND 640 | 0.0000000000 | $288,800 | $288,800 | $0.00 | | |
| PORTWWGEN | PORT OF WW 640 | 0.2460186015 | $288,800 | $288,800 | $71.05 | | |
| SD250BOND | SD #250 BOND 773 | 1.4560608159 | $288,800 | $288,800 | $420.51 | | |
| SD250GEN | SD #250 GENERAL 770 | 2.3880724087 | $288,800 | $288,800 | $689.68 | | |
| ST2 | STATE SCHOOL PART 2 600 | 0.8131451643 | $288,800 | $288,800 | $234.84 | | |
| STATESCHL | STATE SCHOOL 600 | 1.5158548041 | $288,800 | $288,800 | $437.78 | | |
| STREFUND | STATE REFUND LEVY 603 | 0.0000000000 | $288,800 | $288,800 | $0.00 | | |
| COROAD | COUNTY ROAD 115 | 1.6549953990 | $288,800 | $288,800 | $477.96 | | |
| CRPRD | COUNTY ROAD REFUND 115 | 0.0000000000 | $288,800 | $288,800 | $0.00 | | |
| | Total Tax Rate: | 10.7663011628 | | | | | |
| | | | | Taxes w/Current Exemptions: | $3,109.30 | | |
| | | | | Taxes w/o Exemptions: | $3,109.30 | | |
Improvement / Building
| Improvement #1: | RESIDENTIAL | State Code: | 11 | 925.0 sqft | Value: | $148,850 |
| Exterior Wall: | PLYWOOD | Heating/Cooling: | FORCED AIR | | Number of Bathrooms: | 1.5 | Number of Bedrooms: | 2 | | Plumbing: | 8 | Roof Covering: | COMP SHINGLE |
|
| | Type | Description | Class CD | Sub Class CD | Year Built | Area |
| | MA | Main Area | 1 | 30 | 1932 | 925.0 |
| | SI1 | SITE IMPROVEMENT | 1 | 30 | 0 | 1.0 |
| | BASE | BASEMENT | 1 | 30 | 1932 | 925.0 |
| | BRF | BASEMENT - REC FINISH | 1 | 30 | 1932 | 700.0 |
| | DTG | Detached Garage | 1 | 30 | 1932 | 576.0 |
| | WDR | WOOD DECK W/ROOF | 1 | 30 | 1932 | 98.0 |
| | POL1 | POLE BUILDING-GRAVEL | 1 | 30 | 1932 | 768.0 |
Sketch
Property Image
Land
| 1 | RES 1 | Converted: Residential | 2.9700 | 0.00 | 0.00 | 0.00 | 1.00 | $139,950 | $0 |
Roll Value History
| 2026 | N/A | N/A | N/A | N/A | N/A |
| 2025 | $250,070 | $139,950 | $0 | $390,020 | $390,020 |
| 2024 | $208,390 | $139,950 | $0 | $348,340 | $348,340 |
| 2023 | $148,850 | $139,950 | $0 | $288,800 | $288,800 |
| 2022 | $148,850 | $139,950 | $0 | $288,800 | $288,800 |
| 2021 | $132,200 | $90,800 | $0 | $223,000 | $223,000 |
| 2020 | $120,180 | $90,800 | $0 | $210,980 | $210,980 |
| 2019 | $120,180 | $90,800 | $0 | $210,980 | $210,980 |
| 2018 | $109,250 | $90,800 | $0 | $200,050 | $200,050 |
| 2017 | $109,250 | $90,800 | $0 | $200,050 | $200,050 |
| 2016 | $99,320 | $90,800 | $0 | $190,120 | $190,120 |
| 2015 | $64,200 | $90,800 | $0 | $155,000 | $155,000 |
| 2014 | $77,600 | $90,800 | $0 | $168,400 | $168,400 |
| 2013 | $64,200 | $90,800 | $0 | $155,000 | $155,000 |
| 2012 | $64,200 | $90,800 | $0 | $0 | $0 |
| 2011 | $64,200 | $90,800 | $0 | $0 | $0 |
| 2010 | $52,200 | $90,800 | $0 | $0 | $0 |
| 2009 | $106,000 | $52,900 | $0 | $0 | $0 |
| 2008 | $68,500 | $52,900 | $0 | $0 | $0 |
| 2007 | $68,500 | $52,900 | $0 | $0 | $0 |
Deed and Sales History
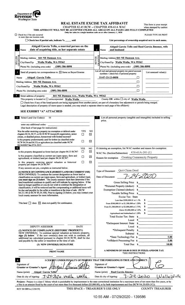
| 1 | 07/29/2020 | QCD | QUIT CLAIM DEED | TELLO ABIGAIL GARCIA | TELLO ABIGAIL GARCIA & RAUL GARCIA JIMENEZ | | | | 139586 | 2020-07321 |
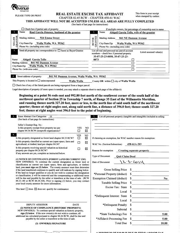
| 2 | 12/03/2014 | QCD | QUIT CLAIM DEED | JIMENEZ RAUL GARCIA | TELLO ABIGAIL GARCIA | | | | 127048 | 2014-08765 |
| 3 | 12/03/2014 | DPR | DEED OF PERSONAL REPRESENTATIVE | BAILEY PATRICIA E ESTATE OF | TELLO ABIGAIL GARCIA | | | $195,000.00 | 127047 | 2014-08764 |
| 4 | 01/06/1970 | WARRANTY D | WARRANTY DEED | | | | | $0.00 | 0 | 3340-505685 |
Payout Agreement
| No payout information available.. |