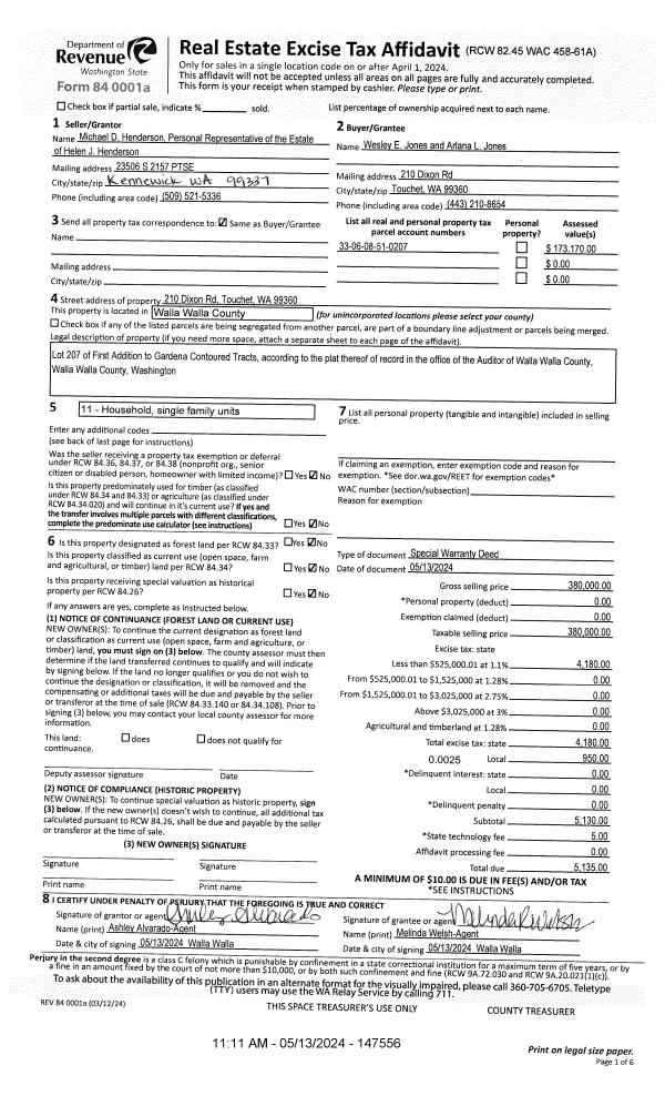
Property
Account |
| Property ID: | 31687 | Abbreviated Legal Description: | 8-6-33 FIRST ADDN TO GARDENA CONTOURED TRACTS LOT 207 |
| Parcel Number: | 330608510207 | Agent Code: | |
| Type: | Real | | |
| Tax Area: | 318 - 300-6-TM | Land Use Code | 11 |
| Open Space: | N | DFL | N |
| Historic Property: | N | Remodel Property: | N |
| Multi-Family Redevelopment: | N | | |
| Township: | 6 | Section: | 8 |
| Range: | 33 |
Location |
| Address: | 210 DIXON RD WA 99360 | Mapsco: | |
| Neighborhood: | A Touchet/Lowden SFR Rural | Map ID: | |
| Neighborhood CD: | 213613 |
Owner |
| Name: | HENDERSON HELEN J ESTATE OF | Owner ID: | 54284 |
| Mailing Address: | 210 DIXON RD TOUCHET, WA 99360 | % Ownership: | 100.0000000000% |
| | | Exemptions: | |
Taxes and Assessment Details
Values
| (+) Improvement Homesite Value: | + | $83,760 | |
| (+) Improvement Non-Homesite Value: | + | $0 | |
| (+) Land Homesite Value: | + | $47,560 | |
| (+) Land Non-Homesite Value: | + | $41,850 | |
| (+) Curr Use (HS): | + | $0 | $0 |
| (+) Curr Use (NHS): | + | $0 | $0 |
| | | -------------------------- | |
| (=) Market Value: | = | $173,170 | |
| (–) Productivity Loss: | – | $0 | |
| | | -------------------------- | |
| (=) Subtotal: | = | $173,170 | |
| (+) Senior Appraised Value: | + | $0 | |
| (+) Non-Senior Appraised Value: | + | $173,170 | |
| | | -------------------------- | |
| (=) Total Appraised Value: | = | $173,170 | |
| (–) Senior Exemption Loss: | – | $0 | |
| (–) Exemption Loss: | – | $0 | |
| | | -------------------------- | |
| (=) Taxable Value: | = | $173,170 | |
Taxing Jurisdiction
| Owner: | HENDERSON HELEN J ESTATE OF | | |
| % Ownership: | 100.0000000000% | | |
| Total Value: | $173,170 | | |
| Tax Area: | 318 - 300-6-TM |
| CERFD | CURRENT EXPENSE REFUND 010 | 0.0000000000 | $173,170 | $173,170 | $0.00 | | |
| CURREXP | CURRENT EXPENSE 010 | 1.0175366760 | $173,170 | $173,170 | $176.21 | | |
| HUMNSERV | HUMAN SERVICES 119 | 0.0250000000 | $173,170 | $173,170 | $4.33 | | |
| SLDREL | SOLDIERS RELIEF 121 | 0.0155990005 | $173,170 | $173,170 | $2.70 | | |
| EMERGSER | EMS 147 | 0.3792580840 | $173,170 | $173,170 | $65.68 | | |
| EMSRFD | EMS REFUND 147 | 0.0000000000 | $173,170 | $173,170 | $0.00 | | |
| FD6EXP | FD #6 EXPENSE 693 | 0.6692985746 | $173,170 | $173,170 | $115.90 | | |
| RLBRFD | RURAL LIBRARY REFUND 623 | 0.0000000000 | $173,170 | $173,170 | $0.00 | | |
| RURALLIB | RURAL LIBRARY 623 | 0.3710609029 | $173,170 | $173,170 | $64.26 | | |
| PORTRFD | PORT REFUND 640 | 0.0000000000 | $173,170 | $173,170 | $0.00 | | |
| PORTWWGEN | PORT OF WW 640 | 0.2460186015 | $173,170 | $173,170 | $42.60 | | |
| SD300BOND | SD #300 BOND 783 | 1.8964951620 | $173,170 | $173,170 | $328.42 | | |
| SD300GEN | SD #300 GENERAL 780 | 2.1198322866 | $173,170 | $173,170 | $367.09 | | |
| ST2 | STATE SCHOOL PART 2 600 | 0.8131451643 | $173,170 | $173,170 | $140.81 | | |
| STATESCHL | STATE SCHOOL 600 | 1.5158548041 | $173,170 | $173,170 | $262.50 | | |
| STREFUND | STATE REFUND LEVY 603 | 0.0000000000 | $173,170 | $173,170 | $0.00 | | |
| COROAD | COUNTY ROAD 115 | 1.6549953990 | $173,170 | $173,170 | $286.60 | | |
| CRPRD | COUNTY ROAD REFUND 115 | 0.0000000000 | $173,170 | $173,170 | $0.00 | | |
| | Total Tax Rate: | 10.7240946555 | | | | | |
| | | | | Taxes w/Current Exemptions: | $1,857.10 | | |
| | | | | Taxes w/o Exemptions: | $1,857.10 | | |
Improvement / Building
| Improvement #1: | RESIDENTIAL | State Code: | 11 | 975.0 sqft | Value: | $83,760 |
| Exterior Wall: | STUCCO | Foundation: | POST & PIER | | Heating/Cooling: | GRAVITY FURNACE | Number of Bathrooms: | 1 | | Number of Bedrooms: | 3 | Plumbing: | 6 | | Roof Covering: | COMP ROLL |   |   |
|
| | Type | Description | Class CD | Sub Class CD | Year Built | Area |
| | MA | Main Area | 1 | 20 | 1920 | 975.0 |
| | CPC | COVERED CARPORT/PATIO | 1 | 20 | 0 | 240.0 |
| | SI1 | SITE IMPROVEMENT | 1 | 20 | 0 | 1.0 |
| | DTG | Detached Garage | 1 | 20 | 1920 | 528.0 |
| | SWP | Solid Wall Porch | 1 | 20 | 1920 | 203.0 |
| | UTILITY | UTILITY BUILDING | 1 | 20 | 1920 | 1920.0 |
Sketch
Property Image
Land
| 1 | RES 1 | Converted: Residential | 5.0000 | 0.00 | 0.00 | 0.00 | 1.00 | $47,560 | $0 |
| 2 | RES 1 | Converted: Residential | 4.4000 | 0.00 | 0.00 | 0.00 | 1.00 | $41,850 | $0 |
Roll Value History
| 2026 | N/A | N/A | N/A | N/A | N/A |
| 2025 | $251,280 | $89,410 | $0 | $340,690 | $340,690 |
| 2024 | $83,760 | $89,410 | $0 | $173,170 | $173,170 |
| 2023 | $83,760 | $89,410 | $0 | $173,170 | $173,170 |
| 2022 | $83,760 | $89,410 | $0 | $173,170 | $41,850 |
| 2021 | $41,880 | $89,410 | $0 | $131,290 | $41,850 |
| 2020 | $41,880 | $74,400 | $0 | $116,280 | $15,400 |
| 2019 | $41,880 | $74,400 | $0 | $116,280 | $15,400 |
| 2018 | $41,880 | $59,000 | $0 | $100,880 | $0 |
| 2017 | $41,880 | $59,000 | $0 | $100,880 | $0 |
| 2016 | $34,900 | $59,000 | $0 | $93,900 | $0 |
| 2015 | $34,900 | $59,000 | $0 | $93,900 | $0 |
| 2014 | $34,900 | $59,000 | $0 | $93,900 | $0 |
| 2013 | $34,900 | $59,000 | $0 | $93,900 | $0 |
| 2012 | $34,900 | $59,000 | $0 | $0 | $0 |
| 2011 | $34,900 | $59,000 | $0 | $0 | $0 |
| 2010 | $34,900 | $59,000 | $0 | $0 | $0 |
| 2009 | $53,500 | $44,200 | $0 | $0 | $0 |
| 2008 | $37,400 | $44,200 | $0 | $0 | $0 |
| 2007 | $37,400 | $44,200 | $0 | $0 | $0 |
Deed and Sales History
| 1 | 05/13/2024 | SWP | Special Warranty Deed | HENDERSON HELEN J ESTATE OF | JONES WESLEY E & ARLANA L | | | $380,000.00 | 147556 | 2024-02539 |
| 2 | 12/10/2013 | QCD | QUIT CLAIM DEED | HENDERSON E H | HENDERSON HELEN J ESTATE OF | -0207 & -0263 | 2-PARCELS | | 125076 | 2013-11825 |
| 3 | 08/29/1955 | WARRANTY D | WARRANTY DEED | | | | | $0.00 | 0 | 3400-513286 |
Payout Agreement
| No payout information available.. |