| 1 | 06/21/2021 | SWD | STATUTORY WARRANTY DEED | LACHAPPELLE NIKKI | ACHTERMAN MICHAEL RALPH & GABRIELE MARGARETE | | | $125,000.00 | 141842 | 2021-07489 |
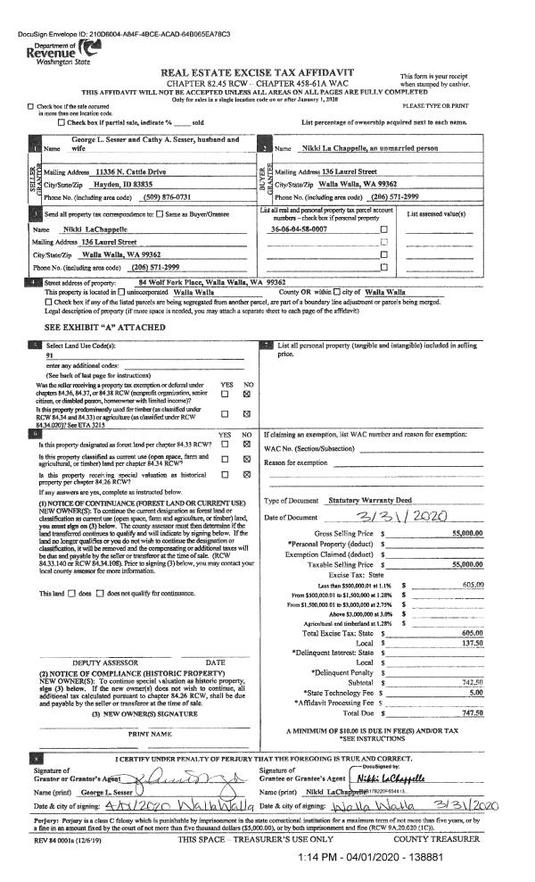
| 2 | 04/01/2020 | SWD | STATUTORY WARRANTY DEED | SESSER GEORGE L & CATHY A | LACHAPPELLE NIKKI | | | $55,000.00 | 138881 | 2020-02871 |
| 3 | 09/22/2011 | QCD | QUIT CLAIM DEED | DE MOSS, STEVEN J & CAROLE L | SESSER, GEORGE L & CATHY A | | | | 120728 | 2011-07379 |
| 4 | 05/19/2011 | WARRANTY D | WARRANTY DEED | VAN WEST PROPERTIES LLC | SESSER, GEORGE L & CATHY A | | | $50,000.00 | 120159 | 2011-03936 |
| 5 | 12/21/2006 | WARRANTY D | WARRANTY DEED | "NELSON, BARTON R" | VAN WEST PROPERTIES LLC | | | | 111941 | 2006-15131 |
| 6 | 04/09/2004 | WARRANTY D | WARRANTY DEED | "GATEWOOD, W PAUL" | NELSON BARTON R | | | $218,000.00 | 104468 | 2004-03749 |
|   | |