Property
Account |
| Property ID: | 31647 | Abbreviated Legal Description: | YELLOWHAWK CREEK SUBD PHASE 4 LOT 20 BLK 2 |
| Parcel Number: | 360722640203 | Agent Code: | |
| Type: | Real | | |
| Tax Area: | 1 - OL-140-F | Land Use Code | 11 |
| Open Space: | N | DFL | N |
| Historic Property: | N | Remodel Property: | N |
| Multi-Family Redevelopment: | N | | |
| Township: | 7 | Section: | 22 |
| Range: | 36 |
Location |
| Address: | 2314 GARRISON ST WA 99362 | Mapsco: | |
| Neighborhood: | A-Superior SFR | Map ID: | |
| Neighborhood CD: | 413211 |
Owner |
| Name: | CALDERON FRANCISCO J & JACQUELINE | Owner ID: | 70627 |
| Mailing Address: | 2314 GARRISON ST WALLA WALLA, WA 99362 | % Ownership: | 100.0000000000% |
| | | Exemptions: | |
Taxes and Assessment Details
Property Tax Information as of
02/21/2026
Click on "Statement Details" to expand or collapse a tax statement.
* Please enter a valid date ** Please enter a valid date *
Statement Details |
| | TOTAL: | $0.00 | $0.00 | $0.00 | $0.00 | $0.00 | $0.00 |
|
| | $0.00 | $0.00 | $0.00 | $0.00 | $0.00 | $0.00 |
Values
| (+) Improvement Homesite Value: | + | $0 | |
| (+) Improvement Non-Homesite Value: | + | $386,560 | |
| (+) Land Homesite Value: | + | $0 | |
| (+) Land Non-Homesite Value: | + | $80,000 | |
| (+) Curr Use (HS): | + | $0 | $0 |
| (+) Curr Use (NHS): | + | $0 | $0 |
| | | -------------------------- | |
| (=) Market Value: | = | $466,560 | |
| (–) Productivity Loss: | – | $0 | |
| | | -------------------------- | |
| (=) Subtotal: | = | $466,560 | |
| (+) Senior Appraised Value: | + | $0 | |
| (+) Non-Senior Appraised Value: | + | $466,560 | |
| | | -------------------------- | |
| (=) Total Appraised Value: | = | $466,560 | |
| (–) Senior Exemption Loss: | – | $0 | |
| (–) Exemption Loss: | – | $0 | |
| | | -------------------------- | |
| (=) Taxable Value: | = | $466,560 | |
Taxing Jurisdiction
| Owner: | CALDERON FRANCISCO J & JACQUELINE | | |
| % Ownership: | 100.0000000000% | | |
| Total Value: | $466,560 | | |
| Tax Area: | 1 - OL-140-F |
| CERFD | CURRENT EXPENSE REFUND 010 | 0.0000000000 | $466,560 | $466,560 | $0.00 | | |
| CURREXP | CURRENT EXPENSE 010 | 1.0175366760 | $466,560 | $466,560 | $474.74 | | |
| HUMNSERV | HUMAN SERVICES 119 | 0.0250000000 | $466,560 | $466,560 | $11.66 | | |
| SLDREL | SOLDIERS RELIEF 121 | 0.0155990005 | $466,560 | $466,560 | $7.28 | | |
| EMERGSER | EMS 147 | 0.3792580840 | $466,560 | $466,560 | $176.95 | | |
| EMSRFD | EMS REFUND 147 | 0.0000000000 | $466,560 | $466,560 | $0.00 | | |
| PORTRFD | PORT REFUND 640 | 0.0000000000 | $466,560 | $466,560 | $0.00 | | |
| PORTWWGEN | PORT OF WW 640 | 0.2460186015 | $466,560 | $466,560 | $114.78 | | |
| SD140BOND | SD #140 BOND 764 | 0.8342371393 | $466,560 | $466,560 | $389.22 | | |
| SD140GEN | SD #140 GENERAL 760 | 2.0646500647 | $466,560 | $466,560 | $963.28 | | |
| ST2 | STATE SCHOOL PART 2 600 | 0.8131451643 | $466,560 | $466,560 | $379.38 | | |
| STATESCHL | STATE SCHOOL 600 | 1.5158548041 | $466,560 | $466,560 | $707.24 | | |
| STREFUND | STATE REFUND LEVY 603 | 0.0000000000 | $466,560 | $466,560 | $0.00 | | |
| CWWBOND | C OF WW BOND 643 | 0.2760494372 | $466,560 | $466,560 | $128.79 | | |
| CWWGEN | CITY OF WW 631 | 1.6100204973 | $466,560 | $466,560 | $751.17 | | |
| CWWRFD | CITY OF WALLA WALLA REFUND 631 | 0.0000000000 | $466,560 | $466,560 | $0.00 | | |
| | Total Tax Rate: | 8.7973694689 | | | | | |
| | | | | Taxes w/Current Exemptions: | $4,104.49 | | |
| | | | | Taxes w/o Exemptions: | $4,104.49 | | |
Improvement / Building
| Improvement #1: | RESIDENTIAL | State Code: | 11 | 2406.0 sqft | Value: | $386,560 |
| Exterior Wall: | PLYWOOD | Heating/Cooling: | WARM & COOLED AIR | | Number of Bathrooms: | 2.5 | Number of Bedrooms: | 4 | | Plumbing: | 13 | Roof Covering: | COMP SHINGLE |
|
| | Type | Description | Class CD | Sub Class CD | Year Built | Area |
| | MA | Main Area | 2 | 35 | 2003 | 2406.0 |
| | RPC | OPEN PORCH W/ROOF , CEILED | 2 | 35 | 0 | 144.0 |
| | SI1 | SITE IMPROVEMENT | 2 | 35 | 0 | 4.0 |
| | UPFL | Upper Floor (included in main area) | 2 | 35 | 2003 | 1398.0 |
| | ATG | Attached Garage | 2 | 35 | 2003 | 400.0 |
| | RPO | OPEN PORCH W/ROOF | 2 | 35 | 2003 | 96.0 |
| | TOOL | TOOL SHED | 2 | 35 | 2003 | 144.0 |
Sketch
Property Image
Land
| 1 | RES 1 | Converted: Residential | 0.1653 | 7200.00 | 0.00 | 0.00 | 1.00 | $80,000 | $0 |
Roll Value History
| 2026 | N/A | N/A | N/A | N/A | N/A |
| 2025 | $446,480 | $80,000 | $0 | $526,480 | $526,480 |
| 2024 | $405,890 | $80,000 | $0 | $485,890 | $485,890 |
| 2023 | $386,560 | $80,000 | $0 | $466,560 | $466,560 |
| 2022 | $394,770 | $50,000 | $0 | $444,770 | $444,770 |
| 2021 | $328,970 | $50,000 | $0 | $378,970 | $378,970 |
| 2020 | $257,010 | $50,000 | $0 | $307,010 | $307,010 |
| 2019 | $257,010 | $50,000 | $0 | $307,010 | $307,010 |
| 2018 | $233,650 | $50,000 | $0 | $283,650 | $283,650 |
| 2017 | $203,170 | $50,000 | $0 | $253,170 | $253,170 |
| 2016 | $203,170 | $40,000 | $0 | $243,170 | $243,170 |
| 2015 | $203,170 | $40,000 | $0 | $243,170 | $243,170 |
| 2014 | $184,700 | $40,000 | $0 | $224,700 | $224,700 |
| 2013 | $184,700 | $40,000 | $0 | $224,700 | $224,700 |
| 2012 | $184,700 | $40,000 | $0 | $0 | $0 |
| 2011 | $191,400 | $40,000 | $0 | $0 | $0 |
| 2010 | $180,400 | $40,000 | $0 | $0 | $0 |
| 2009 | $204,900 | $40,000 | $0 | $0 | $0 |
| 2008 | $204,900 | $40,000 | $0 | $0 | $0 |
| 2007 | $204,900 | $40,000 | $0 | $0 | $0 |
Deed and Sales History
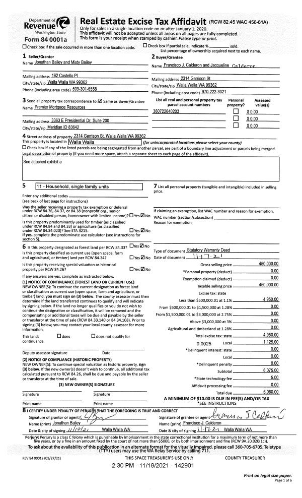
| 1 | 11/18/2021 | SWD | STATUTORY WARRANTY DEED | BAILEY JONATHAN & MISTY | CALDERON FRANCISCO J & JACQUELINE | | | $450,000.00 | 142901 | 2021-13748 |
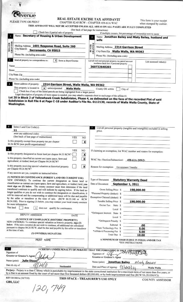
| 2 | 09/27/2011 | WARRANTY D | WARRANTY DEED | SECRETARY OF HOUSING & URBAN D | BAILEY, JONATHAN & MISTY | | | $198,000.00 | 120749 | 2011-07530 |
| 3 | 05/13/2011 | WARRANTY D | WARRANTY DEED | PHH MORTGAGE CORPORATION | SECRETARY OF HOUSING & URBAN D | | | $231,820.00 | 120129 | 2011-03771 |
| 4 | 04/21/2011 | WARRANTY D | WARRANTY DEED | NORTHWEST TRUSTEE SERVICES INC | PHH MORTGAGE CORPORATION | | | $246,137.00 | 120035 | 2011-03268 |
| 5 | 12/14/2005 | QCD | QUIT CLAIM DEED | SPENCE, DAVID A | SPENCE, KARALYN | | | | 109237 | 2005-15633 |
| 6 | 10/17/2003 | WARRANTY D | WARRANTY DEED | WASSER, PHILIP C | SPENCE, DAVID A & KARALYN | | | $159,900.00 | 103305 | 2003-16079 |
| 7 | 10/16/2003 | WARRANTY D | WARRANTY DEED | MAJERUS, DOUGLAS | WASSER, PHILIP C | | | | 103304 | 2003-16078 |
Payout Agreement
| No payout information available.. |