Property
Account |
| Property ID: | 31625 | Abbreviated Legal Description: | YELLOWHAWK CREEK SUBD PHASE 4 LOT 18 BLK 2 |
| Parcel Number: | 360722640201 | Agent Code: | |
| Type: | Real | | |
| Tax Area: | 1 - OL-140-F | Land Use Code | 11 |
| Open Space: | N | DFL | N |
| Historic Property: | N | Remodel Property: | N |
| Multi-Family Redevelopment: | N | | |
| Township: | 7 | Section: | 22 |
| Range: | 36 |
Location |
| Address: | 2310 GARRISON ST WA 99362 | Mapsco: | |
| Neighborhood: | A-Superior SFR | Map ID: | |
| Neighborhood CD: | 413211 |
Owner |
| Name: | SCHULKE DIANE MARIE | Owner ID: | 67515 |
| Mailing Address: | 2310 GARRISON ST WALLA WALLA, WA 99362 | % Ownership: | 100.0000000000% |
| | | Exemptions: | SNR/DSBL |
Taxes and Assessment Details
Property Tax Information as of
02/21/2026
Click on "Statement Details" to expand or collapse a tax statement.
* Please enter a valid date ** Please enter a valid date *
Statement Details |
| | TOTAL: | $0.00 | $0.00 | $0.00 | $0.00 | $0.00 | $0.00 |
|
| | $0.00 | $0.00 | $0.00 | $0.00 | $0.00 | $0.00 |
Values
| (+) Improvement Homesite Value: | + | $278,240 | |
| (+) Improvement Non-Homesite Value: | + | $0 | |
| (+) Land Homesite Value: | + | $80,000 | |
| (+) Land Non-Homesite Value: | + | $0 | |
| (+) Curr Use (HS): | + | $0 | $0 |
| (+) Curr Use (NHS): | + | $0 | $0 |
| | | -------------------------- | |
| (=) Market Value: | = | $358,240 | |
| (–) Productivity Loss: | – | $0 | |
| | | -------------------------- | |
| (=) Subtotal: | = | $358,240 | |
| (+) Senior Appraised Value: | + | $237,680 | |
| (+) Non-Senior Appraised Value: | + | $0 | |
| | | -------------------------- | |
| (=) Total Appraised Value: | = | $237,680 | |
| (–) Senior Exemption Loss: | – | $142,608 | |
| (–) Exemption Loss: | – | $0 | |
| | | -------------------------- | |
| (=) Taxable Value: | = | $95,072 | |
Taxing Jurisdiction
| Owner: | SCHULKE DIANE MARIE | | |
| % Ownership: | 100.0000000000% | | |
| Total Value: | $358,240 | | |
| Tax Area: | 1 - OL-140-F |
| CERFD | CURRENT EXPENSE REFUND 010 | 0.0000000000 | $358,240 | $95,072 | $0.00 | | |
| CURREXP | CURRENT EXPENSE 010 | 1.0175366760 | $358,240 | $95,072 | $96.74 | | |
| HUMNSERV | HUMAN SERVICES 119 | 0.0250000000 | $358,240 | $95,072 | $2.38 | | |
| SLDREL | SOLDIERS RELIEF 121 | 0.0155990005 | $358,240 | $95,072 | $1.48 | | |
| EMERGSER | EMS 147 | 0.3792580840 | $358,240 | $95,072 | $36.06 | | |
| EMSRFD | EMS REFUND 147 | 0.0000000000 | $358,240 | $95,072 | $0.00 | | |
| PORTRFD | PORT REFUND 640 | 0.0000000000 | $358,240 | $95,072 | $0.00 | | |
| PORTWWGEN | PORT OF WW 640 | 0.2460186015 | $358,240 | $95,072 | $23.39 | | |
| SD140BOND | SD #140 BOND 764 | 0.0000000000 | $358,240 | $0 | $0.00 | | |
| SD140GEN | SD #140 GENERAL 760 | 0.0000000000 | $358,240 | $0 | $0.00 | | |
| ST2 | STATE SCHOOL PART 2 600 | 0.0000000000 | $358,240 | $0 | $0.00 | | |
| STATESCHL | STATE SCHOOL 600 | 1.5158548041 | $358,240 | $95,072 | $144.12 | | |
| STREFUND | STATE REFUND LEVY 603 | 0.0000000000 | $358,240 | $95,072 | $0.00 | | |
| CWWBOND | C OF WW BOND 643 | 0.0000000000 | $358,240 | $0 | $0.00 | | |
| CWWGEN | CITY OF WW 631 | 1.6100204973 | $358,240 | $95,072 | $153.07 | | |
| CWWRFD | CITY OF WALLA WALLA REFUND 631 | 0.0000000000 | $358,240 | $95,072 | $0.00 | | |
| | Total Tax Rate: | 4.8092876634 | | | | | |
| | | | | Taxes w/Current Exemptions: | $457.24 | | |
| | | | | Taxes w/o Exemptions: | $3,151.57 | | |
Improvement / Building
| Improvement #1: | RESIDENTIAL | State Code: | 11 | 1572.0 sqft | Value: | $278,240 |
| Exterior Wall: | HARDBOARD | Heating/Cooling: | WARM & COOLED AIR | | Number of Bathrooms: | 2 | Number of Bedrooms: | 3 | | Plumbing: | 10 | Roof Covering: | COMP SHINGLE |
|
| | Type | Description | Class CD | Sub Class CD | Year Built | Area |
| | MA | Main Area | 1 | 35 | 2003 | 1572.0 |
| | CPC | COVERED CARPORT/PATIO | 1 | 35 | 0 | 60.0 |
| | GFP | GAS FIREPLACE | 1 | 35 | 0 | 1.0 |
| | SI1 | SITE IMPROVEMENT | 1 | 35 | 0 | 3.0 |
| | ATG | Attached Garage | 1 | 35 | 2003 | 440.0 |
| | RPO | OPEN PORCH W/ROOF | 1 | 35 | 2003 | 84.0 |
Sketch
Property Image
Land
| 1 | RES 1 | Converted: Residential | 0.1653 | 7200.00 | 0.00 | 0.00 | 1.00 | $80,000 | $0 |
Roll Value History
| 2026 | N/A | N/A | N/A | N/A | N/A |
| 2025 | $321,370 | $80,000 | $0 | $401,370 | $95,072 |
| 2024 | $292,150 | $80,000 | $0 | $372,150 | $95,072 |
| 2023 | $278,240 | $80,000 | $0 | $358,240 | $95,072 |
| 2022 | $269,790 | $50,000 | $0 | $319,790 | $95,072 |
| 2021 | $215,830 | $50,000 | $0 | $265,830 | $95,072 |
| 2020 | $187,680 | $50,000 | $0 | $237,680 | $95,072 |
| 2019 | $187,680 | $50,000 | $0 | $237,680 | $95,072 |
| 2018 | $178,740 | $50,000 | $0 | $228,740 | $228,740 |
| 2017 | $162,490 | $50,000 | $0 | $212,490 | $202,900 |
| 2016 | $162,490 | $40,000 | $0 | $202,490 | $202,490 |
| 2015 | $154,760 | $40,000 | $0 | $194,760 | $77,904 |
| 2014 | $162,900 | $40,000 | $0 | $202,900 | $132,900 |
| 2013 | $162,900 | $40,000 | $0 | $202,900 | $132,900 |
| 2012 | $162,900 | $40,000 | $0 | $0 | $0 |
| 2011 | $164,900 | $40,000 | $0 | $0 | $0 |
| 2010 | $155,100 | $40,000 | $0 | $0 | $0 |
| 2009 | $176,800 | $40,000 | $0 | $0 | $0 |
| 2008 | $148,500 | $40,000 | $0 | $0 | $0 |
| 2007 | $148,500 | $40,000 | $0 | $0 | $0 |
Deed and Sales History
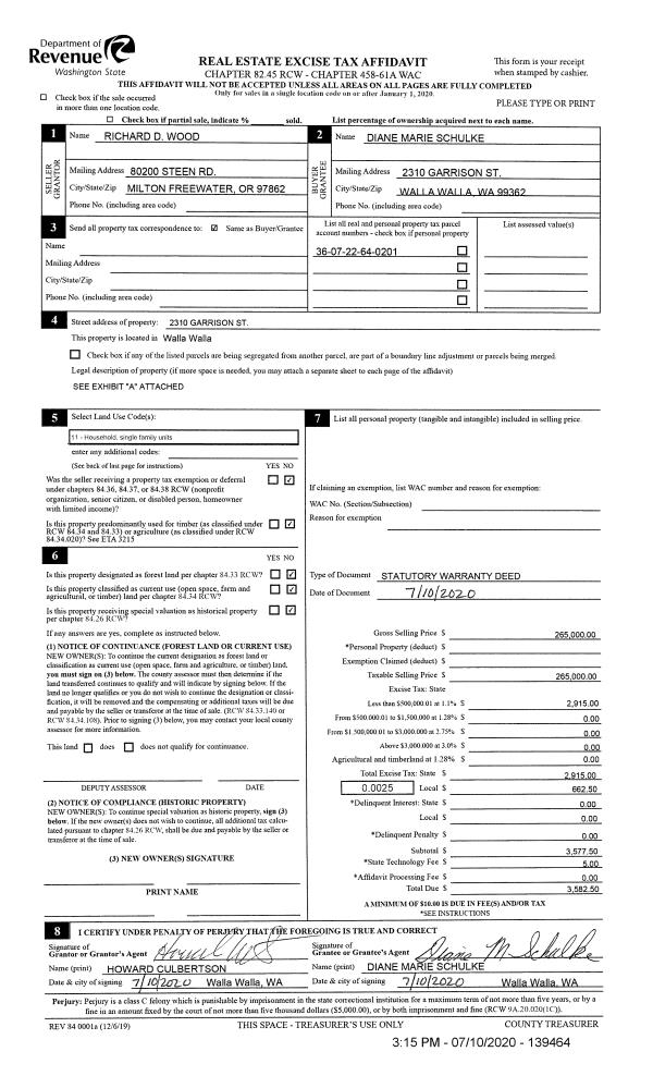
| 1 | 07/10/2020 | QCD | QUIT CLAIM DEED | SCHULKE JERRY ALLEN | SCHULKE DIANE MARIE | | | | 139465 | 2020-06623 |
| 2 | 07/10/2020 | SWD | STATUTORY WARRANTY DEED | WOOD RICHARD D | SCHULKE DIANE MARIE | | | $265,000.00 | 139464 | 2020-06622 |
| 3 | 09/04/2003 | WARRANTY D | WARRANTY DEED | WASSER, PHILIP C | WOOD, RICHARD D | | | $154,900.00 | 102935 | 2003-13448 |
| 4 | 09/03/2003 | WARRANTY D | WARRANTY DEED | MAJERUS, DOUGLAS | WASSER, PHILIP C | | | | 102934 | 2003-13447 |
Payout Agreement
| No payout information available.. |