Property
Account |
| Property ID: | 31609 | Abbreviated Legal Description: | WILSONS 2ND LOT 2 BLK 1 |
| Parcel Number: | 360716590102 | Agent Code: | |
| Type: | Real | | |
| Tax Area: | 5 - OL-140 | Land Use Code | 11 |
| Open Space: | N | DFL | N |
| Historic Property: | N | Remodel Property: | N |
| Multi-Family Redevelopment: | N | | |
| Township: | 7 | Section: | 16 |
| Range: | 36 |
Location |
| Address: | 624 WHITE ST WA 99362 | Mapsco: | |
| Neighborhood: | A-SFR | Map ID: | |
| Neighborhood CD: | 513011 |
Owner |
| Name: | HOLT AARON L III | Owner ID: | 70212 |
| Mailing Address: | 624 WHITE ST WALLA WALLA, WA 99362 | % Ownership: | 100.0000000000% |
| | | Exemptions: | |
Taxes and Assessment Details
Values
| (+) Improvement Homesite Value: | + | $0 | |
| (+) Improvement Non-Homesite Value: | + | $276,610 | |
| (+) Land Homesite Value: | + | $0 | |
| (+) Land Non-Homesite Value: | + | $35,940 | |
| (+) Curr Use (HS): | + | $0 | $0 |
| (+) Curr Use (NHS): | + | $0 | $0 |
| | | -------------------------- | |
| (=) Market Value: | = | $312,550 | |
| (–) Productivity Loss: | – | $0 | |
| | | -------------------------- | |
| (=) Subtotal: | = | $312,550 | |
| (+) Senior Appraised Value: | + | $0 | |
| (+) Non-Senior Appraised Value: | + | $312,550 | |
| | | -------------------------- | |
| (=) Total Appraised Value: | = | $312,550 | |
| (–) Senior Exemption Loss: | – | $0 | |
| (–) Exemption Loss: | – | $0 | |
| | | -------------------------- | |
| (=) Taxable Value: | = | $312,550 | |
Taxing Jurisdiction
| Owner: | HOLT AARON L III | | |
| % Ownership: | 100.0000000000% | | |
| Total Value: | $312,550 | | |
| Tax Area: | 5 - OL-140 |
| CERFD | CURRENT EXPENSE REFUND 010 | 0.0000000000 | $312,550 | $312,550 | $0.00 | | |
| CURREXP | CURRENT EXPENSE 010 | 1.0175366760 | $312,550 | $312,550 | $318.03 | | |
| HUMNSERV | HUMAN SERVICES 119 | 0.0250000000 | $312,550 | $312,550 | $7.81 | | |
| SLDREL | SOLDIERS RELIEF 121 | 0.0155990005 | $312,550 | $312,550 | $4.88 | | |
| EMERGSER | EMS 147 | 0.3792580840 | $312,550 | $312,550 | $118.54 | | |
| EMSRFD | EMS REFUND 147 | 0.0000000000 | $312,550 | $312,550 | $0.00 | | |
| PORTRFD | PORT REFUND 640 | 0.0000000000 | $312,550 | $312,550 | $0.00 | | |
| PORTWWGEN | PORT OF WW 640 | 0.2460186015 | $312,550 | $312,550 | $76.89 | | |
| SD140BOND | SD #140 BOND 764 | 0.8342371393 | $312,550 | $312,550 | $260.74 | | |
| SD140GEN | SD #140 GENERAL 760 | 2.0646500647 | $312,550 | $312,550 | $645.31 | | |
| ST2 | STATE SCHOOL PART 2 600 | 0.8131451643 | $312,550 | $312,550 | $254.15 | | |
| STATESCHL | STATE SCHOOL 600 | 1.5158548041 | $312,550 | $312,550 | $473.78 | | |
| STREFUND | STATE REFUND LEVY 603 | 0.0000000000 | $312,550 | $312,550 | $0.00 | | |
| CWWBOND | C OF WW BOND 643 | 0.2760494372 | $312,550 | $312,550 | $86.28 | | |
| CWWGEN | CITY OF WW 631 | 1.6100204973 | $312,550 | $312,550 | $503.21 | | |
| CWWRFD | CITY OF WALLA WALLA REFUND 631 | 0.0000000000 | $312,550 | $312,550 | $0.00 | | |
| | Total Tax Rate: | 8.7973694689 | | | | | |
| | | | | Taxes w/Current Exemptions: | $2,749.62 | | |
| | | | | Taxes w/o Exemptions: | $2,749.62 | | |
Improvement / Building
| Improvement #1: | RESIDENTIAL | State Code: | 11 | 1078.0 sqft | Value: | $276,610 |
| Exterior Wall: | SIDING | Heating/Cooling: | BASEBOARD ELECTRIC | | Number of Bathrooms: | 2 | Number of Bedrooms: | 3 | | Plumbing: | 9 | Roof Covering: | COMP SHINGLE |
|
| | Type | Description | Class CD | Sub Class CD | Year Built | Area |
| | MA | Main Area | 1 | 30 | 1947 | 1078.0 |
| | CPC | COVERED CARPORT/PATIO | 1 | 30 | 0 | 324.0 |
| | SI1 | SITE IMPROVEMENT | 1 | 30 | 0 | 1.5 |
| | RPO | OPEN PORCH W/ROOF | 1 | 30 | 1947 | 16.0 |
Sketch
Property Image
Land
| 1 | RES 1 | Converted: Residential | 0.1320 | 5750.00 | 0.00 | 0.00 | 1.00 | $35,940 | $0 |
Roll Value History
| 2026 | N/A | N/A | N/A | N/A | N/A |
| 2025 | $230,010 | $57,500 | $0 | $287,510 | $287,510 |
| 2024 | $230,010 | $57,500 | $0 | $287,510 | $287,510 |
| 2023 | $276,610 | $35,940 | $0 | $312,550 | $312,550 |
| 2022 | $276,610 | $35,940 | $0 | $312,550 | $312,550 |
| 2021 | $276,610 | $35,940 | $0 | $312,550 | $312,550 |
| 2020 | $131,560 | $35,940 | $0 | $167,500 | $167,500 |
| 2019 | $131,560 | $35,940 | $0 | $167,500 | $167,500 |
| 2018 | $114,400 | $35,940 | $0 | $150,340 | $150,340 |
| 2017 | $115,760 | $23,000 | $0 | $138,760 | $138,760 |
| 2016 | $110,250 | $23,000 | $0 | $133,250 | $133,250 |
| 2015 | $105,000 | $23,000 | $0 | $128,000 | $128,000 |
| 2014 | $105,000 | $23,000 | $0 | $128,000 | $128,000 |
| 2013 | $105,000 | $23,000 | $0 | $128,000 | $128,000 |
| 2012 | $119,800 | $23,000 | $0 | $0 | $0 |
| 2011 | $119,800 | $23,000 | $0 | $0 | $0 |
| 2010 | $113,000 | $23,000 | $0 | $0 | $0 |
| 2009 | $128,100 | $23,000 | $0 | $0 | $0 |
| 2008 | $93,200 | $23,000 | $0 | $0 | $0 |
| 2007 | $93,200 | $23,000 | $0 | $0 | $0 |
Deed and Sales History
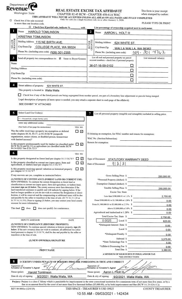
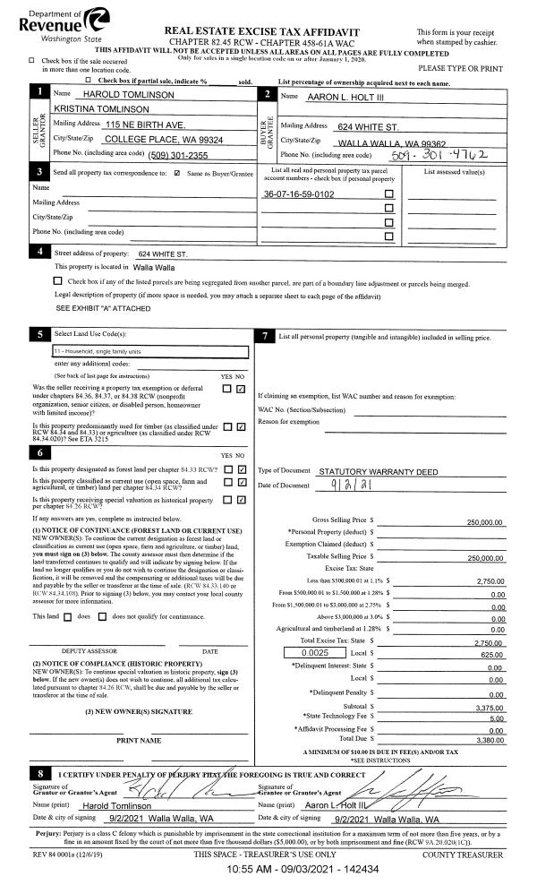
| 1 | 09/03/2021 | SWD | STATUTORY WARRANTY DEED | TOMLINSON HAROLD & KRISTINA | HOLT AARON L III | | | $250,000.00 | 142434 | 2021-10891 |
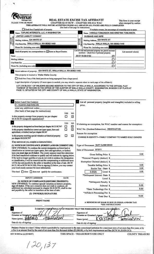
| 2 | 05/13/2011 | QCD | QUIT CLAIM DEED | TOPLINE INTERESTS LLC | TOMLINSON, HAROLD & KRISTINA | | | | 120137 | 2011-03793 |
| 3 | 05/13/2011 | WARRANTY D | WARRANTY DEED | TASH, CLIFFORD S | TOPLINE INTERESTS LLC | | | | 113346 | 2011-03792 |
| 4 | 05/07/2008 | WARRANTY D | WARRANTY DEED | TASH, CLIFFORD SCOTT | FLETCHER, LEROY | | | | 113346 | 2008-04545 |
| 5 | 07/26/2007 | WARRANTY D | WARRANTY DEED | TASH, CLIFFORD SCOTT | TOPLINE INTERESTS LLC | | | $153,450.00 | 113346 | 2007-08585 |
| 6 | 01/25/2007 | QCD | QUIT CLAIM DEED | CONTRERAS, ROGER & ARMIDA | TASH, CLIFFORD SCOTT | | | | 112132 | 2007-00967 |
| 7 | 12/30/2005 | WARRANTY D | WARRANTY DEED | GALL, GARY F | TASH, CLIFFORD SCOTT | | | $99,900.00 | 109375 | 2005-16354 |
| 8 | 05/04/2005 | WARRANTY D | WARRANTY DEED | THRASHER, BILL | GALL, GARY F | | | $65,000.00 | 107407 | 2005-05211 |
| 9 | 03/28/1997 | WARRANTY D | WARRANTY DEED | | | | | $52,000.00 | 87889 | 2509-702684 |
Payout Agreement
| No payout information available.. |