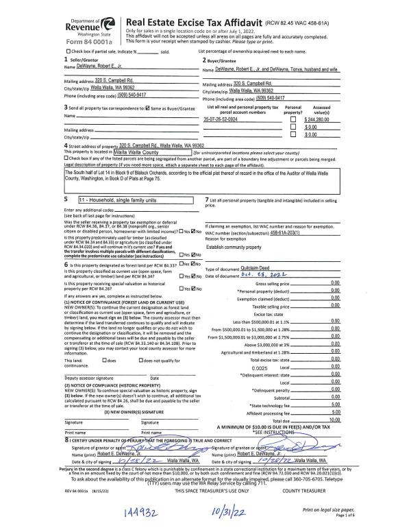
Property
Account |
| Property ID: | 31601 | Abbreviated Legal Description: | BLALOCK ORCHARDS S1/2 LOT 14 BLK 9 |
| Parcel Number: | 350726520924 | Agent Code: | |
| Type: | Real | | |
| Tax Area: | 311 - 250-4 | Land Use Code | 11 |
| Open Space: | N | DFL | N |
| Historic Property: | N | Remodel Property: | N |
| Multi-Family Redevelopment: | N | | |
| Township: | 7 | Section: | 26 |
| Range: | 35 |
Location |
| Address: | 320 S CAMPBELL RD WA 99324 | Mapsco: | |
| Neighborhood: | A SFR Rural/City Infl | Map ID: | |
| Neighborhood CD: | 313012 |
Owner |
| Name: | DEWAYNE ROBERT E JR & TONYA | Owner ID: | 72700 |
| Mailing Address: | 320 S CAMPBELL RD WALLA WALLA, WA 99362 | % Ownership: | 100.0000000000% |
| | | Exemptions: | |
Taxes and Assessment Details
Values
| (+) Improvement Homesite Value: | + | $0 | |
| (+) Improvement Non-Homesite Value: | + | $171,750 | |
| (+) Land Homesite Value: | + | $0 | |
| (+) Land Non-Homesite Value: | + | $131,040 | |
| (+) Curr Use (HS): | + | $0 | $0 |
| (+) Curr Use (NHS): | + | $0 | $0 |
| | | -------------------------- | |
| (=) Market Value: | = | $302,790 | |
| (–) Productivity Loss: | – | $0 | |
| | | -------------------------- | |
| (=) Subtotal: | = | $302,790 | |
| (+) Senior Appraised Value: | + | $0 | |
| (+) Non-Senior Appraised Value: | + | $302,790 | |
| | | -------------------------- | |
| (=) Total Appraised Value: | = | $302,790 | |
| (–) Senior Exemption Loss: | – | $0 | |
| (–) Exemption Loss: | – | $0 | |
| | | -------------------------- | |
| (=) Taxable Value: | = | $302,790 | |
Taxing Jurisdiction
| Owner: | DEWAYNE ROBERT E JR & TONYA | | |
| % Ownership: | 100.0000000000% | | |
| Total Value: | $302,790 | | |
| Tax Area: | 311 - 250-4 |
| CERFD | CURRENT EXPENSE REFUND 010 | 0.0000000000 | $302,790 | $302,790 | $0.00 | | |
| CURREXP | CURRENT EXPENSE 010 | 1.0175366760 | $302,790 | $302,790 | $308.10 | | |
| HUMNSERV | HUMAN SERVICES 119 | 0.0250000000 | $302,790 | $302,790 | $7.57 | | |
| SLDREL | SOLDIERS RELIEF 121 | 0.0155990005 | $302,790 | $302,790 | $4.72 | | |
| EMERGSER | EMS 147 | 0.3792580840 | $302,790 | $302,790 | $114.84 | | |
| EMSRFD | EMS REFUND 147 | 0.0000000000 | $302,790 | $302,790 | $0.00 | | |
| FD4EXP | FD #4 EXPENSE 686 | 0.8836993059 | $302,790 | $302,790 | $267.58 | | |
| RLBRFD | RURAL LIBRARY REFUND 623 | 0.0000000000 | $302,790 | $302,790 | $0.00 | | |
| RURALLIB | RURAL LIBRARY 623 | 0.3710609029 | $302,790 | $302,790 | $112.35 | | |
| PORTRFD | PORT REFUND 640 | 0.0000000000 | $302,790 | $302,790 | $0.00 | | |
| PORTWWGEN | PORT OF WW 640 | 0.2460186015 | $302,790 | $302,790 | $74.49 | | |
| SD250BOND | SD #250 BOND 773 | 1.4560608159 | $302,790 | $302,790 | $440.88 | | |
| SD250GEN | SD #250 GENERAL 770 | 2.3880724087 | $302,790 | $302,790 | $723.08 | | |
| ST2 | STATE SCHOOL PART 2 600 | 0.8131451643 | $302,790 | $302,790 | $246.21 | | |
| STATESCHL | STATE SCHOOL 600 | 1.5158548041 | $302,790 | $302,790 | $458.99 | | |
| STREFUND | STATE REFUND LEVY 603 | 0.0000000000 | $302,790 | $302,790 | $0.00 | | |
| COROAD | COUNTY ROAD 115 | 1.6549953990 | $302,790 | $302,790 | $501.12 | | |
| CRPRD | COUNTY ROAD REFUND 115 | 0.0000000000 | $302,790 | $302,790 | $0.00 | | |
| | Total Tax Rate: | 10.7663011628 | | | | | |
| | | | | Taxes w/Current Exemptions: | $3,259.93 | | |
| | | | | Taxes w/o Exemptions: | $3,259.93 | | |
Improvement / Building
| Improvement #1: | RESIDENTIAL | State Code: | 11 | 1048.0 sqft | Value: | $171,750 |
| Exterior Wall: | SIDING | Heating/Cooling: | WARM & COOLED AIR | | Number of Bathrooms: | 1 | Number of Bedrooms: | 2 | | Plumbing: | 6 | Roof Covering: | COMP SHINGLE |
|
| | Type | Description | Class CD | Sub Class CD | Year Built | Area |
| | MA | Main Area | 1 | 30 | 1917 | 1048.0 |
| | SI1 | SITE IMPROVEMENT | 1 | 30 | 0 | 1.0 |
| | WDR | WOOD DECK W/ROOF | 1 | 30 | 0 | 168.0 |
| | BASE | BASEMENT | 1 | 30 | 1917 | 952.0 |
| | SWP | Solid Wall Porch | 1 | 30 | 1917 | 160.0 |
| | UTST | Utility Storage Shed | 1 | 30 | 1917 | 100.0 |
| | POL2 | POLE BUILDING-CONCRETE | 1 | 30 | 0 | 864.0 |
| | CPC | COVERED CARPORT/PATIO | 1 | 30 | 0 | 432.0 |
| | CPC | COVERED CARPORT/PATIO | 1 | 30 | 0 | 432.0 |
Sketch
Property Image
Land
| 1 | RES 1 | Converted: Residential | 1.0400 | 0.00 | 0.00 | 0.00 | 1.00 | $131,040 | $0 |
Roll Value History
| 2026 | N/A | N/A | N/A | N/A | N/A |
| 2025 | $236,160 | $131,040 | $0 | $367,200 | $367,200 |
| 2024 | $188,930 | $131,040 | $0 | $319,970 | $319,970 |
| 2023 | $171,750 | $131,040 | $0 | $302,790 | $302,790 |
| 2022 | $113,240 | $131,040 | $0 | $244,280 | $244,280 |
| 2021 | $112,870 | $75,300 | $0 | $188,170 | $188,170 |
| 2020 | $85,510 | $75,300 | $0 | $160,810 | $160,810 |
| 2019 | $85,510 | $75,300 | $0 | $160,810 | $160,810 |
| 2018 | $77,740 | $75,300 | $0 | $153,040 | $153,040 |
| 2017 | $77,740 | $75,300 | $0 | $153,040 | $153,040 |
| 2016 | $70,670 | $75,300 | $0 | $145,970 | $145,970 |
| 2015 | $69,400 | $75,300 | $0 | $144,700 | $144,700 |
| 2014 | $69,400 | $75,300 | $0 | $144,700 | $144,700 |
| 2013 | $69,400 | $75,300 | $0 | $144,700 | $144,700 |
| 2012 | $69,400 | $75,300 | $0 | $0 | $0 |
| 2011 | $69,400 | $75,300 | $0 | $0 | $0 |
| 2010 | $62,400 | $75,300 | $0 | $0 | $0 |
| 2009 | $107,800 | $45,200 | $0 | $0 | $0 |
| 2008 | $91,400 | $45,200 | $0 | $0 | $0 |
| 2007 | $91,400 | $45,200 | $0 | $0 | $0 |
Deed and Sales History
| 1 | 10/28/2022 | QCD | QUIT CLAIM DEED | DE WAYNE ROBERT E JR | DEWAYNE ROBERT E JR & TONYA | | | $0.00 | 144932 | 2022-08798 |
| 2 | 07/03/2019 | QCD | QUIT CLAIM DEED | DE WAYNE ROBERT E JR & SHELLEY A | DE WAYNE ROBERT E JR | | | $0.00 | 137227 | 2019-04828 |
| 3 | 05/23/2011 | WARRANTY D | WARRANTY DEED | DE WAYNE, BUCKLEIGH E JR ESTAT | DE WAYNE, ROBERT E JR & SHELLE | | | | 120178 | 2011-04039 |
| 4 | 03/05/1976 | WARRANTY D | WARRANTY DEED | | | | | $20,000.00 | 0 | 3805-51843 |
Payout Agreement
| No payout information available.. |