Property
Account |
| Property ID: | 31569 | Abbreviated Legal Description: | 35-7-38 E 321' OF S 678.49' OF E1/2SE1/4 |
| Parcel Number: | 380735440003 | Agent Code: | |
| Type: | Real | | |
| Tax Area: | 120 - 140 | Land Use Code | 88 |
| Open Space: | Y | DFL | N |
| Historic Property: | N | Remodel Property: | N |
| Multi-Family Redevelopment: | N | | |
| Township: | 7 | Section: | 35 |
| Range: | 38 |
Location |
| Address: | 14111 BISCUIT RIDGE RD WALLA WALLA, WA 99362 | Mapsco: | |
| Neighborhood: | 0 Farm | Map ID: | |
| Neighborhood CD: | 5250 |
Owner |
| Name: | YOUNG ERIK A & DIANA | Owner ID: | 56128 |
| Mailing Address: | 9594 E HWY 124 PRESCOTT, WA 99348 | % Ownership: | 100.0000000000% |
| | | Exemptions: | |
Taxes and Assessment Details
Values
| (+) Improvement Homesite Value: | + | $0 | |
| (+) Improvement Non-Homesite Value: | + | $32,150 | |
| (+) Land Homesite Value: | + | $0 | |
| (+) Land Non-Homesite Value: | + | $0 | |
| (+) Curr Use (HS): | + | $0 | $0 |
| (+) Curr Use (NHS): | + | $52,030 | $40,270 |
| | | -------------------------- | |
| (=) Market Value: | = | $84,180 | |
| (–) Productivity Loss: | – | $11,760 | |
| | | -------------------------- | |
| (=) Subtotal: | = | $72,420 | |
| (+) Senior Appraised Value: | + | $0 | |
| (+) Non-Senior Appraised Value: | + | $72,420 | |
| | | -------------------------- | |
| (=) Total Appraised Value: | = | $72,420 | |
| (–) Senior Exemption Loss: | – | $0 | |
| (–) Exemption Loss: | – | $0 | |
| | | -------------------------- | |
| (=) Taxable Value: | = | $72,420 | |
Taxing Jurisdiction
| Owner: | YOUNG ERIK A & DIANA | | |
| % Ownership: | 100.0000000000% | | |
| Total Value: | $84,180 | | |
| Tax Area: | 120 - 140 |
| CERFD | CURRENT EXPENSE REFUND 010 | 0.0000000000 | $72,420 | $72,420 | $0.00 | | |
| CURREXP | CURRENT EXPENSE 010 | 0.9851088983 | $72,420 | $72,420 | $71.34 | | |
| HUMNSERV | HUMAN SERVICES 119 | 0.0250000000 | $72,420 | $72,420 | $1.81 | | |
| SLDREL | SOLDIERS RELIEF 121 | 0.0155990000 | $72,420 | $72,420 | $1.13 | | |
| EMERGSER | EMS 147 | 0.3676811629 | $72,420 | $72,420 | $26.63 | | |
| EMSRFD | EMS REFUND 147 | 0.0000000000 | $72,420 | $72,420 | $0.00 | | |
| RLBRFD | RURAL LIBRARY REFUND 623 | 0.0000000000 | $72,420 | $72,420 | $0.00 | | |
| RURALLIB | RURAL LIBRARY 623 | 0.3601547782 | $72,420 | $72,420 | $26.08 | | |
| PORTRFD | PORT REFUND 640 | 0.0000000000 | $72,420 | $72,420 | $0.00 | | |
| PORTWWGEN | PORT OF WW 640 | 0.2344301070 | $72,420 | $72,420 | $16.98 | | |
| SD140BOND | SD #140 BOND 764 | 0.8032434458 | $72,420 | $72,420 | $58.17 | | |
| SD140CAP | SD #140 CAP 762 | 0.3840034221 | $72,420 | $72,420 | $27.81 | | |
| SD140GEN | SD #140 GENERAL 760 | 2.4999999996 | $72,420 | $72,420 | $181.05 | | |
| ST2 | STATE SCHOOL PART 2 600 | 0.8853714103 | $72,420 | $72,420 | $64.12 | | |
| STATESCHL | STATE SCHOOL 600 | 1.6424571473 | $72,420 | $72,420 | $118.95 | | |
| STREFUND | STATE REFUND LEVY 603 | 0.0000000000 | $72,420 | $72,420 | $0.00 | | |
| COROAD | COUNTY ROAD 115 | 1.6137667997 | $72,420 | $72,420 | $116.87 | | |
| CRPRD | COUNTY ROAD REFUND 115 | 0.0000000000 | $72,420 | $72,420 | $0.00 | | |
| | Total Tax Rate: | 9.8168161712 | | | | | |
| | | | | Taxes w/Current Exemptions: | $710.94 | | |
| | | | | Taxes w/o Exemptions: | $710.94 | | |
Improvement / Building
| Improvement #1: | RESIDENTIAL | State Code: | 88 | 849.0 sqft | Value: | $32,150 |
| Exterior Wall: | FINSHED CABIN |   |   |
|
| | Type | Description | Class CD | Sub Class CD | Year Built | Area |
| | MA | Main Area | 19 | CABFN | 0 | 849.0 |
| | UPFL | Upper Floor (included in main area) | 19 | 30 | 0 | 156.0 |
| | WOD | Wood Deck | 19 | 30 | 0 | 64.0 |
| | BLW | WOOD BALCONIES | 19 | CABFN | 0 | 170.0 |
| | POL2 | POLE BUILDING-CONCRETE | 1 | 30 | 2013 | 400.0 |
| | CPC | COVERED CARPORT/PATIO | 1 | 30 | 2013 | 200.0 |
| | LOFT | Loft Area | 1 | 30 | 2013 | 140.0 |
Sketch
Property Image
Land
| 1 | 15-TBR | Timber | 4.0100 | 174675.60 | 0.00 | 0.00 | 1.00 | $12,030 | $270 |
| 2 | 40,000-CS | SITE ACRE @ 40,000 | 1.0000 | 0.00 | 0.00 | 0.00 | 1.00 | $40,000 | $40,000 |
Roll Value History
| 2026 | N/A | N/A | N/A | N/A | N/A |
| 2025 | $32,150 | $52,030 | $40,270 | $72,420 | $72,420 |
| 2024 | $32,150 | $52,030 | $40,270 | $72,420 | $72,420 |
| 2023 | $32,150 | $41,420 | $35,270 | $67,420 | $67,420 |
| 2022 | $32,150 | $41,420 | $35,270 | $67,420 | $67,420 |
| 2021 | $32,150 | $41,420 | $35,270 | $67,420 | $67,420 |
| 2020 | $32,150 | $41,420 | $35,270 | $67,420 | $67,420 |
| 2019 | $32,150 | $41,420 | $35,250 | $67,400 | $67,400 |
| 2018 | $32,150 | $41,420 | $0 | $73,570 | $73,570 |
| 2017 | $24,000 | $8,200 | $0 | $32,200 | $32,200 |
| 2016 | $20,000 | $8,200 | $0 | $28,200 | $28,200 |
| 2015 | $20,000 | $8,200 | $0 | $28,200 | $28,200 |
| 2014 | $20,000 | $8,200 | $0 | $28,200 | $28,200 |
| 2013 | $20,000 | $8,200 | $0 | $28,200 | $28,200 |
| 2012 | $20,000 | $8,200 | $0 | $0 | $0 |
| 2011 | $20,000 | $5,700 | $0 | $0 | $0 |
| 2010 | $20,000 | $5,700 | $0 | $0 | $0 |
| 2009 | $20,000 | $5,700 | $0 | $0 | $0 |
| 2008 | $20,000 | $5,700 | $0 | $0 | $0 |
| 2007 | $24,000 | $5,700 | $0 | $0 | $0 |
Deed and Sales History
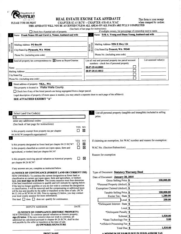
| 1 | 01/20/2015 | SWD | STATUTORY WARRANTY DEED | NEMEC FRANK III & CAROL ANN | YOUNG ERIK A & DIANA | | 2-PARCELS | $100,000.00 | 127300 | 2015-00445 |
|   | |
| 2 | 03/06/1979 | QCD | QUIT CLAIM DEED | | | | | $5,000.00 | 0 | 1849-005736 |
Payout Agreement
| No payout information available.. |