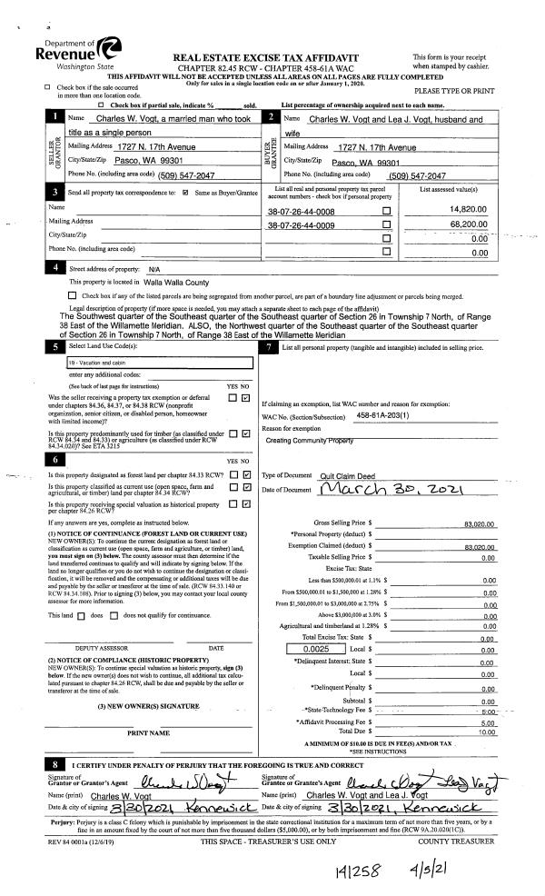
Property
Account |
| Property ID: | 31553 | Abbreviated Legal Description: | 26-7-38 SW1/4SE1/4SE1/4 |
| Parcel Number: | 380726440008 | Agent Code: | |
| Type: | Real | | |
| Tax Area: | 120 - 140 | Land Use Code | 19 |
| Open Space: | N | DFL | N |
| Historic Property: | N | Remodel Property: | N |
| Multi-Family Redevelopment: | N | | |
| Township: | 7 | Section: | 26 |
| Range: | 38 |
Location |
| Address: | WA 99362 | Mapsco: | |
| Neighborhood: | Low Mnt Cabin Prop | Map ID: | |
| Neighborhood CD: | 511075 |
Owner |
| Name: | VOGT CHARLES W & LEA J | Owner ID: | 69142 |
| Mailing Address: | 1727 N 17TH AVE PASCO, WA 99301 | % Ownership: | 100.0000000000% |
| | | Exemptions: | |
Taxes and Assessment Details
Values
| (+) Improvement Homesite Value: | + | $0 | |
| (+) Improvement Non-Homesite Value: | + | $0 | |
| (+) Land Homesite Value: | + | $0 | |
| (+) Land Non-Homesite Value: | + | $10,530 | |
| (+) Curr Use (HS): | + | $0 | $0 |
| (+) Curr Use (NHS): | + | $0 | $0 |
| | | -------------------------- | |
| (=) Market Value: | = | $10,530 | |
| (–) Productivity Loss: | – | $0 | |
| | | -------------------------- | |
| (=) Subtotal: | = | $10,530 | |
| (+) Senior Appraised Value: | + | $0 | |
| (+) Non-Senior Appraised Value: | + | $10,530 | |
| | | -------------------------- | |
| (=) Total Appraised Value: | = | $10,530 | |
| (–) Senior Exemption Loss: | – | $0 | |
| (–) Exemption Loss: | – | $0 | |
| | | -------------------------- | |
| (=) Taxable Value: | = | $10,530 | |
Taxing Jurisdiction
| Owner: | VOGT CHARLES W & LEA J | | |
| % Ownership: | 100.0000000000% | | |
| Total Value: | $10,530 | | |
| Tax Area: | 120 - 140 |
| CERFD | CURRENT EXPENSE REFUND 010 | 0.0000000000 | $10,530 | $10,530 | $0.00 | | |
| CURREXP | CURRENT EXPENSE 010 | 0.9851088983 | $10,530 | $10,530 | $10.37 | | |
| HUMNSERV | HUMAN SERVICES 119 | 0.0250000000 | $10,530 | $10,530 | $0.26 | | |
| SLDREL | SOLDIERS RELIEF 121 | 0.0155990000 | $10,530 | $10,530 | $0.16 | | |
| EMERGSER | EMS 147 | 0.3676811629 | $10,530 | $10,530 | $3.87 | | |
| EMSRFD | EMS REFUND 147 | 0.0000000000 | $10,530 | $10,530 | $0.00 | | |
| RLBRFD | RURAL LIBRARY REFUND 623 | 0.0000000000 | $10,530 | $10,530 | $0.00 | | |
| RURALLIB | RURAL LIBRARY 623 | 0.3601547782 | $10,530 | $10,530 | $3.79 | | |
| PORTRFD | PORT REFUND 640 | 0.0000000000 | $10,530 | $10,530 | $0.00 | | |
| PORTWWGEN | PORT OF WW 640 | 0.2344301070 | $10,530 | $10,530 | $2.47 | | |
| SD140BOND | SD #140 BOND 764 | 0.8032434458 | $10,530 | $10,530 | $8.46 | | |
| SD140CAP | SD #140 CAP 762 | 0.3840034221 | $10,530 | $10,530 | $4.04 | | |
| SD140GEN | SD #140 GENERAL 760 | 2.4999999996 | $10,530 | $10,530 | $26.33 | | |
| ST2 | STATE SCHOOL PART 2 600 | 0.8853714103 | $10,530 | $10,530 | $9.32 | | |
| STATESCHL | STATE SCHOOL 600 | 1.6424571473 | $10,530 | $10,530 | $17.30 | | |
| STREFUND | STATE REFUND LEVY 603 | 0.0000000000 | $10,530 | $10,530 | $0.00 | | |
| COROAD | COUNTY ROAD 115 | 1.6137667997 | $10,530 | $10,530 | $16.99 | | |
| CRPRD | COUNTY ROAD REFUND 115 | 0.0000000000 | $10,530 | $10,530 | $0.00 | | |
| | Total Tax Rate: | 9.8168161712 | | | | | |
| | | | | Taxes w/Current Exemptions: | $103.36 | | |
| | | | | Taxes w/o Exemptions: | $103.36 | | |
Improvement / Building
Sketch
| No sketches available for this property. |
Property Image
Land
| 1 | RES 1 | Converted: Residential | 10.5300 | 0.00 | 0.00 | 0.00 | 1.00 | $10,530 | $0 |
Roll Value History
| 2026 | N/A | N/A | N/A | N/A | N/A |
| 2025 | $0 | $10,530 | $0 | $10,530 | $10,530 |
| 2024 | $0 | $10,530 | $0 | $10,530 | $10,530 |
| 2023 | $0 | $14,820 | $0 | $14,820 | $14,820 |
| 2022 | $0 | $14,820 | $0 | $14,820 | $14,820 |
| 2021 | $0 | $14,820 | $0 | $14,820 | $14,820 |
| 2020 | $0 | $14,820 | $0 | $14,820 | $14,820 |
| 2019 | $0 | $14,820 | $0 | $14,820 | $14,820 |
| 2018 | $0 | $14,820 | $0 | $14,820 | $14,820 |
| 2017 | $0 | $12,600 | $0 | $12,600 | $12,600 |
| 2016 | $0 | $12,600 | $0 | $12,600 | $12,600 |
| 2015 | $0 | $12,600 | $0 | $12,600 | $12,600 |
| 2014 | $0 | $12,600 | $0 | $12,600 | $12,600 |
| 2013 | $0 | $12,600 | $0 | $12,600 | $12,600 |
| 2012 | $0 | $12,600 | $0 | $0 | $0 |
| 2011 | $15,000 | $10,100 | $0 | $0 | $0 |
| 2010 | $15,000 | $10,100 | $0 | $0 | $0 |
| 2009 | $15,000 | $10,100 | $0 | $0 | $0 |
| 2008 | $15,000 | $10,100 | $0 | $0 | $0 |
| 2007 | $15,000 | $10,100 | $0 | $0 | $0 |
Deed and Sales History
| 1 | 03/30/2021 | QCD | QUIT CLAIM DEED | VOGT CHARLES W | VOGT CHARLES W & LEA J | | 2 PARCELS | $0.00 | 141258 | 2021-03940 |
| 2 | 06/11/1991 | WARRANTY D | WARRANTY DEED | | | | | $33,000.00 | 0 | 1899-103727 |
|   | |
Payout Agreement
| No payout information available.. |