Property
Account |
| Property ID: | 31525 | Abbreviated Legal Description: | 18-7-38 PARCEL #17 |
| Parcel Number: | 380718240017 | Agent Code: | |
| Type: | Real | | |
| Tax Area: | 310 - 101-8 | Land Use Code | 11 |
| Open Space: | N | DFL | N |
| Historic Property: | N | Remodel Property: | N |
| Multi-Family Redevelopment: | N | | |
| Township: | 7 | Section: | 18 |
| Range: | 38 |
Location |
| Address: | 4384 BISCUIT RIDGE RD WA 99329 | Mapsco: | |
| Neighborhood: | A MH Extreme Rural | Map ID: | |
| Neighborhood CD: | 513064 |
Owner |
| Name: | AUSTIN TODD D & TERESA M | Owner ID: | 62752 |
| Mailing Address: | 6072 BISCUIT RIDGE RD WAITSBURG, WA 99361 | % Ownership: | 100.0000000000% |
| | | Exemptions: | |
Taxes and Assessment Details
Property Tax Information as of
02/21/2026
Click on "Statement Details" to expand or collapse a tax statement.
* Please enter a valid date ** Please enter a valid date *
Statement Details |
| | TOTAL: | $0.00 | $0.00 | $0.00 | $0.00 | $0.00 | $0.00 |
|
| | $0.00 | $0.00 | $0.00 | $0.00 | $0.00 | $0.00 |
Values
| (+) Improvement Homesite Value: | + | $0 | |
| (+) Improvement Non-Homesite Value: | + | $102,410 | |
| (+) Land Homesite Value: | + | $0 | |
| (+) Land Non-Homesite Value: | + | $102,000 | |
| (+) Curr Use (HS): | + | $0 | $0 |
| (+) Curr Use (NHS): | + | $0 | $0 |
| | | -------------------------- | |
| (=) Market Value: | = | $204,410 | |
| (–) Productivity Loss: | – | $0 | |
| | | -------------------------- | |
| (=) Subtotal: | = | $204,410 | |
| (+) Senior Appraised Value: | + | $0 | |
| (+) Non-Senior Appraised Value: | + | $204,410 | |
| | | -------------------------- | |
| (=) Total Appraised Value: | = | $204,410 | |
| (–) Senior Exemption Loss: | – | $0 | |
| (–) Exemption Loss: | – | $0 | |
| | | -------------------------- | |
| (=) Taxable Value: | = | $204,410 | |
Taxing Jurisdiction
| Owner: | AUSTIN TODD D & TERESA M | | |
| % Ownership: | 100.0000000000% | | |
| Total Value: | $204,410 | | |
| Tax Area: | 310 - 101-8 |
| CERFD | CURRENT EXPENSE REFUND 010 | 0.0000000000 | $204,410 | $204,410 | $0.00 | | |
| CURREXP | CURRENT EXPENSE 010 | 1.0175366760 | $204,410 | $204,410 | $207.99 | | |
| HUMNSERV | HUMAN SERVICES 119 | 0.0250000000 | $204,410 | $204,410 | $5.11 | | |
| SLDREL | SOLDIERS RELIEF 121 | 0.0155990005 | $204,410 | $204,410 | $3.19 | | |
| EMERGSER | EMS 147 | 0.3792580840 | $204,410 | $204,410 | $77.52 | | |
| EMSRFD | EMS REFUND 147 | 0.0000000000 | $204,410 | $204,410 | $0.00 | | |
| FD8EXP | FD #8 EXPENSE 697 | 0.6647992540 | $204,410 | $204,410 | $135.89 | | |
| RLBRFD | RURAL LIBRARY REFUND 623 | 0.0000000000 | $204,410 | $204,410 | $0.00 | | |
| RURALLIB | RURAL LIBRARY 623 | 0.3710609029 | $204,410 | $204,410 | $75.85 | | |
| PORTRFD | PORT REFUND 640 | 0.0000000000 | $204,410 | $204,410 | $0.00 | | |
| PORTWWGEN | PORT OF WW 640 | 0.2460186015 | $204,410 | $204,410 | $50.29 | | |
| SD101CAP | SD #101 CAP 752 | 0.5894423472 | $204,410 | $204,410 | $120.49 | | |
| SD101GEN | SD #101 GENERAL 750 | 0.7455117868 | $204,410 | $204,410 | $152.39 | | |
| ST2 | STATE SCHOOL PART 2 600 | 0.8131451643 | $204,410 | $204,410 | $166.22 | | |
| STATESCHL | STATE SCHOOL 600 | 1.5158548041 | $204,410 | $204,410 | $309.86 | | |
| STREFUND | STATE REFUND LEVY 603 | 0.0000000000 | $204,410 | $204,410 | $0.00 | | |
| COROAD | COUNTY ROAD 115 | 1.6549953990 | $204,410 | $204,410 | $338.30 | | |
| CRPRD | COUNTY ROAD REFUND 115 | 0.0000000000 | $204,410 | $204,410 | $0.00 | | |
| | Total Tax Rate: | 8.0382220203 | | | | | |
| | | | | Taxes w/Current Exemptions: | $1,643.10 | | |
| | | | | Taxes w/o Exemptions: | $1,643.10 | | |
Improvement / Building
| Improvement #1: | MANUFACTURED HOME | State Code: | 11 | 1458.0 sqft | Value: | $102,410 |
| Exterior Wall: | HARDBOARD | Heating/Cooling: | WARM & COOLED AIR | | Number of Bathrooms: | 2 | Number of Bedrooms: | 3 | | Plumbing: | 10 | Roof Covering: | COMP SHINGLE |
|
| | Type | Description | Class CD | Sub Class CD | Year Built | Area |
| | MOBHOME | MANUFACTURD HOMES | 1 | 30 | 1994 | 1458.0 |
| | CPCD | CARPORT/DIRT FLOOR | 1 | 30 | 1994 | 384.0 |
| | MI1 | MH SET-UP COSTS | 1 | 30 | 1994 | 1.0 |
| | POL2 | POLE BUILDING-CONCRETE | 1 | 30 | 1994 | 576.0 |
| | WDR | WOOD DECK W/ROOF | 1 | 30 | 1994 | 40.0 |
| | WOD | Wood Deck | 1 | 30 | 1994 | 35.0 |
Sketch
Property Image
Land
| 1 | RES 1 | Converted: Residential | 10.0000 | 0.00 | 0.00 | 0.00 | 1.00 | $102,000 | $0 |
Roll Value History
| 2026 | N/A | N/A | N/A | N/A | N/A |
| 2025 | $102,410 | $102,000 | $0 | $204,410 | $204,410 |
| 2024 | $102,410 | $102,000 | $0 | $204,410 | $204,410 |
| 2023 | $102,410 | $102,000 | $0 | $204,410 | $204,410 |
| 2022 | $73,150 | $86,600 | $0 | $159,750 | $159,750 |
| 2021 | $73,150 | $86,600 | $0 | $159,750 | $159,750 |
| 2020 | $73,150 | $86,600 | $0 | $159,750 | $159,750 |
| 2019 | $73,150 | $86,600 | $0 | $159,750 | $159,750 |
| 2018 | $73,150 | $86,600 | $0 | $159,750 | $159,750 |
| 2017 | $73,150 | $86,600 | $0 | $159,750 | $159,750 |
| 2016 | $66,500 | $86,600 | $0 | $153,100 | $153,100 |
| 2015 | $66,500 | $86,600 | $0 | $153,100 | $153,100 |
| 2014 | $66,500 | $86,600 | $0 | $153,100 | $153,100 |
| 2013 | $66,500 | $86,600 | $0 | $153,100 | $153,100 |
| 2012 | $66,200 | $86,600 | $0 | $0 | $0 |
| 2011 | $62,400 | $86,600 | $0 | $0 | $0 |
| 2010 | $62,400 | $86,600 | $0 | $0 | $0 |
| 2009 | $70,200 | $86,600 | $0 | $0 | $0 |
| 2008 | $70,200 | $43,000 | $0 | $0 | $0 |
| 2007 | $70,200 | $43,000 | $0 | $0 | $0 |
Deed and Sales History
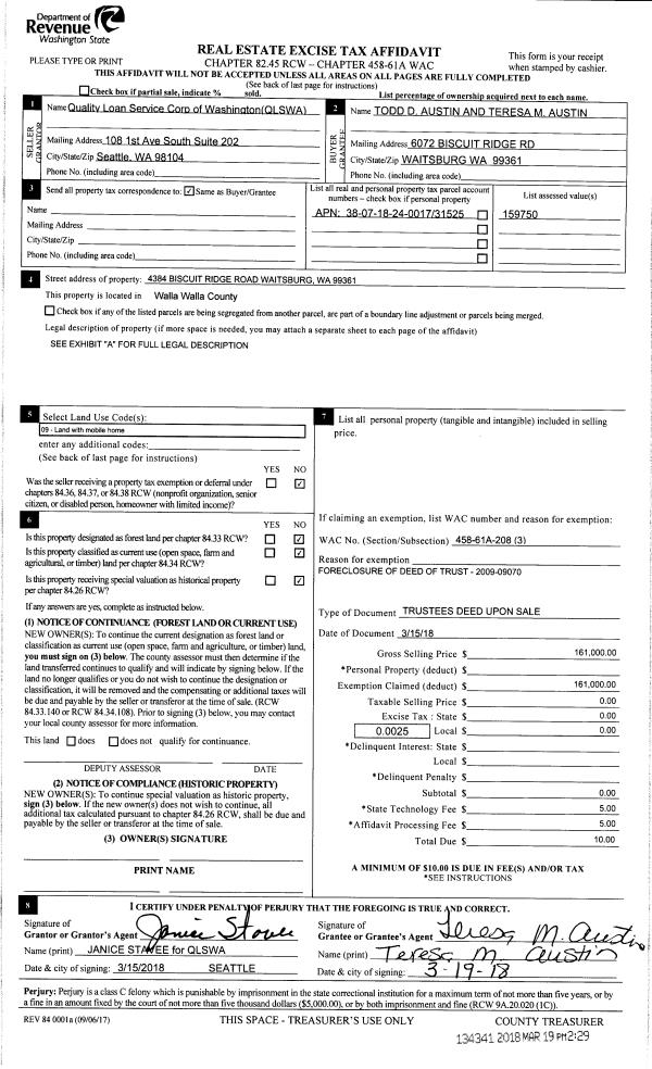
| 1 | 03/19/2018 | TRUSTEES D | TRUSTEE'S DEED | COLTER ALEX J | AUSTIN TODD D & TERESA M | | | $161,000.00 | 134341 | 2018-02136 |
| 2 | 04/05/2013 | WARRANTY D | WARRANTY DEED | COLTER, TONI LYNN | COLTER, ALEX J | | | $0.00 | 0 | CC #12-3-00194-9 |
| 3 | 09/08/2009 | WARRANTY D | WARRANTY DEED | AUSTIN, DAVID L ESTATE OF | COLTER, ALEX J | | | $154,900.00 | 117302 | 2009-09069 |
Payout Agreement
| No payout information available.. |