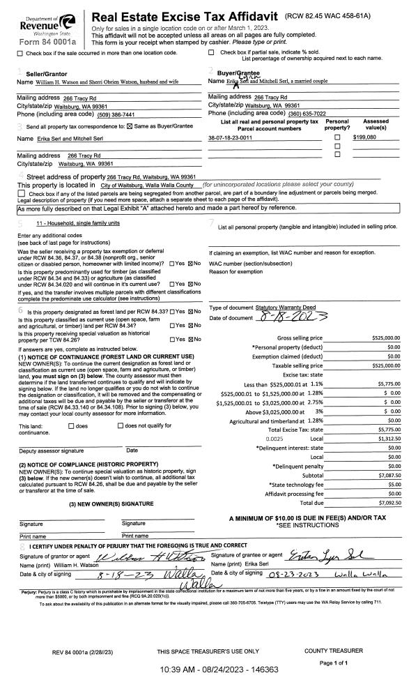
Property
Account |
| Property ID: | 31524 | Abbreviated Legal Description: | 18-7-38 TAX 12 |
| Parcel Number: | 380718230011 | Agent Code: | |
| Type: | Real | | |
| Tax Area: | 310 - 101-8 | Land Use Code | 11 |
| Open Space: | N | DFL | N |
| Historic Property: | N | Remodel Property: | N |
| Multi-Family Redevelopment: | N | | |
| Township: | 7 | Section: | 18 |
| Range: | 38 |
Location |
| Address: | 266 TRACY RD WA 99329 | Mapsco: | |
| Neighborhood: | Tracy Road | Map ID: | |
| Neighborhood CD: | 512014 |
Owner |
| Name: | SERL ERIKA LYNN & MITCHELL | Owner ID: | 74112 |
| Mailing Address: | 266 TRACY RD WAITSBURG, WA 99361 | % Ownership: | 100.0000000000% |
| | | Exemptions: | |
Taxes and Assessment Details
Values
| (+) Improvement Homesite Value: | + | $0 | |
| (+) Improvement Non-Homesite Value: | + | $128,500 | |
| (+) Land Homesite Value: | + | $0 | |
| (+) Land Non-Homesite Value: | + | $70,580 | |
| (+) Curr Use (HS): | + | $0 | $0 |
| (+) Curr Use (NHS): | + | $0 | $0 |
| | | -------------------------- | |
| (=) Market Value: | = | $199,080 | |
| (–) Productivity Loss: | – | $0 | |
| | | -------------------------- | |
| (=) Subtotal: | = | $199,080 | |
| (+) Senior Appraised Value: | + | $0 | |
| (+) Non-Senior Appraised Value: | + | $199,080 | |
| | | -------------------------- | |
| (=) Total Appraised Value: | = | $199,080 | |
| (–) Senior Exemption Loss: | – | $0 | |
| (–) Exemption Loss: | – | $0 | |
| | | -------------------------- | |
| (=) Taxable Value: | = | $199,080 | |
Taxing Jurisdiction
| Owner: | SERL ERIKA LYNN & MITCHELL | | |
| % Ownership: | 100.0000000000% | | |
| Total Value: | $199,080 | | |
| Tax Area: | 310 - 101-8 |
| CERFD | CURRENT EXPENSE REFUND 010 | 0.0000000000 | $199,080 | $199,080 | $0.00 | | |
| CURREXP | CURRENT EXPENSE 010 | 1.0175366760 | $199,080 | $199,080 | $202.57 | | |
| HUMNSERV | HUMAN SERVICES 119 | 0.0250000000 | $199,080 | $199,080 | $4.98 | | |
| SLDREL | SOLDIERS RELIEF 121 | 0.0155990005 | $199,080 | $199,080 | $3.11 | | |
| EMERGSER | EMS 147 | 0.3792580840 | $199,080 | $199,080 | $75.50 | | |
| EMSRFD | EMS REFUND 147 | 0.0000000000 | $199,080 | $199,080 | $0.00 | | |
| FD8EXP | FD #8 EXPENSE 697 | 0.6647992540 | $199,080 | $199,080 | $132.35 | | |
| RLBRFD | RURAL LIBRARY REFUND 623 | 0.0000000000 | $199,080 | $199,080 | $0.00 | | |
| RURALLIB | RURAL LIBRARY 623 | 0.3710609029 | $199,080 | $199,080 | $73.87 | | |
| PORTRFD | PORT REFUND 640 | 0.0000000000 | $199,080 | $199,080 | $0.00 | | |
| PORTWWGEN | PORT OF WW 640 | 0.2460186015 | $199,080 | $199,080 | $48.98 | | |
| SD101CAP | SD #101 CAP 752 | 0.5894423472 | $199,080 | $199,080 | $117.35 | | |
| SD101GEN | SD #101 GENERAL 750 | 0.7455117868 | $199,080 | $199,080 | $148.42 | | |
| ST2 | STATE SCHOOL PART 2 600 | 0.8131451643 | $199,080 | $199,080 | $161.88 | | |
| STATESCHL | STATE SCHOOL 600 | 1.5158548041 | $199,080 | $199,080 | $301.78 | | |
| STREFUND | STATE REFUND LEVY 603 | 0.0000000000 | $199,080 | $199,080 | $0.00 | | |
| COROAD | COUNTY ROAD 115 | 1.6549953990 | $199,080 | $199,080 | $329.48 | | |
| CRPRD | COUNTY ROAD REFUND 115 | 0.0000000000 | $199,080 | $199,080 | $0.00 | | |
| | Total Tax Rate: | 8.0382220203 | | | | | |
| | | | | Taxes w/Current Exemptions: | $1,600.27 | | |
| | | | | Taxes w/o Exemptions: | $1,600.27 | | |
Improvement / Building
| Improvement #1: | MANUFACTURED HOME | State Code: | 11 | 1200.0 sqft | Value: | $128,500 |
| Exterior Wall: | HARDBOARD | Heating/Cooling: | WARM & COOLED AIR | | Number of Bathrooms: | 2 | Number of Bedrooms: | 3 | | Plumbing: | 8 | Roof Covering: | COMP SHINGLE |
|
| | Type | Description | Class CD | Sub Class CD | Year Built | Area |
| | MOBHOME | MANUFACTURD HOMES | 1 | 30 | 1995 | 1200.0 |
| | HAYSHED | HAYSHED | 1 | 30 | 1995 | 484.0 |
| | MI1 | MH SET-UP COSTS | 1 | 30 | 1995 | 1.0 |
| | POL3 | POLE BUILDING-CON,ELEC,INSU | 1 | 30 | 1995 | 836.0 |
| | HAYSHED | HAYSHED | 1 | 30 | 2006 | 1800.0 |
| | LNTD | LEAN TO DIRT FLOOR | 1 | 20 | 1995 | 121.0 |
| | LNTD | LEAN TO DIRT FLOOR | 1 | 20 | 1995 | 121.0 |
| | WOD | Wood Deck | 1 | 30 | 1995 | 160.0 |
Sketch
Property Image
Land
| 1 | RES 1 | Converted: Residential | 17.9200 | 0.00 | 0.00 | 0.00 | 1.00 | $70,580 | $0 |
Roll Value History
| 2026 | N/A | N/A | N/A | N/A | N/A |
| 2025 | $257,000 | $109,920 | $0 | $366,920 | $366,920 |
| 2024 | $128,500 | $109,920 | $0 | $238,420 | $238,420 |
| 2023 | $128,500 | $70,580 | $0 | $199,080 | $199,080 |
| 2022 | $128,500 | $70,580 | $0 | $199,080 | $199,080 |
| 2021 | $107,090 | $70,580 | $0 | $177,670 | $177,670 |
| 2020 | $107,090 | $70,580 | $0 | $177,670 | $177,670 |
| 2019 | $107,090 | $70,580 | $0 | $177,670 | $177,670 |
| 2018 | $97,350 | $70,580 | $0 | $167,930 | $167,930 |
| 2017 | $97,350 | $70,600 | $0 | $167,950 | $167,950 |
| 2016 | $88,500 | $70,600 | $0 | $159,100 | $159,100 |
| 2015 | $88,500 | $70,600 | $0 | $159,100 | $159,100 |
| 2014 | $88,500 | $70,600 | $0 | $159,100 | $159,100 |
| 2013 | $88,500 | $70,600 | $0 | $159,100 | $159,100 |
| 2012 | $88,500 | $70,600 | $0 | $0 | $0 |
| 2011 | $88,200 | $70,600 | $0 | $0 | $0 |
| 2010 | $88,200 | $70,600 | $0 | $0 | $0 |
| 2009 | $88,200 | $70,600 | $0 | $0 | $0 |
| 2008 | $88,200 | $47,000 | $0 | $0 | $0 |
| 2007 | $88,200 | $47,000 | $0 | $0 | $0 |
Deed and Sales History
| 1 | 08/24/2023 | SWD | STATUTORY WARRANTY DEED | WATSON WILLIAM H | SERL ERIKA LYNN & MITCHELL | | | $525,000.00 | 146363 | 2023-04906 |
| 2 | 08/01/1989 | WARRANTY D | WARRANTY DEED | | | | | $55,000.00 | 0 | 1778-904807 |
Payout Agreement
| No payout information available.. |