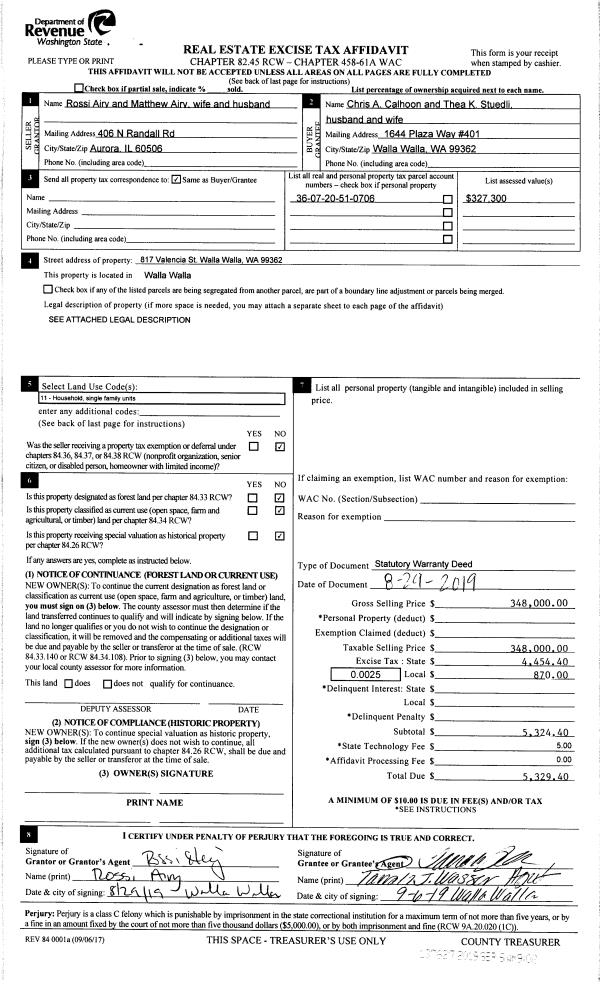
Property
Account |
| Property ID: | 31517 | Abbreviated Legal Description: | 18-7-38 PARCEL 11 |
| Parcel Number: | 380718110011 | Agent Code: | |
| Type: | Real | | |
| Tax Area: | 310 - 101-8 | Land Use Code | 91 |
| Open Space: | N | DFL | N |
| Historic Property: | N | Remodel Property: | N |
| Multi-Family Redevelopment: | N | | |
| Township: | 7 | Section: | 18 |
| Range: | 38 |
Location |
| Address: | WA 99329 | Mapsco: | |
| Neighborhood: | A Ext Rural Land Only | Map ID: | |
| Neighborhood CD: | 513094 |
Owner |
| Name: | DRAKE JAMES RUSSELL | Owner ID: | 41297 |
| Mailing Address: | TRACI JOLYNN DRAKE 5016 BISCUIT RIDGE RD WAITSBURG, WA 99361 | % Ownership: | 100.0000000000% |
| | | Exemptions: | |
Taxes and Assessment Details
Values
| (+) Improvement Homesite Value: | + | $0 | |
| (+) Improvement Non-Homesite Value: | + | $0 | |
| (+) Land Homesite Value: | + | $0 | |
| (+) Land Non-Homesite Value: | + | $26,100 | |
| (+) Curr Use (HS): | + | $0 | $0 |
| (+) Curr Use (NHS): | + | $0 | $0 |
| | | -------------------------- | |
| (=) Market Value: | = | $26,100 | |
| (–) Productivity Loss: | – | $0 | |
| | | -------------------------- | |
| (=) Subtotal: | = | $26,100 | |
| (+) Senior Appraised Value: | + | $0 | |
| (+) Non-Senior Appraised Value: | + | $26,100 | |
| | | -------------------------- | |
| (=) Total Appraised Value: | = | $26,100 | |
| (–) Senior Exemption Loss: | – | $0 | |
| (–) Exemption Loss: | – | $0 | |
| | | -------------------------- | |
| (=) Taxable Value: | = | $26,100 | |
Taxing Jurisdiction
| Owner: | DRAKE JAMES RUSSELL | | |
| % Ownership: | 100.0000000000% | | |
| Total Value: | $26,100 | | |
| Tax Area: | 310 - 101-8 |
| CERFD | CURRENT EXPENSE REFUND 010 | 0.0000000000 | $26,100 | $26,100 | $0.00 | | |
| CURREXP | CURRENT EXPENSE 010 | 1.0175366760 | $26,100 | $26,100 | $26.56 | | |
| HUMNSERV | HUMAN SERVICES 119 | 0.0250000000 | $26,100 | $26,100 | $0.65 | | |
| SLDREL | SOLDIERS RELIEF 121 | 0.0155990005 | $26,100 | $26,100 | $0.41 | | |
| EMERGSER | EMS 147 | 0.3792580840 | $26,100 | $26,100 | $9.90 | | |
| EMSRFD | EMS REFUND 147 | 0.0000000000 | $26,100 | $26,100 | $0.00 | | |
| FD8EXP | FD #8 EXPENSE 697 | 0.6647992540 | $26,100 | $26,100 | $17.35 | | |
| RLBRFD | RURAL LIBRARY REFUND 623 | 0.0000000000 | $26,100 | $26,100 | $0.00 | | |
| RURALLIB | RURAL LIBRARY 623 | 0.3710609029 | $26,100 | $26,100 | $9.68 | | |
| PORTRFD | PORT REFUND 640 | 0.0000000000 | $26,100 | $26,100 | $0.00 | | |
| PORTWWGEN | PORT OF WW 640 | 0.2460186015 | $26,100 | $26,100 | $6.42 | | |
| SD101CAP | SD #101 CAP 752 | 0.5894423472 | $26,100 | $26,100 | $15.38 | | |
| SD101GEN | SD #101 GENERAL 750 | 0.7455117868 | $26,100 | $26,100 | $19.46 | | |
| ST2 | STATE SCHOOL PART 2 600 | 0.8131451643 | $26,100 | $26,100 | $21.22 | | |
| STATESCHL | STATE SCHOOL 600 | 1.5158548041 | $26,100 | $26,100 | $39.56 | | |
| STREFUND | STATE REFUND LEVY 603 | 0.0000000000 | $26,100 | $26,100 | $0.00 | | |
| COROAD | COUNTY ROAD 115 | 1.6549953990 | $26,100 | $26,100 | $43.20 | | |
| CRPRD | COUNTY ROAD REFUND 115 | 0.0000000000 | $26,100 | $26,100 | $0.00 | | |
| | Total Tax Rate: | 8.0382220203 | | | | | |
| | | | | Taxes w/Current Exemptions: | $209.79 | | |
| | | | | Taxes w/o Exemptions: | $209.79 | | |
Improvement / Building
Sketch
| No sketches available for this property. |
Property Image
Land
| 1 | RES 1 | Converted: Residential | 10.2000 | 0.00 | 0.00 | 0.00 | 1.00 | $26,100 | $0 |
Roll Value History
| 2026 | N/A | N/A | N/A | N/A | N/A |
| 2025 | $0 | $10,200 | $0 | $10,200 | $10,200 |
| 2024 | $0 | $10,200 | $0 | $10,200 | $10,200 |
| 2023 | $0 | $26,100 | $0 | $26,100 | $26,100 |
| 2022 | $0 | $26,100 | $0 | $26,100 | $26,100 |
| 2021 | $0 | $26,100 | $0 | $26,100 | $26,100 |
| 2020 | $0 | $26,100 | $0 | $26,100 | $26,100 |
| 2019 | $0 | $26,100 | $0 | $26,100 | $26,100 |
| 2018 | $0 | $26,100 | $0 | $26,100 | $26,100 |
| 2017 | $0 | $26,100 | $0 | $26,100 | $26,100 |
| 2016 | $0 | $26,100 | $0 | $26,100 | $26,100 |
| 2015 | $0 | $26,100 | $0 | $26,100 | $26,100 |
| 2014 | $0 | $26,100 | $0 | $26,100 | $26,100 |
| 2013 | $0 | $26,100 | $0 | $26,100 | $26,100 |
| 2012 | $0 | $26,100 | $0 | $0 | $0 |
| 2011 | $0 | $26,100 | $0 | $0 | $0 |
| 2010 | $0 | $26,100 | $0 | $0 | $0 |
| 2009 | $0 | $26,100 | $0 | $0 | $0 |
| 2008 | $0 | $5,100 | $0 | $0 | $0 |
| 2007 | $0 | $5,100 | $0 | $0 | $0 |
Deed and Sales History
| 1 | 08/30/2019 | SWD | STATUTORY WARRANTY DEED | DRAKE JAMES R | DRAKE JAMES RUSSELL | | | $38,000.00 | 137599 | 2019-06773 |
| 2 | 08/30/2019 | LOPA | LACK OF PROBATE AFFIDAVIT | | DRAKE JAMES R | | | | 137598 | 2019-06772 |
| 3 | 05/24/2007 | WARRANTY D | WARRANTY DEED | HEISER, HAROLD & MARIE | DRAKE, JAMES R & JOYCE A | | | $38,000.00 | 112890 | 2007-05876 |
| 4 | 06/20/1983 | WARRANTY D | WARRANTY DEED | | | | | $7,500.00 | 0 | 1388-304506 |
Payout Agreement
| No payout information available.. |