Property
Account |
| Property ID: | 31496 | Abbreviated Legal Description: | 38 07 13 PARCEL #11 |
| Parcel Number: | 380713330011 | Agent Code: | |
| Type: | Real | | |
| Tax Area: | 309 - 101 | Land Use Code | 19 |
| Open Space: | N | DFL | N |
| Historic Property: | N | Remodel Property: | N |
| Multi-Family Redevelopment: | N | | |
| Township: | 7 | Section: | 13 |
| Range: | 38 |
Location |
| Address: | DENT RD WA 99329 | Mapsco: | |
| Neighborhood: | A- Mountain Property | Map ID: | |
| Neighborhood CD: | 513195 |
Owner |
| Name: | BAKER LIVING TRUST | Owner ID: | 56066 |
| Mailing Address: | 378 RANSOM RD WALLA WALLA, WA 99362 | % Ownership: | 100.0000000000% |
| | | Exemptions: | |
Taxes and Assessment Details
Property Tax Information as of
02/21/2026
Click on "Statement Details" to expand or collapse a tax statement.
* Please enter a valid date ** Please enter a valid date *
Statement Details |
| | TOTAL: | $0.00 | $0.00 | $0.00 | $0.00 | $0.00 | $0.00 |
|
| | $0.00 | $0.00 | $0.00 | $0.00 | $0.00 | $0.00 |
Values
| (+) Improvement Homesite Value: | + | $0 | |
| (+) Improvement Non-Homesite Value: | + | $48,600 | |
| (+) Land Homesite Value: | + | $0 | |
| (+) Land Non-Homesite Value: | + | $45,400 | |
| (+) Curr Use (HS): | + | $0 | $0 |
| (+) Curr Use (NHS): | + | $0 | $0 |
| | | -------------------------- | |
| (=) Market Value: | = | $94,000 | |
| (–) Productivity Loss: | – | $0 | |
| | | -------------------------- | |
| (=) Subtotal: | = | $94,000 | |
| (+) Senior Appraised Value: | + | $0 | |
| (+) Non-Senior Appraised Value: | + | $94,000 | |
| | | -------------------------- | |
| (=) Total Appraised Value: | = | $94,000 | |
| (–) Senior Exemption Loss: | – | $0 | |
| (–) Exemption Loss: | – | $0 | |
| | | -------------------------- | |
| (=) Taxable Value: | = | $94,000 | |
Taxing Jurisdiction
| Owner: | BAKER LIVING TRUST | | |
| % Ownership: | 100.0000000000% | | |
| Total Value: | $94,000 | | |
| Tax Area: | 309 - 101 |
| CERFD | CURRENT EXPENSE REFUND 010 | 0.0000000000 | $94,000 | $94,000 | $0.00 | | |
| CURREXP | CURRENT EXPENSE 010 | 1.0175366760 | $94,000 | $94,000 | $95.65 | | |
| HUMNSERV | HUMAN SERVICES 119 | 0.0250000000 | $94,000 | $94,000 | $2.35 | | |
| SLDREL | SOLDIERS RELIEF 121 | 0.0155990005 | $94,000 | $94,000 | $1.47 | | |
| EMERGSER | EMS 147 | 0.3792580840 | $94,000 | $94,000 | $35.65 | | |
| EMSRFD | EMS REFUND 147 | 0.0000000000 | $94,000 | $94,000 | $0.00 | | |
| RLBRFD | RURAL LIBRARY REFUND 623 | 0.0000000000 | $94,000 | $94,000 | $0.00 | | |
| RURALLIB | RURAL LIBRARY 623 | 0.3710609029 | $94,000 | $94,000 | $34.88 | | |
| PORTRFD | PORT REFUND 640 | 0.0000000000 | $94,000 | $94,000 | $0.00 | | |
| PORTWWGEN | PORT OF WW 640 | 0.2460186015 | $94,000 | $94,000 | $23.13 | | |
| SD101CAP | SD #101 CAP 752 | 0.5894423472 | $94,000 | $94,000 | $55.41 | | |
| SD101GEN | SD #101 GENERAL 750 | 0.7455117868 | $94,000 | $94,000 | $70.08 | | |
| ST2 | STATE SCHOOL PART 2 600 | 0.8131451643 | $94,000 | $94,000 | $76.44 | | |
| STATESCHL | STATE SCHOOL 600 | 1.5158548041 | $94,000 | $94,000 | $142.49 | | |
| STREFUND | STATE REFUND LEVY 603 | 0.0000000000 | $94,000 | $94,000 | $0.00 | | |
| COROAD | COUNTY ROAD 115 | 1.6549953990 | $94,000 | $94,000 | $155.57 | | |
| CRPRD | COUNTY ROAD REFUND 115 | 0.0000000000 | $94,000 | $94,000 | $0.00 | | |
| | Total Tax Rate: | 7.3734227663 | | | | | |
| | | | | Taxes w/Current Exemptions: | $693.12 | | |
| | | | | Taxes w/o Exemptions: | $693.12 | | |
Improvement / Building
| Improvement #1: | RESIDENTIAL | State Code: | 19 | 792.0 sqft | Value: | $48,600 |
| Exterior Wall: | A FRAME-AVE | Heating/Cooling: | STOVE-NO HEAT | | Roof Covering: | GALVANIZED METAL |   |   |
|
| | Type | Description | Class CD | Sub Class CD | Year Built | Area |
| | MA | Main Area | 17 | AFRAME-AVE | 2009 | 792.0 |
| | LNTD | LEAN TO DIRT FLOOR | 17 | AFRAME-AVE | 2009 | 400.0 |
| | LNTD | LEAN TO DIRT FLOOR | 17 | AFRAME-AVE | 2009 | 512.0 |
| | SI1 | SITE IMPROVEMENT | 17 | AFRAME-AVE | 2009 | 0.5 |
| | UTIL-STOR | UTILITY STORAGE | 17 | AFRAME-AVE | 2009 | 128.0 |
| | WDR | WOOD DECK W/ROOF | 17 | AFRAME-AVE | 2009 | 272.0 |
| | LOFT | Loft Area | 17 | AFRAME-AVE | 2009 | 530.0 |
| | BNV | BUILDING NO VALUE | 1 | 10 | 2009 | 1.0 |
Sketch
Property Image
Land
| 1 | RES 1 | Converted: Residential | 18.0000 | 0.00 | 0.00 | 0.00 | 1.00 | $45,400 | $0 |
Roll Value History
| 2026 | N/A | N/A | N/A | N/A | N/A |
| 2025 | $48,600 | $74,000 | $0 | $122,600 | $122,600 |
| 2024 | $48,600 | $74,000 | $0 | $122,600 | $122,600 |
| 2023 | $48,600 | $45,400 | $0 | $94,000 | $94,000 |
| 2022 | $38,880 | $45,400 | $0 | $84,280 | $84,280 |
| 2021 | $32,400 | $45,400 | $0 | $77,800 | $77,800 |
| 2020 | $32,400 | $45,400 | $0 | $77,800 | $77,800 |
| 2019 | $32,400 | $45,400 | $0 | $77,800 | $77,800 |
| 2018 | $32,400 | $45,400 | $0 | $77,800 | $77,800 |
| 2017 | $32,400 | $45,400 | $0 | $77,800 | $77,800 |
| 2016 | $32,400 | $45,400 | $0 | $77,800 | $77,800 |
| 2015 | $32,400 | $45,400 | $0 | $77,800 | $77,800 |
| 2014 | $32,400 | $45,400 | $0 | $77,800 | $77,800 |
| 2013 | $32,400 | $45,400 | $0 | $77,800 | $77,800 |
| 2012 | $2,000 | $45,400 | $0 | $0 | $0 |
| 2011 | $1,600 | $45,400 | $0 | $0 | $0 |
| 2010 | $1,600 | $45,400 | $0 | $0 | $0 |
| 2009 | $1,600 | $45,400 | $0 | $0 | $0 |
| 2008 | $1,600 | $39,800 | $0 | $0 | $0 |
| 2007 | $1,600 | $39,800 | $0 | $0 | $0 |
Deed and Sales History
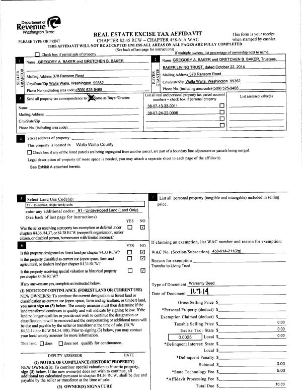
| 1 | 11/14/2014 | WARRANTY D | WARRANTY DEED | BAKER GREGORY A & GRETCHEN | BAKER LIVING TRUST | 2 PARCELS | | $0.00 | 127381 | 2015-01001 |
| 2 | 11/25/1998 | WARRANTY D | WARRANTY DEED | | | | | $50,000.00 | 91695 | 2769-813662 |
|   | |
Payout Agreement
| No payout information available.. |