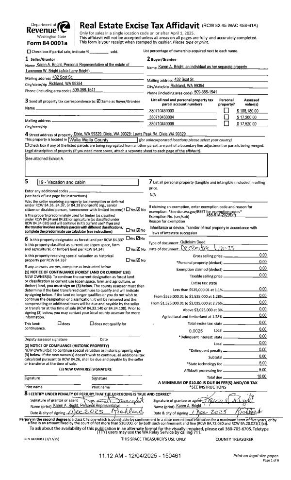
Property
Account |
| Property ID: | 31479 | Abbreviated Legal Description: | 10-7-38 LOT 7 OF SURVEY (WLY PTN OF SW1/4SE1/4)(LESS LND SOLD) |
| Parcel Number: | 380710430004 | Agent Code: | |
| Type: | Real | | |
| Tax Area: | 309 - 101 | Land Use Code | 19 |
| Open Space: | N | DFL | N |
| Historic Property: | N | Remodel Property: | N |
| Multi-Family Redevelopment: | N | | |
| Township: | 7 | Section: | 10 |
| Range: | 38 |
Location |
| Address: | WA 99329 | Mapsco: | |
| Neighborhood: | F Mnt Prop Land Only | Map ID: | |
| Neighborhood CD: | 512095 |
Owner |
| Name: | BRIGHT LARRY | Owner ID: | 16045 |
| Mailing Address: | KAREN A THURSTON 432 SCOT RICHLAND, WA 99352 | % Ownership: | 100.0000000000% |
| | | Exemptions: | |
Taxes and Assessment Details
Property Tax Information as of
02/21/2026
Click on "Statement Details" to expand or collapse a tax statement.
* Please enter a valid date ** Please enter a valid date *
Statement Details |
| | TOTAL: | $0.00 | $0.00 | $0.00 | $0.00 | $0.00 | $0.00 |
|
| | $0.00 | $0.00 | $0.00 | $0.00 | $0.00 | $0.00 |
Values
| (+) Improvement Homesite Value: | + | $0 | |
| (+) Improvement Non-Homesite Value: | + | $0 | |
| (+) Land Homesite Value: | + | $0 | |
| (+) Land Non-Homesite Value: | + | $17,260 | |
| (+) Curr Use (HS): | + | $0 | $0 |
| (+) Curr Use (NHS): | + | $0 | $0 |
| | | -------------------------- | |
| (=) Market Value: | = | $17,260 | |
| (–) Productivity Loss: | – | $0 | |
| | | -------------------------- | |
| (=) Subtotal: | = | $17,260 | |
| (+) Senior Appraised Value: | + | $0 | |
| (+) Non-Senior Appraised Value: | + | $17,260 | |
| | | -------------------------- | |
| (=) Total Appraised Value: | = | $17,260 | |
| (–) Senior Exemption Loss: | – | $0 | |
| (–) Exemption Loss: | – | $0 | |
| | | -------------------------- | |
| (=) Taxable Value: | = | $17,260 | |
Taxing Jurisdiction
| Owner: | BRIGHT LARRY | | |
| % Ownership: | 100.0000000000% | | |
| Total Value: | $17,260 | | |
| Tax Area: | 309 - 101 |
| CERFD | CURRENT EXPENSE REFUND 010 | 0.0000000000 | $17,260 | $17,260 | $0.00 | | |
| CURREXP | CURRENT EXPENSE 010 | 0.9851088983 | $17,260 | $17,260 | $17.00 | | |
| HUMNSERV | HUMAN SERVICES 119 | 0.0250000000 | $17,260 | $17,260 | $0.43 | | |
| SLDREL | SOLDIERS RELIEF 121 | 0.0155990000 | $17,260 | $17,260 | $0.27 | | |
| EMERGSER | EMS 147 | 0.3676811629 | $17,260 | $17,260 | $6.35 | | |
| EMSRFD | EMS REFUND 147 | 0.0000000000 | $17,260 | $17,260 | $0.00 | | |
| RLBRFD | RURAL LIBRARY REFUND 623 | 0.0000000000 | $17,260 | $17,260 | $0.00 | | |
| RURALLIB | RURAL LIBRARY 623 | 0.3601547782 | $17,260 | $17,260 | $6.22 | | |
| PORTRFD | PORT REFUND 640 | 0.0000000000 | $17,260 | $17,260 | $0.00 | | |
| PORTWWGEN | PORT OF WW 640 | 0.2344301070 | $17,260 | $17,260 | $4.05 | | |
| SD101CAP | SD #101 CAP 752 | 0.5278383419 | $17,260 | $17,260 | $9.11 | | |
| SD101GEN | SD #101 GENERAL 750 | 0.7380758990 | $17,260 | $17,260 | $12.74 | | |
| ST2 | STATE SCHOOL PART 2 600 | 0.8853714103 | $17,260 | $17,260 | $15.28 | | |
| STATESCHL | STATE SCHOOL 600 | 1.6424571473 | $17,260 | $17,260 | $28.35 | | |
| STREFUND | STATE REFUND LEVY 603 | 0.0000000000 | $17,260 | $17,260 | $0.00 | | |
| COROAD | COUNTY ROAD 115 | 1.6137667997 | $17,260 | $17,260 | $27.85 | | |
| CRPRD | COUNTY ROAD REFUND 115 | 0.0000000000 | $17,260 | $17,260 | $0.00 | | |
| | Total Tax Rate: | 7.3954835446 | | | | | |
| | | | | Taxes w/Current Exemptions: | $127.65 | | |
| | | | | Taxes w/o Exemptions: | $127.65 | | |
Improvement / Building
Sketch
| No sketches available for this property. |
Property Image
Land
| 1 | RES 1 | Converted: Residential | 21.5700 | 0.00 | 0.00 | 0.00 | 1.00 | $17,260 | $0 |
Roll Value History
| 2026 | N/A | N/A | N/A | N/A | N/A |
| 2025 | $0 | $17,260 | $0 | $17,260 | $17,260 |
| 2024 | $0 | $17,260 | $0 | $17,260 | $17,260 |
| 2023 | $0 | $12,940 | $0 | $12,940 | $12,940 |
| 2022 | $0 | $12,940 | $0 | $12,940 | $12,940 |
| 2021 | $0 | $12,940 | $0 | $12,940 | $12,940 |
| 2020 | $0 | $12,940 | $0 | $12,940 | $12,940 |
| 2019 | $0 | $12,940 | $0 | $12,940 | $12,940 |
| 2018 | $0 | $12,940 | $0 | $12,940 | $12,940 |
| 2017 | $0 | $24,800 | $0 | $24,800 | $24,800 |
| 2016 | $0 | $24,800 | $0 | $24,800 | $24,800 |
| 2015 | $0 | $24,800 | $0 | $24,800 | $24,800 |
| 2014 | $0 | $24,800 | $0 | $24,800 | $24,800 |
| 2013 | $0 | $24,800 | $0 | $24,800 | $24,800 |
| 2012 | $0 | $24,800 | $0 | $0 | $0 |
| 2011 | $0 | $22,300 | $0 | $0 | $0 |
| 2010 | $0 | $22,300 | $0 | $0 | $0 |
| 2009 | $0 | $22,300 | $0 | $0 | $0 |
| 2008 | $0 | $10,800 | $0 | $0 | $0 |
| 2007 | $0 | $10,800 | $0 | $0 | $0 |
Deed and Sales History
| 1 | 12/04/2025 | QCD | QUIT CLAIM DEED | BRIGHT LARRY | BRIGHT KAREN A | | | | 150461 | 2025-07447 |
| 2 | 02/24/1986 | WARRANTY D | WARRANTY DEED | | | | | $22,500.00 | 0 | 1869-008743 |
|   | |
Payout Agreement
| No payout information available.. |