| 1 | 10/10/2023 | WARRANTY D | WARRANTY DEED | KULP DIMITRI & REBEKAH | HEADLEY DUSTIN GALE & MARAIJA | | | | 146615 | 2023-05963 |
| 2 | 03/16/2021 | SWD | STATUTORY WARRANTY DEED | KULP DIMITRI & REBEKAH | HEADLEY DUSTIN GALE & MARAIJA | | 3-PARCELS | $87,000.00 | 141118 | 2021-03019 |
|   | |
| 3 | 10/10/2023 | WARRANTY D | WARRANTY DEED | ELDER DAVID S & KAREN J | KULP DIMITRI & REBEKAH | | | | 146614 | 2023-05962 |
| 4 | | FUL | FULFILLMENT DEED | | KULP DIMITRI & REBEKAH | | 3 PARCELS | | 139552 | 2021-04561 |
| 5 | 07/22/2020 | REAL ESTAT | REAL ESTATE CONTRACT | ELDER DAVID S & KAREN J | KULP DIMITRI & REBEKAH | | 3-PARCELS | $79,000.00 | 139552 | 2020-07082 |
|   | |
| 6 | 10/10/2023 | WARRANTY D | WARRANTY DEED | WALKER MINDY | ELDER DAVID S & KAREN J | | | | 146613 | 2023-05961 |
| 7 | 09/08/2015 | SWD | STATUTORY WARRANTY DEED | WALKER MINDY | ELDER DAVID S & KAREN J | | 6-PARCELS | $136,000.00 | 128785 | 2015-07880 |
|   | |
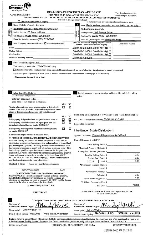
| 8 | 04/30/2015 | DPR | DEED OF PERSONAL REPRESENTATIVE | ABRAMS JAY L ESTATE OF | WALKER MINDY | 7 PARCELS | | $0.00 | 127876 | 2015-03605 |
| 9 | 03/30/1992 | WARRANTY D | WARRANTY DEED | | | | | $20,000.00 | 76577 | 1959-202757 |
|   | |