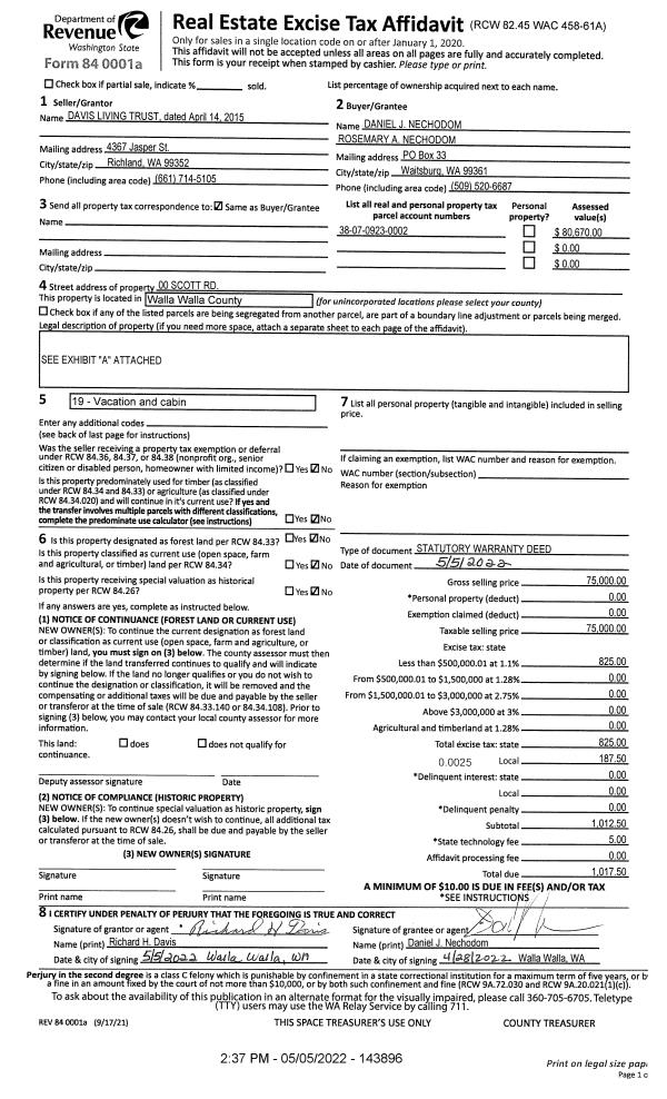
Property
Account |
| Property ID: | 31448 | Abbreviated Legal Description: | 9-7-38 LOT 7 OF SCOTT CANYON TRACTS SURVEY 1986-08615 (WITHIN THE S1/2 OF NW1/4); LESS RD |
| Parcel Number: | 380709230002 | Agent Code: | |
| Type: | Real | | |
| Tax Area: | 310 - 101-8 | Land Use Code | 91 |
| Open Space: | N | DFL | N |
| Historic Property: | N | Remodel Property: | N |
| Multi-Family Redevelopment: | N | | |
| Township: | 7 | Section: | 9 |
| Range: | 38 |
Location |
| Address: | WA 99329 | Mapsco: | |
| Neighborhood: | A Sup SFR MNT PROP | Map ID: | |
| Neighborhood CD: | 513215 |
Owner |
| Name: | NECHODOM DANIEL J & ROSEMARY A | Owner ID: | 55998 |
| Mailing Address: | PO BOX 33 WAITSBURG, WA 99361 | % Ownership: | 100.0000000000% |
| | | Exemptions: | |
Taxes and Assessment Details
Values
| (+) Improvement Homesite Value: | + | $0 | |
| (+) Improvement Non-Homesite Value: | + | $0 | |
| (+) Land Homesite Value: | + | $0 | |
| (+) Land Non-Homesite Value: | + | $97,980 | |
| (+) Curr Use (HS): | + | $0 | $0 |
| (+) Curr Use (NHS): | + | $0 | $0 |
| | | -------------------------- | |
| (=) Market Value: | = | $97,980 | |
| (–) Productivity Loss: | – | $0 | |
| | | -------------------------- | |
| (=) Subtotal: | = | $97,980 | |
| (+) Senior Appraised Value: | + | $0 | |
| (+) Non-Senior Appraised Value: | + | $97,980 | |
| | | -------------------------- | |
| (=) Total Appraised Value: | = | $97,980 | |
| (–) Senior Exemption Loss: | – | $0 | |
| (–) Exemption Loss: | – | $0 | |
| | | -------------------------- | |
| (=) Taxable Value: | = | $97,980 | |
Taxing Jurisdiction
| Owner: | NECHODOM DANIEL J & ROSEMARY A | | |
| % Ownership: | 100.0000000000% | | |
| Total Value: | $97,980 | | |
| Tax Area: | 310 - 101-8 |
| CERFD | CURRENT EXPENSE REFUND 010 | 0.0000000000 | $97,980 | $97,980 | $0.00 | | |
| CURREXP | CURRENT EXPENSE 010 | 0.9851088983 | $97,980 | $97,980 | $96.52 | | |
| HUMNSERV | HUMAN SERVICES 119 | 0.0250000000 | $97,980 | $97,980 | $2.45 | | |
| SLDREL | SOLDIERS RELIEF 121 | 0.0155990000 | $97,980 | $97,980 | $1.53 | | |
| EMERGSER | EMS 147 | 0.3676811629 | $97,980 | $97,980 | $36.03 | | |
| EMSRFD | EMS REFUND 147 | 0.0000000000 | $97,980 | $97,980 | $0.00 | | |
| FD8EXP | FD #8 EXPENSE 697 | 1.0864716428 | $97,980 | $97,980 | $106.45 | | |
| RLBRFD | RURAL LIBRARY REFUND 623 | 0.0000000000 | $97,980 | $97,980 | $0.00 | | |
| RURALLIB | RURAL LIBRARY 623 | 0.3601547782 | $97,980 | $97,980 | $35.29 | | |
| PORTRFD | PORT REFUND 640 | 0.0000000000 | $97,980 | $97,980 | $0.00 | | |
| PORTWWGEN | PORT OF WW 640 | 0.2344301070 | $97,980 | $97,980 | $22.97 | | |
| SD101CAP | SD #101 CAP 752 | 0.5278383419 | $97,980 | $97,980 | $51.72 | | |
| SD101GEN | SD #101 GENERAL 750 | 0.7380758990 | $97,980 | $97,980 | $72.32 | | |
| ST2 | STATE SCHOOL PART 2 600 | 0.8853714103 | $97,980 | $97,980 | $86.75 | | |
| STATESCHL | STATE SCHOOL 600 | 1.6424571473 | $97,980 | $97,980 | $160.93 | | |
| STREFUND | STATE REFUND LEVY 603 | 0.0000000000 | $97,980 | $97,980 | $0.00 | | |
| COROAD | COUNTY ROAD 115 | 1.6137667997 | $97,980 | $97,980 | $158.12 | | |
| CRPRD | COUNTY ROAD REFUND 115 | 0.0000000000 | $97,980 | $97,980 | $0.00 | | |
| | Total Tax Rate: | 8.4819551874 | | | | | |
| | | | | Taxes w/Current Exemptions: | $831.08 | | |
| | | | | Taxes w/o Exemptions: | $831.08 | | |
Improvement / Building
| Improvement #1: | RESIDENTIAL | State Code: | 91 | 1.0 sqft | Value: | $0 |
Sketch
| No sketches available for this property. |
Property Image
Land
| 1 | RES 1 | Converted: Residential | 20.6520 | 899599.00 | 0.00 | 0.00 | 1.00 | $97,980 | $0 |
Roll Value History
| 2026 | N/A | N/A | N/A | N/A | N/A |
| 2025 | $0 | $97,980 | $0 | $97,980 | $97,980 |
| 2024 | $0 | $97,980 | $0 | $97,980 | $97,980 |
| 2023 | $0 | $80,670 | $0 | $80,670 | $80,670 |
| 2022 | $0 | $80,670 | $0 | $80,670 | $80,670 |
| 2021 | $0 | $80,670 | $0 | $80,670 | $80,670 |
| 2020 | $0 | $80,670 | $0 | $80,670 | $80,670 |
| 2019 | $0 | $80,670 | $0 | $80,670 | $80,670 |
| 2018 | $0 | $80,670 | $0 | $80,670 | $80,670 |
| 2017 | $0 | $91,600 | $0 | $91,600 | $91,600 |
| 2016 | $0 | $91,600 | $0 | $91,600 | $91,600 |
| 2015 | $0 | $91,600 | $0 | $91,600 | $91,600 |
| 2014 | $0 | $91,600 | $0 | $91,600 | $91,600 |
| 2013 | $0 | $91,600 | $0 | $91,600 | $91,600 |
| 2012 | $0 | $91,600 | $0 | $0 | $0 |
| 2011 | $0 | $91,600 | $0 | $0 | $0 |
| 2010 | $0 | $91,600 | $0 | $0 | $0 |
| 2009 | $0 | $91,600 | $0 | $0 | $0 |
| 2008 | $0 | $22,100 | $0 | $0 | $0 |
| 2007 | $0 | $22,100 | $0 | $0 | $0 |
Deed and Sales History
| 1 | 11/04/2022 | SURVEY | SURVEY | | | 14 | 79 | | 0 | 2022-08949 |
| 2 | 05/05/2022 | SWD | STATUTORY WARRANTY DEED | DAVIS LIVING TRUST | NECHODOM DANIEL J & ROSEMARY A | | | $75,000.00 | 143896 | 2022-03846 |
| 3 | 04/14/2015 | WARRANTY D | WARRANTY DEED | DAVIS RICHARD H & JEANNE T | DAVIS LIVING TRUST | | | $0.00 | 127864 | 2015-03520 |
| 4 | 07/15/1988 | WARRANTY D | WARRANTY DEED | | | | | $23,000.00 | 0 | 2089-306637 |
|   | |
Payout Agreement
| No payout information available.. |