Property
Account |
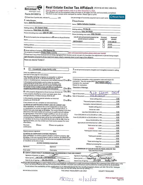
| Property ID: | 31423 | Abbreviated Legal Description: | TRACT 34 LEWIS PEAK TRACTS 1984-08249 |
| Parcel Number: | 380704430001 | Agent Code: | |
| Type: | Real | | |
| Tax Area: | 310 - 101-8 | Land Use Code | 11 |
| Open Space: | N | DFL | N |
| Historic Property: | N | Remodel Property: | N |
| Multi-Family Redevelopment: | N | | |
| Township: | 7 | Section: | 4 |
| Range: | 38 |
Location |
| Address: | 4544 SEAMAN RD WA 99361 | Mapsco: | |
| Neighborhood: | A Sup SFR MNT PROP | Map ID: | |
| Neighborhood CD: | 513215 |
Owner |
| Name: | CRENSHAW JAKE & TABITHA | Owner ID: | 54336 |
| Mailing Address: | PO BOX 36 DIXIE, WA 99329 | % Ownership: | 100.0000000000% |
| | | Exemptions: | |
Taxes and Assessment Details
Property Tax Information as of
02/21/2026
Click on "Statement Details" to expand or collapse a tax statement.
* Please enter a valid date ** Please enter a valid date *
Statement Details |
| | TOTAL: | $0.00 | $0.00 | $0.00 | $0.00 | $0.00 | $0.00 |
|
| | $0.00 | $0.00 | $0.00 | $0.00 | $0.00 | $0.00 |
Values
| (+) Improvement Homesite Value: | + | $0 | |
| (+) Improvement Non-Homesite Value: | + | $437,900 | |
| (+) Land Homesite Value: | + | $0 | |
| (+) Land Non-Homesite Value: | + | $92,100 | |
| (+) Curr Use (HS): | + | $0 | $0 |
| (+) Curr Use (NHS): | + | $0 | $0 |
| | | -------------------------- | |
| (=) Market Value: | = | $530,000 | |
| (–) Productivity Loss: | – | $0 | |
| | | -------------------------- | |
| (=) Subtotal: | = | $530,000 | |
| (+) Senior Appraised Value: | + | $0 | |
| (+) Non-Senior Appraised Value: | + | $530,000 | |
| | | -------------------------- | |
| (=) Total Appraised Value: | = | $530,000 | |
| (–) Senior Exemption Loss: | – | $0 | |
| (–) Exemption Loss: | – | $0 | |
| | | -------------------------- | |
| (=) Taxable Value: | = | $530,000 | |
Taxing Jurisdiction
| Owner: | CRENSHAW JAKE & TABITHA | | |
| % Ownership: | 100.0000000000% | | |
| Total Value: | $530,000 | | |
| Tax Area: | 310 - 101-8 |
| CERFD | CURRENT EXPENSE REFUND 010 | 0.0000000000 | $530,000 | $530,000 | $0.00 | | |
| CURREXP | CURRENT EXPENSE 010 | 1.0175366760 | $530,000 | $530,000 | $539.29 | | |
| HUMNSERV | HUMAN SERVICES 119 | 0.0250000000 | $530,000 | $530,000 | $13.25 | | |
| SLDREL | SOLDIERS RELIEF 121 | 0.0155990005 | $530,000 | $530,000 | $8.27 | | |
| EMERGSER | EMS 147 | 0.3792580840 | $530,000 | $530,000 | $201.01 | | |
| EMSRFD | EMS REFUND 147 | 0.0000000000 | $530,000 | $530,000 | $0.00 | | |
| FD8EXP | FD #8 EXPENSE 697 | 0.6647992540 | $530,000 | $530,000 | $352.34 | | |
| RLBRFD | RURAL LIBRARY REFUND 623 | 0.0000000000 | $530,000 | $530,000 | $0.00 | | |
| RURALLIB | RURAL LIBRARY 623 | 0.3710609029 | $530,000 | $530,000 | $196.66 | | |
| PORTRFD | PORT REFUND 640 | 0.0000000000 | $530,000 | $530,000 | $0.00 | | |
| PORTWWGEN | PORT OF WW 640 | 0.2460186015 | $530,000 | $530,000 | $130.39 | | |
| SD101CAP | SD #101 CAP 752 | 0.5894423472 | $530,000 | $530,000 | $312.40 | | |
| SD101GEN | SD #101 GENERAL 750 | 0.7455117868 | $530,000 | $530,000 | $395.12 | | |
| ST2 | STATE SCHOOL PART 2 600 | 0.8131451643 | $530,000 | $530,000 | $430.97 | | |
| STATESCHL | STATE SCHOOL 600 | 1.5158548041 | $530,000 | $530,000 | $803.40 | | |
| STREFUND | STATE REFUND LEVY 603 | 0.0000000000 | $530,000 | $530,000 | $0.00 | | |
| COROAD | COUNTY ROAD 115 | 1.6549953990 | $530,000 | $530,000 | $877.15 | | |
| CRPRD | COUNTY ROAD REFUND 115 | 0.0000000000 | $530,000 | $530,000 | $0.00 | | |
| | Total Tax Rate: | 8.0382220203 | | | | | |
| | | | | Taxes w/Current Exemptions: | $4,260.25 | | |
| | | | | Taxes w/o Exemptions: | $4,260.25 | | |
Improvement / Building
| Improvement #1: | RESIDENTIAL | State Code: | 11 | 1540.0 sqft | Value: | $437,900 |
| Exterior Wall: | HARDBOARD | Heating/Cooling: | FLOOR RADIANT | | Number of Bathrooms: | 2.5 | Number of Bedrooms: | 4 | | Plumbing: | 12 | Roof Covering: | GALVANIZED METAL |
|
| | Type | Description | Class CD | Sub Class CD | Year Built | Area |
| | MA | Main Area | 1 | 40 | 2002 | 1540.0 |
| | RCD | WOOD DECK W/ROOF, CEILED | 1 | 40 | 2002 | 350.0 |
| | SI1 | SITE IMPROVEMENT | 1 | 40 | 2002 | 1.0 |
| | BASE | BASEMENT | 1 | 40 | 2002 | 1540.0 |
| | BPF | BASEMENT -PARTITIONED FINISH | 1 | 40 | 2002 | 1540.0 |
| | DTG | Detached Garage | 1 | 40 | 2002 | 936.0 |
| | BON1 | BONUS RM ATT/MIN OR NO FINISH | 1 | 40 | 2002 | 576.0 |
| | BLW | WOOD BALCONIES | 1 | 40 | 2002 | 280.0 |
| | BLW | WOOD BALCONIES | 1 | 40 | 2002 | 52.0 |
Sketch
Property Image
Land
| 1 | RES 1 | Converted: Residential | 21.1900 | 0.00 | 0.00 | 0.00 | 1.00 | $92,100 | $0 |
Roll Value History
| 2026 | N/A | N/A | N/A | N/A | N/A |
| 2025 | $503,580 | $124,380 | $0 | $627,960 | $627,960 |
| 2024 | $437,900 | $124,380 | $0 | $562,280 | $562,280 |
| 2023 | $437,900 | $92,100 | $0 | $530,000 | $530,000 |
| 2022 | $350,320 | $92,100 | $0 | $442,420 | $442,420 |
| 2021 | $291,930 | $92,100 | $0 | $384,030 | $384,030 |
| 2020 | $278,030 | $92,100 | $0 | $370,130 | $370,130 |
| 2019 | $278,030 | $92,100 | $0 | $370,130 | $370,130 |
| 2018 | $278,030 | $92,100 | $0 | $370,130 | $370,130 |
| 2017 | $278,030 | $92,100 | $0 | $370,130 | $370,130 |
| 2016 | $252,750 | $92,100 | $0 | $344,850 | $344,850 |
| 2015 | $168,500 | $92,100 | $0 | $260,600 | $260,600 |
| 2014 | $168,500 | $92,100 | $0 | $260,600 | $260,600 |
| 2013 | $168,500 | $92,100 | $0 | $260,600 | $260,600 |
| 2012 | $167,100 | $92,100 | $0 | $0 | $0 |
| 2011 | $166,000 | $92,100 | $0 | $0 | $0 |
| 2010 | $166,000 | $92,100 | $0 | $0 | $0 |
| 2009 | $166,000 | $92,100 | $0 | $0 | $0 |
| 2008 | $166,000 | $41,400 | $0 | $0 | $0 |
| 2007 | $166,000 | $41,400 | $0 | $0 | $0 |
Deed and Sales History
| 1 | 10/22/2025 | QCD | QUIT CLAIM DEED | CRENSHAW JAKE & TABITHA | CRENSHAW TABITHA | | | | 150222 | 2025-06517 |
| 2 | 12/18/2013 | WARRANTY D | WARRANTY DEED | BRUNER DANIEL | CRENSHAW JAKE & TABITHA | | | $425,000.00 | 125130 | 2013-12078 |
| 3 | 02/05/2003 | WARRANTY D | WARRANTY DEED | ALLEMAND, DAVE R & MELISSA K | BRUNER, DANIEL | | | $192,500.00 | 101346 | 2003-01664 |
| 4 | 11/30/1995 | WARRANTY D | WARRANTY DEED | | | | | $38,000.00 | 85198 | 2369-511600 |
Payout Agreement
| No payout information available.. |