Property
Account |
| Property ID: | 31405 | Abbreviated Legal Description: | TAX DIST SEG...(SEE 380703220006 FOR REST OF PARCEL) 4-7-38 & 33-8-38 (PORTION TRACT 79 SURVEY 1984-08249) 4-7-38 ELY PTN GOV LOT 1 IN ;PLUS 33-8-38 PTN IN CORNER OF SE1/4 SE1/4 |
| Parcel Number: | 380704110005 | Agent Code: | |
| Type: | Real | | |
| Tax Area: | 310 - 101-8 | Land Use Code | 91 |
| Open Space: | N | DFL | N |
| Historic Property: | N | Remodel Property: | N |
| Multi-Family Redevelopment: | N | | |
| Township: | 7 | Section: | 4 |
| Range: | 38 |
Location |
| Address: | WA 99329 | Mapsco: | |
| Neighborhood: | F+ Mnt Prop Land | Map ID: | |
| Neighborhood CD: | 512295 |
Owner |
| Name: | PETERSON ROBERT T & NICKI L | Owner ID: | 62040 |
| Mailing Address: | 6223 SOUTH FORK COPPEI RD WAITSBURG, WA 99361 | % Ownership: | 100.0000000000% |
| | | Exemptions: | |
Taxes and Assessment Details
Property Tax Information as of
04/19/2026
Click on "Statement Details" to expand or collapse a tax statement.
* Please enter a valid date ** Please enter a valid date *
Statement Details |
| | TOTAL: | $0.00 | $0.00 | $0.00 | $0.00 | $0.00 | $0.00 |
|
| | $0.00 | $0.00 | $0.00 | $0.00 | $0.00 | $0.00 |
Values
| (+) Improvement Homesite Value: | + | $0 | |
| (+) Improvement Non-Homesite Value: | + | $0 | |
| (+) Land Homesite Value: | + | $0 | |
| (+) Land Non-Homesite Value: | + | $9,780 | |
| (+) Curr Use (HS): | + | $0 | $0 |
| (+) Curr Use (NHS): | + | $0 | $0 |
| | | -------------------------- | |
| (=) Market Value: | = | $9,780 | |
| (–) Productivity Loss: | – | $0 | |
| | | -------------------------- | |
| (=) Subtotal: | = | $9,780 | |
| (+) Senior Appraised Value: | + | $0 | |
| (+) Non-Senior Appraised Value: | + | $9,780 | |
| | | -------------------------- | |
| (=) Total Appraised Value: | = | $9,780 | |
| (–) Senior Exemption Loss: | – | $0 | |
| (–) Exemption Loss: | – | $0 | |
| | | -------------------------- | |
| (=) Taxable Value: | = | $9,780 | |
Taxing Jurisdiction
| Owner: | PETERSON ROBERT T & NICKI L | | |
| % Ownership: | 100.0000000000% | | |
| Total Value: | $9,780 | | |
| Tax Area: | 310 - 101-8 |
| CERFD | CURRENT EXPENSE REFUND 010 | 0.0000000000 | $9,780 | $9,780 | $0.00 | | |
| CURREXP | CURRENT EXPENSE 010 | 0.9851088983 | $9,780 | $9,780 | $9.63 | | |
| HUMNSERV | HUMAN SERVICES 119 | 0.0250000000 | $9,780 | $9,780 | $0.24 | | |
| SLDREL | SOLDIERS RELIEF 121 | 0.0155990000 | $9,780 | $9,780 | $0.15 | | |
| EMERGSER | EMS 147 | 0.3676811629 | $9,780 | $9,780 | $3.60 | | |
| EMSRFD | EMS REFUND 147 | 0.0000000000 | $9,780 | $9,780 | $0.00 | | |
| FD8EXP | FD #8 EXPENSE 697 | 1.0864716428 | $9,780 | $9,780 | $10.63 | | |
| RLBRFD | RURAL LIBRARY REFUND 623 | 0.0000000000 | $9,780 | $9,780 | $0.00 | | |
| RURALLIB | RURAL LIBRARY 623 | 0.3601547782 | $9,780 | $9,780 | $3.52 | | |
| PORTRFD | PORT REFUND 640 | 0.0000000000 | $9,780 | $9,780 | $0.00 | | |
| PORTWWGEN | PORT OF WW 640 | 0.2344301070 | $9,780 | $9,780 | $2.29 | | |
| SD101CAP | SD #101 CAP 752 | 0.5278383419 | $9,780 | $9,780 | $5.16 | | |
| SD101GEN | SD #101 GENERAL 750 | 0.7380758990 | $9,780 | $9,780 | $7.22 | | |
| ST2 | STATE SCHOOL PART 2 600 | 0.8853714103 | $9,780 | $9,780 | $8.66 | | |
| STATESCHL | STATE SCHOOL 600 | 1.6424571473 | $9,780 | $9,780 | $16.06 | | |
| STREFUND | STATE REFUND LEVY 603 | 0.0000000000 | $9,780 | $9,780 | $0.00 | | |
| COROAD | COUNTY ROAD 115 | 1.6137667997 | $9,780 | $9,780 | $15.78 | | |
| CRPRD | COUNTY ROAD REFUND 115 | 0.0000000000 | $9,780 | $9,780 | $0.00 | | |
| | Total Tax Rate: | 8.4819551874 | | | | | |
| | | | | Taxes w/Current Exemptions: | $82.94 | | |
| | | | | Taxes w/o Exemptions: | $82.94 | | |
Improvement / Building
Sketch
| No sketches available for this property. |
Property Image
Land
| 1 | RES 1 | Converted: Residential | 6.5200 | 284011.20 | 0.00 | 0.00 | 1.00 | $9,780 | $0 |
Roll Value History
| 2026 | N/A | N/A | N/A | N/A | N/A |
| 2025 | $0 | $9,780 | $0 | $9,780 | $9,780 |
| 2024 | $0 | $9,780 | $0 | $9,780 | $9,780 |
| 2023 | $0 | $6,850 | $0 | $6,850 | $6,850 |
| 2022 | $0 | $6,850 | $0 | $6,850 | $6,850 |
| 2021 | $0 | $6,850 | $0 | $6,850 | $6,850 |
| 2020 | $0 | $6,850 | $0 | $6,850 | $6,850 |
| 2019 | $0 | $6,850 | $0 | $6,850 | $6,850 |
| 2018 | $0 | $6,850 | $0 | $6,850 | $6,850 |
| 2017 | $0 | $3,300 | $0 | $3,300 | $3,300 |
| 2016 | $0 | $3,300 | $0 | $3,300 | $3,300 |
| 2015 | $0 | $3,300 | $0 | $3,300 | $3,300 |
| 2014 | $0 | $3,300 | $0 | $3,300 | $3,300 |
| 2013 | $0 | $3,300 | $0 | $3,300 | $3,300 |
| 2012 | $0 | $3,300 | $0 | $0 | $0 |
| 2011 | $0 | $3,300 | $0 | $0 | $0 |
| 2010 | $0 | $3,300 | $0 | $0 | $0 |
| 2009 | $0 | $3,300 | $0 | $0 | $0 |
| 2008 | $0 | $3,300 | $0 | $0 | $0 |
| 2007 | $0 | $3,300 | $0 | $0 | $0 |
Deed and Sales History
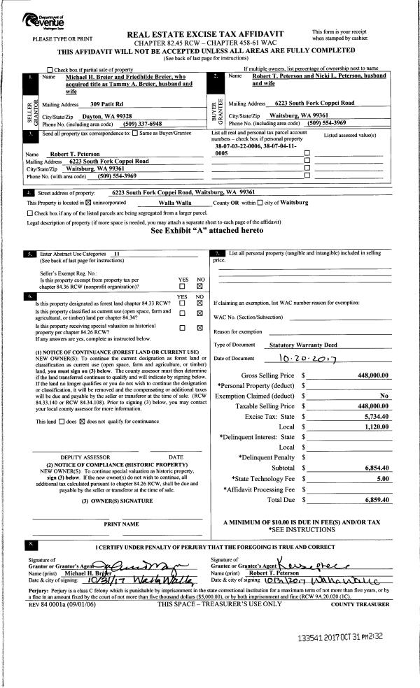
| 1 | 10/31/2017 | SWD | STATUTORY WARRANTY DEED | BREIER MICHAEL & FRIEDHILDE | PETERSON ROBERT T & NICKI L | | 2-PARCELS | $448,000.00 | 133541 | 2017-08771 |
|   | |
| 2 | 05/05/2016 | QCD | QUIT CLAIM DEED | BREIER MICHAEL & FRIEDHILDE | BREIER MICHAEL & FRIEDHILDE | | | $0.00 | 130190 | 2016-03505 |
| 3 | 02/24/1986 | WARRANTY D | WARRANTY DEED | | | | | $22,500.00 | 0 | 1869-008743 |
|   | |
Payout Agreement
| No payout information available.. |