Property
Account |
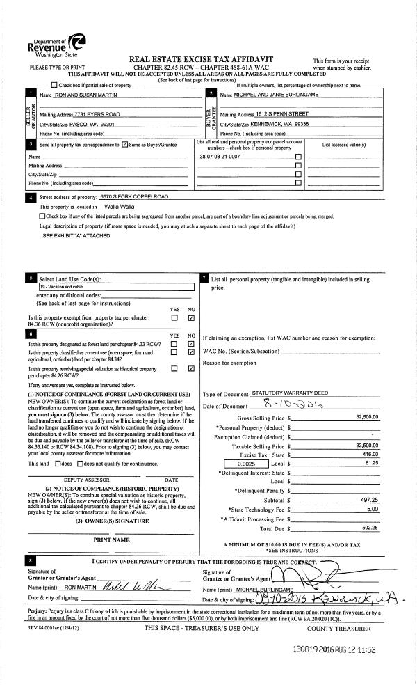
| Property ID: | 31395 | Abbreviated Legal Description: | 38 07 03 METES & BOUNDS |
| Parcel Number: | 380703210007 | Agent Code: | |
| Type: | Real | | |
| Tax Area: | 309 - 101 | Land Use Code | 19 |
| Open Space: | N | DFL | N |
| Historic Property: | N | Remodel Property: | N |
| Multi-Family Redevelopment: | N | | |
| Township: | 7 | Section: | 3 |
| Range: | 38 |
Location |
| Address: | 6570 SOUTH FORK COPPEI RD WA 99329 | Mapsco: | |
| Neighborhood: | 0 Mtn Prop Cabin | Map ID: | |
| Neighborhood CD: | 512175 |
Owner |
| Name: | BURLINGAME MICHAEL R & JANIE K | Owner ID: | 40332 |
| Mailing Address: | 1612 S PENN KENNEWICK, WA 99338 | % Ownership: | 100.0000000000% |
| | | Exemptions: | |
Taxes and Assessment Details
Property Tax Information as of
04/19/2026
Click on "Statement Details" to expand or collapse a tax statement.
* Please enter a valid date ** Please enter a valid date *
Statement Details |
| | TOTAL: | $0.00 | $0.00 | $0.00 | $0.00 | $0.00 | $0.00 |
|
| | $0.00 | $0.00 | $0.00 | $0.00 | $0.00 | $0.00 |
Values
| (+) Improvement Homesite Value: | + | $0 | |
| (+) Improvement Non-Homesite Value: | + | $0 | |
| (+) Land Homesite Value: | + | $0 | |
| (+) Land Non-Homesite Value: | + | $11,190 | |
| (+) Curr Use (HS): | + | $0 | $0 |
| (+) Curr Use (NHS): | + | $0 | $0 |
| | | -------------------------- | |
| (=) Market Value: | = | $11,190 | |
| (–) Productivity Loss: | – | $0 | |
| | | -------------------------- | |
| (=) Subtotal: | = | $11,190 | |
| (+) Senior Appraised Value: | + | $0 | |
| (+) Non-Senior Appraised Value: | + | $11,190 | |
| | | -------------------------- | |
| (=) Total Appraised Value: | = | $11,190 | |
| (–) Senior Exemption Loss: | – | $0 | |
| (–) Exemption Loss: | – | $0 | |
| | | -------------------------- | |
| (=) Taxable Value: | = | $11,190 | |
Taxing Jurisdiction
| Owner: | BURLINGAME MICHAEL R & JANIE K | | |
| % Ownership: | 100.0000000000% | | |
| Total Value: | $11,190 | | |
| Tax Area: | 309 - 101 |
| CERFD | CURRENT EXPENSE REFUND 010 | 0.0000000000 | $11,190 | $11,190 | $0.00 | | |
| CURREXP | CURRENT EXPENSE 010 | 1.0175366760 | $11,190 | $11,190 | $11.39 | | |
| HUMNSERV | HUMAN SERVICES 119 | 0.0250000000 | $11,190 | $11,190 | $0.28 | | |
| SLDREL | SOLDIERS RELIEF 121 | 0.0155990005 | $11,190 | $11,190 | $0.17 | | |
| EMERGSER | EMS 147 | 0.3792580840 | $11,190 | $11,190 | $4.24 | | |
| EMSRFD | EMS REFUND 147 | 0.0000000000 | $11,190 | $11,190 | $0.00 | | |
| RLBRFD | RURAL LIBRARY REFUND 623 | 0.0000000000 | $11,190 | $11,190 | $0.00 | | |
| RURALLIB | RURAL LIBRARY 623 | 0.3710609029 | $11,190 | $11,190 | $4.15 | | |
| PORTRFD | PORT REFUND 640 | 0.0000000000 | $11,190 | $11,190 | $0.00 | | |
| PORTWWGEN | PORT OF WW 640 | 0.2460186015 | $11,190 | $11,190 | $2.75 | | |
| SD101CAP | SD #101 CAP 752 | 0.5894423472 | $11,190 | $11,190 | $6.60 | | |
| SD101GEN | SD #101 GENERAL 750 | 0.7455117868 | $11,190 | $11,190 | $8.34 | | |
| ST2 | STATE SCHOOL PART 2 600 | 0.8131451643 | $11,190 | $11,190 | $9.10 | | |
| STATESCHL | STATE SCHOOL 600 | 1.5158548041 | $11,190 | $11,190 | $16.96 | | |
| STREFUND | STATE REFUND LEVY 603 | 0.0000000000 | $11,190 | $11,190 | $0.00 | | |
| COROAD | COUNTY ROAD 115 | 1.6549953990 | $11,190 | $11,190 | $18.52 | | |
| CRPRD | COUNTY ROAD REFUND 115 | 0.0000000000 | $11,190 | $11,190 | $0.00 | | |
| | Total Tax Rate: | 7.3734227663 | | | | | |
| | | | | Taxes w/Current Exemptions: | $82.50 | | |
| | | | | Taxes w/o Exemptions: | $82.50 | | |
Improvement / Building
Sketch
| No sketches available for this property. |
Property Image
Land
| 1 | RES 1 | Converted: Residential | 22.3800 | 0.00 | 0.00 | 0.00 | 1.00 | $11,190 | $0 |
Roll Value History
| 2026 | N/A | N/A | N/A | N/A | N/A |
| 2025 | $0 | $17,900 | $0 | $17,900 | $17,900 |
| 2024 | $0 | $17,900 | $0 | $17,900 | $17,900 |
| 2023 | $0 | $11,190 | $0 | $11,190 | $11,190 |
| 2022 | $0 | $11,190 | $0 | $11,190 | $11,190 |
| 2021 | $0 | $11,190 | $0 | $11,190 | $11,190 |
| 2020 | $0 | $11,190 | $0 | $11,190 | $11,190 |
| 2019 | $0 | $11,190 | $0 | $11,190 | $11,190 |
| 2018 | $0 | $11,190 | $0 | $11,190 | $11,190 |
| 2017 | $2,000 | $32,200 | $0 | $34,200 | $34,200 |
| 2016 | $2,000 | $32,200 | $0 | $34,200 | $34,200 |
| 2015 | $2,000 | $32,200 | $0 | $34,200 | $34,200 |
| 2014 | $2,000 | $32,200 | $0 | $34,200 | $34,200 |
| 2013 | $2,000 | $32,200 | $0 | $34,200 | $34,200 |
| 2012 | $2,000 | $32,200 | $0 | $0 | $0 |
| 2011 | $1,800 | $22,700 | $0 | $0 | $0 |
| 2010 | $1,800 | $22,700 | $0 | $0 | $0 |
| 2009 | $1,800 | $22,700 | $0 | $0 | $0 |
| 2008 | $600 | $23,900 | $0 | $0 | $0 |
| 2007 | $600 | $23,900 | $0 | $0 | $0 |
Deed and Sales History
| 1 | 08/12/2016 | SWD | STATUTORY WARRANTY DEED | MARTIN RON & SUSAN | BURLINGAME MICHAEL R & JANIE K | | | $32,500.00 | 130819 | 2016-06421 |
| 2 | 02/08/2016 | SWD | STATUTORY WARRANTY DEED | PETERS MATTHEW ET AL | MARTIN RON & SUSAN | | | $10,800.00 | 129645 | 2016-00965 |
| 3 | 10/02/2015 | FUL | FULFILLMENT DEED | DANIELS HELEN H TRUSTEE | PETERS MATTHEW ET AL | | | | 0 | 2015-08709 |
| 4 | 06/01/2005 | WARRANTY D | WARRANTY DEED | DANIELS, HELEN H TRUSTEE | PETERS, MATTHEW | | | $22,000.00 | 107631 | 2005-06601 |
| 5 | 01/15/2003 | WARRANTY D | WARRANTY DEED | ADAMS, SUZY L | DANIELS, HELEN H TRUSTEE | | | $20,000.00 | 101205 | 2003-00645 |
Payout Agreement
| No payout information available.. |