Property
Account |
| Property ID: | 31392 | Abbreviated Legal Description: | 3-7-38 ELY 440' OF LOT 3 IN SEC 3 ALSO PTN OF ELY 480' OF SE1/4SW1/4 OF 34-8-38 LESS RD |
| Parcel Number: | 380703210003 | Agent Code: | |
| Type: | Real | | |
| Tax Area: | 309 - 101 | Land Use Code | 19 |
| Open Space: | N | DFL | N |
| Historic Property: | N | Remodel Property: | N |
| Multi-Family Redevelopment: | N | | |
| Township: | 7 | Section: | 3 |
| Range: | 38 |
Location |
| Address: | 6831 SOUTH FORK COPPEI RD WA 99329 | Mapsco: | |
| Neighborhood: | 0 Mtn Prop Land Only | Map ID: | |
| Neighborhood CD: | 512195 |
Owner |
| Name: | BEAVER BRION K | Owner ID: | 70695 |
| Mailing Address: | 209909 EAST BOWLES RD KENNEWICK, WA 99337 | % Ownership: | 100.0000000000% |
| | | Exemptions: | |
Taxes and Assessment Details
Property Tax Information as of
02/21/2026
Click on "Statement Details" to expand or collapse a tax statement.
* Please enter a valid date ** Please enter a valid date *
Statement Details |
| | TOTAL: | $0.00 | $0.00 | $0.00 | $0.00 | $0.00 | $0.00 |
|
| | $0.00 | $0.00 | $0.00 | $0.00 | $0.00 | $0.00 |
Values
| (+) Improvement Homesite Value: | + | $0 | |
| (+) Improvement Non-Homesite Value: | + | $0 | |
| (+) Land Homesite Value: | + | $0 | |
| (+) Land Non-Homesite Value: | + | $39,660 | |
| (+) Curr Use (HS): | + | $0 | $0 |
| (+) Curr Use (NHS): | + | $0 | $0 |
| | | -------------------------- | |
| (=) Market Value: | = | $39,660 | |
| (–) Productivity Loss: | – | $0 | |
| | | -------------------------- | |
| (=) Subtotal: | = | $39,660 | |
| (+) Senior Appraised Value: | + | $0 | |
| (+) Non-Senior Appraised Value: | + | $39,660 | |
| | | -------------------------- | |
| (=) Total Appraised Value: | = | $39,660 | |
| (–) Senior Exemption Loss: | – | $0 | |
| (–) Exemption Loss: | – | $0 | |
| | | -------------------------- | |
| (=) Taxable Value: | = | $39,660 | |
Taxing Jurisdiction
| Owner: | BEAVER BRION K | | |
| % Ownership: | 100.0000000000% | | |
| Total Value: | $39,660 | | |
| Tax Area: | 309 - 101 |
| CERFD | CURRENT EXPENSE REFUND 010 | 0.0000000000 | $39,660 | $39,660 | $0.00 | | |
| CURREXP | CURRENT EXPENSE 010 | 1.0175366760 | $39,660 | $39,660 | $40.36 | | |
| HUMNSERV | HUMAN SERVICES 119 | 0.0250000000 | $39,660 | $39,660 | $0.99 | | |
| SLDREL | SOLDIERS RELIEF 121 | 0.0155990005 | $39,660 | $39,660 | $0.62 | | |
| EMERGSER | EMS 147 | 0.3792580840 | $39,660 | $39,660 | $15.04 | | |
| EMSRFD | EMS REFUND 147 | 0.0000000000 | $39,660 | $39,660 | $0.00 | | |
| RLBRFD | RURAL LIBRARY REFUND 623 | 0.0000000000 | $39,660 | $39,660 | $0.00 | | |
| RURALLIB | RURAL LIBRARY 623 | 0.3710609029 | $39,660 | $39,660 | $14.72 | | |
| PORTRFD | PORT REFUND 640 | 0.0000000000 | $39,660 | $39,660 | $0.00 | | |
| PORTWWGEN | PORT OF WW 640 | 0.2460186015 | $39,660 | $39,660 | $9.76 | | |
| SD101CAP | SD #101 CAP 752 | 0.5894423472 | $39,660 | $39,660 | $23.38 | | |
| SD101GEN | SD #101 GENERAL 750 | 0.7455117868 | $39,660 | $39,660 | $29.57 | | |
| ST2 | STATE SCHOOL PART 2 600 | 0.8131451643 | $39,660 | $39,660 | $32.25 | | |
| STATESCHL | STATE SCHOOL 600 | 1.5158548041 | $39,660 | $39,660 | $60.12 | | |
| STREFUND | STATE REFUND LEVY 603 | 0.0000000000 | $39,660 | $39,660 | $0.00 | | |
| COROAD | COUNTY ROAD 115 | 1.6549953990 | $39,660 | $39,660 | $65.64 | | |
| CRPRD | COUNTY ROAD REFUND 115 | 0.0000000000 | $39,660 | $39,660 | $0.00 | | |
| | Total Tax Rate: | 7.3734227663 | | | | | |
| | | | | Taxes w/Current Exemptions: | $292.45 | | |
| | | | | Taxes w/o Exemptions: | $292.45 | | |
Improvement / Building
| Improvement #1: | RESIDENTIAL | State Code: | 19 | 1.0 sqft | Value: | $0 |
Sketch
| No sketches available for this property. |
Property Image
Land
| 1 | RES 1 | Converted: Residential | 22.3100 | 0.00 | 0.00 | 0.00 | 1.00 | $39,660 | $0 |
Roll Value History
| 2026 | N/A | N/A | N/A | N/A | N/A |
| 2025 | $0 | $80,470 | $0 | $80,470 | $80,470 |
| 2024 | $0 | $80,470 | $0 | $80,470 | $80,470 |
| 2023 | $0 | $39,660 | $0 | $39,660 | $39,660 |
| 2022 | $0 | $39,660 | $0 | $39,660 | $39,660 |
| 2021 | $0 | $39,660 | $0 | $39,660 | $39,660 |
| 2020 | $0 | $39,660 | $0 | $39,660 | $39,660 |
| 2019 | $0 | $39,660 | $0 | $39,660 | $39,660 |
| 2018 | $0 | $39,660 | $0 | $39,660 | $39,660 |
| 2017 | $0 | $32,200 | $0 | $32,200 | $32,200 |
| 2016 | $0 | $32,200 | $0 | $32,200 | $32,200 |
| 2015 | $0 | $32,200 | $0 | $32,200 | $32,200 |
| 2014 | $0 | $32,200 | $0 | $32,200 | $32,200 |
| 2013 | $0 | $32,200 | $0 | $32,200 | $32,200 |
| 2012 | $0 | $32,200 | $0 | $0 | $0 |
| 2011 | $0 | $22,700 | $0 | $0 | $0 |
| 2010 | $0 | $22,700 | $0 | $0 | $0 |
| 2009 | $0 | $22,700 | $0 | $0 | $0 |
| 2008 | $0 | $20,100 | $0 | $0 | $0 |
| 2007 | $0 | $20,100 | $0 | $0 | $0 |
Deed and Sales History
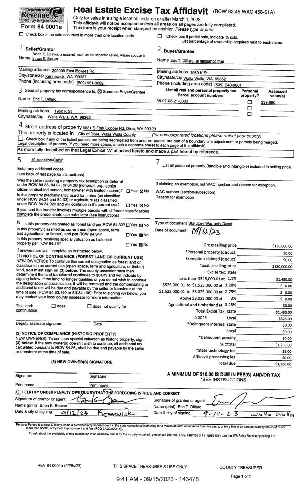
| 1 | 09/15/2023 | SWD | STATUTORY WARRANTY DEED | BEAVER BRION K | DILLARD ERIC T | | | $130,000.00 | 146478 | 2023-05381 |
| 2 | 11/29/2021 | QCD | QUIT CLAIM DEED | BEAVER BRION K & DANETTE R | BEAVER BRION K | | | $0.00 | 142896 | 2021-14054 |
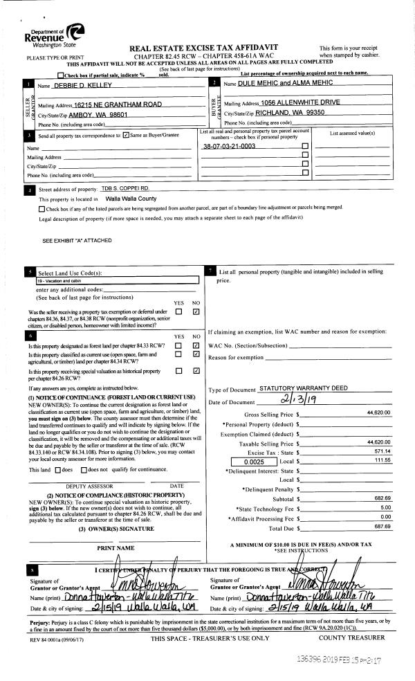
| 3 | 06/15/2020 | QCD | QUIT CLAIM DEED | MEHIC DULE & ALMA MEHIC | BEAVER BRION K & DANETTE R | | | $45,000.00 | 139275 | 2020-05371 |
| 4 | 02/15/2019 | SWD | STATUTORY WARRANTY DEED | KELLEY DEBBIE D | MEHIC DULE & ALMA MEHIC | | | $44,620.00 | 136396 | 2019-01012 |
| 5 | 04/24/1985 | WARRANTY D | WARRANTY DEED | | | | | $23,625.00 | 0 | 1498-502593 |
Payout Agreement
| No payout information available.. |