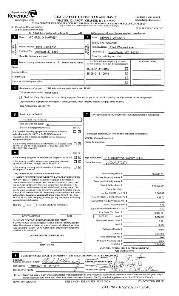
Property
Account |
| Property ID: | 3138 | Abbreviated Legal Description: | SEC 1 TWN 6 RNG 35 PARCEL 15 |
| Parcel Number: | 350601110015 | Agent Code: | |
| Type: | Real | | |
| Tax Area: | 311 - 250-4 | Land Use Code | 11 |
| Open Space: | N | DFL | N |
| Historic Property: | N | Remodel Property: | N |
| Multi-Family Redevelopment: | N | | |
| Township: | 6 | Section: | 1 |
| Range: | 35 |
Location |
| Address: | 2949 WINONA LN WA 99324 | Mapsco: | |
| Neighborhood: | G SFR Rural/City Inf | Map ID: | |
| Neighborhood CD: | 114012 |
Owner |
| Name: | WALKER KEVIN S & MINDY A | Owner ID: | 51858 |
| Mailing Address: | 2949 WINONA LANE WALLA WALLA, WA 99362 | % Ownership: | 100.0000000000% |
| | | Exemptions: | |
Taxes and Assessment Details
Property Tax Information as of
02/21/2026
Click on "Statement Details" to expand or collapse a tax statement.
* Please enter a valid date ** Please enter a valid date *
Statement Details |
| | TOTAL: | $0.00 | $0.00 | $0.00 | $0.00 | $0.00 | $0.00 |
|
| | $0.00 | $0.00 | $0.00 | $0.00 | $0.00 | $0.00 |
Values
| (+) Improvement Homesite Value: | + | N/A | |
| (+) Improvement Non-Homesite Value: | + | N/A | |
| (+) Land Homesite Value: | + | N/A | |
| (+) Land Non-Homesite Value: | + | N/A | Ag / Timber Use Value |
| (+) Curr Use (HS): | + | N/A | N/A |
| (+) Curr Use (NHS): | + | N/A | N/A |
| | | -------------------------- | |
| (=) Market Value: | = | N/A | |
| (–) Productivity Loss: | – | N/A | |
| | | -------------------------- | |
| (=) Subtotal: | = | N/A | |
| (+) Senior Appraised Value: | + | N/A | |
| (+) Non-Senior Appraised Value: | + | N/A | |
| | | -------------------------- | |
| (=) Total Appraised Value: | = | N/A | |
| (–) Senior Exemption Loss: | – | N/A | |
| (–) Exemption Loss: | – | N/A | |
| | | -------------------------- | |
| (=) Taxable Value: | = | N/A | |
Taxing Jurisdiction
| Owner: | WALKER KEVIN S & MINDY A | | |
| % Ownership: | 100.0000000000% | | |
| Total Value: | N/A | | |
| Tax Area: | 311 - 250-4 |
| CERFD | CURRENT EXPENSE REFUND 010 | N/A | N/A | N/A | N/A | | |
| CURREXP | CURRENT EXPENSE 010 | N/A | N/A | N/A | N/A | | |
| HUMNSERV | HUMAN SERVICES 119 | N/A | N/A | N/A | N/A | | |
| SLDREL | SOLDIERS RELIEF 121 | N/A | N/A | N/A | N/A | | |
| EMERGSER | EMS 147 | N/A | N/A | N/A | N/A | | |
| EMSRFD | EMS REFUND 147 | N/A | N/A | N/A | N/A | | |
| FD4EXP | FD #4 EXPENSE 686 | N/A | N/A | N/A | N/A | | |
| RLBRFD | RURAL LIBRARY REFUND 623 | N/A | N/A | N/A | N/A | | |
| RURALLIB | RURAL LIBRARY 623 | N/A | N/A | N/A | N/A | | |
| PORTRFD | PORT REFUND 640 | N/A | N/A | N/A | N/A | | |
| PORTWWGEN | PORT OF WW 640 | N/A | N/A | N/A | N/A | | |
| SD250BOND | SD #250 BOND 773 | N/A | N/A | N/A | N/A | | |
| SD250GEN | SD #250 GENERAL 770 | N/A | N/A | N/A | N/A | | |
| ST2 | STATE SCHOOL PART 2 600 | N/A | N/A | N/A | N/A | | |
| STATESCHL | STATE SCHOOL 600 | N/A | N/A | N/A | N/A | | |
| STREFUND | STATE REFUND LEVY 603 | N/A | N/A | N/A | N/A | | |
| COROAD | COUNTY ROAD 115 | N/A | N/A | N/A | N/A | | |
| CRPRD | COUNTY ROAD REFUND 115 | N/A | N/A | N/A | N/A | | |
| | Total Tax Rate: | N/A | | | | | |
| | | | | Taxes w/Current Exemptions: | N/A | | |
| | | | | Taxes w/o Exemptions: | N/A | | |
Improvement / Building
| Improvement #1: | RESIDENTIAL | State Code: | 11 | 1865.0 sqft | Value: | N/A |
| Exterior Wall: | SIDING | Heating/Cooling: | WARM & COOLED AIR | | Number of Bathrooms: | 3.5 | Number of Bedrooms: | 5 | | Plumbing: | 15 | Roof Covering: | COMP SHINGLE |
|
| | Type | Description | Class CD | Sub Class CD | Year Built | Area |
| | MA | Main Area | 1 | 40 | 1971 | 1865.0 |
| | SI1 | SITE IMPROVEMENT | 1 | 40 | 1971 | 5.0 |
| | BASE | BASEMENT | 1 | 40 | 1971 | 1865.0 |
| | BPF | BASEMENT -PARTITIONED FINISH | 1 | 40 | 1971 | 1865.0 |
| | ATG | Attached Garage | 1 | 40 | 1971 | 816.0 |
| | S1F | Single One Story Fireplace | 1 | 40 | 1971 | 1.0 |
| | UTST | Utility Storage Shed | 1 | 30 | 1971 | 738.0 |
| | DTG | Detached Garage | 1 | 30 | 1971 | 1254.0 |
| | LNTD | LEAN TO DIRT FLOOR | 1 | 30 | 1971 | 180.0 |
| | WOD | Wood Deck | 1 | 40 | 1971 | 518.0 |
| | RPO | OPEN PORCH W/ROOF | 1 | 40 | 1971 | 144.0 |
| | SMP | SWIMMING POOL | 1 | 40 | 1971 | 1.0 |
| | HBAT | HALF BATH | 1 | 30 | 1971 | 1.0 |
Sketch
Property Image
Land
| 1 | RES 1 | Converted: Residential | 0.8200 | 35719.00 | 0.00 | 0.00 | 1.00 | N/A | N/A |
Roll Value History
| 2026 | N/A | N/A | N/A | N/A | N/A |
| 2025 | $486,540 | $171,090 | $0 | $657,630 | $657,630 |
| 2024 | $540,600 | $114,770 | $0 | $655,370 | $655,370 |
| 2023 | $540,600 | $114,770 | $0 | $655,370 | $655,370 |
| 2022 | $470,090 | $114,770 | $0 | $584,860 | $584,860 |
| 2021 | $391,740 | $114,770 | $0 | $506,510 | $506,510 |
| 2020 | $261,160 | $114,770 | $0 | $375,930 | $375,930 |
| 2019 | $293,530 | $82,400 | $0 | $375,930 | $375,930 |
| 2018 | $244,610 | $82,400 | $0 | $327,010 | $327,010 |
| 2017 | $212,700 | $82,400 | $0 | $295,100 | $295,100 |
| 2016 | $212,700 | $82,400 | $0 | $295,100 | $295,100 |
| 2015 | $212,700 | $82,400 | $0 | $295,100 | $295,100 |
| 2014 | $212,700 | $82,400 | $0 | $295,100 | $295,100 |
| 2013 | $212,700 | $82,400 | $0 | $295,100 | $295,100 |
| 2012 | $210,000 | $82,400 | $0 | $0 | $0 |
| 2011 | $209,400 | $98,400 | $0 | $0 | $0 |
| 2010 | $209,400 | $98,400 | $0 | $0 | $0 |
| 2009 | $243,600 | $98,400 | $0 | $0 | $0 |
| 2008 | $181,600 | $36,900 | $0 | $0 | $0 |
| 2007 | $181,600 | $36,900 | $0 | $0 | $0 |
Deed and Sales History
| 1 | 07/22/2020 | SWD | STATUTORY WARRANTY DEED | HARVEY MICHAEL D | WALKER KEVIN S & MINDY A | | 2-PARCELS | $565,000.00 | 139548 | 2020-07074 |
|   | |
| 2 | 08/05/1988 | WARRANTY D | WARRANTY DEED | | | | | $87,500.00 | 0 | 1728-805165 |
Payout Agreement
| No payout information available.. |