Property
Account |
| Property ID: | 31377 | Abbreviated Legal Description: | VILLAGES GARRISON CREEK PUD, PHASE SIX SLY PTN LOT 84 & ALL LOT 85 |
| Parcel Number: | 350736960045 | Agent Code: | |
| Type: | Real | | |
| Tax Area: | 77 - CP-250-F | Land Use Code | 11 |
| Open Space: | N | DFL | N |
| Historic Property: | N | Remodel Property: | N |
| Multi-Family Redevelopment: | N | | |
| Township: | 7 | Section: | 36 |
| Range: | 35 |
Location |
| Address: | 744 SE QUAIL RUN WA 99324 | Mapsco: | |
| Neighborhood: | G Inferior SFR | Map ID: | |
| Neighborhood CD: | 114111 |
Owner |
| Name: | PAULSEN KAY | Owner ID: | 50559 |
| Mailing Address: | 744 SE QUAIL RUN COLLEGE PLACE, WA 99324 | % Ownership: | 100.0000000000% |
| | | Exemptions: | |
Taxes and Assessment Details
Property Tax Information as of
02/21/2026
Click on "Statement Details" to expand or collapse a tax statement.
* Please enter a valid date ** Please enter a valid date *
Statement Details |
| | TOTAL: | $0.00 | $0.00 | $0.00 | $0.00 | $0.00 | $0.00 |
|
| | $0.00 | $0.00 | $0.00 | $0.00 | $0.00 | $0.00 |
Values
| (+) Improvement Homesite Value: | + | $0 | |
| (+) Improvement Non-Homesite Value: | + | $301,480 | |
| (+) Land Homesite Value: | + | $0 | |
| (+) Land Non-Homesite Value: | + | $60,000 | |
| (+) Curr Use (HS): | + | $0 | $0 |
| (+) Curr Use (NHS): | + | $0 | $0 |
| | | -------------------------- | |
| (=) Market Value: | = | $361,480 | |
| (–) Productivity Loss: | – | $0 | |
| | | -------------------------- | |
| (=) Subtotal: | = | $361,480 | |
| (+) Senior Appraised Value: | + | $0 | |
| (+) Non-Senior Appraised Value: | + | $361,480 | |
| | | -------------------------- | |
| (=) Total Appraised Value: | = | $361,480 | |
| (–) Senior Exemption Loss: | – | $0 | |
| (–) Exemption Loss: | – | $0 | |
| | | -------------------------- | |
| (=) Taxable Value: | = | $361,480 | |
Taxing Jurisdiction
| Owner: | PAULSEN KAY | | |
| % Ownership: | 100.0000000000% | | |
| Total Value: | $361,480 | | |
| Tax Area: | 77 - CP-250-F |
| CERFD | CURRENT EXPENSE REFUND 010 | 0.0000000000 | $361,480 | $361,480 | $0.00 | | |
| CURREXP | CURRENT EXPENSE 010 | 1.0175366760 | $361,480 | $361,480 | $367.82 | | |
| HUMNSERV | HUMAN SERVICES 119 | 0.0250000000 | $361,480 | $361,480 | $9.04 | | |
| SLDREL | SOLDIERS RELIEF 121 | 0.0155990005 | $361,480 | $361,480 | $5.64 | | |
| COLLPLBOND | C OF CP BOND 644 | 0.4374241808 | $361,480 | $361,480 | $158.12 | | |
| COLLPLGEN | CITY OF CP 632 | 1.4453819216 | $361,480 | $361,480 | $522.48 | | |
| EMERGSER | EMS 147 | 0.3792580840 | $361,480 | $361,480 | $137.09 | | |
| EMSRFD | EMS REFUND 147 | 0.0000000000 | $361,480 | $361,480 | $0.00 | | |
| RURALLIB | RURAL LIBRARY 623 | 0.3710609029 | $361,480 | $361,480 | $134.13 | | |
| PORTRFD | PORT REFUND 640 | 0.0000000000 | $361,480 | $361,480 | $0.00 | | |
| PORTWWGEN | PORT OF WW 640 | 0.2460186015 | $361,480 | $361,480 | $88.93 | | |
| SD250BOND | SD #250 BOND 773 | 1.4560608159 | $361,480 | $361,480 | $526.34 | | |
| SD250GEN | SD #250 GENERAL 770 | 2.3880724087 | $361,480 | $361,480 | $863.24 | | |
| ST2 | STATE SCHOOL PART 2 600 | 0.8131451643 | $361,480 | $361,480 | $293.94 | | |
| STATESCHL | STATE SCHOOL 600 | 1.5158548041 | $361,480 | $361,480 | $547.95 | | |
| STREFUND | STATE REFUND LEVY 603 | 0.0000000000 | $361,480 | $361,480 | $0.00 | | |
| | Total Tax Rate: | 10.1104125603 | | | | | |
| | | | | Taxes w/Current Exemptions: | $3,654.72 | | |
| | | | | Taxes w/o Exemptions: | $3,654.72 | | |
Improvement / Building
| Improvement #1: | RESIDENTIAL | State Code: | 11 | 1451.0 sqft | Value: | $301,480 |
| Exterior Wall: | PLYWOOD | Heating/Cooling: | WARM & COOLED AIR | | Number of Bathrooms: | 2 | Number of Bedrooms: | 3 | | Plumbing: | 9 | Roof Covering: | COMP SHINGLE |
|
| | Type | Description | Class CD | Sub Class CD | Year Built | Area |
| | MA | Main Area | 1 | 35 | 2003 | 1451.0 |
| | GFP | GAS FIREPLACE | 1 | 35 | 0 | 1.0 |
| | SI1 | SITE IMPROVEMENT | 1 | 35 | 2003 | 1.5 |
| | ATG | Attached Garage | 1 | 35 | 2003 | 420.0 |
| | RPC | OPEN PORCH W/ROOF , CEILED | 1 | 35 | 2003 | 85.0 |
Sketch
Property Image
Land
| 1 | RES 1 | Converted: Residential | 0.0987 | 4300.00 | 0.00 | 0.00 | 1.00 | $60,000 | $0 |
Roll Value History
| 2026 | N/A | N/A | N/A | N/A | N/A |
| 2025 | $241,180 | $110,000 | $0 | $351,180 | $351,180 |
| 2024 | $301,480 | $60,000 | $0 | $361,480 | $361,480 |
| 2023 | $301,480 | $60,000 | $0 | $361,480 | $361,480 |
| 2022 | $301,480 | $60,000 | $0 | $361,480 | $361,480 |
| 2021 | $223,320 | $60,000 | $0 | $283,320 | $283,320 |
| 2020 | $154,010 | $60,000 | $0 | $214,010 | $214,010 |
| 2019 | $169,010 | $45,000 | $0 | $214,010 | $214,010 |
| 2018 | $153,650 | $45,000 | $0 | $198,650 | $198,650 |
| 2017 | $128,040 | $45,000 | $0 | $173,040 | $173,040 |
| 2016 | $116,400 | $45,000 | $0 | $161,400 | $161,400 |
| 2015 | $116,400 | $45,000 | $0 | $161,400 | $161,400 |
| 2014 | $116,400 | $45,000 | $0 | $161,400 | $161,400 |
| 2013 | $116,400 | $45,000 | $0 | $161,400 | $161,400 |
| 2012 | $159,300 | $45,000 | $0 | $0 | $0 |
| 2011 | $159,300 | $45,000 | $0 | $0 | $0 |
| 2010 | $159,300 | $45,000 | $0 | $0 | $0 |
| 2009 | $170,100 | $45,000 | $0 | $0 | $0 |
| 2008 | $135,200 | $18,000 | $0 | $0 | $0 |
| 2007 | $135,200 | $18,000 | $0 | $0 | $0 |
Deed and Sales History
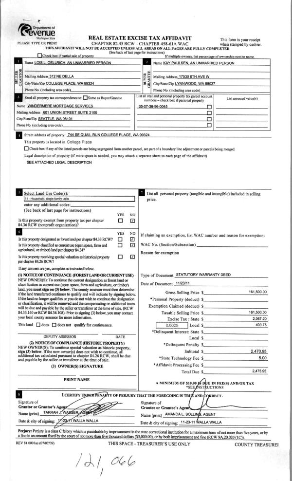
| 1 | 11/30/2011 | WARRANTY D | WARRANTY DEED | OELLRICH, LOIS | PAULSEN, KAY | | | $161,500.00 | 121066 | 2011-09403 |
| 2 | 09/18/2009 | WARRANTY D | WARRANTY DEED | MC MANUS, ALBERT & JOYCE LVG T | OELLRICH, LOIS | | | $210,000.00 | 117357 | 2009-09410 |
Payout Agreement
| No payout information available.. |