Property
Account |
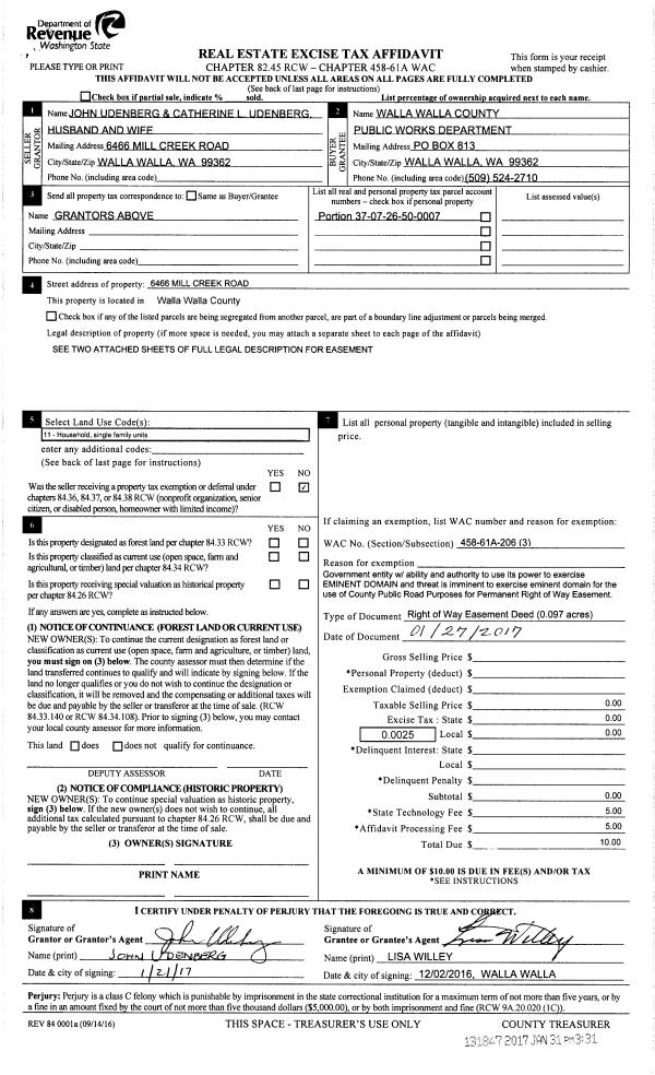
| Property ID: | 31347 | Abbreviated Legal Description: | OAK MANOR ESTATES LOT 6; LESS 10' X 10' WELL SITE IN SLY PTN; LESS PUBLIC RD EASEMENT |
| Parcel Number: | 370726500007 | Agent Code: | |
| Type: | Real | | |
| Tax Area: | 101 - 140-4 | Land Use Code | 11 |
| Open Space: | N | DFL | N |
| Historic Property: | N | Remodel Property: | N |
| Multi-Family Redevelopment: | N | | |
| Township: | | Section: | |
| Range: | |
Location |
| Address: | 6466 MILL CREEK RD WA 99362 | Mapsco: | |
| Neighborhood: | G SFR Rural | Map ID: | |
| Neighborhood CD: | 414013 |
Owner |
| Name: | UDENBERG JOHN & CATHERINE | Owner ID: | 15131 |
| Mailing Address: | 6466 MILL CREEK RD WALLA WALLA, WA 99362 | % Ownership: | 100.0000000000% |
| | | Exemptions: | |
Taxes and Assessment Details
Values
| (+) Improvement Homesite Value: | + | N/A | |
| (+) Improvement Non-Homesite Value: | + | N/A | |
| (+) Land Homesite Value: | + | N/A | |
| (+) Land Non-Homesite Value: | + | N/A | Ag / Timber Use Value |
| (+) Curr Use (HS): | + | N/A | N/A |
| (+) Curr Use (NHS): | + | N/A | N/A |
| | | -------------------------- | |
| (=) Market Value: | = | N/A | |
| (–) Productivity Loss: | – | N/A | |
| | | -------------------------- | |
| (=) Subtotal: | = | N/A | |
| (+) Senior Appraised Value: | + | N/A | |
| (+) Non-Senior Appraised Value: | + | N/A | |
| | | -------------------------- | |
| (=) Total Appraised Value: | = | N/A | |
| (–) Senior Exemption Loss: | – | N/A | |
| (–) Exemption Loss: | – | N/A | |
| | | -------------------------- | |
| (=) Taxable Value: | = | N/A | |
Taxing Jurisdiction
| Owner: | UDENBERG JOHN & CATHERINE | | |
| % Ownership: | 100.0000000000% | | |
| Total Value: | N/A | | |
| Tax Area: | 101 - 140-4 |
| CERFD | CURRENT EXPENSE REFUND 010 | N/A | N/A | N/A | N/A | | |
| CURREXP | CURRENT EXPENSE 010 | N/A | N/A | N/A | N/A | | |
| HUMNSERV | HUMAN SERVICES 119 | N/A | N/A | N/A | N/A | | |
| SLDREL | SOLDIERS RELIEF 121 | N/A | N/A | N/A | N/A | | |
| EMERGSER | EMS 147 | N/A | N/A | N/A | N/A | | |
| EMSRFD | EMS REFUND 147 | N/A | N/A | N/A | N/A | | |
| FD4EXP | FD #4 EXPENSE 686 | N/A | N/A | N/A | N/A | | |
| RLBRFD | RURAL LIBRARY REFUND 623 | N/A | N/A | N/A | N/A | | |
| RURALLIB | RURAL LIBRARY 623 | N/A | N/A | N/A | N/A | | |
| PORTRFD | PORT REFUND 640 | N/A | N/A | N/A | N/A | | |
| PORTWWGEN | PORT OF WW 640 | N/A | N/A | N/A | N/A | | |
| SD140BOND | SD #140 BOND 764 | N/A | N/A | N/A | N/A | | |
| SD140GEN | SD #140 GENERAL 760 | N/A | N/A | N/A | N/A | | |
| ST2 | STATE SCHOOL PART 2 600 | N/A | N/A | N/A | N/A | | |
| STATESCHL | STATE SCHOOL 600 | N/A | N/A | N/A | N/A | | |
| STREFUND | STATE REFUND LEVY 603 | N/A | N/A | N/A | N/A | | |
| COROAD | COUNTY ROAD 115 | N/A | N/A | N/A | N/A | | |
| CRPRD | COUNTY ROAD REFUND 115 | N/A | N/A | N/A | N/A | | |
| | Total Tax Rate: | N/A | | | | | |
| | | | | Taxes w/Current Exemptions: | N/A | | |
| | | | | Taxes w/o Exemptions: | N/A | | |
Improvement / Building
| Improvement #1: | RESIDENTIAL | State Code: | 11 | 1980.0 sqft | Value: | N/A |
| Exterior Wall: | SIDING | Heating/Cooling: | FORCED AIR | | Number of Bathrooms: | 2 | Number of Bedrooms: | 4 | | Plumbing: | 8 | Roof Covering: | COMP SHINGLE |
|
| | Type | Description | Class CD | Sub Class CD | Year Built | Area |
| | MA | Main Area | 4 | 35 | 1919 | 1980.0 |
| | SI1 | SITE IMPROVEMENT | 4 | 35 | 0 | 2.0 |
| | BASE | BASEMENT | 4 | 35 | 1919 | 1380.0 |
| | CPCG | CARPORT/ GABLE ROOF | 4 | 35 | 1919 | 272.0 |
| | RPS | PORCH W/STEPS,ROOF | 4 | 35 | 1919 | 180.0 |
| | UTST | Utility Storage Shed | 4 | 35 | 1919 | 936.0 |
| | HAYSHED | HAYSHED | 4 | 35 | 1919 | 576.0 |
| | UTST | Utility Storage Shed | 4 | 35 | 1919 | 224.0 |
| | BNV | BUILDING NO VALUE | 4 | 35 | 1919 | 520.0 |
Sketch
Property Image
Land
| 1 | RES 1 | Converted: Residential | 5.7930 | 252343.08 | 0.00 | 0.00 | 1.00 | N/A | N/A |
Roll Value History
| 2026 | N/A | N/A | N/A | N/A | N/A |
| 2025 | $323,440 | $183,170 | $0 | $506,610 | $506,610 |
| 2024 | $308,040 | $183,170 | $0 | $491,210 | $491,210 |
| 2023 | $308,040 | $183,170 | $0 | $491,210 | $491,210 |
| 2022 | $362,400 | $94,200 | $0 | $456,600 | $456,600 |
| 2021 | $207,080 | $94,200 | $0 | $301,280 | $301,280 |
| 2020 | $207,080 | $94,200 | $0 | $301,280 | $301,280 |
| 2019 | $207,080 | $94,200 | $0 | $301,280 | $301,280 |
| 2018 | $197,220 | $94,200 | $0 | $291,420 | $291,420 |
| 2017 | $151,710 | $94,200 | $0 | $245,910 | $245,910 |
| 2016 | $151,510 | $94,400 | $0 | $245,910 | $245,910 |
| 2015 | $151,510 | $94,400 | $0 | $245,910 | $245,910 |
| 2014 | $147,100 | $94,400 | $0 | $241,500 | $241,500 |
| 2013 | $147,100 | $94,400 | $0 | $241,500 | $241,500 |
| 2012 | $147,100 | $94,400 | $0 | $0 | $0 |
| 2011 | $135,400 | $94,400 | $0 | $0 | $0 |
| 2010 | $135,400 | $94,400 | $0 | $0 | $0 |
| 2009 | $160,900 | $94,400 | $0 | $0 | $0 |
| 2008 | $160,900 | $94,400 | $0 | $0 | $0 |
| 2007 | $131,000 | $61,000 | $0 | $0 | $0 |
Deed and Sales History
| 1 | 02/07/2017 | EASE | EASEMENT | UDENBERG JOHN & CATHERINE | WALLA WALLA COUNTY OF | | | | 131847 | 2017-00856 |
| 2 | 08/28/1998 | WARRANTY D | WARRANTY DEED | | | | | $210,000.00 | 91143 | 2729-809938 |
|   | |
Payout Agreement
| No payout information available.. |