Property
Account |
| Property ID: | 31343 | Abbreviated Legal Description: | 26-7-37 S 100' OF TAX 16 |
| Parcel Number: | 370726320016 | Agent Code: | |
| Type: | Real | | |
| Tax Area: | 101 - 140-4 | Land Use Code | 11 |
| Open Space: | N | DFL | N |
| Historic Property: | N | Remodel Property: | N |
| Multi-Family Redevelopment: | N | | |
| Township: | 7 | Section: | 26 |
| Range: | 37 |
Location |
| Address: | 6652 MILL CREEK RD WA 99362 | Mapsco: | |
| Neighborhood: | Res G MH-Rural
rural | Map ID: | |
| Neighborhood CD: | 414063 |
Owner |
| Name: | JESSEE THOMAS C | Owner ID: | 13708 |
| Mailing Address: | 6652 MILL CREEK RD WALLA WALLA, WA 99362 | % Ownership: | 100.0000000000% |
| | | Exemptions: | SNR/DSBL |
Taxes and Assessment Details
Property Tax Information as of
02/21/2026
Click on "Statement Details" to expand or collapse a tax statement.
* Please enter a valid date ** Please enter a valid date *
Statement Details |
| | TOTAL: | $0.00 | $0.00 | $0.00 | $0.00 | $0.00 | $0.00 |
|
| | $0.00 | $0.00 | $0.00 | $0.00 | $0.00 | $0.00 |
Values
| (+) Improvement Homesite Value: | + | $123,040 | |
| (+) Improvement Non-Homesite Value: | + | $0 | |
| (+) Land Homesite Value: | + | $142,470 | |
| (+) Land Non-Homesite Value: | + | $0 | |
| (+) Curr Use (HS): | + | $0 | $0 |
| (+) Curr Use (NHS): | + | $0 | $0 |
| | | -------------------------- | |
| (=) Market Value: | = | $265,510 | |
| (–) Productivity Loss: | – | $0 | |
| | | -------------------------- | |
| (=) Subtotal: | = | $265,510 | |
| (+) Senior Appraised Value: | + | $136,700 | |
| (+) Non-Senior Appraised Value: | + | $0 | |
| | | -------------------------- | |
| (=) Total Appraised Value: | = | $136,700 | |
| (–) Senior Exemption Loss: | – | $82,020 | |
| (–) Exemption Loss: | – | $0 | |
| | | -------------------------- | |
| (=) Taxable Value: | = | $54,680 | |
Taxing Jurisdiction
| Owner: | JESSEE THOMAS C | | |
| % Ownership: | 100.0000000000% | | |
| Total Value: | $265,510 | | |
| Tax Area: | 101 - 140-4 |
| CERFD | CURRENT EXPENSE REFUND 010 | 0.0000000000 | $265,510 | $54,680 | $0.00 | | |
| CURREXP | CURRENT EXPENSE 010 | 1.0175366760 | $265,510 | $54,680 | $221.52 | | |
| HUMNSERV | HUMAN SERVICES 119 | 0.0250000000 | $265,510 | $54,680 | $5.44 | | |
| SLDREL | SOLDIERS RELIEF 121 | 0.0155990005 | $265,510 | $54,680 | $3.40 | | |
| EMERGSER | EMS 147 | 0.3792580840 | $265,510 | $54,680 | $82.56 | | |
| EMSRFD | EMS REFUND 147 | 0.0000000000 | $265,510 | $54,680 | $0.00 | | |
| FD4EXP | FD #4 EXPENSE 686 | 0.8836993059 | $265,510 | $54,680 | $192.38 | | |
| RLBRFD | RURAL LIBRARY REFUND 623 | 0.0000000000 | $265,510 | $54,680 | $0.00 | | |
| RURALLIB | RURAL LIBRARY 623 | 0.3710609029 | $265,510 | $54,680 | $80.78 | | |
| PORTRFD | PORT REFUND 640 | 0.0000000000 | $265,510 | $54,680 | $0.00 | | |
| PORTWWGEN | PORT OF WW 640 | 0.2460186015 | $265,510 | $54,680 | $53.56 | | |
| SD140BOND | SD #140 BOND 764 | 0.0000000000 | $265,510 | $0 | $171.27 | | |
| SD140GEN | SD #140 GENERAL 760 | 0.0000000000 | $265,510 | $0 | $423.87 | | |
| ST2 | STATE SCHOOL PART 2 600 | 0.0000000000 | $265,510 | $0 | $166.94 | | |
| STATESCHL | STATE SCHOOL 600 | 1.5158548041 | $265,510 | $54,680 | $330.00 | | |
| STREFUND | STATE REFUND LEVY 603 | 0.0000000000 | $265,510 | $54,680 | $0.00 | | |
| COROAD | COUNTY ROAD 115 | 1.6549953990 | $265,510 | $54,680 | $360.29 | | |
| CRPRD | COUNTY ROAD REFUND 115 | 0.0000000000 | $265,510 | $54,680 | $0.00 | | |
| | Total Tax Rate: | 6.1090227739 | | | | | |
| | | | | Taxes w/Current Exemptions: | $2,092.01 | | |
| | | | | Taxes w/o Exemptions: | $2,607.60 | | |
Improvement / Building
| Improvement #1: | MANUFACTURED HOME | State Code: | 11 | 1028.0 sqft | Value: | $123,040 |
| Exterior Wall: | RIBBED ALUMINUM | Heating/Cooling: | HEAT PUMP | | Number of Bathrooms: | 2 | Number of Bedrooms: | 2 | | Plumbing: | 9 | Roof Covering: | GALVANIZED METAL |
|
| | Type | Description | Class CD | Sub Class CD | Year Built | Area |
| | MOBHOME | MANUFACTURD HOMES | 1 | 20 | 1987 | 1028.0 |
| | CPC | COVERED CARPORT/PATIO | 1 | 20 | 0 | 480.0 |
| | MI1 | MH SET-UP COSTS | 1 | 20 | 0 | 1.0 |
| | UTST | Utility Storage Shed | 1 | 20 | 1987 | 340.0 |
| | WOD | Wood Deck | 1 | 20 | 1987 | 60.0 |
Sketch
Property Image
Land
| 1 | RES 1 | Converted: Residential | 1.1000 | 0.00 | 0.00 | 0.00 | 1.00 | $142,470 | $0 |
Roll Value History
| 2026 | N/A | N/A | N/A | N/A | N/A |
| 2025 | $129,190 | $142,470 | $0 | $271,660 | $271,660 |
| 2024 | $123,040 | $142,470 | $0 | $265,510 | $265,510 |
| 2023 | $123,040 | $142,470 | $0 | $265,510 | $54,680 |
| 2022 | $175,770 | $75,400 | $0 | $251,170 | $54,680 |
| 2021 | $140,610 | $75,400 | $0 | $216,010 | $54,680 |
| 2020 | $82,710 | $75,400 | $0 | $158,110 | $54,680 |
| 2019 | $82,710 | $75,400 | $0 | $158,110 | $54,680 |
| 2018 | $78,770 | $75,400 | $0 | $154,170 | $54,680 |
| 2017 | $65,650 | $75,400 | $0 | $141,050 | $54,680 |
| 2016 | $61,300 | $75,400 | $0 | $136,700 | $54,680 |
| 2015 | $61,300 | $75,400 | $0 | $136,700 | $136,700 |
| 2014 | $61,300 | $75,400 | $0 | $136,700 | $136,700 |
| 2013 | $61,300 | $75,400 | $0 | $136,700 | $136,700 |
| 2012 | $61,300 | $75,400 | $0 | $0 | $0 |
| 2011 | $46,200 | $75,400 | $0 | $0 | $0 |
| 2010 | $46,200 | $75,400 | $0 | $0 | $0 |
| 2009 | $46,200 | $75,400 | $0 | $0 | $0 |
| 2008 | $46,200 | $75,400 | $0 | $0 | $0 |
| 2007 | $31,900 | $44,400 | $0 | $0 | $0 |
Deed and Sales History
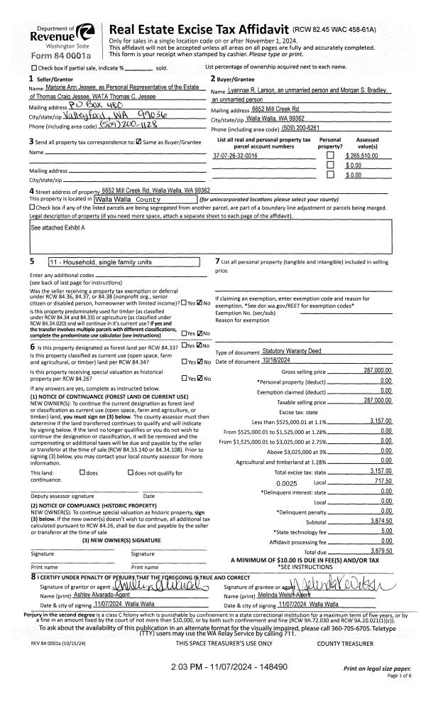
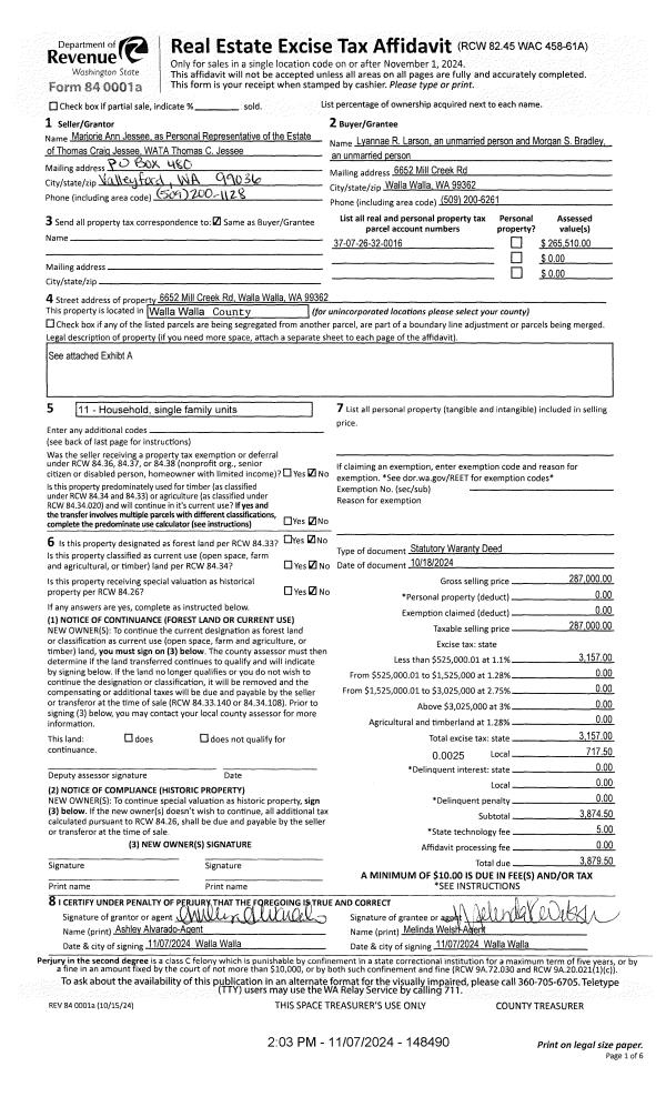
| 1 | 11/07/2024 | SWD | STATUTORY WARRANTY DEED | JESSEE THOMAS C | LARSON LYANNAE R | | | $287,000.00 | 148490 | 2024-06513 |
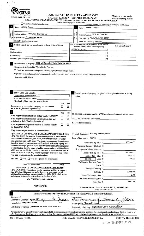
| 2 | 09/23/2016 | SWD | STATUTORY WARRANTY DEED | JESSEE MARJORIE A | JESSEE THOMAS C | | | $160,000.00 | 131094 | 2016-07772 |
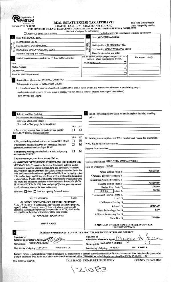
| 3 | 12/05/2011 | WARRANTY D | WARRANTY DEED | BERG, NICHOLAS L & ELIZABETH D | JESSEE, MARJORIE A | | | $133,000.00 | 121083 | 2011-09548 |
| 4 | 03/10/2009 | WARRANTY D | WARRANTY DEED | ELLISON, DONALD & DONNA | BERG, NICHOLAS L & ELIZABETH D | | | $0.00 | 116449 | -116449 |
| 5 | 03/10/2009 | WARRANTY D | WARRANTY DEED | ELLISON, DONALD L & LA DONNA | BERG, NICHOLAS L & ELIZABETH D | | | $145,000.00 | 116450 | 2009-02304 |
| 6 | 02/20/1987 | WARRANTY D | WARRANTY DEED | | | | | $43,000.00 | 0 | 1628-701342 |
Payout Agreement
| No payout information available.. |