Property
Account |
| Property ID: | 31334 | Abbreviated Legal Description: | 26-7-37 PARCEL 1 OF S/P (SLY PTN OF TAX 2 LY DIRECTLY W OF OAKMANOR ESTATES LESS NLY PTN SOLD, ALL WITHIN SW1/4NW1/4) |
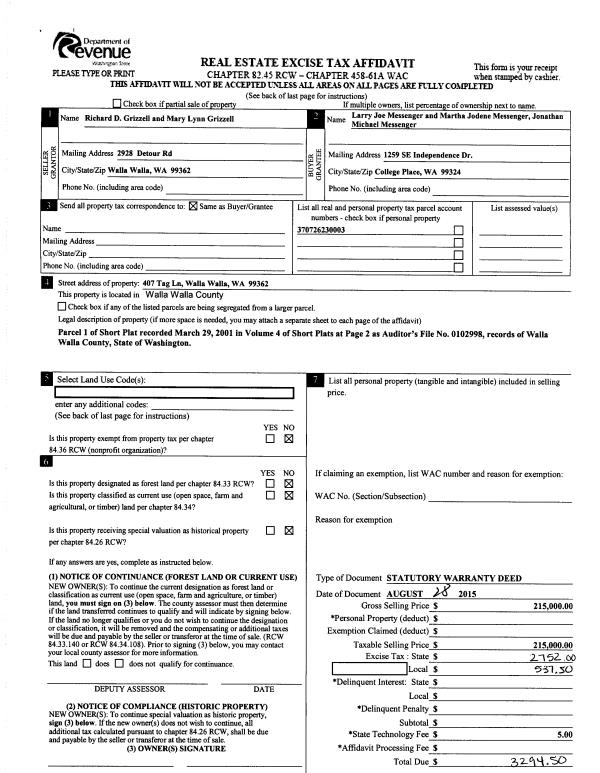
| Parcel Number: | 370726230003 | Agent Code: | |
| Type: | Real | | |
| Tax Area: | 101 - 140-4 | Land Use Code | 18 |
| Open Space: | N | DFL | N |
| Historic Property: | N | Remodel Property: | N |
| Multi-Family Redevelopment: | N | | |
| Township: | 7 | Section: | 26 |
| Range: | 37 |
Location |
| Address: | 407 TAG LN WA 99362 | Mapsco: | |
| Neighborhood: | VG Res Lnd Rural/City Inf | Map ID: | |
| Neighborhood CD: | 415092 |
Owner |
| Name: | MESSENGER LARRY JOE & MARTHA JODENE | Owner ID: | 57336 |
| Mailing Address: | JONATHAN MICHAEL MESSENGER PO BOX 115 COLLEGE PLACE, WA 99324 | % Ownership: | 100.0000000000% |
| | | Exemptions: | |
Taxes and Assessment Details
Property Tax Information as of
02/21/2026
Click on "Statement Details" to expand or collapse a tax statement.
* Please enter a valid date ** Please enter a valid date *
Statement Details |
| | TOTAL: | $0.00 | $0.00 | $0.00 | $0.00 | $0.00 | $0.00 |
|
| | $0.00 | $0.00 | $0.00 | $0.00 | $0.00 | $0.00 |
Values
| (+) Improvement Homesite Value: | + | $0 | |
| (+) Improvement Non-Homesite Value: | + | $8,090 | |
| (+) Land Homesite Value: | + | $0 | |
| (+) Land Non-Homesite Value: | + | $257,890 | |
| (+) Curr Use (HS): | + | $0 | $0 |
| (+) Curr Use (NHS): | + | $0 | $0 |
| | | -------------------------- | |
| (=) Market Value: | = | $265,980 | |
| (–) Productivity Loss: | – | $0 | |
| | | -------------------------- | |
| (=) Subtotal: | = | $265,980 | |
| (+) Senior Appraised Value: | + | $0 | |
| (+) Non-Senior Appraised Value: | + | $265,980 | |
| | | -------------------------- | |
| (=) Total Appraised Value: | = | $265,980 | |
| (–) Senior Exemption Loss: | – | $0 | |
| (–) Exemption Loss: | – | $0 | |
| | | -------------------------- | |
| (=) Taxable Value: | = | $265,980 | |
Taxing Jurisdiction
| Owner: | MESSENGER LARRY JOE & MARTHA JODENE | | |
| % Ownership: | 100.0000000000% | | |
| Total Value: | $265,980 | | |
| Tax Area: | 101 - 140-4 |
| CERFD | CURRENT EXPENSE REFUND 010 | 0.0000000000 | $265,980 | $265,980 | $0.00 | | |
| CURREXP | CURRENT EXPENSE 010 | 1.0175366760 | $265,980 | $265,980 | $270.64 | | |
| HUMNSERV | HUMAN SERVICES 119 | 0.0250000000 | $265,980 | $265,980 | $6.65 | | |
| SLDREL | SOLDIERS RELIEF 121 | 0.0155990005 | $265,980 | $265,980 | $4.15 | | |
| EMERGSER | EMS 147 | 0.3792580840 | $265,980 | $265,980 | $100.88 | | |
| EMSRFD | EMS REFUND 147 | 0.0000000000 | $265,980 | $265,980 | $0.00 | | |
| FD4EXP | FD #4 EXPENSE 686 | 0.8836993059 | $265,980 | $265,980 | $235.05 | | |
| RLBRFD | RURAL LIBRARY REFUND 623 | 0.0000000000 | $265,980 | $265,980 | $0.00 | | |
| RURALLIB | RURAL LIBRARY 623 | 0.3710609029 | $265,980 | $265,980 | $98.69 | | |
| PORTRFD | PORT REFUND 640 | 0.0000000000 | $265,980 | $265,980 | $0.00 | | |
| PORTWWGEN | PORT OF WW 640 | 0.2460186015 | $265,980 | $265,980 | $65.44 | | |
| SD140BOND | SD #140 BOND 764 | 0.8342371393 | $265,980 | $265,980 | $221.89 | | |
| SD140GEN | SD #140 GENERAL 760 | 2.0646500647 | $265,980 | $265,980 | $549.16 | | |
| ST2 | STATE SCHOOL PART 2 600 | 0.8131451643 | $265,980 | $265,980 | $216.28 | | |
| STATESCHL | STATE SCHOOL 600 | 1.5158548041 | $265,980 | $265,980 | $403.19 | | |
| STREFUND | STATE REFUND LEVY 603 | 0.0000000000 | $265,980 | $265,980 | $0.00 | | |
| COROAD | COUNTY ROAD 115 | 1.6549953990 | $265,980 | $265,980 | $440.20 | | |
| CRPRD | COUNTY ROAD REFUND 115 | 0.0000000000 | $265,980 | $265,980 | $0.00 | | |
| | Total Tax Rate: | 9.8210551422 | | | | | |
| | | | | Taxes w/Current Exemptions: | $2,612.22 | | |
| | | | | Taxes w/o Exemptions: | $2,612.22 | | |
Improvement / Building
| Improvement #1: | RESIDENTIAL | State Code: | 18 | 0.0 sqft | Value: | $8,090 |
| | Type | Description | Class CD | Sub Class CD | Year Built | Area |
| | TOOL | TOOL SHED | 1 | 30 | 2021 | 144.0 |
| | SI1 | SITE IMPROVEMENT | 1 | 30 | 2021 | 1.0 |
Sketch
| No sketches available for this property. |
Property Image
Land
| 1 | RES 1 | Converted: Residential | 10.5900 | 0.00 | 0.00 | 0.00 | 1.00 | $257,890 | $0 |
Roll Value History
| 2026 | N/A | N/A | N/A | N/A | N/A |
| 2025 | $8,090 | $257,890 | $0 | $265,980 | $265,980 |
| 2024 | $8,090 | $257,890 | $0 | $265,980 | $265,980 |
| 2023 | $8,090 | $257,890 | $0 | $265,980 | $265,980 |
| 2022 | $0 | $159,100 | $0 | $159,100 | $159,100 |
| 2021 | $0 | $159,100 | $0 | $159,100 | $159,100 |
| 2020 | $0 | $159,100 | $0 | $159,100 | $159,100 |
| 2019 | $0 | $159,100 | $0 | $159,100 | $159,100 |
| 2018 | $0 | $159,100 | $0 | $159,100 | $159,100 |
| 2017 | $0 | $159,100 | $0 | $159,100 | $159,100 |
| 2016 | $0 | $159,100 | $0 | $159,100 | $159,100 |
| 2015 | $0 | $159,100 | $0 | $159,100 | $159,100 |
| 2014 | $0 | $159,100 | $0 | $159,100 | $159,100 |
| 2013 | $0 | $159,100 | $0 | $159,100 | $159,100 |
| 2012 | $0 | $159,100 | $0 | $0 | $0 |
| 2011 | $0 | $159,100 | $0 | $0 | $0 |
| 2010 | $0 | $159,100 | $0 | $0 | $0 |
| 2009 | $0 | $159,100 | $0 | $0 | $0 |
| 2008 | $0 | $161,700 | $0 | $0 | $0 |
| 2007 | $0 | $49,200 | $0 | $0 | $0 |
Deed and Sales History
| 1 | 09/03/2015 | SWD | STATUTORY WARRANTY DEED | GRIZZELL RICHARD | MESSENGER LARRY JOE & MARTHA JODENE | | | $215,000.00 | 128758 | 2015-07767 |
Payout Agreement
| No payout information available.. |