| 1 | 04/29/2025 | QCD | QUIT CLAIM DEED | DALKE ROBERT STEVEN & HEA-KYUNG | DALKE JUSTIN C & TARA EVANGER DALKE | | | | 149306 | 2025-02294 |
| 2 | 02/07/2024 | VAC | FINAL ORDER OF VACATION | WALLA WALLA COUNTY OF | DALKE ROBERT STEVEN & HEA-KYUNG | | | | 0 | 2024-00631 |
| 3 | 01/30/2024 | EASE | EASEMENT | DALKE ROBERT STEVEN & HEA-KYUNG | WALLA WALLA COUNTY OF | | | | 147084 | 2024-00484 |
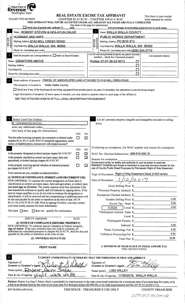
| 4 | 01/13/2017 | EASE | EASEMENT | DALKE ROBERT STEVEN & HEA-KYUNG | WALLA WALLA COUNTY OF | | | | 131770 | 2017-00360 |
| 5 | 03/04/2015 | SWD | STATUTORY WARRANTY DEED | VOTH RICK | DALKE ROBERT STEVEN & HEA-KYUNG | | 2-PARCELS | $790,000.00 | 127520 | 2015-01859 |
|   | |
| 6 | 06/12/2007 | WARRANTY D | WARRANTY DEED | TENER, MICHAEL T & NANETTE M | VOTH RICK | | | $700,000.00 | 113034 | 2007-06678 |
|   | |
| 7 | 08/17/2004 | WARRANTY D | WARRANTY DEED | SISLOW, JOHN G & CLARE C | TENER MICHAEL T & NANETTE M | | | $449,500.00 | 105509 | 2004-09448 |
|   | |
| 8 | 11/30/1990 | WARRANTY D | WARRANTY DEED | | | | | $225,000.00 | 0 | 1869-008381 |
|   | |