Property
Account |
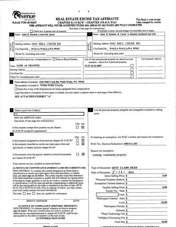
| Property ID: | 31322 | Abbreviated Legal Description: | 23-7-37 TRACT A OF S/P, PLUS PTN FROM TAX 6, LESS STRIPS |
| Parcel Number: | 370722410007 | Agent Code: | |
| Type: | Real | | |
| Tax Area: | 101 - 140-4 | Land Use Code | 11 |
| Open Space: | N | DFL | N |
| Historic Property: | N | Remodel Property: | N |
| Multi-Family Redevelopment: | N | | |
| Township: | 7 | Section: | 22 |
| Range: | 37 |
Location |
| Address: | 5442 MILL CREEK RD WA 99362 | Mapsco: | |
| Neighborhood: | VG Res Rural/City Inf | Map ID: | |
| Neighborhood CD: | 415012 |
Owner |
| Name: | KNOBEL CAROL A | Owner ID: | 70633 |
| Mailing Address: | 5442 MILL CREEK RD WALLA WALLA, WA 99362 | % Ownership: | 100.0000000000% |
| | | Exemptions: | |
Taxes and Assessment Details
Property Tax Information as of
02/21/2026
Click on "Statement Details" to expand or collapse a tax statement.
* Please enter a valid date ** Please enter a valid date *
Statement Details |
| | TOTAL: | $0.00 | $0.00 | $0.00 | $0.00 | $0.00 | $0.00 |
|
| | $0.00 | $0.00 | $0.00 | $0.00 | $0.00 | $0.00 |
Values
| (+) Improvement Homesite Value: | + | $0 | |
| (+) Improvement Non-Homesite Value: | + | $195,350 | |
| (+) Land Homesite Value: | + | $0 | |
| (+) Land Non-Homesite Value: | + | $250,110 | |
| (+) Curr Use (HS): | + | $0 | $0 |
| (+) Curr Use (NHS): | + | $0 | $0 |
| | | -------------------------- | |
| (=) Market Value: | = | $445,460 | |
| (–) Productivity Loss: | – | $0 | |
| | | -------------------------- | |
| (=) Subtotal: | = | $445,460 | |
| (+) Senior Appraised Value: | + | $0 | |
| (+) Non-Senior Appraised Value: | + | $445,460 | |
| | | -------------------------- | |
| (=) Total Appraised Value: | = | $445,460 | |
| (–) Senior Exemption Loss: | – | $0 | |
| (–) Exemption Loss: | – | $0 | |
| | | -------------------------- | |
| (=) Taxable Value: | = | $445,460 | |
Taxing Jurisdiction
| Owner: | KNOBEL CAROL A | | |
| % Ownership: | 100.0000000000% | | |
| Total Value: | $445,460 | | |
| Tax Area: | 101 - 140-4 |
| CERFD | CURRENT EXPENSE REFUND 010 | 0.0000000000 | $445,460 | $445,460 | $0.00 | | |
| CURREXP | CURRENT EXPENSE 010 | 1.0175366760 | $445,460 | $445,460 | $453.27 | | |
| HUMNSERV | HUMAN SERVICES 119 | 0.0250000000 | $445,460 | $445,460 | $11.14 | | |
| SLDREL | SOLDIERS RELIEF 121 | 0.0155990005 | $445,460 | $445,460 | $6.95 | | |
| EMERGSER | EMS 147 | 0.3792580840 | $445,460 | $445,460 | $168.94 | | |
| EMSRFD | EMS REFUND 147 | 0.0000000000 | $445,460 | $445,460 | $0.00 | | |
| FD4EXP | FD #4 EXPENSE 686 | 0.8836993059 | $445,460 | $445,460 | $393.65 | | |
| RLBRFD | RURAL LIBRARY REFUND 623 | 0.0000000000 | $445,460 | $445,460 | $0.00 | | |
| RURALLIB | RURAL LIBRARY 623 | 0.3710609029 | $445,460 | $445,460 | $165.29 | | |
| PORTRFD | PORT REFUND 640 | 0.0000000000 | $445,460 | $445,460 | $0.00 | | |
| PORTWWGEN | PORT OF WW 640 | 0.2460186015 | $445,460 | $445,460 | $109.59 | | |
| SD140BOND | SD #140 BOND 764 | 0.8342371393 | $445,460 | $445,460 | $371.62 | | |
| SD140GEN | SD #140 GENERAL 760 | 2.0646500647 | $445,460 | $445,460 | $919.72 | | |
| ST2 | STATE SCHOOL PART 2 600 | 0.8131451643 | $445,460 | $445,460 | $362.22 | | |
| STATESCHL | STATE SCHOOL 600 | 1.5158548041 | $445,460 | $445,460 | $675.25 | | |
| STREFUND | STATE REFUND LEVY 603 | 0.0000000000 | $445,460 | $445,460 | $0.00 | | |
| COROAD | COUNTY ROAD 115 | 1.6549953990 | $445,460 | $445,460 | $737.23 | | |
| CRPRD | COUNTY ROAD REFUND 115 | 0.0000000000 | $445,460 | $445,460 | $0.00 | | |
| | Total Tax Rate: | 9.8210551422 | | | | | |
| | | | | Taxes w/Current Exemptions: | $4,374.87 | | |
| | | | | Taxes w/o Exemptions: | $4,374.87 | | |
Improvement / Building
| Improvement #1: | RESIDENTIAL | State Code: | 11 | 1500.0 sqft | Value: | $195,350 |
| Exterior Wall: | HARDBOARD | Heating/Cooling: | FORCED AIR | | Number of Bathrooms: | 2 | Number of Bedrooms: | 3 | | Plumbing: | 8 | Roof Covering: | COMP SHINGLE |
|
| | Type | Description | Class CD | Sub Class CD | Year Built | Area |
| | MA | Main Area | 1 | 30 | 1981 | 1500.0 |
| | SI1 | SITE IMPROVEMENT | 1 | 30 | 1981 | 3.0 |
| | BASE | BASEMENT | 1 | 30 | 1981 | 1200.0 |
| | BMF | BASEMENT - MIN FINISH | 1 | 30 | 1981 | 1200.0 |
| | WOD | Wood Deck | 1 | 30 | 1981 | 462.0 |
| | WOD | Wood Deck | 1 | 30 | 2020 | 264.0 |
| | POL2 | POLE BUILDING-CONCRETE | 1 | 30 | 1981 | 720.0 |
| | UTST | Utility Storage Shed | 1 | 30 | 1981 | 80.0 |
| | BNV | BUILDING NO VALUE | 1 | 30 | 0 | 400.0 |
| | LNT | LEAN TO DIRT FLOOR | 1 | 30 | 1981 | 576.0 |
| | POL3 | POLE BUILDING-CON,ELEC,INSU | 1 | 30 | 2012 | 800.0 |
| | POL1 | POLE BUILDING-GRAVEL | 1 | 30 | 2012 | 1600.0 |
Sketch
Property Image
Land
| 1 | RES 1 | Converted: Residential | 9.4300 | 0.00 | 0.00 | 0.00 | 1.00 | $250,110 | $0 |
Roll Value History
| 2026 | N/A | N/A | N/A | N/A | N/A |
| 2025 | $214,880 | $250,110 | $0 | $464,990 | $464,990 |
| 2024 | $195,350 | $250,110 | $0 | $445,460 | $445,460 |
| 2023 | $195,350 | $250,110 | $0 | $445,460 | $445,460 |
| 2022 | $279,070 | $152,400 | $0 | $431,470 | $431,470 |
| 2021 | $206,720 | $152,400 | $0 | $359,120 | $359,120 |
| 2020 | $179,760 | $152,400 | $0 | $332,160 | $332,160 |
| 2019 | $179,760 | $152,400 | $0 | $332,160 | $332,160 |
| 2018 | $156,310 | $152,400 | $0 | $308,710 | $308,710 |
| 2017 | $156,310 | $152,400 | $0 | $308,710 | $308,710 |
| 2016 | $156,310 | $152,400 | $0 | $308,710 | $308,710 |
| 2015 | $156,310 | $152,400 | $0 | $308,710 | $308,710 |
| 2014 | $142,100 | $152,400 | $0 | $294,500 | $294,500 |
| 2013 | $142,100 | $152,400 | $0 | $294,500 | $294,500 |
| 2012 | $142,100 | $152,400 | $0 | $0 | $0 |
| 2011 | $142,100 | $152,400 | $0 | $0 | $0 |
| 2010 | $142,100 | $152,400 | $0 | $0 | $0 |
| 2009 | $157,600 | $152,400 | $0 | $0 | $0 |
| 2008 | $157,600 | $152,400 | $0 | $0 | $0 |
| 2007 | $105,300 | $45,800 | $0 | $0 | $0 |
Deed and Sales History
| 1 | 11/30/2021 | DEATH CERT | DEATH CERTIFICATE | KNOBEL JOHN EDWARD ESTATE OF | KNOBEL CAROL A | | | | 0 | 2021-14123 |
| 2 | 05/13/2014 | QCD | QUIT CLAIM DEED | KNOBEL JOHN E | KNOBEL JOHN EDWARD ESTATE OF | | | | 125877 | 2014-03249 |
| 3 | 04/20/2004 | WARRANTY D | WARRANTY DEED | FULLEN, MARK B | KNOBEL, JOHN E | | | $276,350.00 | 104538 | 2004-04190 |
| 4 | 04/20/2004 | WARRANTY D | WARRANTY DEED | FULLEN, MARK B | KNOBEL, JOHN E | | | $52,650.00 | 104539 | 2004-04191 |
| 5 | 01/16/2004 | QCD | QUIT CLAIM DEED | LYONS, ED & GLADYS | FULLEN, MARK & JOAN | | | | 103935 | 2004-00532 |
| 6 | 01/16/2004 | QCD | QUIT CLAIM DEED | LYONS, ED & GLADYS | FULLEN, MARK & JOAN FULLEN | | | | 103936 | 2004-00533 |
Payout Agreement
| No payout information available.. |