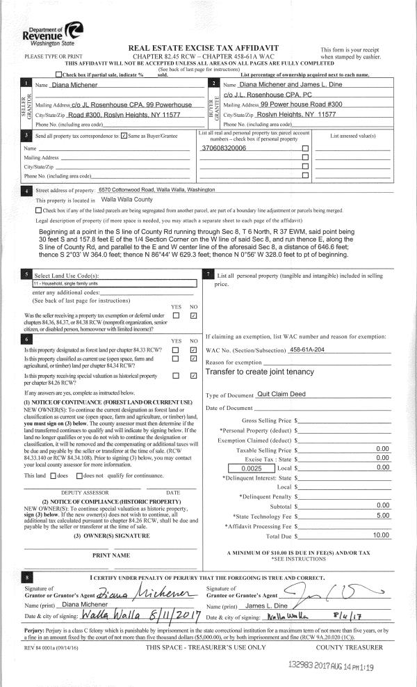
Property
Account |
| Property ID: | 31225 | Abbreviated Legal Description: | METES AND BOUNDS |
| Parcel Number: | 370608320006 | Agent Code: | |
| Type: | Real | | |
| Tax Area: | 101 - 140-4 | Land Use Code | 11 |
| Open Space: | N | DFL | N |
| Historic Property: | N | Remodel Property: | N |
| Multi-Family Redevelopment: | N | | |
| Township: | 6 | Section: | 8 |
| Range: | 37 |
Location |
| Address: | 6570 COTTONWOOD RD WA 99362 | Mapsco: | |
| Neighborhood: | Cycle 4 Excellent (A) R | Map ID: | |
| Neighborhood CD: | 416013 |
Owner |
| Name: | DINE JAMES L | Owner ID: | 61517 |
| Mailing Address: | DIANA MICHENER 99 POWER HOUSE RD #300 ROSLYN HEIGHTS, NY 11577 | % Ownership: | 100.0000000000% |
| | | Exemptions: | |
Taxes and Assessment Details
Property Tax Information as of
02/21/2026
Click on "Statement Details" to expand or collapse a tax statement.
* Please enter a valid date ** Please enter a valid date *
Statement Details |
| | TOTAL: | $0.00 | $0.00 | $0.00 | $0.00 | $0.00 | $0.00 |
|
| | $0.00 | $0.00 | $0.00 | $0.00 | $0.00 | $0.00 |
Values
| (+) Improvement Homesite Value: | + | $0 | |
| (+) Improvement Non-Homesite Value: | + | $422,220 | |
| (+) Land Homesite Value: | + | $0 | |
| (+) Land Non-Homesite Value: | + | $232,000 | |
| (+) Curr Use (HS): | + | $0 | $0 |
| (+) Curr Use (NHS): | + | $0 | $0 |
| | | -------------------------- | |
| (=) Market Value: | = | $654,220 | |
| (–) Productivity Loss: | – | $0 | |
| | | -------------------------- | |
| (=) Subtotal: | = | $654,220 | |
| (+) Senior Appraised Value: | + | $0 | |
| (+) Non-Senior Appraised Value: | + | $654,220 | |
| | | -------------------------- | |
| (=) Total Appraised Value: | = | $654,220 | |
| (–) Senior Exemption Loss: | – | $0 | |
| (–) Exemption Loss: | – | $0 | |
| | | -------------------------- | |
| (=) Taxable Value: | = | $654,220 | |
Taxing Jurisdiction
| Owner: | DINE JAMES L | | |
| % Ownership: | 100.0000000000% | | |
| Total Value: | $654,220 | | |
| Tax Area: | 101 - 140-4 |
| CERFD | CURRENT EXPENSE REFUND 010 | 0.0000000000 | $654,220 | $654,220 | $0.00 | | |
| CURREXP | CURRENT EXPENSE 010 | 1.0175366760 | $654,220 | $654,220 | $665.69 | | |
| HUMNSERV | HUMAN SERVICES 119 | 0.0250000000 | $654,220 | $654,220 | $16.36 | | |
| SLDREL | SOLDIERS RELIEF 121 | 0.0155990005 | $654,220 | $654,220 | $10.21 | | |
| EMERGSER | EMS 147 | 0.3792580840 | $654,220 | $654,220 | $248.12 | | |
| EMSRFD | EMS REFUND 147 | 0.0000000000 | $654,220 | $654,220 | $0.00 | | |
| FD4EXP | FD #4 EXPENSE 686 | 0.8836993059 | $654,220 | $654,220 | $578.13 | | |
| RLBRFD | RURAL LIBRARY REFUND 623 | 0.0000000000 | $654,220 | $654,220 | $0.00 | | |
| RURALLIB | RURAL LIBRARY 623 | 0.3710609029 | $654,220 | $654,220 | $242.76 | | |
| PORTRFD | PORT REFUND 640 | 0.0000000000 | $654,220 | $654,220 | $0.00 | | |
| PORTWWGEN | PORT OF WW 640 | 0.2460186015 | $654,220 | $654,220 | $160.95 | | |
| SD140BOND | SD #140 BOND 764 | 0.8342371393 | $654,220 | $654,220 | $545.77 | | |
| SD140GEN | SD #140 GENERAL 760 | 2.0646500647 | $654,220 | $654,220 | $1,350.74 | | |
| ST2 | STATE SCHOOL PART 2 600 | 0.8131451643 | $654,220 | $654,220 | $531.98 | | |
| STATESCHL | STATE SCHOOL 600 | 1.5158548041 | $654,220 | $654,220 | $991.70 | | |
| STREFUND | STATE REFUND LEVY 603 | 0.0000000000 | $654,220 | $654,220 | $0.00 | | |
| COROAD | COUNTY ROAD 115 | 1.6549953990 | $654,220 | $654,220 | $1,082.73 | | |
| CRPRD | COUNTY ROAD REFUND 115 | 0.0000000000 | $654,220 | $654,220 | $0.00 | | |
| | Total Tax Rate: | 9.8210551422 | | | | | |
| | | | | Taxes w/Current Exemptions: | $6,425.14 | | |
| | | | | Taxes w/o Exemptions: | $6,425.14 | | |
Improvement / Building
| Improvement #1: | RESIDENTIAL | State Code: | 11 | 2558.0 sqft | Value: | $422,220 |
| Exterior Wall: | STUCCO | Heating/Cooling: | WARM & COOLED AIR | | Number of Bathrooms: | 3 | Number of Bedrooms: | 6 | | Plumbing: | 11 | Roof Covering: | COMP SHINGLE |
|
| | Type | Description | Class CD | Sub Class CD | Year Built | Area |
| | MA | Main Area | 4 | 50 | 1921 | 2558.0 |
| | SI1 | SITE IMPROVEMENT | 4 | 50 | 0 | 3.0 |
| | BASE | BASEMENT | 4 | 50 | 1921 | 1498.0 |
| | WOD | Wood Deck | 4 | 50 | 1921 | 256.0 |
| | UTST | Utility Storage Shed | 4 | 50 | 1921 | 120.0 |
| | UPFL | Upper Floor (included in main area) | 4 | 50 | 1921 | 960.0 |
Sketch
Property Image
Land
| 1 | RES 1 | Converted: Residential | 5.0000 | 0.00 | 0.00 | 0.00 | 1.00 | $232,000 | $0 |
Roll Value History
| 2026 | N/A | N/A | N/A | N/A | N/A |
| 2025 | $422,220 | $232,000 | $0 | $654,220 | $654,220 |
| 2024 | $422,220 | $232,000 | $0 | $654,220 | $654,220 |
| 2023 | $422,220 | $232,000 | $0 | $654,220 | $654,220 |
| 2022 | $496,730 | $117,000 | $0 | $613,730 | $613,730 |
| 2021 | $331,150 | $117,000 | $0 | $448,150 | $448,150 |
| 2020 | $301,050 | $117,000 | $0 | $418,050 | $418,050 |
| 2019 | $301,050 | $117,000 | $0 | $418,050 | $418,050 |
| 2018 | $286,710 | $117,000 | $0 | $403,710 | $403,710 |
| 2017 | $278,360 | $117,000 | $0 | $395,360 | $395,360 |
| 2016 | $278,360 | $117,000 | $0 | $395,360 | $395,360 |
| 2015 | $278,360 | $117,000 | $0 | $395,360 | $395,360 |
| 2014 | $265,100 | $117,000 | $0 | $382,100 | $382,100 |
| 2013 | $265,100 | $117,000 | $0 | $382,100 | $382,100 |
| 2012 | $265,100 | $117,000 | $0 | $0 | $0 |
| 2011 | $247,700 | $117,000 | $0 | $0 | $0 |
| 2010 | $247,700 | $117,000 | $0 | $0 | $0 |
| 2009 | $266,900 | $117,000 | $0 | $0 | $0 |
| 2008 | $266,900 | $117,000 | $0 | $0 | $0 |
| 2007 | $246,300 | $58,000 | $0 | $0 | $0 |
Deed and Sales History
| 1 | 08/11/2017 | QCD | QUIT CLAIM DEED | MICHENER DIANA | DINE JAMES L | | | $0.00 | 132983 | 2017-06203 |
| 2 | 02/24/2003 | WARRANTY D | WARRANTY DEED | CARMAN, F JOAN | MICHENER, DIANA | | | $325,000.00 | 101460 | 2003-02446 |
| 3 | 05/22/1974 | WARRANTY D | WARRANTY DEED | | | | | $45,000.00 | 0 | 1605-36983 |
Payout Agreement
| No payout information available.. |