Property
Account |
| Property ID: | 31221 | Abbreviated Legal Description: | 7-6-37 TAX 12 |
| Parcel Number: | 370607130013 | Agent Code: | |
| Type: | Real | | |
| Tax Area: | 101 - 140-4 | Land Use Code | 11 |
| Open Space: | N | DFL | N |
| Historic Property: | N | Remodel Property: | N |
| Multi-Family Redevelopment: | N | | |
| Township: | 6 | Section: | 7 |
| Range: | 37 |
Location |
| Address: | 6179 COTTONWOOD RD WA 99362 | Mapsco: | |
| Neighborhood: | Cycle 4 Excellent (A) R | Map ID: | |
| Neighborhood CD: | 416013 |
Owner |
| Name: | MCCAW JESSE JAY & KATE | Owner ID: | 69102 |
| Mailing Address: | 6179 COTTONWOOD RD WALLA WALLA, WA 99362 | % Ownership: | 100.0000000000% |
| | | Exemptions: | |
Taxes and Assessment Details
Property Tax Information as of
02/21/2026
Click on "Statement Details" to expand or collapse a tax statement.
* Please enter a valid date ** Please enter a valid date *
Statement Details |
| | TOTAL: | $0.00 | $0.00 | $0.00 | $0.00 | $0.00 | $0.00 |
|
| | $0.00 | $0.00 | $0.00 | $0.00 | $0.00 | $0.00 |
Values
| (+) Improvement Homesite Value: | + | $0 | |
| (+) Improvement Non-Homesite Value: | + | $650,540 | |
| (+) Land Homesite Value: | + | $0 | |
| (+) Land Non-Homesite Value: | + | $230,100 | |
| (+) Curr Use (HS): | + | $0 | $0 |
| (+) Curr Use (NHS): | + | $0 | $0 |
| | | -------------------------- | |
| (=) Market Value: | = | $880,640 | |
| (–) Productivity Loss: | – | $0 | |
| | | -------------------------- | |
| (=) Subtotal: | = | $880,640 | |
| (+) Senior Appraised Value: | + | $0 | |
| (+) Non-Senior Appraised Value: | + | $880,640 | |
| | | -------------------------- | |
| (=) Total Appraised Value: | = | $880,640 | |
| (–) Senior Exemption Loss: | – | $0 | |
| (–) Exemption Loss: | – | $0 | |
| | | -------------------------- | |
| (=) Taxable Value: | = | $880,640 | |
Taxing Jurisdiction
| Owner: | MCCAW JESSE JAY & KATE | | |
| % Ownership: | 100.0000000000% | | |
| Total Value: | $880,640 | | |
| Tax Area: | 101 - 140-4 |
| CERFD | CURRENT EXPENSE REFUND 010 | 0.0000000000 | $880,640 | $880,640 | $0.00 | | |
| CURREXP | CURRENT EXPENSE 010 | 0.9851088983 | $880,640 | $880,640 | $867.53 | | |
| HUMNSERV | HUMAN SERVICES 119 | 0.0250000000 | $880,640 | $880,640 | $22.02 | | |
| SLDREL | SOLDIERS RELIEF 121 | 0.0155990000 | $880,640 | $880,640 | $13.74 | | |
| EMERGSER | EMS 147 | 0.3676811629 | $880,640 | $880,640 | $323.79 | | |
| EMSRFD | EMS REFUND 147 | 0.0000000000 | $880,640 | $880,640 | $0.00 | | |
| FD4EXP | FD #4 EXPENSE 686 | 1.2367913128 | $880,640 | $880,640 | $1,089.17 | | |
| RLBRFD | RURAL LIBRARY REFUND 623 | 0.0000000000 | $880,640 | $880,640 | $0.00 | | |
| RURALLIB | RURAL LIBRARY 623 | 0.3601547782 | $880,640 | $880,640 | $317.17 | | |
| PORTRFD | PORT REFUND 640 | 0.0000000000 | $880,640 | $880,640 | $0.00 | | |
| PORTWWGEN | PORT OF WW 640 | 0.2344301070 | $880,640 | $880,640 | $206.45 | | |
| SD140BOND | SD #140 BOND 764 | 0.8032434458 | $880,640 | $880,640 | $707.37 | | |
| SD140CAP | SD #140 CAP 762 | 0.3840034221 | $880,640 | $880,640 | $338.17 | | |
| SD140GEN | SD #140 GENERAL 760 | 2.4999999996 | $880,640 | $880,640 | $2,201.60 | | |
| ST2 | STATE SCHOOL PART 2 600 | 0.8853714103 | $880,640 | $880,640 | $779.69 | | |
| STATESCHL | STATE SCHOOL 600 | 1.6424571473 | $880,640 | $880,640 | $1,446.41 | | |
| STREFUND | STATE REFUND LEVY 603 | 0.0000000000 | $880,640 | $880,640 | $0.00 | | |
| COROAD | COUNTY ROAD 115 | 1.6137667997 | $880,640 | $880,640 | $1,421.15 | | |
| CRPRD | COUNTY ROAD REFUND 115 | 0.0000000000 | $880,640 | $880,640 | $0.00 | | |
| | Total Tax Rate: | 11.0536074840 | | | | | |
| | | | | Taxes w/Current Exemptions: | $9,734.26 | | |
| | | | | Taxes w/o Exemptions: | $9,734.26 | | |
Improvement / Building
| Improvement #1: | RESIDENTIAL | State Code: | 11 | 2280.0 sqft | Value: | $650,540 |
| Exterior Wall: | STUCCO | Heating/Cooling: | HEAT PUMP | | Number of Bathrooms: | 2.5 | Number of Bedrooms: | 3 | | Plumbing: | 15 | Roof Covering: | COMP SHINGLE |
|
| | Type | Description | Class CD | Sub Class CD | Year Built | Area |
| | MA | Main Area | 1 | 50 | 1994 | 2280.0 |
| | SI1 | SITE IMPROVEMENT | 1 | 50 | 1994 | 7.0 |
| | BASE | BASEMENT | 1 | 50 | 1994 | 2242.0 |
| | BPF | BASEMENT -PARTITIONED FINISH | 1 | 50 | 1994 | 2242.0 |
| | ATG | Attached Garage | 1 | 50 | 1994 | 808.0 |
| | RPO | OPEN PORCH W/ROOF | 1 | 50 | 1994 | 40.0 |
| | TOOL | TOOL SHED | 1 | 50 | 1994 | 144.0 |
| | BLW | WOOD BALCONIES | 1 | 50 | 1994 | 242.0 |
| | POLE | POLE UTILITY BUILDING | 1 | 30 | 2023 | 1500.0 |
| | LNTD | LEAN TO DIRT FLOOR | 1 | 30 | 2023 | 750.0 |
Sketch
Property Image
Land
| 1 | RES 1 | Converted: Residential | 4.7600 | 0.00 | 0.00 | 0.00 | 1.00 | $230,100 | $0 |
Roll Value History
| 2026 | N/A | N/A | N/A | N/A | N/A |
| 2025 | $650,540 | $230,100 | $0 | $880,640 | $880,640 |
| 2024 | $650,540 | $230,100 | $0 | $880,640 | $880,640 |
| 2023 | $650,540 | $230,100 | $0 | $880,640 | $880,640 |
| 2022 | $684,770 | $115,100 | $0 | $799,870 | $799,870 |
| 2021 | $658,440 | $115,100 | $0 | $773,540 | $773,540 |
| 2020 | $598,580 | $115,100 | $0 | $713,680 | $713,680 |
| 2019 | $598,580 | $115,100 | $0 | $713,680 | $713,680 |
| 2018 | $374,110 | $115,100 | $0 | $489,210 | $489,210 |
| 2017 | $374,110 | $115,100 | $0 | $489,210 | $489,210 |
| 2016 | $374,110 | $115,100 | $0 | $489,210 | $489,210 |
| 2015 | $374,110 | $115,100 | $0 | $489,210 | $489,210 |
| 2014 | $340,100 | $115,100 | $0 | $455,200 | $455,200 |
| 2013 | $340,100 | $115,100 | $0 | $455,200 | $455,200 |
| 2012 | $340,100 | $115,100 | $0 | $0 | $0 |
| 2011 | $304,600 | $115,100 | $0 | $0 | $0 |
| 2010 | $304,600 | $115,100 | $0 | $0 | $0 |
| 2009 | $304,600 | $115,100 | $0 | $0 | $0 |
| 2008 | $304,600 | $115,100 | $0 | $0 | $0 |
| 2007 | $197,400 | $66,600 | $0 | $0 | $0 |
Deed and Sales History
| 1 | 04/02/2021 | SWD | STATUTORY WARRANTY DEED | WAETJE JEFFREY & PAULA | MCCAW JESSE JAY & KATE | | | $800,000.00 | 141249 | 2021-03852 |
| 2 | 01/07/2020 | SWD | STATUTORY WARRANTY DEED | THOMPSON DAVID & LISA | WAETJE JEFFREY & PAULA | | 1-PARCEL | $650,000.00 | 138382 | 2020-00145 |
| 3 | 11/08/2019 | SWD | STATUTORY WARRANTY DEED | HINER GENE E & NICKI L | THOMPSON DAVID & LISA | | 3-PARCELS | $1,075,000.00 | 138041 | 2019-09151 |
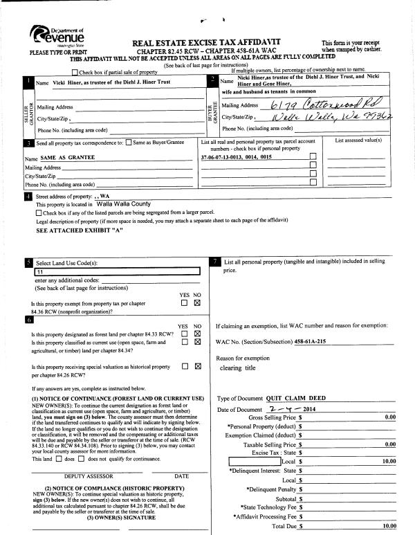
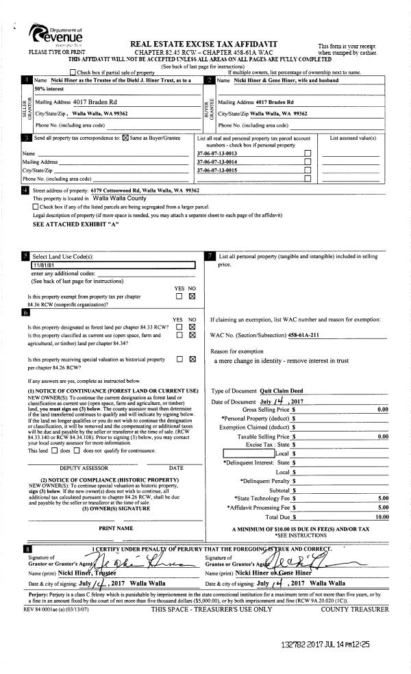
| 4 | 07/14/2017 | QCD | QUIT CLAIM DEED | THE DIEHL J HINER TRUST | HINER GENE & NICKI | | | $0.00 | 132782 | 2017-05391 |
| 5 | 02/05/2014 | QCD | QUIT CLAIM DEED | HINER NICKI | THE DIEHL J HINER TRUST | 3 PARCELS | | | 125389 | 2014-00901 |
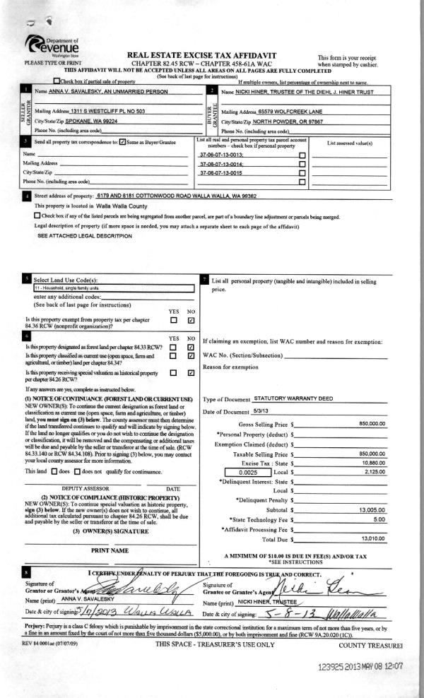
| 6 | 05/08/2013 | WARRANTY D | WARRANTY DEED | SAVELESKY ANNA | HINER NICKI | 3-PARCELS | | $850,000.00 | 123925 | 2013-04576 |
|   | |
| 7 | 12/04/1992 | WARRANTY D | WARRANTY DEED | | | | | $45,000.00 | 78117 | 2029-210855 |
Payout Agreement
| No payout information available.. |