Property
Account |
| Property ID: | 31202 | Abbreviated Legal Description: | SEC 18-6-36 PARCEL D-1 OF SHORT PLAT (PTN IN NLY PT OF N1/2) |
| Parcel Number: | 360618120006 | Agent Code: | |
| Type: | Real | | |
| Tax Area: | 101 - 140-4 | Land Use Code | 91 |
| Open Space: | N | DFL | N |
| Historic Property: | N | Remodel Property: | N |
| Multi-Family Redevelopment: | N | | |
| Township: | 6 | Section: | 18 |
| Range: | 36 |
Location |
| Address: | WA 99362 | Mapsco: | |
| Neighborhood: | E Land Rural/City Inf | Map ID: | |
| Neighborhood CD: | 416092 |
Owner |
| Name: | KRAMER KELSEY & SHERI JO | Owner ID: | 55673 |
| Mailing Address: | 2546 LANCER PL WALLA WALLA, WA 99362 | % Ownership: | 100.0000000000% |
| | | Exemptions: | |
Taxes and Assessment Details
Property Tax Information as of
02/21/2026
Click on "Statement Details" to expand or collapse a tax statement.
* Please enter a valid date ** Please enter a valid date *
Statement Details |
| | TOTAL: | $0.00 | $0.00 | $0.00 | $0.00 | $0.00 | $0.00 |
|
| | $0.00 | $0.00 | $0.00 | $0.00 | $0.00 | $0.00 |
Values
| (+) Improvement Homesite Value: | + | $0 | |
| (+) Improvement Non-Homesite Value: | + | $0 | |
| (+) Land Homesite Value: | + | $0 | |
| (+) Land Non-Homesite Value: | + | $272,050 | |
| (+) Curr Use (HS): | + | $0 | $0 |
| (+) Curr Use (NHS): | + | $0 | $0 |
| | | -------------------------- | |
| (=) Market Value: | = | $272,050 | |
| (–) Productivity Loss: | – | $0 | |
| | | -------------------------- | |
| (=) Subtotal: | = | $272,050 | |
| (+) Senior Appraised Value: | + | $0 | |
| (+) Non-Senior Appraised Value: | + | $272,050 | |
| | | -------------------------- | |
| (=) Total Appraised Value: | = | $272,050 | |
| (–) Senior Exemption Loss: | – | $0 | |
| (–) Exemption Loss: | – | $0 | |
| | | -------------------------- | |
| (=) Taxable Value: | = | $272,050 | |
Taxing Jurisdiction
| Owner: | KRAMER KELSEY & SHERI JO | | |
| % Ownership: | 100.0000000000% | | |
| Total Value: | $272,050 | | |
| Tax Area: | 101 - 140-4 |
| CERFD | CURRENT EXPENSE REFUND 010 | 0.0000000000 | $272,050 | $272,050 | $0.00 | | |
| CURREXP | CURRENT EXPENSE 010 | 1.0175366760 | $272,050 | $272,050 | $276.82 | | |
| HUMNSERV | HUMAN SERVICES 119 | 0.0250000000 | $272,050 | $272,050 | $6.80 | | |
| SLDREL | SOLDIERS RELIEF 121 | 0.0155990005 | $272,050 | $272,050 | $4.24 | | |
| EMERGSER | EMS 147 | 0.3792580840 | $272,050 | $272,050 | $103.18 | | |
| EMSRFD | EMS REFUND 147 | 0.0000000000 | $272,050 | $272,050 | $0.00 | | |
| FD4EXP | FD #4 EXPENSE 686 | 0.8836993059 | $272,050 | $272,050 | $240.41 | | |
| RLBRFD | RURAL LIBRARY REFUND 623 | 0.0000000000 | $272,050 | $272,050 | $0.00 | | |
| RURALLIB | RURAL LIBRARY 623 | 0.3710609029 | $272,050 | $272,050 | $100.95 | | |
| PORTRFD | PORT REFUND 640 | 0.0000000000 | $272,050 | $272,050 | $0.00 | | |
| PORTWWGEN | PORT OF WW 640 | 0.2460186015 | $272,050 | $272,050 | $66.93 | | |
| SD140BOND | SD #140 BOND 764 | 0.8342371393 | $272,050 | $272,050 | $226.95 | | |
| SD140GEN | SD #140 GENERAL 760 | 2.0646500647 | $272,050 | $272,050 | $561.69 | | |
| ST2 | STATE SCHOOL PART 2 600 | 0.8131451643 | $272,050 | $272,050 | $221.22 | | |
| STATESCHL | STATE SCHOOL 600 | 1.5158548041 | $272,050 | $272,050 | $412.39 | | |
| STREFUND | STATE REFUND LEVY 603 | 0.0000000000 | $272,050 | $272,050 | $0.00 | | |
| COROAD | COUNTY ROAD 115 | 1.6549953990 | $272,050 | $272,050 | $450.24 | | |
| CRPRD | COUNTY ROAD REFUND 115 | 0.0000000000 | $272,050 | $272,050 | $0.00 | | |
| | Total Tax Rate: | 9.8210551422 | | | | | |
| | | | | Taxes w/Current Exemptions: | $2,671.82 | | |
| | | | | Taxes w/o Exemptions: | $2,671.82 | | |
Improvement / Building
Sketch
| No sketches available for this property. |
Property Image
Land
| 1 | RES 1 | Converted: Residential | 10.0100 | 436035.60 | 0.00 | 0.00 | 1.00 | $272,050 | $0 |
Roll Value History
| 2026 | N/A | N/A | N/A | N/A | N/A |
| 2025 | $0 | $272,050 | $0 | $272,050 | $272,050 |
| 2024 | $0 | $272,050 | $0 | $272,050 | $272,050 |
| 2023 | $0 | $272,050 | $0 | $272,050 | $272,050 |
| 2022 | $0 | $129,000 | $0 | $129,000 | $129,000 |
| 2021 | $0 | $129,000 | $0 | $129,000 | $129,000 |
| 2020 | $0 | $129,000 | $0 | $129,000 | $129,000 |
| 2019 | $0 | $129,000 | $0 | $129,000 | $129,000 |
| 2018 | $0 | $129,000 | $0 | $129,000 | $129,000 |
| 2017 | $0 | $129,000 | $0 | $129,000 | $129,000 |
| 2016 | $0 | $129,000 | $0 | $129,000 | $129,000 |
| 2015 | $0 | $129,000 | $0 | $129,000 | $129,000 |
| 2014 | $0 | $129,000 | $0 | $129,000 | $129,000 |
| 2013 | $0 | $129,000 | $0 | $129,000 | $129,000 |
| 2012 | $0 | $129,000 | $0 | $0 | $0 |
| 2011 | $0 | $129,000 | $0 | $0 | $0 |
| 2010 | $0 | $129,000 | $0 | $0 | $0 |
| 2009 | $0 | $129,000 | $0 | $0 | $0 |
| 2008 | $0 | $129,000 | $0 | $0 | $0 |
| 2007 | $0 | $75,500 | $0 | $0 | $0 |
Deed and Sales History
| 1 | 02/04/2021 | SWD | STATUTORY WARRANTY DEED | DOGGETT WEAVER TRUST | KRAMER KELSEY & SHERI JO | | | $246,000.00 | 140869 | 2021-01387 |
| 2 | 11/14/2019 | SWD | STATUTORY WARRANTY DEED | WEAVER KAREN A | DOGGETT WEAVER TRUST | | | $0.00 | 138154 | 2019-09838 |
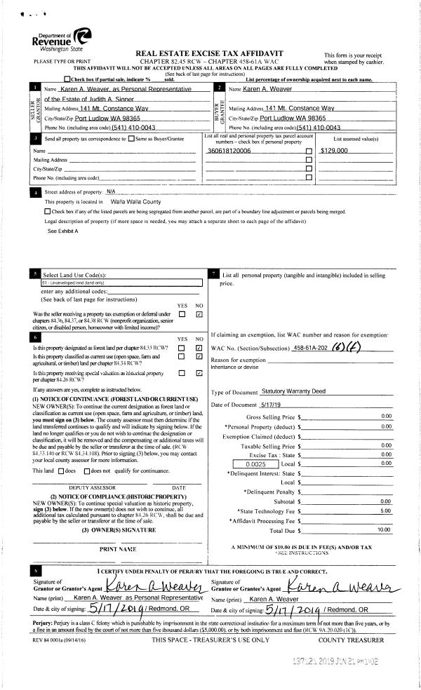
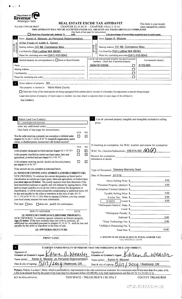
| 3 | 05/17/2019 | SWD | STATUTORY WARRANTY DEED | SINNER JUDITH A | WEAVER KAREN A | | | $0.00 | 137121 | 2019-04389 |
| 4 | 03/18/2004 | WARRANTY D | WARRANTY DEED | HELFER, CHRISTOPHER & SHARI | SINNER, JUDITH A | | | $107,000.00 | 104286 | 2004-02832 |
| 5 | 08/15/2003 | WARRANTY D | WARRANTY DEED | WATTS, GERALD A | HELFER, CHRISTOPHER & SHARI | | | $85,000.00 | 102815 | 2003-12267 |
Payout Agreement
| No payout information available.. |