Property
Account |
| Property ID: | 31169 | Abbreviated Legal Description: | 7-6-36 LOT 3-A OF SHORT PLAT (PTNS TAX 2 & 10 IN S1/2 SEC 7) |
| Parcel Number: | 360607310018 | Agent Code: | |
| Type: | Real | | |
| Tax Area: | 101 - 140-4 | Land Use Code | 11 |
| Open Space: | N | DFL | N |
| Historic Property: | N | Remodel Property: | N |
| Multi-Family Redevelopment: | N | | |
| Township: | 6 | Section: | 7 |
| Range: | 36 |
Location |
| Address: | 225 HELAMAN RD WA 99362 | Mapsco: | |
| Neighborhood: | CYCLE 4 EXCELLENT (A) | Map ID: | |
| Neighborhood CD: | 416012 |
Owner |
| Name: | YAM DAVID & MIRANDA | Owner ID: | 71984 |
| Mailing Address: | 225 HELAMAN RD WALLA WALLA, WA 99362 | % Ownership: | 100.0000000000% |
| | | Exemptions: | |
Taxes and Assessment Details
Property Tax Information as of
02/21/2026
Click on "Statement Details" to expand or collapse a tax statement.
* Please enter a valid date ** Please enter a valid date *
Statement Details |
| | TOTAL: | $0.00 | $0.00 | $0.00 | $0.00 | $0.00 | $0.00 |
|
| | $0.00 | $0.00 | $0.00 | $0.00 | $0.00 | $0.00 |
Values
| (+) Improvement Homesite Value: | + | $0 | |
| (+) Improvement Non-Homesite Value: | + | $1,694,520 | |
| (+) Land Homesite Value: | + | $0 | |
| (+) Land Non-Homesite Value: | + | $284,930 | |
| (+) Curr Use (HS): | + | $0 | $0 |
| (+) Curr Use (NHS): | + | $0 | $0 |
| | | -------------------------- | |
| (=) Market Value: | = | $1,979,450 | |
| (–) Productivity Loss: | – | $0 | |
| | | -------------------------- | |
| (=) Subtotal: | = | $1,979,450 | |
| (+) Senior Appraised Value: | + | $0 | |
| (+) Non-Senior Appraised Value: | + | $1,979,450 | |
| | | -------------------------- | |
| (=) Total Appraised Value: | = | $1,979,450 | |
| (–) Senior Exemption Loss: | – | $0 | |
| (–) Exemption Loss: | – | $0 | |
| | | -------------------------- | |
| (=) Taxable Value: | = | $1,979,450 | |
Taxing Jurisdiction
| Owner: | YAM DAVID & MIRANDA | | |
| % Ownership: | 100.0000000000% | | |
| Total Value: | $1,979,450 | | |
| Tax Area: | 101 - 140-4 |
| CERFD | CURRENT EXPENSE REFUND 010 | 0.0000000000 | $1,979,450 | $1,979,450 | $0.00 | | |
| CURREXP | CURRENT EXPENSE 010 | 1.0175366760 | $1,979,450 | $1,979,450 | $2,014.16 | | |
| HUMNSERV | HUMAN SERVICES 119 | 0.0250000000 | $1,979,450 | $1,979,450 | $49.49 | | |
| SLDREL | SOLDIERS RELIEF 121 | 0.0155990005 | $1,979,450 | $1,979,450 | $30.88 | | |
| EMERGSER | EMS 147 | 0.3792580840 | $1,979,450 | $1,979,450 | $750.72 | | |
| EMSRFD | EMS REFUND 147 | 0.0000000000 | $1,979,450 | $1,979,450 | $0.00 | | |
| FD4EXP | FD #4 EXPENSE 686 | 0.8836993059 | $1,979,450 | $1,979,450 | $1,749.24 | | |
| RLBRFD | RURAL LIBRARY REFUND 623 | 0.0000000000 | $1,979,450 | $1,979,450 | $0.00 | | |
| RURALLIB | RURAL LIBRARY 623 | 0.3710609029 | $1,979,450 | $1,979,450 | $734.50 | | |
| PORTRFD | PORT REFUND 640 | 0.0000000000 | $1,979,450 | $1,979,450 | $0.00 | | |
| PORTWWGEN | PORT OF WW 640 | 0.2460186015 | $1,979,450 | $1,979,450 | $486.98 | | |
| SD140BOND | SD #140 BOND 764 | 0.8342371393 | $1,979,450 | $1,979,450 | $1,651.33 | | |
| SD140GEN | SD #140 GENERAL 760 | 2.0646500647 | $1,979,450 | $1,979,450 | $4,086.87 | | |
| ST2 | STATE SCHOOL PART 2 600 | 0.8131451643 | $1,979,450 | $1,979,450 | $1,609.58 | | |
| STATESCHL | STATE SCHOOL 600 | 1.5158548041 | $1,979,450 | $1,979,450 | $3,000.56 | | |
| STREFUND | STATE REFUND LEVY 603 | 0.0000000000 | $1,979,450 | $1,979,450 | $0.00 | | |
| COROAD | COUNTY ROAD 115 | 1.6549953990 | $1,979,450 | $1,979,450 | $3,275.98 | | |
| CRPRD | COUNTY ROAD REFUND 115 | 0.0000000000 | $1,979,450 | $1,979,450 | $0.00 | | |
| | Total Tax Rate: | 9.8210551422 | | | | | |
| | | | | Taxes w/Current Exemptions: | $19,440.29 | | |
| | | | | Taxes w/o Exemptions: | $19,440.29 | | |
Improvement / Building
| Improvement #1: | RESIDENTIAL | State Code: | 11 | 4810.0 sqft | Value: | $1,694,520 |
| Exterior Wall: | STUCCO | Heating/Cooling: | WARM & COOLED AIR | | Number of Bathrooms: | 5 | Number of Bedrooms: | 6 | | Plumbing: | 22 | Roof Covering: | COMP SHINGLE |
|
| | Type | Description | Class CD | Sub Class CD | Year Built | Area |
| | MA | Main Area | 1 | 60 | 2000 | 4810.0 |
| | CPC | COVERED CARPORT/PATIO | 1 | 60 | 2000 | 361.0 |
| | SWP | Solid Wall Porch | 1 | 60 | 2000 | 345.0 |
| | GFP | GAS FIREPLACE | 1 | 60 | 2000 | 3.0 |
| | SI1 | SITE IMPROVEMENT | 1 | 60 | 2000 | 8.5 |
| | SMP | SWIMMING POOL | 1 | 60 | 2006 | 1.0 |
| | ATG | Attached Garage | 1 | 60 | 2000 | 1414.0 |
| | RPO | OPEN PORCH W/ROOF | 1 | 60 | 2000 | 156.0 |
| | PRC | PORCH W STEPS, ROOF,CEILED | 1 | 60 | 2016 | 384.0 |
| | TOOL | TOOL SHED | 1 | 60 | 2016 | 285.0 |
| | TOOL | TOOL SHED | 1 | 60 | 2016 | 225.0 |
| | POL3 | POLE BUILDING-CON,ELEC,INSU | 1 | 60 | 2008 | 1826.0 |
| | GUH | GUEST HOUSE | 1 | 60 | 2008 | 574.0 |
Sketch
Property Image
Land
| 1 | RES 1 | Converted: Residential | 13.2300 | 0.00 | 0.00 | 0.00 | 1.00 | $284,930 | $0 |
Roll Value History
| 2026 | N/A | N/A | N/A | N/A | N/A |
| 2025 | $1,779,240 | $284,930 | $0 | $2,064,170 | $2,064,170 |
| 2024 | $1,694,520 | $284,930 | $0 | $1,979,450 | $1,979,450 |
| 2023 | $1,694,520 | $284,930 | $0 | $1,979,450 | $1,979,450 |
| 2022 | $1,412,100 | $140,300 | $0 | $1,552,400 | $1,552,400 |
| 2021 | $1,086,230 | $140,300 | $0 | $1,226,530 | $1,226,530 |
| 2020 | $905,190 | $140,300 | $0 | $1,045,490 | $1,045,490 |
| 2019 | $905,190 | $140,300 | $0 | $1,045,490 | $1,045,490 |
| 2018 | $905,190 | $140,300 | $0 | $1,045,490 | $1,045,490 |
| 2017 | $905,190 | $140,300 | $0 | $1,045,490 | $1,045,490 |
| 2016 | $678,160 | $140,300 | $0 | $818,460 | $818,460 |
| 2015 | $777,400 | $140,300 | $0 | $917,700 | $917,700 |
| 2014 | $777,400 | $140,300 | $0 | $917,700 | $917,700 |
| 2013 | $777,400 | $140,300 | $0 | $917,700 | $917,700 |
| 2012 | $777,400 | $140,300 | $0 | $0 | $0 |
| 2011 | $748,300 | $140,300 | $0 | $0 | $0 |
| 2010 | $748,300 | $140,300 | $0 | $0 | $0 |
| 2009 | $800,000 | $140,300 | $0 | $0 | $0 |
| 2008 | $782,100 | $151,300 | $0 | $0 | $0 |
| 2007 | $599,300 | $77,800 | $0 | $0 | $0 |
Deed and Sales History
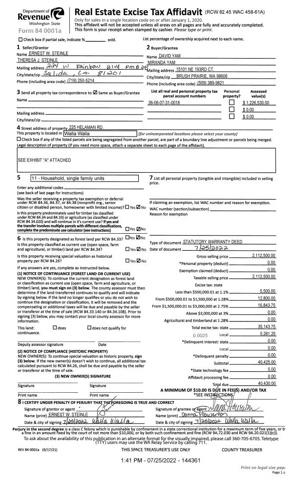
| 1 | 07/25/2022 | SWD | STATUTORY WARRANTY DEED | STEINLE ERNEST W & TERESA J | YAM DAVID & MIRANDA | | | $2,112,500.00 | 144361 | 2022-06223 |
| 2 | 10/14/2015 | BARGAIN & | BARGAIN & SALE DEED | HAPO COMMUNITY CREDIT UNION | STEINLE ERNEST W & TERESA J | | | $799,000.00 | 129003 | 2015-09019 |
| 3 | 08/31/2015 | TRUSTEES D | TRUSTEE'S DEED | GILBERT MARK W & SUSAN G | HAPO COMMUNITY CREDIT UNION | | | $100,000.00 | 128724 | 2015-07615 |
Payout Agreement
| No payout information available.. |